AMAR TAHIRAGA PORTFOLIO

Page 1

Punëdhënësi: ‘’ Ferizi2A ‘’

- Projektimi i objekteve individualeTrubohovc – Pejë.

- Projektimi i objektit banesir në Gjermani Sttutgard.

- Projektim i ndërtimeve të larta Kompleksi banesor ‘’Trea’’ .

- Projektim i objektit banesor në Gjermani Projektentwicklung „Friedrichshaller Str. 34-36“

Prishtinë Data : 06/ 2023

Përmbajtja :

 Shtëpi individuale P+1, Pejë - Kosovë

 Ambasada Gjermane , Prishtinë - Kosovë

 Restaurim Familja Lokvica, Prizren - Kosovë

 Osmanaj Immobilien, Stuttgard - Gjermani

 Friedrichshaller Str.34-36, Stuttgard - Gjermani

 Fushë Fudbolli, Pejë - Kosovë

 Komplekti Trea, Prishtinë - Kosovë

Osmanaj Immobilien

Tipologjia

Objekt Banesor

Lokacioni

Stuttgard – Gjermani

Sipërfaqja

1050 m 2

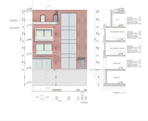
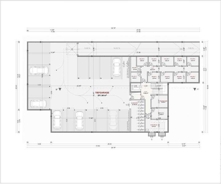
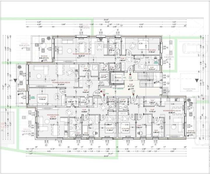
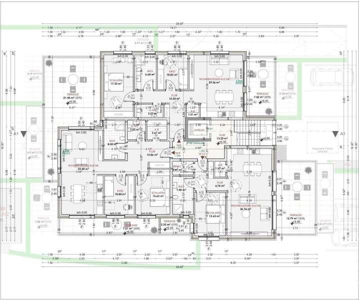
Friedrichshaller Str. 34-36

Tipologjia

Objekt Banesor

Lokacioni

Stuttgard – Gjermani

Sipërfaqja

3050 m2

Turn static files into dynamic content formats.

Create a flipbook
Issuu converts static files into: digital portfolios, online yearbooks, online catalogs, digital photo albums and more. Sign up and create your flipbook.