Skip to main content

Architectural portfolio

Page 1

P O R T F O L I O SELECTED WORKS | 2021 -2024 DC SCHOOL OF ARCHITECTURE AND DESIGN, TRIVANDRUM AMIT RAMESH

My name is Amit Ramesh, and I’m a 6th semester student at DC School of Architecture and Design, Trivandrum, which is affiliated with Abdul Kalam Technical University in Kerala. As a student architect, I have finished and will continue to complete all of my academic and extracurricular projects with commitment.

In this portfolio, you will find a selection of my works that showcase my design process, technical skills, and manual proficiency. From initial sketches to intricate renderings and detailed construction drawings, each project reflects my commitment to thoughtful design solutions and attention to detail.

Welcome to my portfolio!

PORTFOLIO AMIT RAMESH CURRICULUMl VITAE
02

2021 - 2026 - BACHELOR OF ARCHITECTURE

(DC School of Architecture and Design, Trivandrum)

2019 - 2021 - SENIOR SECONDARY EDUCATION

(Kendriya Vidyalaya Pattom, Trivandrum)

2009 - 2019 - PRIMARY AND SECONDARY EDUCATION

Education Skills

Designing Skills

3-D Visualization

Sketching Skills

Presentation Skills

Leadership Qualities

Project Management

Communication Skills

Proficiencies

Autodesk AutoCad

Trimble Sketchup

Autodesk Revit

Enscape

Twinmotion

D-5

Adobe Photoshop

Adobe Illustrator

Adobe InDesign

(Kendriya Vidyalaya Pattom, Trivandrum)

English

Hindi

Malayalam

Language proficiency Workshops

Brick masonary workshop

- Ar. Ashams Ravi

Bamboo Workshop

- Tac Design Lab

3-D modelling Workshop

- Ar. Aswin Kumar P N, Bamaka Studio

Product Design Workshop

- Mr. Ajay Kumar

PORTFOLIO AMIT RAMESH CURRICULUMl VITAE
03
PORTFOLIO AMIT RAMESH CONTENT 04 01 02 03 04 BEACH PAVILION NEYTHALIN PAADAL INHOUSE RESIDENCE MANIFESTATION OF HISTORICISM
C O N T E N T
05 PORTFOLIO AMIT RAMESH CONTENT 05 06 07 08 KUFOS CAMPUS KUTHIRAMALIKA DOCUMENTATION MANUAL & DRAFTED SHEETS PHYSICAL MODELS
PORTFOLIO AMIT RAMESH 4th Semester GROUP WORK
01 INHOUSE RESIDENCE RESIDENCE 06
Front Elevation

Design Brief

The in-house residence is intended for a family with two children and two parents, one of whom is a scholar and the other a historian. The fundamental concept of the space is figuring out how their jobs connect to the interaction between the past and present and also to create partially open spaces that allow for the infinite possibilities of the natural world. The house’s traditional Keralan architecture highlights its sustainability and adaptability to shifting weather patterns.

Location : Powdikonam, Trivandrum

Category : Residence

Concept Sketches

07 PORTFOLIO AMIT RAMESH RESIDENCE
PORTFOLIO AMIT RAMESH
RESIDENCE 08
GROUND FLOOR PLAN TECHNICAL DRAWINGS
PORTFOLIO AMIT RAMESH SECTION AA SECTION BB RESIDENCE 09
10 PORTFOLIO AMIT RAMESH RESIDENCE
11 PORTFOLIO AMIT RAMESH RESIDENCE
PORTFOLIO AMIT RAMESH
02 INTERPRETING
NEYTHALIN PAADAL 12
3rd Semester
RURAL NARRATIVES FOR EMPOWERMENT-NEYTHALIN PAADAL

Design brief

Prior to the design phase, an actual contextual study had been carried out in Perumathura Muthalappozhi, a small coastal village in the Chirayinkeezh Panchayath of Trivandrum. Through informal discussions and surveys, the field study contributed in improving understanding of several layers of settlement, including demographics, geography, history, landscape, and local way of life. Following the field research, some activities were found to have the most potential for benefiting the community and site. These functions included kindergarten, spaces for the livelihood of fishermen, organised areas for kudumbasree, and self-help groups. The objective of this project was to create an space that efficiently integrated all necessary activities.

Location : Perumathura Muthalappozhi

Category : Community centre

Concept

Synergistic Space:

Integrating Scale and Volume for Multifaceted Engagement

The design focuses how various volumes and sizes are seamlessly integrated into the space in order to meet the various demands of both adults and children. It highlights the design decisions made to encourage a feeling of community and active engagement, such as including features that are intended towards adults’ comfort and practicality and components that are customised for children’s sense of autonomy.

13 PORTFOLIO AMIT RAMESH NEYTHALIN PAADAL
14 PORTFOLIO AMIT RAMESH NEYTHALIN PAADAL
PORTFOLIO AMIT RAMESH NEYTHALIN PAADAL 15
16 PORTFOLIO AMIT RAMESH NEYTHALIN PAADAL
PORTFOLIO AMIT RAMESH NEYTHALIN PAADAL 17

04 MANIFESTATION OF HISTORICISM

PORTFOLIO AMIT RAMESH
HISTORICISM 18
4th Semester

Design brief

A detailed community study and survey has been carried out as part of the site study. From the interaction with the officials and people in the community it was understood that around 700 Sri Lankan repatriate families are settled in the estate. The objective of the project was to choose a layer each from Sri Lanka’s macro history and the community’s micro history connected to migration and reterritorialization. This historical (Macro-Micro) narrative should be translated to a spatial vocabulary through the process of interpretation.

Location : Kulathupuzha, Kollam

Category : Community centre

Historical Narrative

I have chosen my historical narrative from the Sri Lankan Civil War and conducted research into the actual root causes of the conflict. I have concluded that the Sri Lankan Civil War was the worst possible result of the accumulation of information and value conflicts dating back many years; the shift in order gave rise to conflicts that ultimately resulted in the civil war.

19 PORTFOLIO AMIT RAMESH HISTORICISM

Entry

The interpretation is transferred to the space through a walk experience in which the visitor initially passes through three distinct sorts of spaces where they are exposed to framed views, gradually piqueing their interest and building their anticipation of arriving at the specific location in the framed views.

Addition of elements in spaceswhile continuing on the path

When the person reaches the last section of the interpretation, they anticipate arriving at the place that had been shown to them from the start, but instead they arrive at the space that is the exact opposite.

Framed view from three different view points

The three spaces that a person walks through also represent three intangible elements that enrich a person’s life: societal norms, personal experiences, and cultural norms.

Change in order / unexpected shift

The walk’s beginning held promise with framed vistas, but expectations faded as it progressed, leading to unexpected outcomes. This mirrors life: disruption of order leads to conflict, highlighting the importance of structure for enrichment.

20 PORTFOLIO AMIT RAMESH HISTORICISM
through a small narrow path to a double height volume
PORTFOLIO AMIT RAMESH HISTORICISM 21
22 PORTFOLIO AMIT RAMESH HISTORICISM
PORTFOLIO AMIT RAMESH HISTORICISM 23

04 BEACH PAVILION

PORTFOLIO AMIT RAMESH
3rd Semester
PAVILION 24
BEACH

Design brief

As a growing tourist spot and beach ,has got possibilities of local development from the tourist infrastructure intervention. The shore has got is natural contours, mounds and tree shades for the visitors to sit and relax. In this context, the project explores the scope of an organized Beach pavilion which cater to both the tourists and the natives.

Location : Perumathura -Muthalpozhi

Category : Public pavilion

Concept

Rhythm of Light and Space:

The Beach Pavilion design ingeniously manipulates evening sunlight by using convex and concave surfaces, giving visitors surprising glimpses of the sea’s inviting qualities.

25 PORTFOLIO AMIT RAMESH
BEACH PAVILION
26 PORTFOLIO AMIT RAMESH BEACH PAVILION
Reflection of evening sunlight through concave and convex wall surfaces Elevated viewing deck
27 PORTFOLIO AMIT RAMESH BEACH PAVILION
28 PORTFOLIO AMIT RAMESH BEACH PAVILION
29 PORTFOLIO AMIT RAMESH BEACH PAVILION
PORTFOLIO AMIT RAMESH
05 KUFOS CAMPUS CAMPUS 30
5th Semester

Design Brief

The objective of the project was to design a campus for The Kerala University of Fisheries and Ocean Studies (KUFOS), a research institution focused on fisheries and ocean sciences that was founded by the Kerala government. Since fish culture, aquaculture, artificial breeding, and fisheries resources are all included in the study of Fishery Science, ponds must be built on campus to accommodate the demands. The aquarium, the theatre, and a few labs are among the campus locations that are open to the public. The design should work well for all kinds of users.

Location : Kundara, Kollam

Category : Institutional Campus

Unified Campus: Concept

Promoting Community Interaction and Environmental Integration through Node-Centric Design

The design prioritises environmental integration and community engagement. This strategy harmonises with the surrounding natural environment while facilitating seamless connection across varied user groups by deliberately focusing on critical node points.

31 PORTFOLIO AMIT RAMESH CAMPUS

MASTER PLAN

32 PORTFOLIO AMIT RAMESH
CAMPUS
33 PORTFOLIO AMIT RAMESH SITE ANALYSIS ZONING
CIRCULATION INTO THE SITE
CIRCULATION ON THE SITE CAMPUS FORM DEVELOPMENT
USER
USER
PORTFOLIO AMIT RAMESH CAMPUS 34
SECTION
GROUND FLOOR PLAN LONGITUDINAL
35 PORTFOLIO AMIT RAMESH CAMPUS
PORTFOLIO AMIT RAMESH
06 KUTHIRAMALIKA DOCUMENTATION DOCUMENTATION 36
4th Semester

Documentation Brief

Kuthiramalika Palace, located in the heart of Thiruvananthapuram (Trivandrum), the capital city of Kerala, India, stands as a testament to the rich architectural and cultural heritage of the region. Literally translating to “Mansion of Horses,” the palace earned its name from the 122 wooden horses that adorn its southern facade, adding a distinctive charm to its regal presence.

The documentation project aimed to explore and record the architectural significance, historical context, and cultural heritage of the Kuthiramalika Palace. It also contributes to the understanding, appreciation, and conservation of the Kuthiramalika Palace as a valuable cultural asset and architectural masterpiece. By disseminating knowledge about its historical significance and architectural excellence

Location : East Fort, Trivandrum

PORTFOLIO AMIT RAMESH DOCUMENTATION 37
PORTFOLIO AMIT RAMESH DOCUMENTATION 38
39 PORTFOLIO AMIT RAMESH DOCUMENTATION
PORTFOLIO AMIT RAMESH DOCUMENTATION 40
41 PORTFOLIO AMIT RAMESH DOCUMENTATION
PORTFOLIO AMIT RAMESH DOCUMENTATION 42
43 PORTFOLIO AMIT RAMESH DOCUMENTATION
PORTFOLIO AMIT RAMESH DOCUMENTATION 44
45 PORTFOLIO AMIT RAMESH DOCUMENTATION

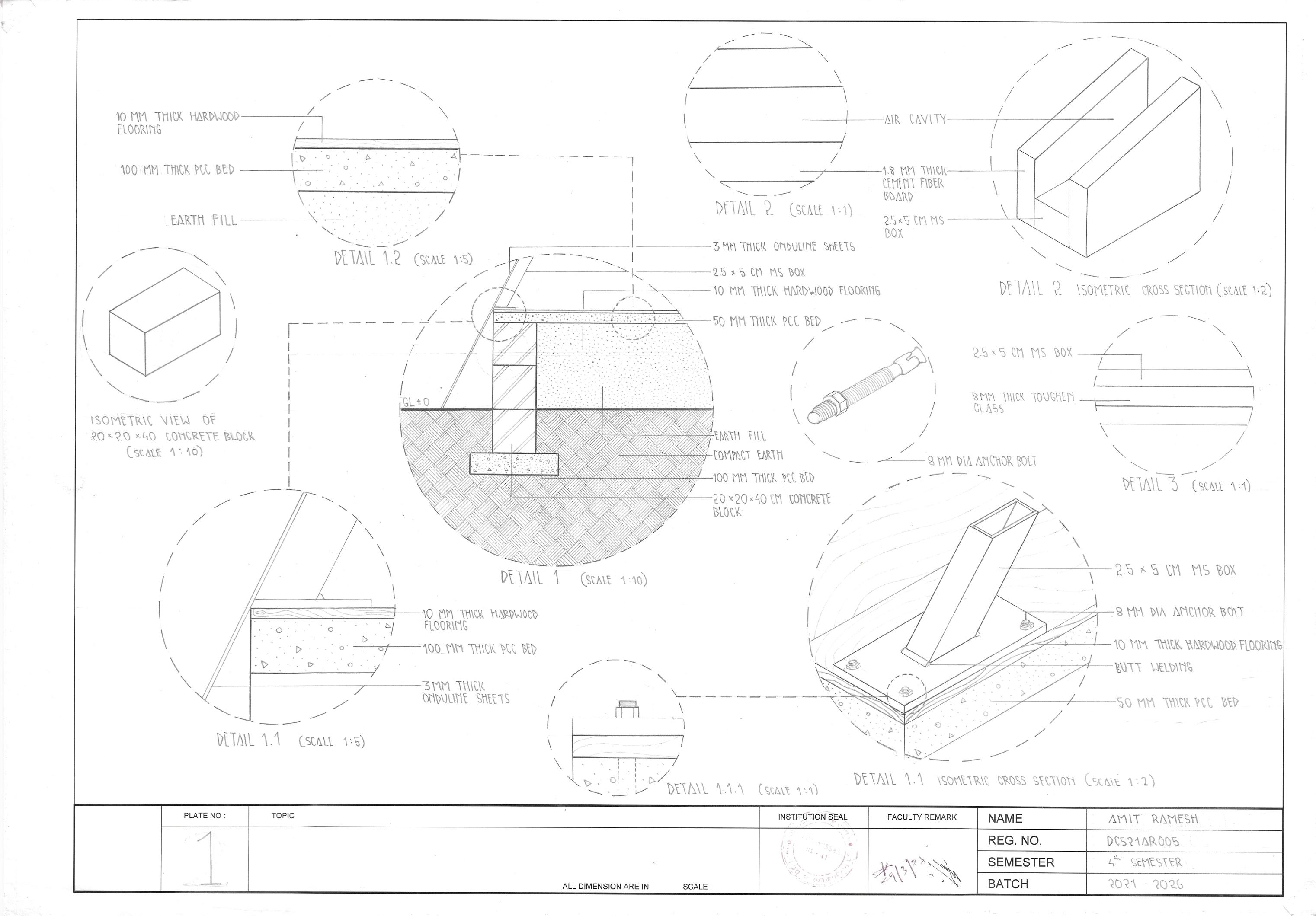
07 MANUAL & DRAFTED SHEETS

PORTFOLIO AMIT RAMESH SHEETS 46
47 PORTFOLIO AMIT RAMESH SHEETS
PORTFOLIO AMIT RAMESH SHEETS 48
49 PORTFOLIO AMIT RAMESH SHEETS
PORTFOLIO AMIT RAMESH SHEETS 50
51 PORTFOLIO AMIT RAMESH SHEETS

08 PHYSICAL MODELS

PORTFOLIO AMIT RAMESH MODELS 52
53 PORTFOLIO AMIT RAMESH MODELS
54 PORTFOLIO AMIT RAMESH MODELS
55 PORTFOLIO AMIT RAMESH MODELS
M I T PORTFOLIO AMIT RAMESH 2021 - 2024 AMIT RAMESH
7736168848
amit21.tvm@gmail.com +91

Turn static files into dynamic content formats.

Create a flipbook
Architectural portfolio by AMIT - Issuu