Skip to main content

Amirul Rahman Portfolio 2024

Page 1

PORTFOLO

Landscape Architecture

2024 SELECTED WORKS

ABOUT ME

AMIRUL RAHMAN

WORK EXPERIENCE

Henning Larsen

Intern

• Was provided the opportunity to be involved in conceptual design of the a public space by Temasek

• Collaborated with an accredited Landscape Architect to produce tender drawings and softscape costing for a project along the Yishun Dam.

• Contributed to the panels for the Ulu Pandan Canal competition, by producing graphics of ABC Water and Resource Management System Diagrams as well as ecological axonometric diagrams.

National Parks Board, Streetscape Department

Officer (Landscape Branch)

• Developed Nature Ways (enhanced tiered planting) proposals for Singapore roads in 2020 and 2021, successfully gaining approval from senior management.

• Coordinated with term contractors to execute proposed planting plans for the Pasir Panjang Nature Way.

• Collaborated on ad-hoc inter-departmental project proposals.

• Played a significant role in crafting proposals for various inter-agency projects, including JTC’s Sungei Kadut Eco District, new HDB estates, and multiple MRT exits for the Thomson East Coast Line by LTA.

National Parks Board, Design Department

Intern

• Under supervision of a trained Landscape Architect

• Provided the opportunity to be exposed to town scale masterplan projects, that involves critical thinking from different perspectives

• Assisted with ideation, forming concepts, design perspectives and proposal production

Envirospace Pte. Ltd

Intern (Non-credit Internship)`

• Had first-hand experience in the private sector

• Was involved in an urban farming project and assisted in the design stage of the Railway Corridor

EDUCATION

National University of Singapore

• Bachelor of Landscape Architecture (Hons) track

• Expected Date of Graduation: July 2024

Singapore Polytechnic

• Diploma in Landscape Architecture

SOFTWARE SKILLS

Illustration/ Visuals

Adobe Photoshop

Adobe Illustrator

Drafting

AutoCAD

3D Modeling

Sketchup

Twinmotion

Rhino + Grasshopper

Print

Adobe InDesign

Media

Adobe Premier Pro

May 2019 – Jul 2021 May 203 – Aug 2023 Jul 2016 – Aug 2016 Apr 2015 – May 2015
Aug 2020 – Present Apr 2014 – Apr 2017
fair good proficient
CONTENTS CAMPUS EDU-PARK VISTA VILLAGE 01 02 03 04 05 CANTONMENT COMMUNAL HUB RHINO STUDIO A NEW BREATH TO CLEANTECH 2

VISTA VILLAGE

Location: Buona Vista

Year: 2023

Buona Vista, distinguished among business parks, embraces a unique feature known as ‘Culture seeds’, scattered across the site, these cultural seeds offer an opportunity to showcase diverse spaces that contribute to a larger, vibrant landscape rich in arts, culture, and heritage.

Cultural seeds, in essence, are foundational elements or ideas within a society that have the potential to grow and shape its culture over time. Analogous to seeds planted in soil developing into plants, the term implies that certain concepts, practices, or values can take root and flourish, influencing people’s thoughts, behaviors, and interactions within their cultural context.

Within Buona Vista, these cultural seeds manifest in distinct forms: Commercial-based seeds emphasize economic activities, consumerism, and marketdriven values, where economic considerations and profit motives play a central role in shaping behaviors and choices. In contrast, Communalbased seeds prioritize shared values, cooperation, and the well-being of the community. Here, social relationships, mutual support, and collective goals take precedence, fostering stronger connections among individuals and activities that promote the common good. As these cultural seeds proliferate, Buona Vista stands poised to evolve into a dynamic and culturally rich urban environment.

01

SYMPHONIC POND

Existing Cultural Seeds

Buona Vista, part of the One North masterplan, was flexibly developed to meet industry demands rather than following a fixed plan. This adaptive approach created a symbiotic relationship between urban planning and the changing economic landscape. Additionally, cultural nodes have been emerging progressively, enriching the area’s cultural capital over time.

Single Purpose Land Use

The presence of single-use planning zones in Buona Vista has inadvertently led to a fragmented environment, segregating residential and commercial spaces. This segregation may hinder the seamless integration of diverse demographics and impede the development of a cohesive community. However, recognizing this, it also provides an opportunity to strategically reevaluate and integrate various demographics from different residential estates and commercial areas, fostering a more inclusive and interconnected urban landscape.

Hostile Road Infratructure

Large carriage ways disects the land in smaller parcels, further seperating the demograhics from one another.

Reduced Walkability

Several points of conflict, such as major traffic junctions and variations in elevation, have had an impact on pedestrian access and comfort. These challenges have resulted in reduced ease of movement for pedestrians and compromised their overall comfort, highlighting the need for thoughtful urban planning and design interventions to enhance the pedestrian experience in these areas.

Future Developments

The introduction of residential and commercial projects, attracting a surge in younger families to the mature estate of Holland and Ghim Moh, is poised to bring about a transformative shift in the overall landscape of Buona Vista. The infusion of new demographics is likely to influence the social fabric, lifestyle dynamics, and community amenities, fostering a more dynamic and diverse urban environment.

The space serves as an extension of the interior of buildings where event and mass gatherings spill into the landscape.

The partial pedestrianisation of Vista Green Exchange and Rochester Drive unifies the the surrounding buildings as part of the larger landscape.

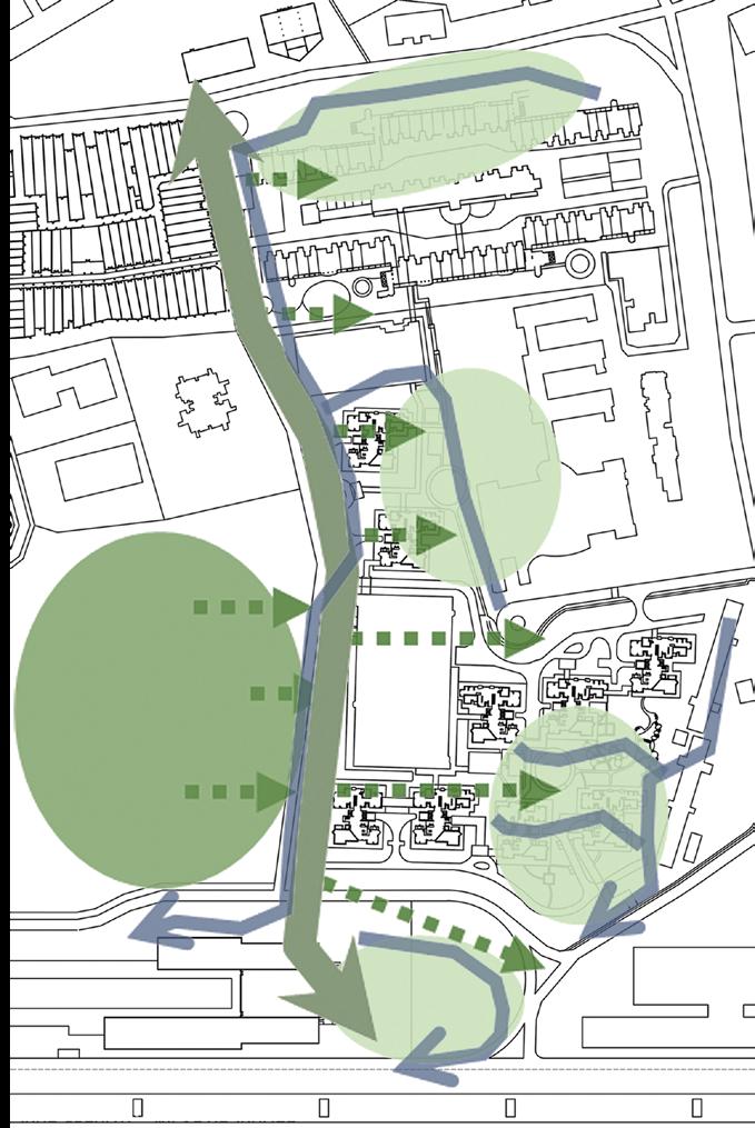
MACRO ANALYSIS SITE CONTEXT CAPITALISING ON THE EXISTING
Integrated Public Realm Pedestrianisation
Commercial-based Communal Based One North Business Park Civic & Communal Insitutions Commercial and Residential Future Devlopment One North Business Park 10/20 min Walkability Radius Actual Walking Distance Proposed Connection One North Business Park One North Business Park Project Boundary One North Business Park Holland Village Wessex Estate Courtyard within Biopolis Residential Corner Holland Drive Market Buona Vista CC Graffiti Wall Rail Corridor Star Vista Rochester Mall NTU Club Vista Village Vista Village Vista Village Vista Village Vista Village Gim Moh Estate Holland Drive Estate Dover Estate 800m 400m NTU Club Holland Drive Market Conflict Points Colonial Houses Buona Vista MRT Rochester Commons (Commercial) Ghim Moh Natura (Residential) Ghim Moh Ascent (Residential) Elementum One-North (Business) Rail Corridor Park One North Eden (Residential)
1. 2.
Buona Vista MRT Buona Vista MRT 1. 2. Star Vista Star Vista

VISTA VILLAGE GROUND LAYOUT PLAN

1a Plaza Village Reception and Offices Retail and FnB outlets Commons Food Court Retail@ Buona Vista Loading and Unloading bay The Gallery Art Podiums Canvas Art Plaza Bus Stop and Taxi Stand Event Square Water Play Fountains Open Lawn Vista Grove Existing FnB Escalator to Podium Level Farm-to-table Restaurant Open Lawn Allotment Garden Outdoor Mall Sculpture Park Vista Piazza Rochester Arcade 1a. 1b. 1c. 1d. 1e. 1f. 3a. 3b. 3c. 3d. 3e. 2a. 2b. 2c. 2d. 4a. 4b. 4c. 4d. 4e. Sculpture Rochester Arcade
Symphonic Pond
Star Vista Rochester Mall Park Avenue Rochester Proposed One North Park Proposed One North Eden Residneces 2c 3b 4e 5a 5b 5c 5d 4a 4b 4c 2d 1c

With the integration of existing cultural and commercial capital with infrastructure at its peripheral, The Vista Village aims to be a hub where its spaces and programmes are everchanging, influenced by the needs of the surrounding communities. The Village

Vista includes small 2 level structures, unified by an elevated walk way.

The low lying structures scattered around the landscape is juxtaposed with the surrounding tall buildings and infrastructures, acting as landmarks for way

finding. This allows users to their arrive at their intended destinations organically moving through the various spaces, immersing themselves into the programmes and cultures.

Cascading
Tiered Seating Drop off Point
Symphonic Stage Biotope
5a. 5b. 5c. 5d.
Symphonic Pond Outdoor Mall Vista Plazza Sculpture Park Buona Vista MRT
Metropolis Circle Line Exit 2a 2b 3a 3b 3d 3b 3b 3b 3c 3c 1b 1c 1c 1d 1e 1f
Proposed Local District Gallery

DESIGN STRATEGIES

To propose inclusive spaces for arts, culture and heritage to be appreciated by residents and commuters while incorporating existing and future developments

MRT Station: From transition to a destination

of House: Dual function

Vents: From an eyesore to a place of interest

Back MRT
MRT gantry on transfer level of station Receiving Area Direct connection to Star Vista via elevated walkway Bolards Commons Food Court Elevated walkway to Star Vista Retail @ Buona Vista MRT Podiums Vents as Canvases Gallery Hall Elevated walkway Proposed connection to Buona Vista MRT Treatment of Loading and Unloading Bay
Park 1a. 1b. 1c. 2a. 2b. 2c. 2d. 3a. 3b. 3c. 3d. 1a 2a 3a 2b 3b 2c 3c 2d 3d 1b 1c
Sculpture
North Buona Vista Road Elevated Walkway Farm-to–table restaurant Tiered Seating Symphonic Stage Star vista 1. 2. 3. 4. 5. 6. Legend SYMPHONIC STAGE 1 2 2 4 3
6 5

CAMPUS EDU-PARK

Location: National University of Singapore

Year: 2020

The Southern Ridges, consists of 4 parks: Kent Ridge Park, Hort Park, Telok Blangah Hill Park and Mount Faber Park. Each provide various facilities and amenities for the community. The NUS campus is located on the western tip of the Ridge. Although it is geographically associated, it generally does not have a deep connection to its surrounding community as compared to the other four parks. In addition, the campus is an institution of higher learning.

Therefore, this proposal aims to re-imagine the NUS campus landscape to be a communal space for an inclusive learning experience, while be part of the larger narrative of the Southern Ridges.

NUS KENT RIDGE CAMPUS
02

SOUTHERN RIDGES TOPOGRAPHICAL MAP

KENT RIDGE PARK HORT PARK MT FABER PARK

MACRO ANALYSIS

Criteria:

1. East - West Connection

2. Adjacent to green spaces

3. Serviced by external buses

SDE Ventus FASS Central Library SOC INOV 4 T.LS Lab FOE YIH RVRC FOS Kent Ridge MRT NUH
FOCUSED SITE USC Sports Facilities UCC LKC Natural History Museum
Clementi Woods Park
To
Kent Ridge Park
NUSKENTRIDGEBOUNDARY
Forested Area Green Spaces Halls and Civic Areas Educational Institutions Culture Carparks

ROUTE 1

Although there are minor changes in elevation and there are multiple bus stops that service external buses, the east-west distance is the highest.

ROUTE 2 (FOCUSED)

The distance traveled is the shortest among the three routes. The route runs along ample green spaces as well as the secondary forest on the ridge. The bus stop near Central Library is serviced by external buses.

ROUTE 3

Distance traveled from east to west is shorter than Route 1. However, there are limited green spaces adjacent to the route and there are no other bus stops serviced by external buses.

ELEVATION STUDY

The proposal aims to address this drastic elevation change.

MICRO ANALYSIS

CIRCULATION

The conflict points along the existing circulation consist of level changes where there are access to a ramp or a lift. The circulation cut through buildings which make wayfinding challenging to members of public.

Existing Circulation East - West Connection Conflict Points

ZONING

The external landscape is mainly used as means for circulation with limited. Social Areas are also confined to building’s boundaries and these spaces are segregated from the each other.

Education Institution Culture Research

TOPOGRAPHY

The sudden spike in elevation towards the peak would limit the extend of intervention.

Contour Lines

1 IMPROVED ACCESSIBILITY

3 INCLUSIVE LEARNING

EDUCATIONAL
OUTDOOR CLASSROOM BIO-RETENTION BIO-POND MUSIC & PERFORMANCE NETWORK WATER THE COMMONS CULTURE
CAMPUS PARK FOR AN INCLUSIVE
EXPERIENCE
SDE 2 SDE 1 Infotech Central Techno Edge CLC

EXPERIENCE

Central Library (CLB)

EXHIBITION

CLB COURT

2 RETROFITTING SPACES ONTO THE RIDGE

RIDGE PEAK

FOREST TRAIL

LOOK OUT POINT

GARDENING

COMMUNITY TREE PLANTING

BIRD WATCHING

AMENITY NODE

FOREST

CLASSROOM

THE COMMONS LAYOUT PLAN

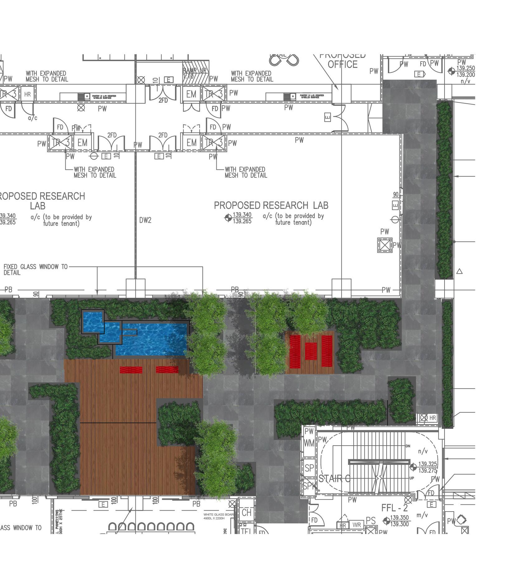
Bio-pond Permanent Water To Roadside Drain SDE 2 Techno Edge CLC Bio-pond Rain Garden Outdoor Classroom Bio-retention Basin Infotech Walkway leading to SDE 1 Existing walkway repaved Tables and benches Retaining wall with acrylic windows showing cross-section of Bio-retention Basin Runoff from Technoedge flows into basin which fills the undeground water harvesting tank Overflow from basin flows into the Raingarden Stepping Stones Shallow area of the Rain Graden Main Boardwalk Seating area Walkway leading to Central Library 1. 2. 3. 4. 5. 6. 7. 8. 9. 10. 11. Legend 1 5 2 3 4 6 9 a c d f e 7

OUTDOOR CLASSROOM

Nestled between the School of Design and Environments and the Faculty of Engineering, The Commons is a shared communal space seamlessly carved into the landscape. The outdoor classroom, excavated to create a void beside the main path, offers a unique view of the exposed substrate layers of the bio-retention basin.

This intentional design blurs the lines

between design and engineering, providing an immersive learning environment. The innovative water harvesting system, showcased through sculpted channels, exemplifies the harmonious integration of form and function. The Commons stands as a living symbol of collaborative ingenuity, where sustainable practices and interdisciplinary exploration converge in a compact, intentional space.

NORTH-SOUTH SECTION
Rain Garden
Kent Ridge Cross Main circulation path Granite stepping-stones cutting across the rain garden Permanent bio-pond water level Maximum water level during precipitation. Runoff would slowly seep into the permeable planting media Overflow water from rain garden is canaled to the bio-pond Overflow water from bio-pond is discharged to roadside drain a. b. c. d. e. f. Legend b 8 10 11 Filtration media Existing Topography Proposed retaining wall with cut out windows Outdoor Classroom
Run Off
CLB COURT LAYOUT PLAN Central Library
Social Grove
AS6 LT14 LT15 Event Space People’s Forest
Walk 1 4 2 3 5 6 8 7 9 PHASE 1: Enhancement of forest edge (Year 0 - 2) PHASE 2: Commence of Communal (Year 3 - 5) PHASED REFORESTATION
Chef’s Garden Cafe
Canopy

As visitors venture into CLB Court from the Central Library, they’ll discover an inviting social area nestled within a captivating forest. The Social Grove and Event Space, characterized by openness, serve as versatile venues for art exhibitions, performances, and flea markets.

The gently curving canopy walk gracefully winds through the heart of this oasis, connecting the two main spaces. Its gradual elevation ensures a comfortable journey for people using wheelchairs and older individuals alike. This path leads guests to a serene resting node, offering a panoramic view of the

People’s Forest before guiding them towards the scenic ridge.

The People’s Forest is a collaborative effort by NUS faculty and students, aligning with NUS’s pledge to plant 100,000 trees by 2030 and NParks’ one million tree initiative. Envisioned in distinct phases, this transformative project aims to create a green sanctuary within the university landscape, contributing significantly to broader ecological goals. It stands as a living testament to NUS’s commitment to environmental stewardship, highlighting the power of collective action for a greener future.

NUS Native Plant Nursery 10 REFORESTATION COMPLETED: Ornamental Peripheral Planting Communal Reforestation PHASE 3: Infilling Remaining Green Area (Year 6 - 10)
Exhibition area Raised Platform Tired Seating Alfresco Dining Existing Path to Lecture Theatres Gravel path leading into People’s Forest Reforesting area Raised boardwalk Resting node overlooking People’s Forest Boardwalk leading to the Ridge Walk 1. 2. 3. 4. 5. 6. 7. 8. 9. Legend

RIDGE PEAK LAYOUT PLAN

Research Link Boardwalk situated at different levels of the forest Kent Ridge Road Cafe area Access road to the research buildings Cantilevered area of the Peak’s Deck a. b. c. d. e. f. Legend
Boardwalk to Canopy Walk Resting Nodes scattered along the ridge Boardwalk follows topography of the ridge Boardwalk leads directcly to the Peak’s Deck Cantelivered Boardwalk Plaza Space Road leading Kent Ridge Park 1. 2. 3. 4. 5. 6. 7. Research Buildings Ridge Walk Peak’s Cafe Drop Off Point 1 a b 2 2 2 3 4 6 KentRidgeRoad Legend

NODE

SECTION

Strategically positioned within the contoured landscape, the Nature Nodes offer unique vantage points where the topography cradles the space. Placed thoughtfully in the wooded area, these nodes allow users to safely immerse themselves in the beauty of the forest floor. Providing a close and secure connection to nature, these nodes invite visitors to appreciate the intricate details of the natural surroundings in a serene and harmonious setting.

The proposed Ridge Peak, an extension of the decking from CLB Court, maintains a cohesive design while offering an elevated nature experience. The deck’s varying elevations enable users to traverse the diverse levels of the forest, from the intimate understory to the majestic emergent canopy.

Repurposed research buildings strategically located along the Ridge Peak provide opportunities for communal engagement. Serving as rest stops for hikers, these transformed spaces now house a small-scale cafe, seamlessly

integrated with the decking. The cafe’s roof extends to a lookout point at Peak’s Deck, offering unparalleled panoramic views that stretch across the NUS campus, UTown, One North Business Park, and beyond.

Ridge Peak stands as an immersive vantage point where architecture harmonizes with nature, creating a tranquil oasis for users to appreciate the natural beauty while enjoying sweeping views of the surrounding landscape, connecting the campus and extending the gaze beyond.

REPURPOSING RESEARCH BUILDINGS

A B C D D First level to become a multifunction seminar room Utilities Decking to incorporate
roof of the building while the first level re-purposed into a cafe. Building program remains A. B. C. D.
with
Peak’s Deck b c d e f 5 7

CANTONMENT COMMUNAL HUB

Location: Tanjong Pagar Railway Station Year: 2020

This project is part of a larger site that encompasses the Everton, Cantonment and Spottiswoode housing estates, and the landmarks such as the Tanjong Pagar Railway Station and the old St Matthew’s Church. The area is situated at the fringe of Singapore’s Central Business District and nestled between Singapore General Hospital and Keppel Bay.

Its strategic location provides great opportunities for businesses to flourish. Its diverse demographics widely contributed by its different housing typologies and by past developments around its surrounding

Tanjong Pagar Railway Station Rail Corridor Spottiswood Park Spottiswood Park Estate Cantonment Towers Estate Everton Estate Shop Houses Old St Matthew’s Church and Kindergarten 1. 2. 3. 4. 5. 6. 7. 8.
Legend SINGAPORE 2
03
CONTEXT KEPPEL PORT CANTONMENT POLICE HQ COMMUNAL
SINGAPORE GENERAL HOSPITAL CENTRAL BUSINESS DISTRICT 1 3 4 5 6 7 8 EDUCATIONAL ZONE HISTORICAL ZONE
SITE
ZONE (FOCUSED SITE)
Tanjong Pagar Railway Station Spotisitwoode Park Neil Road Everton Road Spottiswoode Road COMMUNAL ZONE LAYOUT PLAN B A C Walkway Walkway Walkway Plant Buffer with Swale Plant Buffer with Swale Plant Buffer Walkway Walkway Walkway Bicycle Lane Bicycle Lane Bicycle Lane Road Road Road Plant Buffer Plant Buffer Section A Section B Section C PROPOSED SPINE CONFIGURATION PROPOSED GREEN AND BLUE NETWORK PROPOSED MAIN SPINE WITH BICYCLE LANE Biodiversity from Spottiswoode Park radiates outwards though “Green Fingers” Spaces are conncted leading up to the communal hub Spottiswoode Park Outram MRT Cantonment MRT Communal Hub Communal Hub Everton Estate Cantonment Estate 1 2 3 4 15 15 23

The Communal Zone consists majorty of the residential estates. Everton Park serves as a central hub, primarily due to the abundance of food and beverage establishments on its ground floor. Given its status as an older estate, there are plans for extensive refurbishment in the area. Outram MRT is situated at the Cantonment Police Headquarters, located on the opposite side of a wide arterial road. The majority of residences consist of 2-room flats, resulting in a significant population of senior citizens. Consequently, an underpass is slated for construction to offer residents a safer option for crossing. In addition to enhancing the F&B scene, the area will undergo refurbishment to create more communal spaces for residents.

In contrast, Cantonment Towers has a younger demographic, with a higher proportion of 3-room flats attracting many young families. As a result, proposed amenities aim to foster community engagement, such as BBQ pits, playgrounds, and a combined badminton and volleyball court.

Cantonment Road

EVERTON PARK RESIDENCE

Underpass Exit/Entrance

Community Grove

Fitness corner

Multi-Purpose Hall

Tranquillity Garden

Resting area

CANTONMENT TOWERS RESIDENCE

Raingarden Barberqueue Pits

Activity Square

Badminton/ Volleyball court

Adventure Play Space

Fitness Corner

Raingarden Community Garden

COMMUNAL HUB

MRT Exit Social Grove

Bistro and Alfresco Dining

Children’s Play Space

Rain Garden

Boulevard Walk

Event Space

Bio

CantonmentLink Everton Park Residence Cantonment Towers Estate Communal Hub Cantonment Primary School 5 6 7 8 9 10 16 17 18 18 20 21 22 11 12 13 14
pond Bicycle Route leading to Railway Corridor 1. 2. 3. 4. 5. 6. 7. 8. 9. 10. 11. 12. 13. 14. 15. 16. 17. 18. 19. 20. 21. 22. 23. Legend
1 2 2 3 3 4 5 5 6 12 Social Grove

The Communal Hub is a public park situated at the frontage of the newly refurbished Tanjong Pagar Railway Station. With open programmable spaces various events of various scales could be held i.e., weekend markets, outdoor basking and mass exercise sessions.

Through usage of the “cut and fill” method, the earth excavated for the Biopond will be used to create undulating terrain, hence demarketing different spaces. The Section below shows how the berm is used as seating and to segregate the active area, Event Space from the passive area, Biopond

Equipped with a chef’s garden, the Bistro serves inexpensive local food to customers from produce collected from its own Chef’s Garden. The stewardship of the garden also brings opportunities to host cooking, baking and gardening classes, attracting people from various age groups. Not only will the bistro identity be strengthened, but It also promotes a sustainable business.

1. 2. 3. 4. 5. 6. 7. 8. 9. 10. 11. 12. 13. 14. 15. 16. Tanjong Pagar Railway Station Cantonment MRT Exits Arrival Plazas Bicycle Rental Alcove seating Cycling Path to Railway Corridor Alfresco Dinning Chef’s Garden Rain Garden for water harvesting Play Mounds Lounge lawn Water Fountain Amphitheatre Resting Node Boardwalk Bus Stop COMMUNAL HUB LAYOUT PLAN Legend 5 7 8 9 10 11 13 14 15 16 Bistro Children Play Area Boulevard Walk Event Space Bio-pond

RESTING NODE ALONG BOULEVARD WALK

3 2
1 Enhanced Streetscape Bio-Pond

BUS STOP ALONG KEPPEL ROAD

A water harvesting system would be introduced, to decrease the reliance of water from external sources. Water runoff from roof structures will be channelled by bioswales into the raingarden. Water will then be collected by the water harvesting tank situated under the raingarden. Water will be pumped to the water points to be used for irrigation and used to top up the biopond when needed. The water would also be treated to be used for the water fountains in the event space.

4 5 6 2
Downspout pipe Subsoil pipe Concealed drain Swale Raingarden with detention basin Overflow Pipe BioPond Filteration Tank Clorinated Water to Water Fountain Legend Event
1. 2. 3. 4. 5. 6. Keppel Road Boardwalk Bridge Amphitheatre Water fountain Tanjong Pagar Railway Station Legend
Space
2 3 4 5 Legend 1. 2. 3. 4. 5. 6. 7. 8. 9. Tanjong Pagar Railway Station Water Fountain Lounging Lawn Alcove Seating Play Mounds Bistro Rain Garden Chef’s Garden Spottiswoode Park Road PLAY MOUNDS FROM ALCOVE SEATING Event Space Children’s Play Space 1
6 7 8 9
Bistro

The Social Grove another entry point to the Community Hub. It is an area that branches to either the path leading to the Railway corridor or the rest of the Community Hub. Its overall cooling microclimate provides conducive space for resting node or as a meeting area.

It also provides organisers opportunities to hold small to medium scale events that visitors could attend/ participate i.e. weekend markets or carnival stalls.

SOCIAL GROVE

SPOTTISWOODE PARK ROAD

A NEW BREATH TO CLEANTECH 2

Location: JTC Cleantech 2

Year: 2016

This project is based in CleanTech 2, one of the buildings which is part of the JTC’s Jurong Innovation District Park (JID). It offers flexible spaces for offices, workshops and wet/dry laboratories that specialises in clean technology related R&D activities.

The building consists of 6 floors and a rooftop, inaccessible to tenants. The project brief required us to redesign the Level 4 atrium and the Rooftop level. Most of the landscape spaces were underutilised, unwelcoming and in need of a revamp. With sustainability and human-nature engagement as the driving factor, the proposal intends to foster

04

MEETING SPACE AT ATRIUM LEVEL

ATRIUM

The Atrium, situated on the fourth floor between two office blocks within the establishment, serves as a unique space with a second entrance to adjacent offices and the conference room. Capitalizing on CleanTech 2’s east-west orientation, the Atrium strategically utilizes air currents, creating a wind tunnel that effectively cools the area during warmer afternoons. Despite its potential, the current space planning has resulted in limited tenant usage. The design challenge presented in the brief calls for innovative solutions to enhance and encourage better utilization of the Atrium.

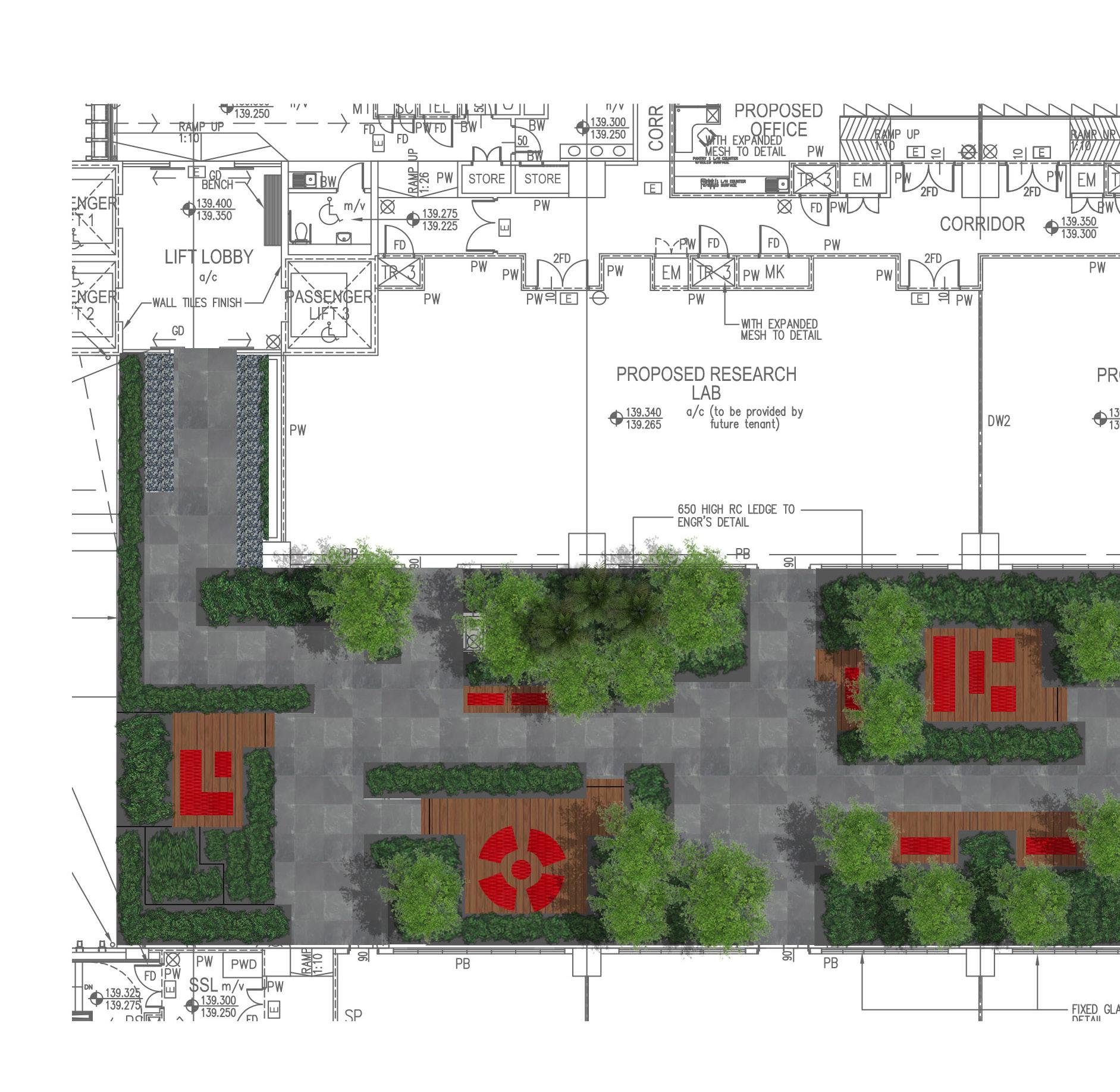
Furthermore, the refurbishment of the roof level is envisioned to create a multifunctional space, accommodating both small meetings and large corporate events. The intent is to make the roof not only a recreational area but also a flexible venue suitable for various gatherings. With access facilitated by a passenger lift, this transformation seeks to make the roof level an inviting and adaptable setting for a range of activities, from intimate discussions to expansive corporate functions.

ROOF LEVEL
1 2 2 ENTRY TO CONFERENCE ROOM

The proposed design would divide the atrium into smaller semi-open spaces which could be used for social gatherings and small informal meetings. The planting scheme would by enhanced to encourage biodiversity. The trees are placed in a manner that does not disrupt the wind tunnel but still be able to cast ample shade during warmer afternoons.

1. 2. 3. 4. Lift Lobby Meeting space Water feature Entry to Conference Room ATRIUM LANDSCAPE PLAN 3 4
1 2 4 5 5 6 7 8 9 13 14 14 A B
1. 2. 3. 4. 5. 6. 7. 8. 9. 10. 11. 12. 13. 14. Lift Lobby Sky Bridge Alcove Seating area Naturaised pond Pavilion Alfresco Dining Indoor Dining Kitchen Event Space Exhibition Area Grey Water Tank Toilet Heat Vents Stairwell ROOF LANDSCAPE PLAN 3 5 11 12 11 14 11 2

The proposed design integrates the dock houses, strategically conceals the vents and solar panels, enhancing the roof’s aesthetic appeal without compromising the essential services required for the laboratories.

The roof is delineated into passive and active zones. The passive section features an alcove seating area with panoramic views of CleanTech2’s surroundings and a naturalized pond. The low-maintenance naturalized pond leverages self-cleaning processes, utilizing aquatic plants on the periphery to generate oxygen and provide shelter for fish. The nitrogenrich excretions from the fish serve as essential nutrients for the plants. To prevent algae growth, a cascading fountain creates water movement while producing ambient sounds for users. Any existing algae is naturally managed as it becomes a food source for the fish.

NATURALISED POND

ALCOVE SEATING
SECTION A-A SECTION B-B 1. 2. 3. 4. 5. 6. 7. 1. 2. 3. 4. 5. 6. Stairwell Pathway Alfresco Dining Semi-exposed seating Cafe Grey Water Tank Raised Platfrom Loose Pebbles Raised Platform Performace Area Exhibition Area Grey Water Tank Pathway 1 1 2 3 6 2 3 4
PERFORMANCE AREA

The active section, on the contrary, comprises an indoor-outdoor café area and an event space. Within the café area, patrons can enjoy indoor, semiopen, and open dining experiences. This space will be operational for lunch and post-office hours, providing a cozy setting for office workers looking to unwind. The event space serves as a versatile area suitable for various social activities, whether in a corporate context (exhibitions or outdoor presentations) or a more relaxed atmosphere (mass workout sessions or movie nights).

To safeguard the roof’s waterproofing layer from potential damage, the finish floor level is elevated by 200mm using a pedestal system. This approach eliminates the need to alter the actual roof slab. The existing spoon drain is preserved and seamlessly integrated into the proposed drainage design. The loose pebbles surrounding the roof not only serve as maintenance access but are also incorporated as a deliberate part of the overall design.

4 5 4 5 6 2 7
ALFRESCO DINING
DETAILING

RHINO STUDIO

Location: Mount Faber Year: 2021

This studio gave me the opportunity to dive deep into the world of rhino and grasshopper. Through the course of the semester I learned how analysis, ideation, design and 3D modeling could be done though parametric scripts. With the selected site ‘s naturally undulating terrain, it challeneged me to be more sensitve to changes in topography and the exisitng infratstructure.

Henderson Wave Henderson Wave Bukit Purmei Estate Bukit Purmei Estate Faber Peak Section A Section B Faber Peak To Mt. Faber Cable Car Station To Mt. Faber Cable Car Station Site Map with Contour Lines Sketchfab Model: https://skfb.ly/oA8vz Site Map with Existing Trees Generated by Scripts Based on GoogleMaps
1 2 3 4 5 6
Workable Areas near to Faber’s Peak with Viewshed Points
05

VIEWSHED ANALYSIS

A workable boundary was mapped out where there was minimal tree coverage. View points were then generated closer the peak to better understand the viewshed

TOPOGRAPGY

With the workable site, a gradient analysis was carried out to pinpoint areas suitable for intervention. Areas highlighted in green are most suitable for larger spaces.

Point Faber Point Faber Point Faber Point Faber Point Faber Point Faber Point Faber Point Labrador Park Telok Blanagh Estate Bukit Purmei Estate Bukit Purmei Estate Bukit Purmei Estate Bukit Purmei Estate Bukit Purmei Estate Bukit Purmei Estate
1
5 Section A Section B Section A Gradient 30 degrees 0 degrees 15 degrees Section B Viewshed 4 Viewshed 6 1.5m from ground 6.0m from ground 1.5m from ground 6.0m from ground 1.5m from ground 25.0m from ground 1.5m from ground 25.0m from ground Henderson Wave
Faber
Viewshed
Viewshed

PROPOSED ZONES

FUNICULAR TRAM + HILLSIDE WALK

Placement of spaces are informed by the existing topography and tree coverage. It ensured a contextually sensitive design while being immersed in foliage. The Canopy Walk provides a comfortable route from the Henderson wave and directly to Faber Peak.

The Faber Peak Play Platforms are raised spaces nestled within the tree canopy, provides an emersive play experience. The Funicular Tram gives visitors an alternative mode of transport up the ridge. With a light weight design and minimal footprint on the hillside, it aims to complement the existing cable car. This also improves connectivity of residents in Bukit Purmei to Sentosa.

The elevated walk way hugs the topography, minimising height of columns. The stations, pavilions and structure adopt a tree-like design which create a new identity of the area.

3.
5. 6. 7.
FInicular
https://skfb.ly/oA8vz 1 2 3 4 5 6 7 Bukit
Estate To Safra To Telok
Hill Park
1. 2.
4.
Canopy Walk Faber Peak Play Platforms Foyer Faber Platform Theratre Faber Point Cafe and Plaza Hillside Walk
Tam sketchfab model link:
Purmei
Blanagah
To Keppel Resevoir To Faber Cable Car Station Bukit Purmei Estate
Mt
1. 2. 3. 4. 5. Bukit Purmei Station Tram Track Mt. Faber Furnicular Station Tree Pavilion Acces from furnicular station and Mt. Faber Loop Hillside Walk 1 2 3 4 6 5
Hillside Walk Faber Point Cafe
Mt
Faber Loop
Faber Funicular Station

CAFE + PLATFORM THEATRE

The raised cafe takes advantege of the tree clearing and elevation. It offers customers a panoramic view of the CBD area (East) The platform theatre on the other hand faces the west, which promises a sunset view in the late evenings. It is nestled onto the exsiting topography and within the tree foilage. With a hidden acces point, it serves as both a place for repite as well as an amazing performance area.

Hillside Walk
1. 2. 3. 4. 5. 6. Faber Platorm theatre Hidden access Plaza Area Faber Peak Cafe TIered Platforms Stage Area Mt Faber Play Platforms Faber Point Cafe 1 2 4 5 6 3 VIEW FROM BUKIT PURMEI STATION VIEW FROM CAFE
Mt Faber Funicular Station

The structures are fitted amongst the tree canopy and raised at different elevations providing varying experiences. They are also integrated with existing trees and takes advantage of the different forest levels. Various play elements allow users to experience different ways of traversing within the canopies. The platforms also allow the addition of propriety play elements.

+ CANOPY WALK
FABER PEAK PLAY PLATFORMS
Mt. Faber Loop
1. 2. 3. 4. 5. 6. 7. 8. 9. 10. 11. Canopy Platform Look Out Towers Main Play Structure Foyer Acces to Plaza
to
Canopy Huts Slides Suspended Climbing Nets Rope Bridges Foyer 1 2 2 3 4 5
Mt. Faber Loop
Entrance
Canopy Huts
6 7 7 9 10 8 11

The look out towers are situated where the view shed near ground level is minimal and increases as users climb. The main play area ends at the canopy platform which is hidden within the foliage. It can only be spotted from one of the look out towers.

Users are then brought to the Canopy Walk what winds around and grazes existing trees. It gradually leads them to ground level and directly to the Henderson Wave

Mt. Faber Loop Mt. Faber Loop 12. 13. 14. Look Out Towers Canopy Platfrom Canopy Walk
13 13 14 12 12
To Henderson Wave
2024 SELECTED WORKS

Turn static files into dynamic content formats.

Create a flipbook