Architecture Portfolio 2022

Page 1

Portfolio

1 AMIR MOHAMMAD RAZZAGHI Architecture Projects
2018 2022ﻮﯿﻟﻮﻔﺗرﻮﭘ

Education

Master Of "Architectural Technology" (Highest Ranked s Student)

Shahid Beheshti University Faculty Of Architecture

Bachelore Of "Architecture" ( Straight admission for master )

Shahid Beheshti University Faculty Of Architecture

Diploma Of "Mathematics & Physics"

Hakim Nezami High school

Competitions

Dubai Sea House, Young architecture competition 2022 Finalist

International Velux Award 2022

Researches

Documentation of Traditional Houses Of "Ashtian" Shahid Beheshti University Faculty Of Architecture

Comprehensive Analysis Of Tehran "Ati Saz residential Complex" Shahid Beheshti University Faculty Of Architecture

Study On The Acoustics of World's Famous Concert & Opera Halls

Other Experiences

Designing the Lobby of Faculty of Literature, Beheshti University

Member of the Central Council of the Scientific Association of Architecture of Shahid Beheshti University

Personal Info

Date Of Birth: 1997 . Sep . 6

Nationality: Iranian contact

Email: (Native)

Languages Persian English

Arabic

Turkish

amirrzg@gmail com

Shoniz Pavilion, Iran s National Confectionary Exhibition 2020 Finalist Work Experiences

Cooperation in Holding Seminars at Shahid beheshti Universiy:

A mobile library for Iranian nomads

Designer, 6 Monthes

"DIACO" Architectural Office

Executive Assistant , 1 Year "Sazeh- Sazan- Matin" Contracting Office

Executive Intern 2.5 Years "Qom War Museum" Construction Site

Graphist 2 Years

Rozaneh Journal of the Scientific Association of Architecture of Shahid Beheshti University

Freelancer Architect

- Renovation Of a Rural House In Qom - Designing an Apartment In Qom - Ethude For a Restaurant In Tehran Book Garden Yard

- "Origami for Architects" Workshop

- "Virtual Reality" Conference

- "Abar Khesht" Seminar

- Architects talk panel on Architect's Day Interests

Skills Softwares: Archicad

Revit Rhino

Autocad

Photoshop

Indesign

Illustrator

Detail Design Facade Engineering Photography

Graphics

2 GSPublisherVersion 0.35.100.100
Phone989214316992 : +
3 Student Dormitory 4 15 29 53 62 63 64 Oudlajan neighborhood Revitalization Gandhi Multi-Functional Complex Cultural Center Other Activities Velux Daylight Competition Dubai Sea House Content*

# 01 Student Dormitory

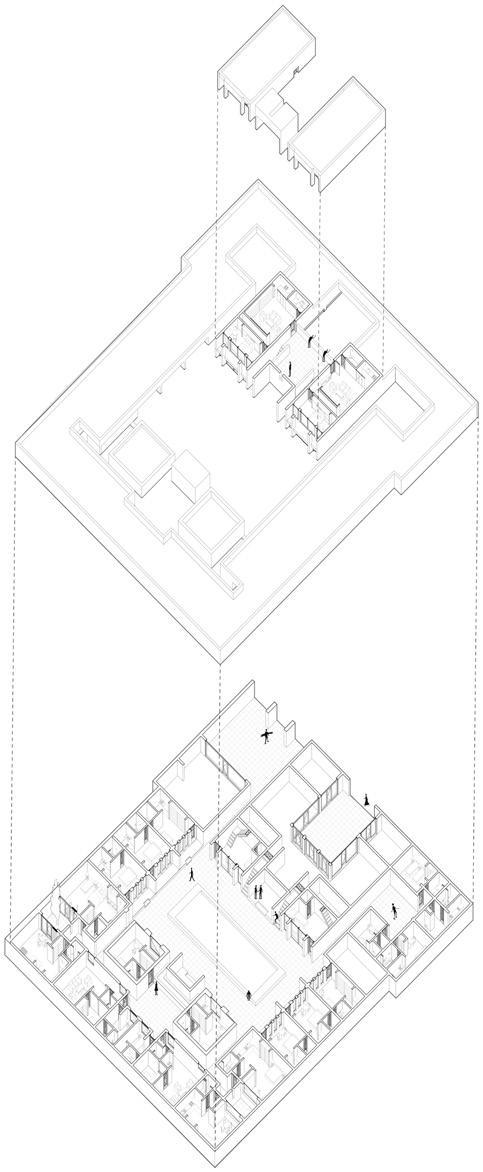
Student dormitories are among the im portant spaces of a university. Students leave their city and settle in a distant town to continue their studies. They spend all this time in dormitories and stay away from living with their families. The unique feature of living in a dormito ry is that people from different cultures come together to live together for 2 - 4 years.

The spatial quality of the dormitories and its facilities plays an essential role in how the person’s study period is spent and di rectly impacts on other parts of the per son’s life during this period.

Shahid Beheshti University (SBU) is one of Iran's essential universities, and many students study there.

The current dormitory of the university consists of 6 residential blocks located in an area next to each other. These blocks are mainly used as residences, and de ficiency of cultural and social spaces is felt. The absence of a focal study hall, restaurant and meeting hall is one of the most critical needs of this dormitory. In addition, the existing blocks are de signed only to create more rooms in the existing space, and this point of view has caused a high density of people to live in the blocks without proper facilities.

PROJECT: Boys Dormitory of SBU

LOCATION: Theran - Iran

DATE: Sept 2019 - Jan 2020

The project aims to design an extension in the dormitory area to compensate for the current deficiencies and create a pleasant space for students.

* The current site of the dormitory

4

Site

The project’s location is on the hillsides of the Alborz mountains, in the Valenjak dis trict in the north of Tehran and the current campus of Shahid Beheshti University.

Favourable weather and fabulous view around are the unique features of the site. The higher height compared to the sur rounding areas has given it an advantage over the surroundings.

Also, due to the distance from the city centre it is away from the hustle and bustle of the city, and indescribable calm and quietness exist in the region.

5
Site Plan →

The Formation stages of Residental phase ↓

The Project Site Plan ↓

The project plot

The total volume of the project

Formation of the secondary axis

Formation of the main axis

1 2 3 4 5

Reducing the project volume

On the west side of the site, Derkeh village; on the north side Alborz mountains; on the east side Daneshjou boulevard and Valenjak district; and on the south side Shahid Beheshti University are located.

The project consists of two main phases: the first is a public space with the uses of a restaurant, meeting hall, and study hall, and the second includes residential areas.

The elongated proportions of the site caused the central axis to be placed in the middle and formed positive and negative spaces around it. In addition to creating a communication axis, this axis creates a continuous and unobstructed visual connection from the beginning to the end of the site. At the end of this axis, the view and skyline of Tehran are visible. Therefore, the view of the city has been preserved from all over the site.

6

Phase

The first phase includes public spaces located at the entrance of the complex. This building has a central courtyard with oth er areas around it. The yard reminds Iran’s past architecture, and the surrounding spaces are accessed from this courtyard.

This building has two floors, the ground floor is a restaurant and meeting hall, and the upper floor is two study halls with expansive balconies all around that have a unique view from all sides; view of the mountains of Tehran from the north and the city from the east, west and south. Its roof, perched on tall round columns, is like a canopy that covers the spaces below, and because of the inward slope, it is reminiscent of the roofs of Shemiran villages. These features have created a formal ar chitecture that contains elements of Iran’s past architecture and has created a beautiful atmosphere on the hillsides of the Alborz mountains.

1. The project total volume

Formation of centeral courtyard

Formation of main axis

4. Removing solids to create Terraces 5. Placing the roof as a canopy 6. Creating the inward slope

* The Formation stages of the Public phase ↑

7
1
2.
3.
8

Phase

The second phase consists of two residential blocks, which are placed symmetrically on the sides of the middle axis. Access to these blocks is provided through pillared corridors that continue to the end of the site. In front of each block is a small yard with green space, surrounded by the U-shaped block, and these green spaces are separated from the outside by the corridors. . Each block has two floors and 16 rooms; each room has enough light and a great view of the city.

9
2
10 1. The project total volume 2. Formation of main axis 3. Placement of stairs on the main axis 4. Removing solids to create green space and provide more lights and views 5. The main rhythm shaping the facade of the blocks 6. Formation of Pillard Coridors The Formation stages of the Residental phase →

The facades of the blocks are based on the main rhythm that includes all the blocks and gives the project unity. In addition to the facade, this rhythm is also present in the pillar corridors. ↑

11 Rythm →
12 ← A sequence of life - balconies of the facades

1. A 4 bedroom according to standards; The beds are on two floors, and each bed is the most private space of one person.

2. Beds can be separated from the room environment with a shutter or curtain and become a private space during sleep

3. People in each room live together for 2 to 4 years and are constantly interacting with each other at all stages. Such as eating dinner, playing and...

4. There is a small sink in each room. Meanwhile, each floor has a shared kitchen

13 21 3 4
14
Pillard Coridor s →

Oudlajan Revitalization

During the 230 years that Tehran be came the capital of Iran, significant changes have occurred in this city. Pop ulation growth and rapid political and social changes have occurred during these years. in the result, Tehran's histor ic districts, which are the city's historical heritage, have been destroyed and ne glected.

Oudlajan neighbourhood is one of the oldest in Tehran, containing many his torical buildings. Oudlajan was the city's most prominent and affluent neigh bourhood during the Qajar era, but it lost its importance over time.

Due to its adjacency to Tehran Grand Bazaar, most of its houses have been turned into industrial workshops and warehouses.

Neglecting this historical heritage has caused most of these areas to become uninhabited and its people to migrate to more modern parts of the city. Today,

it can be seen that people who still live in these areas are facing severe cultural and social problems. Also, the irregular construction around these areas has af fected their historical aspects.

Oudlajan bazaar is the core of the dis trict. Some efforts have been made to re vive it, but the neighbourhoods behind the bazaar are still in poor condition.

This project tries to take a small step in improving the conditions of one of the essential historical areas of the city with the approach of infill architecture and construction in the historical context.

15 # 02
PROJECT: Revitalization of Oudlajan LOCATION: Theran - Iran DATE: Jan 2018 - Jun 2018

Site

Oudlajan Bazaar forms the neighbourhood’s main structure, and essential passages are branched from it. *This small local market starts from "15 Khordad" Street in the south and reaches "Zamir Nik "Alley in the north.

The Bazaar has been preserved after years, but parts of it have been lost over time. Although today the bazaar has been beautifully restored, the behind parts of the bazaar are still in poor condition.

On the sides of the Bazaar, empty or aban doned plots need to be constructed based on in-fill architecture principles to revive the bazaar and neighbourhood.

Plot No.1 :

AREA: 870 m2

Current Function: industrial workshop

Plot No.2 :

AREA: 623 m2

Current Function: Abandoned carwash

Plot No.3 :

AREA: 2260 m2

Current Function: A set of destroyed buildings

Plot No.4 :

AREA: 924 m2

Current Function: open warehouse

16
1 2 3 4
4 plots in the Oudlajan's Bazaar ↑

Site

The project is located in Oudlajan Bazaar and is a complex consisting of 4 buildings in four plots; 2 residential buildings for tourists and two cultural buildings.

1. The residential complex is a place for tourists who come to this district from Iran or other countries and decide to experience life in this neighbourhood for a few days. These buildings consist of different types of rooms, restaurants, and other service spaces. Each building com plements the other.

2. These buildings, In addition to completing the Bazaar's role as a commercial centre, can be used by people who still live in this neigh bourhood. In this way, the lack of cultural spac es in the area is slightly compensated, and the Bazaar, and the shopping centre, becomes a platform for forming cultural spaces and activ ities.

Building No.1 :

Function: 3 classrooms - 2 workshops - 2 handicraft exhibition

Building No.2 :

Function: 10 rooms - Office of tourist services - restaurant

Building No.3 :

Function: 24 rooms - restaurant - 2 shops

Building No.4 :

Function: gallery - theatre room - library - cafe

17
1 2 3 4
4 Designed Building in the Oudlajan's Bazaar ↑

Passages

Two cultural-commercial buildings and two residential buildings are lo cated in four empty plots in the oud lajan bazaar, and the bazaar line con nects these buildings like a chain. Also, the passages and side alleys that branch off from the market are marked in the picture.

TThe dense urban texture around the market, abandoned or ware houses, is visible. This part behind the Bazaar is not in good condition and needs more attention.

Turning this dense part into ware houses and workshops has created a dangerous environment for peo ple. By converting houses to these uses, people have left their homes and gone to the modern parts of the city. This has caused this area to become a gathering place for drug addicts and homeless people. Mazelike alleys with a narrow widths have caused less security by being away from the Bazaar lane.

*← The project, Bazaar lane, Passages and the dense urban texture of the oudlajan Bazaar

18

Geometry

The geometry of the project, the ar chitectural elements and the materi als used are taken from the principles of Iranian architecture, which were abundant in Odlajan many years ago.

Considering the height, old passages, access to the bazaar and creating an Iranian character and identity were among the most critical issues in the project.

1. project's total volume

Project's main yard

Project's secondary yard; the external yard is a public space for the neighbourhood

4. Project's axis that connects the yards of the project

5. Project's private yards that can be use by the family rooms

6. Project's main iwan that brought the main yard inside

Exploded 3D of Plan ↑

19
2.
3.

GROUND FLOOR:

The grand floor consists of a courtyard in the middle sur rounded by residential spaces. 2 Iwans face each other, giving the yard an authentic character. This floor is consist of 22 residential rooms with direct connection to the yard for every room. 4 rooms have their own private open space wich can take by two family.

FIRST FLOOR:

The first floor consists of two rooms. Access to this floor is provided by staircases on one side of Iwan and is part of the facade. Also, there is a small yard with a visual connection to the outdoors (Oudlajan neighbourhood and plaza) and inside. This yard is behind the Iwan.

20
21 The main block ↑

The project's total volume

Removing the selected parts of the volume

1. 2. 3.

The form is converted to 3 pieces by removing them

The Formation stages of the main block ↑

Removing solids to cre at upper yard, Iwan and facade

Placing two staircases in the gap between solids

4. 5. 6.

Placing the layers of the facade wich create the courtyard's wall

22

Design Elements

The two Iwans on both sides of the yard, which are used as semi-open spaces, are elements that tell the identity of the building in conversa tion with the yard and link the proj ect to the past of Oudlajan. Stairs are located on the side of the Iwan and form a part of the surrounding façade of the courtyard.

The entrance of the complex, sepa rated from the outside, first enters the courtyard and then gives access to every space.

23
3D isometric section ↑

↑ Diagram of Bazaar, passages and the Plaza

Although this geometry has turned the project into an in troverted building, outside the project recreates a part of the lost commercial space of the bazaar in the form of a small yard and establishes a dialogue with the neighbour hood and the passage.

24
Outdoor Plaza

Outdoor Plaza

On the north side of the proj ect, a small courtyard was cre ated in one of the passages of the bazaar, which completes the role of the bazaar as a pub lic space which has faded.

In addition to the importance of these spaces for the market, the absence of such areas in the neighbourhood is quite noticeable. Therefore, this small plaza can be used by vis itors and residents of the com munity and is a unique space in the heart of Tehran's histori cal context to spend time.

25
↓ 3D isometric of Plaza
26 Rooms

Rooms

A. A duplex room which is placed in the main block

B. Set of rooms with a shared private courtyard

27
28

Gandhi MultiFunctional Complex

With the rapid change of social and economic circumstances in high-den sity urban areas, urban and building space requirements are changing quickly. Multi-functional buildings, in re sponse to the rapid growth of cities and the change in social conditions, have opened their place in city spaces.

Multi-functional buildings collect diverse functions and activities in one build ing and, simultaneously, have become a popular type of building among city people.

Many believe that a Multi-functional building compared to some separated single-functional buildings, has a high er efficiency over time. These buildings are occupied by different users with dif ferent needs and can effectively reduce terrific in the city streets.

Although multi-functional buildings are one of the results of the growth of mo dernity, in the past centuries, there was an excellent example of multi-functional space in the cities of Iran; Bazaars with diverse activities and functions such as trade centres, restaurants, teahouses, mosque, passage, etc. was the most vi brant part of the city which was spread like a vein in the body of the town.

Today, with the increasing population of cities and reduced urban space resourc es, multi-functional buildings, unlike bazaars, grow in limited footprints with more height which has different com plexity in the design process.

29 # 03
PROJECT: A commercial, cultural and office complex LOCATION: Theran - Iran DATE: Sept 2018 - Jan 2019

Site

Gandhi street in Tehran, by Gathering buildings with diverse functions, is one of the most important streets in the capital. Many offices, health centres and trade centres are gathered in this street and its surrounding.

The project is open from 4 sides; At the north is adjacent to a park; the south is adjacent to an alley; the east is adjacent to valiasr street, and the west is adjacent to Gandhi street. The main accesses of the complex are provided from Gandhi and valiasr streets. Also, limited pedes trian access from the park and service access from the alley.

Furthermore, the arrangement of spac es with different functions and proper connections led to the design of the form in more detail.

The project on the ground floor, with transparent walls, establishes a proper dialogue with the city and passers-by.

Site plan of the project

30

Section

The project is located between Val iasr and Gandhi streets. Therefore the 17-meter difference between these streets is a significant problem.

Access to the project is provided from these two levels, and the shopping centre has an axis connecting these two levels. In Gandhi and Valiasr Street, a row of columns specify the entranc es and make a proper connection be tween the project and the sidewalk.

The project consists of three floors of parking, a 5-floor shopping centre and cinema and six-floors office units.

The office with lower construction density is located on the northern side of the site, above the commercial part.

Section of the project →

31
Valiasr street Gandhi street

Food court

5 units

Cinema;Void;

Capacity: 500 people

Double-height entrance lobby as an urban space

Banks;

In adjacency to Gandhi .st

Commercial center

Number of shops: 34

Waiting hall;

Area: 1220 m2

Gallery;

Area: 1200 m2

↑ Gandhi complex is a building with diverse functions such as a shopping centre, cin ema, food court, café, gallery, bank and office units. This building, with 12 floors height from valiasr and eight floors height from Gandhi street, is located at the intersection of Gandhi, Hemmat and valiasr street. These 12 floors comprise 3-floor parking, a five-floor commercial and food court, a 1.5-floor cinema, a 0.5-floor gallery and six office floors.

↑ Seventeen meters heights between two levels of Valiasr and Gandhi streets is one of the site challenges. *To solve this challenge, the commercial area of the project connects these two levels by creating a straight axis that starts and ends on en trance points. *This direct axis is well understood and readable and has become the central concept for the formation of the void and commercial areas in the project.

32
Commercial + Cultural 1

floor:

office units

11th floor:

office units, small lobby

Offices 2

The office space consists of an integrated empty space as the central core in the mid dle, surrounded by office units. The southern side of this open space is free and forms the entire south façade. In addition, on the south facade, there is a narrow glass box consisting of communication corridors directly attached to the void.

By placing trees in this space and turning the void space into a new space, their green ery can also be seen in the southern facade of the project.

floor:

office units, small lobby

9th floor:

office unit

floor:

Shared workspace for rent to free lancers or anyone who may not have a central office.

7th floor:

office unit , Restaurant, Lobby

Plans of office complex ↑

33
10th
12th
8th
3
5
4
6
6

3D section of office complex; The middle void and its corridors →

34
35

Office Unit

The duplex office unit, one of the types of office units, has been specified in a 3D explod ed view.

36

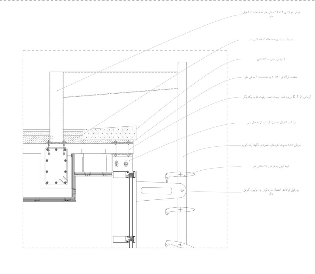
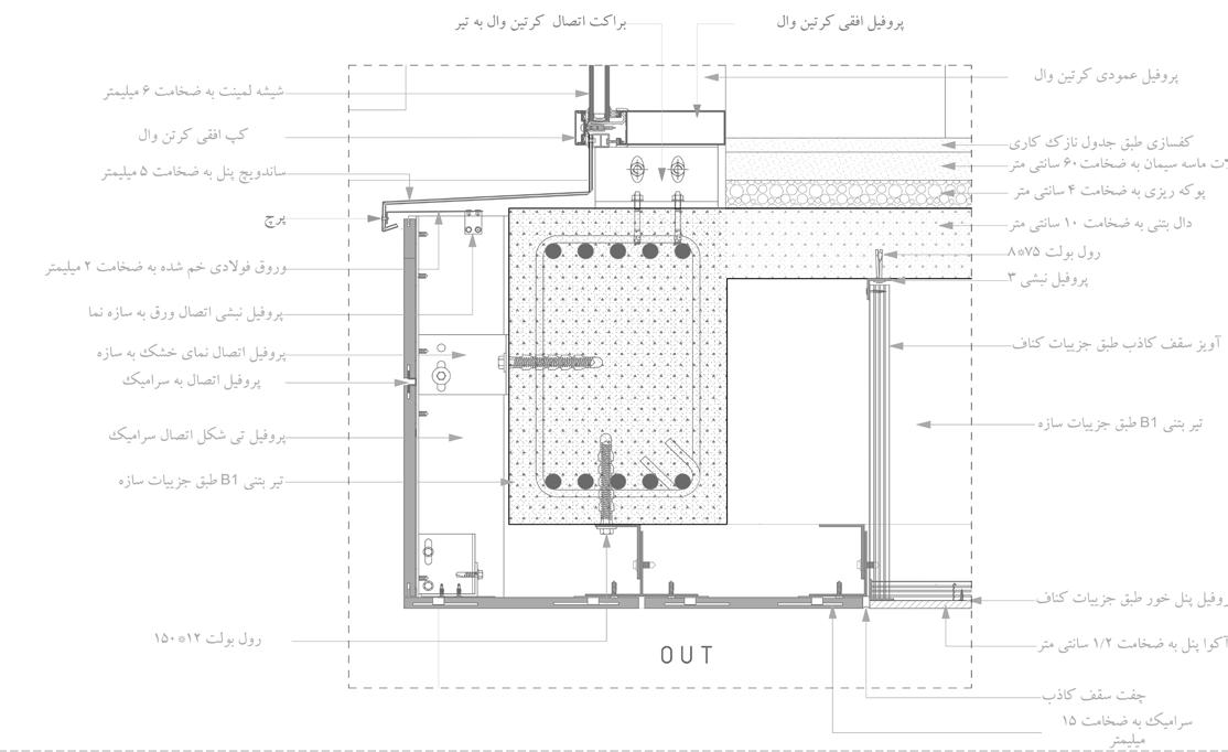
Façade

The southern façade consists entire ly of a transparent curtain wall con nected to the edge of the concrete slab by U-shape brackets. in front of the curtain wall, there is a screen consisting of horizontal aluminium louvres that control the southern sunlight. The louvres blades can ro tate at different angles according to the needs of the building. The possibility of rotating the blades is provided by gears that change the angle manually by the users of the building.

The project's façade is mainly com posed of transparent walls to in crease the visual connection be tween the building and the outside and prevent massive solid walls in urban facades.

Louvers

Curtain wall

Exploded view of the south facade

37
38 ← South facade of the office complex
39

Skylight

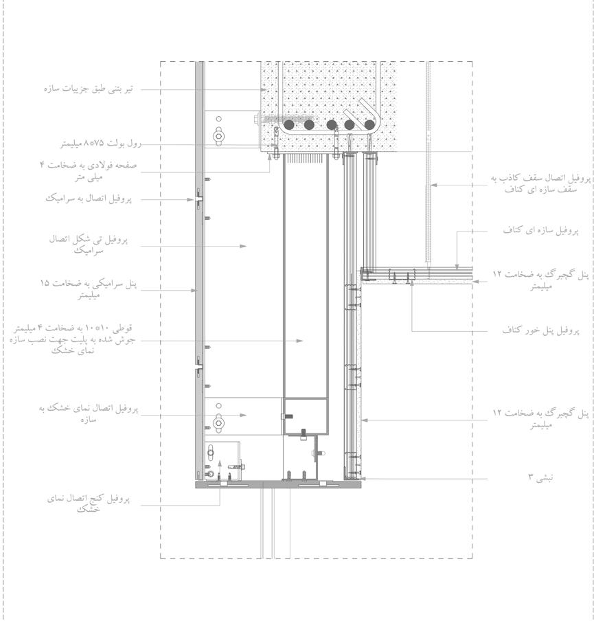
On the top of the roof of the office complex, there is a 10 * 24 skylight to provide more light for the office units and the central void.

This skylight consists of steel struc tural trusses, aluminium mullions, Low-E glass panels and aluminium cover caps. At the corners of the sky light, there are spandrel panels to cover the edges.

The upper surface of the skylight di rects the rainwater to the side with a slope of 2.5%.

↑ Exploded skylight parts

40
41 ← 3D exploded view of the Skylight

Skylight Construction Sequences

Rebar work of beam

2 3 4

Placing the steel plate on the beam before concreting

Pouring concrete and fastening the bolts after the concrete hardens Connecting the steel columns to the plate

42
1

Putting the truss in its place

Fastening the bolts and connecting the truss to the column

Placing aluminium structure for glass connecting

43
5 6 7

Placing the aluminium cover cap profile to cover the steel truss

Fixing glass panels on aluminium mullions and spandrel panels in the corners

44
8 9
45

Structure

The project's structure comprises rig id concrete frames with shear walls, the most common and economical structural system.

The arrangement of structural ele ments in spaces with different uses from the top to the bottom of the building has been another challenge of this project.

This structure transfers a load of all floors to the ground in an integrated way.

46

A section of rebar work into concrete frames which reinforce concrete for construction purposes.

47

A-A

SOUTH FACADE

NORTH FACADE

48 Wall Section
B-B C-C

A-A wallsection

49

B-B wallsection

50

C-C wallsection

51
52

Modiriat Cultural Center

Cultural centres are considered one of the essential cultural infrastruc tures that can play an influential role in the cultural dynamics of society, or ganising and cultivating people’s cul ture. They are places for interaction between people in a neighbourhood or city.

This project aims to build a cultural centre in one of the empty plots of the city, which today has become a dangerous place because of robbers and homeless people.

Site

The project is located in the west of Tehran, next to the “Modiriat bridge” and the "Management University".

In this high-traffic area, there is an empty plot bounded from the north to the “Modiriat Bridge”, from the west to the University of Manage ment, from the east to the “Chamran highway”, and from the south to an empty plot with some trees.

The main accesses to this project are provided through “Chamran high way” and “Moditiat Boulevard”. By crossing the “Chamran highway” and “Modiriat Boulevard”, the location of this project is completely visible, and its form design has been considered from different angles.

53 # 04
PROJECT: A cultural center for west of Tehran LOCATION: Theran - Iran DATE: Feb 2018 - Jul 2018
↓ site plans

Form

The project’s main idea is to design a building that attracts attention from dif ferent sides and is recognised as a land mark for the city.

The overall form of the project is a free-standing pyramid. The empty and flat area surrounding the project em phasises the form and gives it an iconic appearance. Reciprocally, the glass pyr amid affects the devoid environment like a centre of gravity. This open space is a public space for people to gather and interact.

The project's spaces are organised un derground to prevent the increase of the pyramid's volume, reduce its impact on the surrounding environment, and maintain the human scale.

All the pyramid's walls are transparent, creating a proper visual connection be tween the inside and the surroundings and reflecting all the events inside the outside to make urban life more dynam ic.

The site’s connection with the north ern boulevard is through the stairs that seem to have been poured on the slope of the ground and are inclined towards the pyramid.

↑ 3D exploded site plans

54

The

to a pyramid with

the northern face

55 Form 1 2 3 4
project's total volume Converting from a cube to a pyramid Convert
a triangle base Changing

The spaces under the pyramid have breaks in the plan derived from the primary geometry in the project. The surface of each floor is empty in parts, and this open space flows seamlessly from the bottom of the pyramid to the top of the whole project.

The ground floor has an educa tional function consisting of sev eral classes, the -1 floor is dedi cated to the study and shared workspace, and the -2 floor is de voted to the gallery and muse um with a courtyard below the ground floor.

Work Space

Museum- Courtyard

3D exploded plans

56 Educational Function Glass Pyramid Shared
Gallery-
-1 -2 0 Spaces
57 -1 floor, Shared work space →
58 ← -2 floor, Shared work space

1. Total volume of the project, which hides the rear view

2. By reducing these parts a pyra mid will be created

3. The pyramid reveals the view and has less impact on the surroundings

59

Section

The project's spaces are organised underground, which an asymmetric glass pyramid covers.

The main lines of the pyramid geometry contin ue on the lower floors so that all parts of the proj ect are in complete unity.

The project is an asymmetric pyramid. The pres ence of a fracture in its northern face has in creased this asymmetry and broken its scale in the eyes of the audience. Moving this face inside has turned it into the main front of the pyramid and invites the visitor to the project.

60
61
62 # 05 International Velux Award * Competition PROJECT: Daylight in Architecture LOCATION: DATE: May 2022 - Jun 2022 Group Design*

Sea House

63 # 06 Dubai
PROJECT: Designing a house in jumeirah beach LOCATION: Dubai, United Arab Emirates DATE: May 2022 - Jun 2022 Group Design* * Competition Rank: Finalist
72

Turn static files into dynamic content formats.

Create a flipbook
Issuu converts static files into: digital portfolios, online yearbooks, online catalogs, digital photo albums and more. Sign up and create your flipbook.