Portofolio Aminah

Page 1

ISI PORTOFOLIO

COVER

DAFTAR ISI PROYEK FREELANCE

IRONING ROOM (2022) RUMAH TINGGAL R (04/2022)

HYBRID CLASS (04/2022-06/2022)

MEETING ROOM (06/2022-11/2022) INTERIOR RUMAH TINGGAL P (07/2022-11/2022) FOTOGRAFI FOTOGRAFI:MODEL EKSPLORASI STUDIO/KULIAH

FOTOGRAFI:AKSESORI ALISHA (2022) PROFIL SAYA

3) HYBRID CLASS (04/2022-06/2022) 4) MEETING ROOM (06/2022-11/2022) 5) INTERIOR RUMAH TINGGAL P (07/2022-11/2022) PROYEK FREELANCE
IRONING ROOM MEMBUAT DPT : RUMAH TINGGAL R SELANJUTNYA

RUMAH TINGGAL R

PROJEKFREELANCEMEMBUATGAMBARDPTUNTUKKEPERLUANIMB

RUMAH TINGGAL R
GAMBAR DPT INI DIBUAT UNTUK KEBUTUHAN IMB KLIEN. GAMBAR TIDAK MELIBATKAN PROSES PERANCANGAN, MURNI HANYA MENGGAMBAR KONDISI ASLI BANGUNAN.
TAMPAK ATAS 9 m 7.8 m TAMPAK BELAKANG TAMPAK SAMPING TAMPAK DEPAN TAMPAK SAMPING
RENDERAN HYBRID CLASS - A DIRENDERMENGGUNAKANENSCAPE HYBRID CLASS
TAMPAK SAMPING TAMPAK BELAKANG
7.5 m 13.5 m
TAMPAK SAMPING TAMPAK DEPAN TAMPAK ATAS
RENDERAN HYBRID CLASS - A
ENSCAPE
DIRENDER MENGGUNAKAN

HYBRID CLASS

SELANJUTNYA

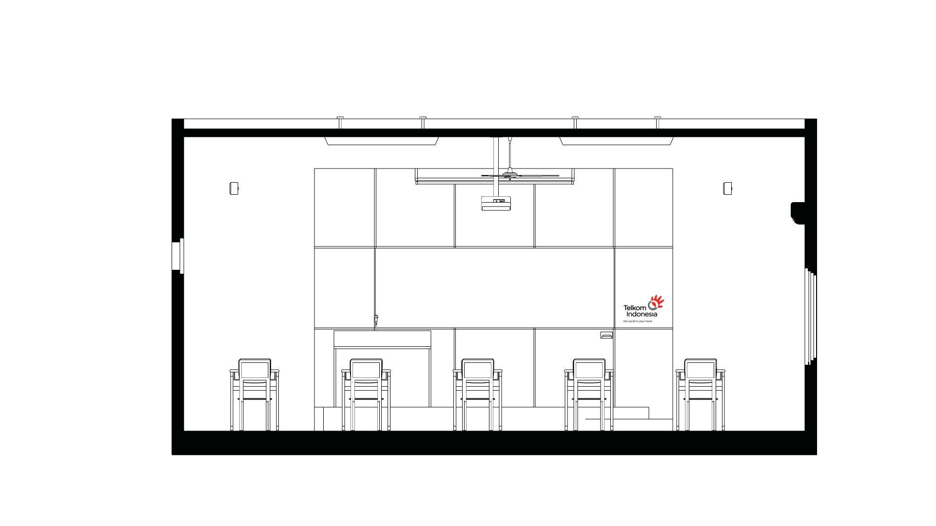
MEETING ROOM

MEETING ROOM

KONDISI EKSISTING

INI ADALAH PROYEK FREELANCE MEMBUAT RANCANGAN UNTUK DIEKSEKUSI OLEH KLIEN. AMINAH SEBAGAI ASISTEN DESAINER INTERIOR MELAKUKAN SURVEI TAPAK, DISKUSI DENGANKLIEN,SERTAMEMBUATDANMENGAJUKANRANCANGAN3DDENGANPENGAWASANDAN ARAHANDARIDESAINERUTAMA.
DENAH EKSISTING DENAH KOSONG EKSISTING DENAH FURNITUR EKSISTING +70mm +70mm +0 1500 7577 1425 1425 5400 1500 7577 1425 1425 5400 STOP KONTAK AC WIFI/ TELP? DENAH ELEKTRIKAL EKSISTING RUANG KERJA RUANG MEETING DENAH DEMOLISH KEBUTUHAN DESAIN KEBUTUHAN KLIEN : RUANG UNTUK MEETING ISI RUANG : AREA PENERIMA TAMU, AREA RAPAT, DAN AREA KERJA REQUEST KLIEN : - PENGGUNAAN 2 FURNITUR (MEJA RAPAT DAN CREDENZA) DARI RUANG SEBELAH - PENAMBAHAN 5 MEJA KERJA - LAYAR PRESENTASI MOVEABLE DENGAN TV PORTABLE - PEMAKAIAN KEMBALI SOFA DAN MEJA TAMU MEJA RAPAT 2400x9 00x750 LEMARI KECIL 1500x5 00x800

AREA PENYIMPANAN & PAPAN CATATAN AREA PENYIMPANAN ENTRANCE

AREA RAPAT

AREA KERJA

AREA PENERIMA TAMU

ENTRANCE

DENAH

RANCANGAN
VISUALISASI RANCANGAN DIRENDER MENGGUNAKAN ENSCAPE
AREA KERJA
AREA RAPAT AREA STORAGE
AREA TAMU
VISUALISASI RANCANGAN DIRENDER MENGGUNAKAN ENSCAPE
AREA RAPAT AREA RAPAT
KERJA
AREA KERJA AREA RAPAT
&

MEETING ROOM

SELANJUTNYA

INTERIOR RUMAH TINGGAL P

INI ADALAH PROYEK FREELANCE MEMBUAT RANCANGAN INTERIOR UNTUK RUMAH TINGGAL KLIEN YANG SEDANG DALAM MASA PEMBANGUNAN (DARI NOL). PROYEK INTERIOR DIMULAI SETELAH ADA RENCANA TAPAK SERTA REFERENSI RANCANGAN YANGDIINGINKANOLEH KLIEN. KLIEN ADALAH DESAINER INTERIOR UTAMA, DAN AMINAH SEBAGAI ASISTEN DESAINER INTERIOR. SAYA MEMBUAT DAN MENGAJUKAN RANCANGAN 3D INTERIOR DENGAN PENGAWASAN DAN ARAHANDARIDESAINER UTAMA.

P
INTERIOR RUMAH TINGGAL
DIBUATDENGAN ADOBE ILLUSTRATOR
TATALETAK FURNITUR
IDERANCANGANINTERIOR RUMAH TINGGAL PWI
GAYA RANCANGAN YANG DIPAKAI ADALAH JAPANDI MINIMALIS
1F-TERAS 1F-RUANG TAMU 1F-KAMAR TIDUR TAMU 1F-RUANG MAKAN 1F-DAPUR BERSIH 1F-DAPUR KOTOR VISUALISASI RANCANGAN DIRENDER MENGGUNAKAN ENSCAPE
2F-RUANG KELUARGA 1F-RUANG KELUARGA 2F 2F-KAMAR TIDUR UTAMA 2F-KAMAR TIDUR UTAMA 2F-KAMAR TIDUR UTAMA VISUALISASI RANCANGAN DIRENDER MENGGUNAKAN ENSCAPE
2F-RUANG KERJA 2F-KAMAR TIDUR KAKAK 2F-KAMAR TIDUR KAKAK 2F-RUANG LAUNDRY 2F-KAMAR TIDUR ADIK 2F-KAMAR TIDUR ADIK
RANCANGAN
MENGGUNAKAN ENSCAPE
VISUALISASI
DIRENDER

RUMAH TINGGAL PWI

SELANJUTNYA

FOTOGRAFI - MODEL EKSPLORASI

FOTOGRAFI
1) MODEL EKSPLORASI STUDIO/KULIAH 2) AKSESORI ALISHA
MODEL EKSPLORASI STUDIO/KULIAH “SPACE” EKSPLORASI MATERIAL PLASTIK MEDIA SEDOTAN DAN TALI RAFIA. ALAT POTRET: SAMSUNG NOTE 2 DIEDIT MENGGUNAKAN ADOBE LIGHTROOM CLASSIC “SPACE” EKSPLORASI MATERIAL KAWAT. ALAT POTRET: SAMSUNG NOTE 2 DIEDIT MENGGUNAKAN ADOBE LIGHTROOM CLASSIC
“ADJUSTABLE SPACE” MODEL EKSPLORASI RUANG DENGAN METODE ANYAM KERTAS ALAT POTRET: LG Q6+ DIEDIT MENGGUNAKAN ADOBE LIGHTROOM CLASSIC “SPACE” EKSPLORASI MATERIAL KERTAS. ALAT POTRET: SAMSUNG NOTE 2 DIEDIT MENGGUNAKAN ADOBE LIGHTROOM CLASSIC MODEL EKSPLORASI STUDIO/KULIAH FOTOGRAFI
“SPACE” EKSPLORASI MATERIAL KAYU MEDIA TUSUK SATE. ALAT POTRET: SAMSUNG NOTE 2 DIEDIT MENGGUNAKAN ADOBE LIGHTROOM CLASSIC MODEL EKSPLORASI STUDIO/KULIAH FOTOGRAFI
“SPACE” EKSPLORASI MATERIAL PLASTIK MEDIA GELAS AIR MINERAL. ALAT POTRET: SAMSUNG NOTE 2 DIEDIT MENGGUNAKAN ADOBE LIGHTROOM CLASSIC MODEL EKSPLORASI STUDIO/KULIAH FOTOGRAFI
FOTOGRAFI:MODEL EKSPLORASI FOTOGRAFI: AKSESORIS ALISHA SELANJUTNYA

AKSESORI ALISHA

ALISHAADALAHSEBUAHPENYEDIASEWABAJUPENGANTIN,FOTODIAMBIL SAATTAHUN2021LALU.

AKSESORI ALISHA FOTOGRAFI
ALAT POTRET: CANON EOS M3 DIEDIT MENGGUNAKAN ADOBE LIGHTROOM CLASSIC ALAT POTRET: CANON EOS M3
AKSESORI ALISHA FOTOGRAFI
DIEDIT MENGGUNAKAN ADOBE LIGHTROOM CLASSIC

Turn static files into dynamic content formats.

Create a flipbook
Issuu converts static files into: digital portfolios, online yearbooks, online catalogs, digital photo albums and more. Sign up and create your flipbook.