Amer Hamdan Architectural portfolio

Page 1

Amer Hamdan Architectural Portfolio #2023

About me!

My name is Amer Hamdan, a highly creative JEA registered architect with +6 years of experience in Jordan and in Germany

I am a self motivated, passionate, enthusiast and socially skilled team leader.

I am seeking opportunities to contribute to and learn from the architecture and virtual reality world, both locally and internationally.

My goal is to transform the understanding of architecture and real life through the different digital realities.

i

Page 16 - 17

Modern Baptist School

IB School and managment extension building

MenaITech (IT Solutions Company)

Head quarters offices

Commodity Exchange Hanger

Visualization and post production

Villa Kakish

A - Classified residential building

Abdullat Real Estate Ltd.

Head quarters office and show room

Research and Innovation Incubators

Academic graduation project

Studio X by Titan Visualizations

Walkthrough and interactive VR

Page 18 - 19

Ajloun Hills Camp

Touristic serviced cottages

ii
Table of Contents Page 4 - 5 Page 6 - 7 Page 8 - 9 Page 10 - 11 Page 12 - 13 Page 14 - 15

Modern Baptist School

Project Description

IB school and management extension building.

Extention building as a connection between two existing buildings that forms the elementary and the secondary school.

Area and Location

Role in Project

Al-Rabyeh, Amman, Jordan

Total built-up area 11,404 m2

Design Architect

Site visiting and analysis, space planning, shop drawings and 3D modeling, and rendering.

Skylight detail Section B-B

Action area

4
5

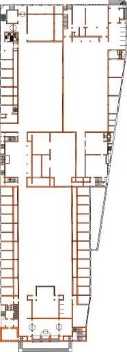
MenaITech Offices

Project Description

Area and Location

Headquarters offices

Existing site demolishing, interior redesigning and execusion.

Um Summaq, Amman, Jordan

Total area of work 803 m2

Design Architect

Role in Project

Project design, shop drawings and 3D modelling, rendering supervision and project management.

Custom feature wall details

Demolishing plan

Built plan

6
7

Commodity Exchang Hanger

Hendrik Berlage commodity exchange hanger documentation

Existing 3D model realization, rendering and post-producing.

Amsterdam, Holland

The total area of work 15.370 m2

Visualizer/ Storyteller

Visualization, research, 2D drafting rendering and post-production

Note: this project is executed in two phases, during university as documentation and after as a freelance visualization.

8
Project Description Perspective analysis Section A - A Area and Location Role in Project Built plan
9

Villa Kakish

Project

Description

Area and Location

Role in Project

A- classification residential private villa

Design, construction, supervision and project management

Thhair, Amman, Jordan

Total built-up area 1120 m2

VR representation and rendering

Shop drawings, 3D exterior and interior modeling, rendering, VR Walkthrough with Interactivity and animation.

Section A-A Site plan

Built furniture plan

10
11

Abdullat Real Estate Office

Project Description

Area and Location

Role in Project

Interior designing and supervision

Tendering, interior design, construction

Demolishing plan

Built plan

Shmeisani, Amman, Jordan

Total built-up area 230 m2

Design Architect

Interior planning, 3D modeling and rendering

Reception feature detail

12
13

RIIA - Amman

Project

Description

Area and Location

Role in Project

Section A-A

Graduation project

Research and innovation incubators.

Raghadan, Amman, Jordan

Total built-up area 3350 m2

Designer

Data gathering and analyzing, planning, drafting, modeling, rendering, visualization and presentation.

Ground plan

Workshops interior

14
15

Studio X by Titan Visualizations

Project Description Rendered plan

Area and Location

Role in Project

Widget design and navigation

Single-family modern studio

Interactive walkthrough and VR

Hamburg, Germany

Total built up area 50 m2

Visualizer, programmer

Rendering, texturing, file hierarchy organization, interactivity programming, widget design and VR file preparation.

Functionality and programming

16
17

Ajloun Hills Camp

Project Description

Touristic serviced cottages

Design proposal for small units that aims to satisfy functionality and the natural experience.

Proposed plan

Area and Location

Role in Project

Ajloun, Amman

Total built-up area 20 m2

Visualizer, designer

Modeling, texturing, environment adaptation, rendering and client presentation.

Back perspective analysis

Roof detail

18
19
Thank you Amer Hamdan Jubaiha, Amman, Jordan amer-sawalha@hotmail.com +962795234774

Turn static files into dynamic content formats.

Create a flipbook
Issuu converts static files into: digital portfolios, online yearbooks, online catalogs, digital photo albums and more. Sign up and create your flipbook.
Amer Hamdan Architectural portfolio by Amer Sawalha - Issuu