WORK EXPERIENCE FOLIO

Page 1

ABOUT THE FIRM

NCA is a Cross-Disciplinary Design Practice Rooted In Integrity, Synergy And Creation.

Architect Neelesh Chopda has a deep appreciation of rational building design and a profound understanding of the use of construction materials. His early projects set a precedent for the criteria that would reveal the practice's design approach-structure, space and skin.

Over the last two decades, his demonstrated excellence in master planning and building design has left a significant mark, with each plan and composition finely crafted to help enrich lifestyles and local communities His celebrated works across the various verticals of design have lead to his meteoric growth, with projects now ranging nationwide, Today, the firm's portfolio covers various sectors and the studio is proud of its well appreciated expertise and substantial experience in bringing to fruition residential projects, retail and commercial complexes, transport projects, educational facilities. industrial sector construction, large-scale arts and leisure schemes, and master planning.

At the studio, we believe that every architectural design includes 3 aspects-beauty, utility and psychology. Architectural design must satisfy the human psyche of growth. Design should become an aspiration, and Its harmony with human psychology and the ecosystem is what drives our design thinking. Through our projects, we aim to establish a deep. "The Circle of Life" harmonious relationship between the user and the space, as 'space is nothing but just a lump of materials without its user. Official Logo of NCA.

MY EXPERIENCE

The internship experience, just before the design dissertation is a very vital experience for a student

It gives one the practical exposure of the multi-faceted course. My tenure at NCA, Pune served the above mentioned purpose very well. Not only it has been a good educating experience for me, but also a thought provoking one. Within a short period of time.

I had the opportunity to work on a variety of projects ranging from small residential bungalows to big public projects & huge master planning projects. All of which gave me a chance to work on tender drawings, presentation drawings, 3D models along with multiple site visits. It has been a very rich & resourceful experience for me; be it the office work or the site visits with the principal architect himself.

This period of professional practice has not only helped me clear a huge step of this tedious course, but also has provided me with a clear & sturdy vision about my career ahead..

Swarnabhoomi, Central India's largest township, one of the firm's largest projects.

“The Circle of Life” Logo of NCA
TABLE OF CONTENT 01 PANCHGANI RESORT, PANCHGANI 02 SWARNABHOOMI, RAIPUR 03 KORBA HOUSE, KORBA 04 SATPUDA SCHOOL, BETUL(M.P.) 06 ABHINAV KOTHARI,JAIPUR 07 RAMA CITYLIFE, BILASPUR (CG.) 08 SAHIL HOUSE, PANCHGANI 09 MANISH SHAH, AAMBY VALLEY 10 AAMBY VALLEY HOUSE 11 AMIT MASIH, RAIPUR 12 FUNDHAR, RAIPUR 05 CHATURVEDI HOUSE,RAIPUR

VILLAS AT PANCHGANI 01

PLANNING DESIGN DEVELOPMENT VISUALIZATION
SITE PHOTO‘S

AREA CALCULATION VILLA’S

TOTAL AREA CALCULATION

VIEWS

SWARNBHOOMI ,RAIPUR

02
PLANNING DESIGN DEVELOPMENT WORKING DRAWING

KORBA HOUSE, KORBA CHHATTISGARH

03
ELECTRICAL DESIGN DEVELOPMENT WORKING DRAWING

SATPUDA SCHOOL,BETUL (M.P.)

04 ARCHITECTURE DRAWING DESIGN DEVELOPMENT WORKING DRAWING

CHATURVEDI HOUSE, SWARNABHOOMI RAIPUR 05

ELECTRICAL DESIGN DEVELOPMENT WORKING DRAWING

ABHINAV KOTHARI ,JAIPUR

ELECTRICAL DESIGN DEVELOPMENT VISUALISATION

06

RAMA LIFE CITY, BILASPUR CHHATTISGARH

DESIGN DEVELOPMENT

07

SAHIL HOUSE, PANCHGANI

ARCHITECTURAL DRAWING

DESIGN DEVELOPMENT VISUALIZATION

08

MANISH SHAH, AAMBY VALLEY

SUBMISSION DRAWING

DESIGN DEVELOPMENT VISUALIZATION

09

AAMBY VALLEY HOUSE

10
INTERIOR
DESIGN DEVELOPMENT
DESIGN ARCHITECTURAL DESIGN

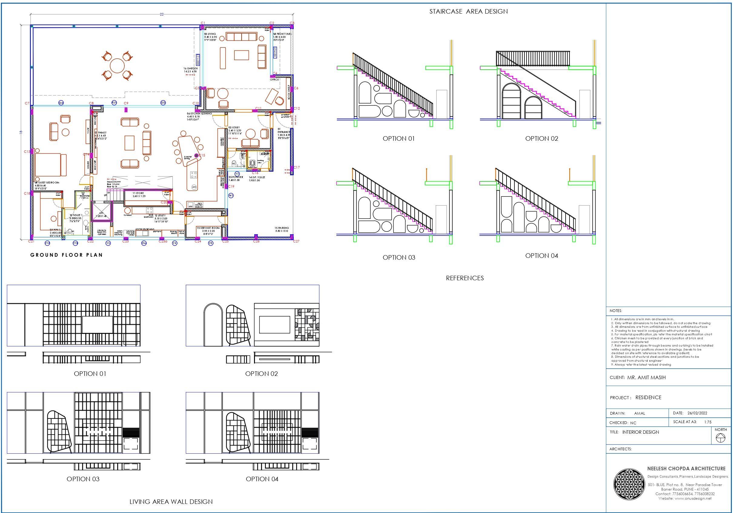
AMIT MASIH, SWARNABHOOMI

INTERIOR DESIGN

WORKING DRAWING

11

FUNDHAR, RAIPUR

ARCHITECTURE DESIGN

12

Turn static files into dynamic content formats.

Create a flipbook
Issuu converts static files into: digital portfolios, online yearbooks, online catalogs, digital photo albums and more. Sign up and create your flipbook.