Portfolio Arch & Interior Design

Page 1

portfolio.

alyanabila
selected works architecture & interior design 2021-2022
I am an architecture & interior designer. This Portfolio will present about my design. Thank you for your attention.
Hello!

ALYA

MY NAME IS

Saya Alya Nabila lahir di Bekasi pada 24 November 1998. Saya memiliki minat pada perancangan desain eksterior, interior,lightingdanfurniture. Sayamahirdalammenggunakan AutoCAD,SketchUp,Vray,&AdobePhotoshop.

Junior Architect at Karsa Studio

Membuat desain rumah & coffeeshop berupa 3D model dan gambar kerja

Intern Junior Architect at Baruma Arsitek

Membuat desain rumah berupa 3D model dan gambar kerja

Freelancer

Membuat 3D model desain renovasi rumah di Cimahi

Design Team - Kerja Praktik at PT Arka Primareka Utama

(Mei 2021- November 2022)

(Maret-Mei 2021)

(Juni 2020)

Membuat desain rencana renovasi Pengadilan Negri Bekasi

(Juni-Agustus 2019)

Ketua 2019-2020 Divisi Publication & Entertainment ITENAS Student English Forum (ISEF)

Sekertaris 2018-2019

Ketua Pelaksana 2017-2018

Divisi Penelitian & Pengabdian Masyarakat Himpunan Mahasiswa Arsitektur (HMA ITENAS)

Program kerja MADONA (donor darah arsitektur) Himpunan Mahasiswa Arsitektur (HMA ITENAS)

Anggota 2016-2018 Divisi Publication & Documentation ITENAS Student English Forum (ISEF)

2016-2020 Institut Teknologi Nasional (ITENAS) Bandung

2013-2016 MAN 2 Kota bogor

SketchUp

AutoCAD

Lumion

Corel Draw

Adobe Photoshop

Ms. Office

Menengah Menengah

Menengah Menengah Ahli Menengah

Organization.

Education.

Work Experience. Skills.

+62 878-7043-0678

nabilalya42@gmail.com

Limus Pratama Regency, Cileungsi - Bogor

2 |
3 | nabilalya42@gmail.com Kopitagram Office, Tomang. (5) Proyek 2021 - Interior Design 01. OL House, Kalideres. (7) Proyek 2021 - Interior Design 02. GH House, Serpong. (9) Proyek 2022 - Interior Design 03. Kopitagram Malabar, Bogor. (11)
2022 - Exterior & Interior Design 04.
PORTFOLIO CONTENTS
Proyek

NM House, Gading Serpong. (15)

Proyek 2022 - Interior Design

Lloyd R0306, Alam Sutera. (18)

Proyek 2022 - Interior Design

UV H17, Bintaro. (20)

Proyek 2022 - Interior Design

4 |
05.
06.
07.

Proyek Head Office

Kopitagram Tomang

Lokasi : Jl Kasturi, Jatipulo, Palmerah, Jakarta Barat.

Service : Interior Design

Tahun : 2021 bulan Desember

Merupakan proyek renovasi interior di sebuah coffeeshop

Kopitagram yang mulai berkembang membutuhkan space tambahan untuk para karyawan maka area gudang di Lt 2

Kopitagram Tomang dialihfungsikan menjadi ruang kantor

Menggunakan konsep industrial dengan dominasi dinding acian/beton.

Interior Design Project 5 | nabilalya42@gmail.com
Keterangan/Legenda: 1. Finance Room 2. HRD Room 3. Meeting Room 4. Employee Room 5. Pantry 6. CEO Room 7. Wudhu Area 8. Balcony 1st Floor Plan. 2nd Floor Plan. 1. 2. 3. 4. 8.
6.
5.
7.
Finance Room. HRD Room. Balcony. Pantry. Focus Corner.
6 |
CEO Room.

Proyek Renovasi Rumah OL House

Lokasi : Perumahan Citra Garden Puri, Jakarta Barat Service : Interior Design Tahun : 2021 bulan Oktober

Rumah dengan space yang tidak besar membuat klien ingin mendesain ulang kamar dengan menyatukan 2 kamar menjadi 1 kamar utama. Konsep minimalis modern diterapkan agar rumah tidak terkesan padat tetapi tetap rapih dan setiap desain kabinet memiliki fungsi yang sudah direncakan dari awal, jadi tidak ada spaceyangsia-sia.

7 | nabilalya42@gmail.com
Interior Design Project
8 | Interior Design Project
Keterangan/Legenda: 1. Dining Room 2. Kitchen 3. Laundry Area 4. Master Bedroom 5. Master Bathroom 1st Floor Plan. 1. 2. 3. 4. 5. 2nd Floor Plan. Laundry Room. Master Bedroom. Kitchen. Kitchen. Dinign Room. Dining Room.

Proyek Renovasi Rumah

GH House

Lokasi : Residence One, Jelupang, Kec. Serpong Utara, Kota Tangerang Selatan. Service : Interior Design

Tahun : 2022 bulan Januari

Merupakan proyek renovasi interior di sebuah rumah yang memiliki konsep minimalis, dengan penggunaan warna netral seperti abu putih kayu dan penggunaan built in furniture Ruangan yang didesain adalah living room, dining room, kitchen, livingroom2ndfloor,masterbedroom&masterbathroom.

Interior Design Project 9 | nabilalya42@gmail.com
Keterangan/Legenda: 1. Living Room 2. Kids Play Room 3. Dining Room 4. Preparation Room 5. Kitchen 6. Living Room 2nd Floor 7. Master Bedroom 8. Master Bathroom 1st Floor Plan. 2nd Floor Plan. 1. 2. 3. 4. 8. 5. 6. 7.
Master Bedroom. Master Bedroom.
10 |
Preparation Room.
Living Room 2nd floor. Dining Room.

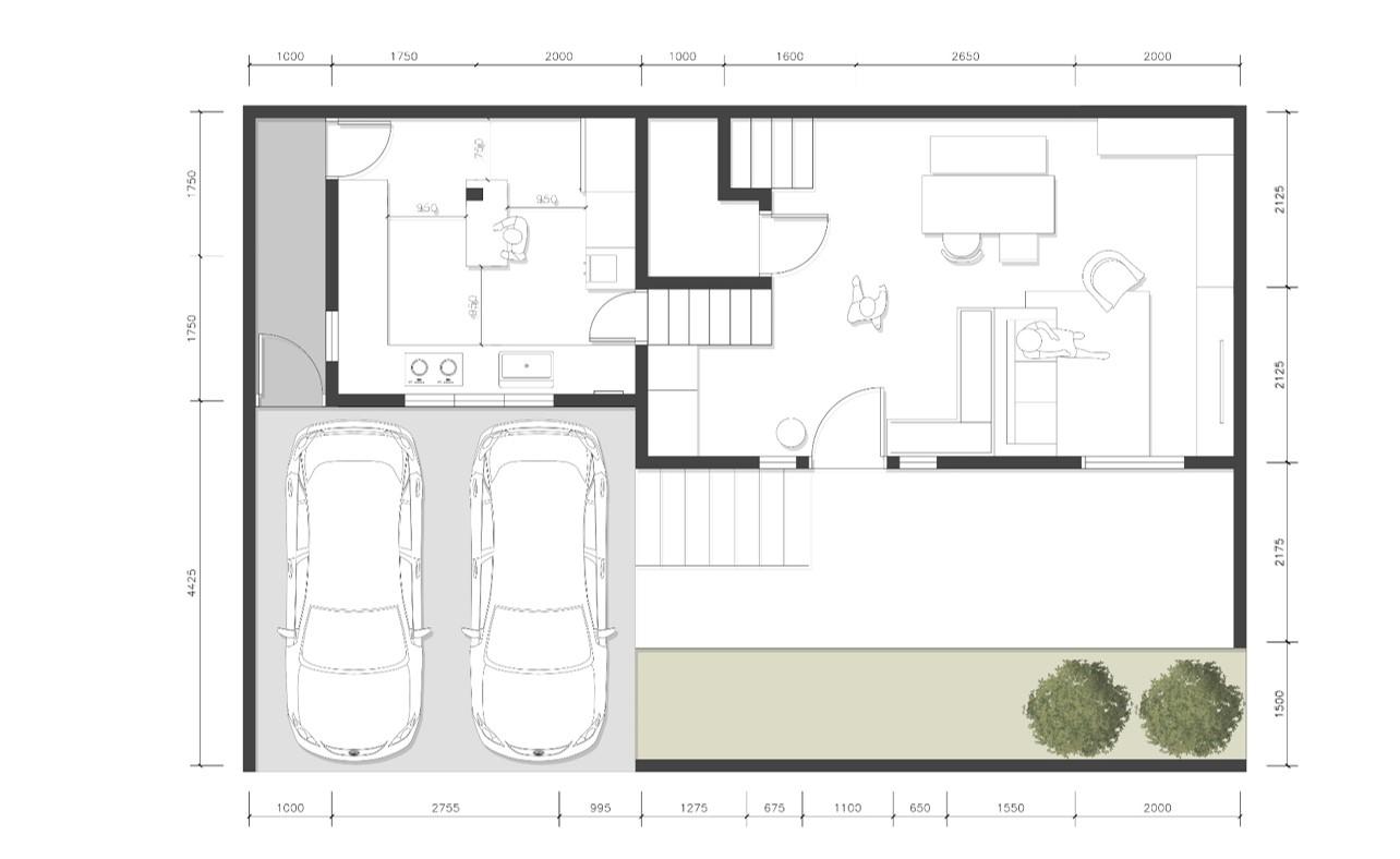
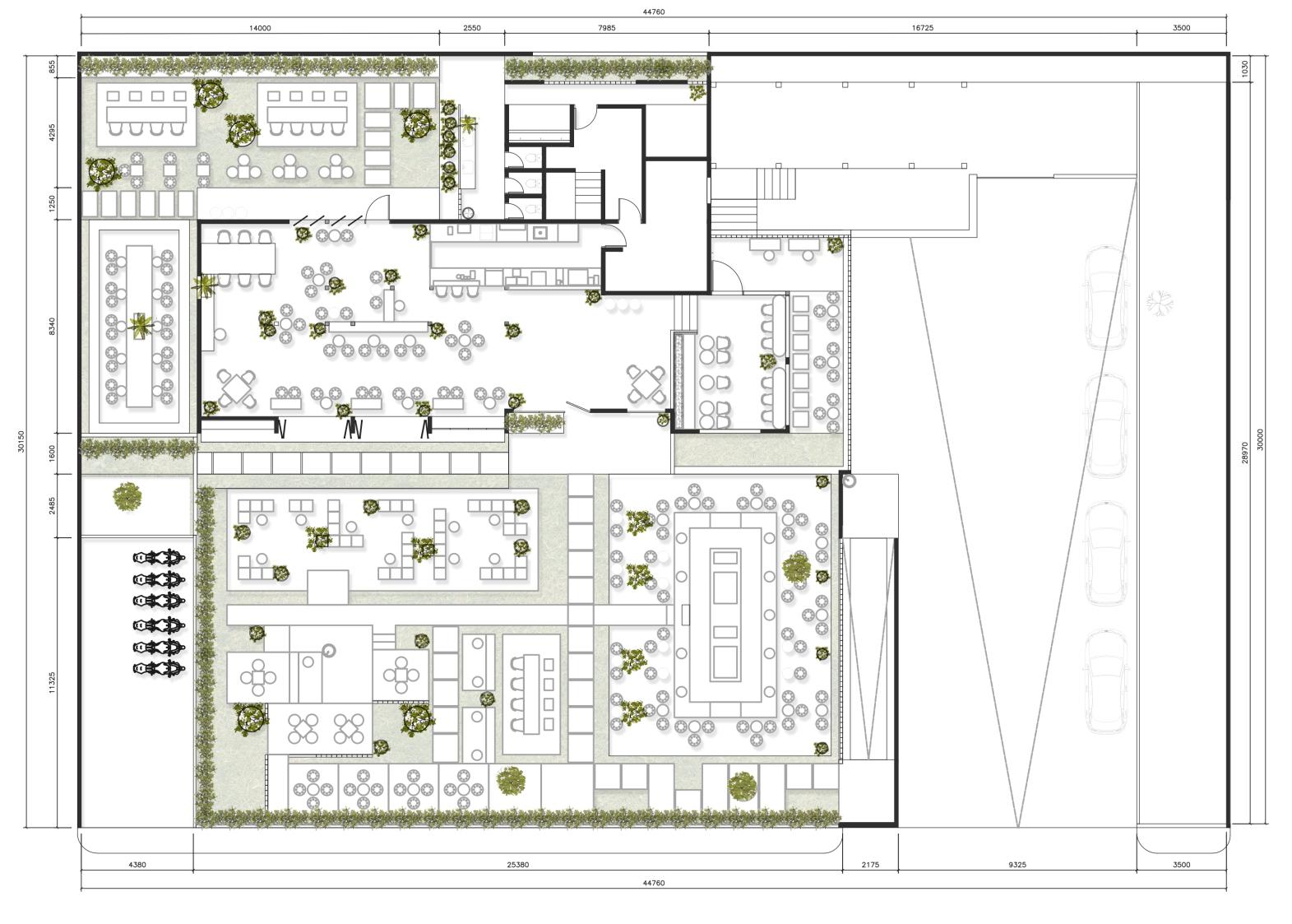
Proyek Coffeeshop

Kopitagram Bogor

Lokasi : Jl. Malabar Ujung, Babakan, Kota Bogor Service : Exterior & Interior Design

Tahun : 2022 bulan Januari

Kopitagram Bogor melakukan renovasi dari rumah tua menjadi coffeeshop, desain industrial minimalis digunakan sebagai konsep memasyarakat Dan penggunaan banyak vegetasi sebagai ciri Kota bogor yaitu asri dengan tempat iconic nya yaitu kebunrayaBogor.

11 | nabilalya42@gmail.com
Exterior
& Interior Design Project
12 | Keterangan/Legenda: 1. Parkir Mobil 2. Loading Dock 3. Entrance 4. Outdoor Area 5. Indoor Area 6. Kitchen 7. Staff Room 8. Musholla 9. Toilet 10. Backyard Area 11. Semi Outdoor Area
1.
2.
3. 4. 5.
6. 7. 9. 8. 10. 11.
4. 6. 5.
11.
Exterior & Interior Design Project
5.
SitePlan.
13 | nabilalya42@gmail.com
Outdoor Area. Semi Outdoor Area.
Exterior
Indoor Area.
& Interior Design Project
14 |
Backyard Area.
Exterior & Interior Design Project
Entrance Area. Toilet Area.

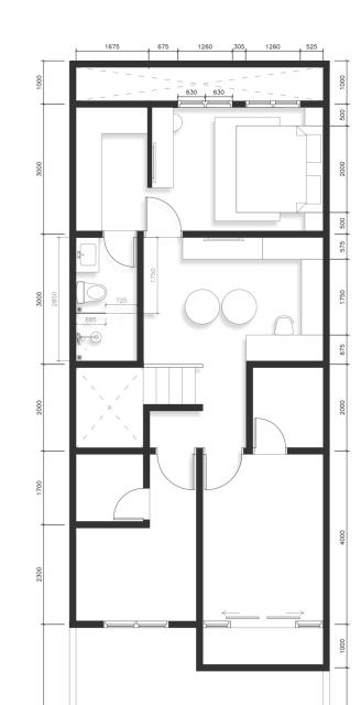
Proyek Renovasi Rumah NM House

Lokasi : Omaha Village, Gading Serpong. Service : Interior Design Tahun : 2022 bulan Februari

Merupakan proyek renovasi interior di sebuah rumah yang memiliki konsep minimalis, dengan konsep open space dimana ruang keluarga, dapur, dan ruang makan dalam dibuat menyatu untuk kesan yang lebih luas. Dominasi penggunaan warna neutral wood memberi kesan hangat pada ruangan Ruangan yang didesain adalah living room, dining room, kitchen, dan dapur produksi.

Interior Design Project 15 | nabilalya42@gmail.com

1st Floor Plan.

Keterangan/Legenda:

Entrance & Living Room.

Kitchen & Dining Room.

1. Terrace 2. Entrance Area 3. Living Room 4. Kitchen & Dining 5. Hidden Laundry 6. Production Kitchen 7. Storage Room
1. 2. 3. 4. 5.
6. 7.
16 |
17 |
Laundry Area. Laundry Area. Laundry Area. Kitchen. Living Room.

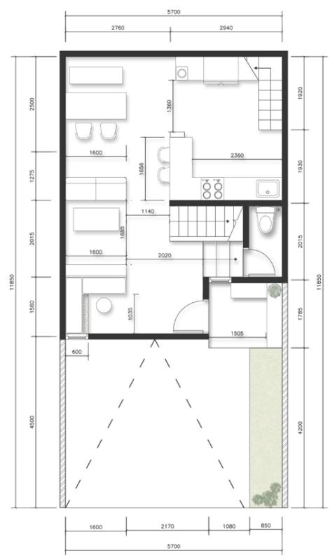
Alam Sutera ApartmentLloyd R306

Lokasi : Alam Sutera, Jl. Alam Utama, Pakualam, Serpong Utara, Kota Tangerang Selatan Service : Interior Design

Tahun : 2022 bulan Februari

Merupakan proyek renovasi interior di sebuah unit apartement baru yang memiliki konsep warm and clean, dengan penggunaan warna netral namun tetap mengaplikasikan tekstur seperti kamprot dan acian, juga menambahkan bentuk bentuk lengkung agarruangantidakterkesankaku.

18 | nabilalya42@gmail.com
Interior Design Project
Keterangan/Legenda: 1. Kitchen 2. Living Room 3. Dining Room 4. Bedroom 1 5. Bathroom 1 6. Master Bedroom 7. Master Bathroom 8. Laundry Room Floor Plan. Living Room. Living Room. Master Bedroom. Bedroom 1. Master Bathroom. 1. 2. 3. 4. 8. 5. 6. 7. 19 | Interior Design Project

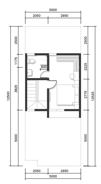
Proyek Renovasi Rumah

UV H-17

Lokasi : Perumahan U Ville blok h17, Ciputat, Kota Tangerang Selatan. Service : Interior Design

Tahun : 2022 bulan Maret

Merupakan proyek renovasi interior di sebuah rumah. Rumah dengan keluarga kecil ini menginginkan style rumah japandi atau japanese-scandinavian. Dengan dominan warna kayu, putih dan penggunaan material seperti spc dan vinyl Ruang yang direnovasiadalahLivingroom,Diningroom,danMasterBedroom

20 | nabilalya42@gmail.com
Interior Design Project
Keterangan/Legenda:
Entrance
Guest
Living
Dining
Kitchen
1.
2.
Area 3.
Room 4.
Room 5.
6. Master Bedroom
21 |
7. Wardrobe 2nd Floor Plan. 1nd Floor Plan. Entrance Area. Living Room. Storage Area.
1. 2. 3. 4. 5. 6.
Interior Design Project
7. Kitchen.
22 | nabilalya42@gmail.com Interior Design Project
Island Kitchen.
23 |
Storage & Vanity. Master Bedroom. Interior
Design Project

Another Result of Render using Vray!

Berikut beberapa view interior & exterior hasil render menggunakan yang sketchup vray kemudian di edit menggunakan adobe photoshop.

24 | nabilalya42@gmail.com Render View
25 | Render View
Thank You! ig: @alyanabbila | +62 87870430678 | nabilalya42@gmail.com

Turn static files into dynamic content formats.

Create a flipbook
Issuu converts static files into: digital portfolios, online yearbooks, online catalogs, digital photo albums and more. Sign up and create your flipbook.
Portfolio Arch & Interior Design by Alya Nabila - Issuu