Architecture Portofolio 1

Page 1


Alvin Christian

Placeanddateofbirth

Phonenumber

Email Bandung,29September1998

081384053372 alvin486923@gmail.com

About Skills

AnArchitecturestudentwhodevelopedstrong fundamentalsindesignandarchitecturalprinciples increativelydynamicfashion.Throughoutmy studies,Ihavedemonstratedmydesignskills, leadership,andeagernesstolearn.Ibelieve enthusiasm,teamwork,andwillingnesstodomore arekeysinhittingthegroundrunning.

Experience

August2020–July2021

ZennaOffice&Living

CommercialDesign–Freelance

November2022–May2023

GiandyHPL

JuniorArchitect

July2023–Mar2024

StevenLimArchitect

JuniorArchitect

April2024–Jan2025

ARStudio

JuniorArchitect

Autocad

AdobePhotoshop

SketchUp

Lumion

Archicad

Education

2017-2022

UniversitasKatolikParahyanganBandung

2014-2017

SMASantoAloysius1–Bandung

2011-2014

SMPSantoAloysius1–Bandung

Achievements

August2020

TOP10NomineesatArchicare“SittinginPublic” Competition

ByUniversitasIndonesia

Interest

Architecture I travelling I culinary I sport

SelectedWorks

MUSEUMGAMESTEGALEGA

MUSEUMGAMES TEGALEGA

Lokasi:Jl.BKRNo.173,PelindungHewan Kec.Astanaanyar,KotaBandung

Luas:3854m2

STUDIOAKHIRARSITEKTUR

Tujuandariperancanganmuseum games ini adalahsebagaiwadahuntukanakmudamasa kiniuntukmenyalurkankeinginanbermain gamesecara social.Dengankatalaintidak hanyaseorangdiribermain game tapibisa bermainbersamaoranglaindanjuga bergabungdengankomunitastertentuyang sesuaiminatdankeinginannya.Selainfungsi social,fungsimuseumyangyangberbasis teknologidalampenerapannyatentuakan sangatmudahdipahamidanmenarikbagi anakmudamasakini.

Archicare

OUTDOORCOMMUNALSPACE

GIANDYHPL

BLOSSOMFACTORYOUTLET

Location:No.7,Jl.RayaSerpong,Kec.SerpongUtara,KotaTangerangSelatan

STEVENLIMARCHITECT

“TDHouseismyfirstproject.Thisprojecthadenteredthe finaldesignstagewhenitwasassignedtome.Mytask wastomaketheshopdrawingsfromfloorplan,section andelevationthathavepreviouslybeendonebyanother teamandtoensuresynchronizationbetween2Dand3D model,whetherthere’sanychangestothedesignduring theconstructionprocessinthefuture.”

FloorPlan

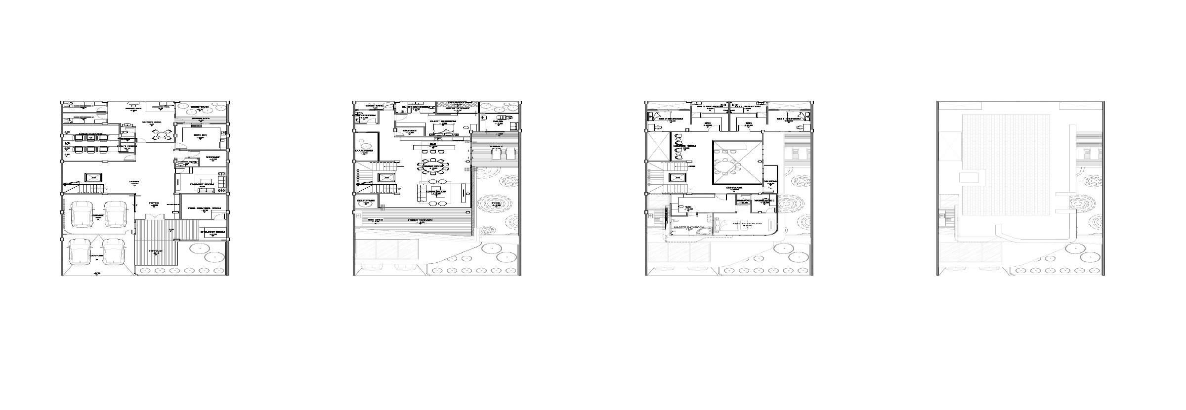
“EJHouseismynextproject.Myroleinthisprojectis generatingfloorplansandexploringvariousdesign possibilities,followedbycreatingshopdrawingthatwas alsoassistedbycolleagues.Aninterestingpointduring thedesignprocessistheinvolvementFengShui principlestothefloorplan.Duringtheprocess,this designunderwentfewchangesbothintheplanandinthe facadeuntilitreacheditscurrentform.

“Myinvolvementinthisprojectwasdesigningseveral partofthefacade.Thedesignthenfinalizedbythe principalarchitect.Inaddition,Ididthesection

“Myinvolvementinthisprojectisdesigningthe

“MAHousewasnotoriginallydesignedasaclassichouse.The firstideaistomakethedesign“lookalike”tropicalmodern housewithsymmetricaldesign.Thenthedesignwaschanged into“classichouse”.Iwasassignedtoredesignthefloorplan andlatertheworkofthefacadeisdonebycolleagues.Ialsoin chargedfortheshopdrawingandcoordinatewith2otherteam

ARSTUDIO

RITAPARKKARANGTENGAH

FINALMASTERPLAN

SiteArea:±258,055sqm

Location:Karangtengah,Baturraden

Padmahotelbandung

RENOVATIONWORK

Location:

Jl.RancabentangNo.56-58,Ciumbuleuit,Bandung

“Istartedtogetinvolvedinthisprojectmidway.Myroleduring thisprojectwastoassist&coordinatewithmyworkcolleague incompletingdrawingsfortenderandconstruction,andalsoto solvedesignproblemsfoundwhendrawingwithquiteprecise detailsbecausethisprojectisalsoarenovationprojectwhich ofcoursehasthingsthatmustbecross-checkedwiththe originaldrawings.”

THANKYOU!

Turn static files into dynamic content formats.

Create a flipbook
Issuu converts static files into: digital portfolios, online yearbooks, online catalogs, digital photo albums and more. Sign up and create your flipbook.