PORTOFOLIO ARSITEKTUR DAN INTERIOR AULIYA SALMA IHDIN

Page 1


PORTFOLIO ARCHITECTURE DESIGN

AULIYA SALMA IHDIN

Saya merupakan lulusan Program Studi Arsitektur Universitas Sebelas Maret Surakarta. Memiliki pengalaman lebih dari dua tahun di bidang desain arsitektur. Pernah bekerja sebagai im desain arsitek di Sakabumi Architect Semarang dan arsitek freelance di Royal Kontraktor Tangerang. Memiliki berbagai pengalaman mendesain hunian, komersil, serta interior Memiliki skill desain gras, kreatif, disiplin dan terorganisir

ARCHITECT

Agustus 2023 - Desember 2024| Sakabumi Architect

Bertanggung jawab dalam mendesain lebih dari 30 project hunian, komersil, dan desain interior

FREELANCE ARCHITECT

2021-2023 | Royal Kontraktor

Desain, drafting, dan rendering project hunian, retail, eksterior maupun interior

VOLUNTEER ARCHITECT

Mei 2023 | Civil Arch Social project

Bertanggung jawab dalam pengerjaan desain asrama pondok pesantren

INTERNSHIP ARCHITECT

Juni-September 2021 | Soloarsi Studio

Terlibat dalam desain hunian, klinik kecantikan, dan interior

HARD SKILLS

Sketchup

Autocad

Enscape Photoshop

Coreldraw

SOFT SKILLS

Upper Intermediate English Kreatif, Terorganisir, Kerjasama tim

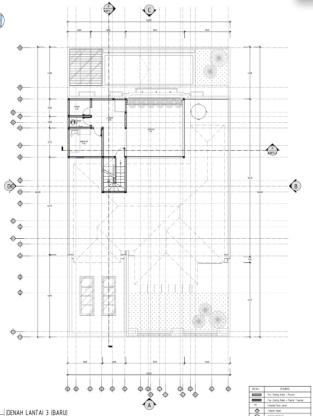
MR. F HOUSE TANGERANG, JAWA BARAT

Private House|Sakabumi Architect

Luas Lahan Luas Bangunan : 350 m2 : 470 m2

Pr o y e k m e r u p a k a n proyek renovasi rumah tua dalam kawasan perumahan BSD Tangerang. Modifkasi desain layout dilakukan untuk mencipatakan ruang yang lebih luas dan mewah, serta menunjang kebutuhan klien Terdapat 4 kamar tidur dengan kamar mandi dalam, dapur bersih dan kotor, living room luas serta balkon dan kolam renang.

F a c a d e d i d e s a i n d e n g a n g a y a k l a s i k kontemporer yang mewah dan timeless.

Denah Lt 1
Denah Lt 2
Denah Lt 3

MR. W HOUSE BEKASI, JAWA BARAT

Private House|Sakabumi Architect

Luas Lahan Luas Bangunan : 203 m2 : 280 m2

Poyek terletak di Bekasi, Jakarta Barat, desain memiliki 3 kamar, 4 kamar mandi, kamar art, ruang tamu semi outdoor, ruang keluarga, dapur, ruang makan, innercourt, musholla, lengkap dengan garasi dan carport.

D e s a i n g e o m e t r i s dengan elemen warna cream d a n k a y u d i p i l i h u n t u k mencipatkan nuanasa modern dan megah pada hunian.

Denah Lt 1
Denah Lt 2

MR. H HOUSE PAMEKASAN, MADURA

Private House|Sakabumi Architect

Luas Lahan Luas Bangunan : 195 m2 : 143 m2

Projek berlokasi di lahan seluas 195 m2 Terletak di area salah satu pesantren di Pamekasan, Madura.

Desain rumah memiliki 3 kamar tidur, 2 kamar mandi,ruang tamu, dapur, ruang keluarga, ruang makan dan juga mushola yang luas.

Desain klasik dengan tema warna putih dan elemen t r a v e r t i n e d i p i l i h u n t u k menciptakan gaya yang mewah pada hunian.

Denah Lt 1

MRS. D HOUSE

SEMARANG, JAWA TENGAH

Private House|Sakabumi Architect

Luas Lahan

Luas Bangunan : 350 m2 : 180 m2

Proyek terletak di Semarang Jawa Tengah. Desain rumah bergaya modern ini memiliki empat kamar tidur, dua kamar mandi sharing, area service dan art, living room, dapur bersih dan kotor,serta carport dan ruang tamu outdoor Balkon dan area belakang rumah yang luas startegis di desain untuk bersantai dan menikmati pemandangan.

Denah Lt 1
Denah Lt 2

CLASSIC RESIDENTIAL

SEMARANG, JAWA TENGAH

Residential Project |Sakabumi Architect

Luas Lahan

Luas Bangunan : 65 m2 : 60 m2

Terletak di Banyumanik, Semarang, Jawa Tengah. Proyek merupakan proyek perumahan dengan gaya k l a s i k m o d e r n . D e s a i n menguapayakan kesan hunian yang mewah dan timeless dalam lahan yang terbatas dan bentuk yang efesien.

Hunian dilengkapi dengan tiga kamar tidur, dua kamar mandi , living room, dapur dan carport yang bisa menampung dua unit mobil.

Denah Lt 1 Denah Lt 2

LEGAL OFFICE JAKARTA

Interior Project |Sakabumi Architect

Luas Bangunan : 55 m2

Project berlokasi di salah satu ruko Jakarta. Desain berupaya memaksimalkan luasan ruang yang terbatas dengan tema pop industrial yang kekianian dan sesuai branding perusahaan

Resepsionis
Toilet
Meeting Area

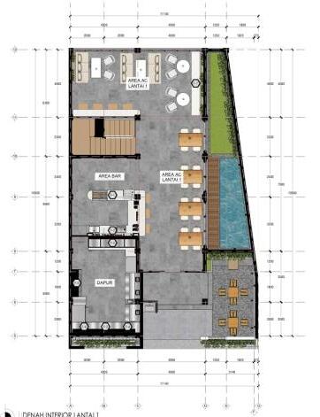
COFFE SHOP

TARAKAN, KALIMANTAN TIMUR

Interior Project |Sakabumi Architect

Luas Bangunan : 250 m2

Project berlokasi di Tarakan, Kalimantan Timur. Owner ingin membuat Coffeshop dengan perpaduan elemen industrial namun tetap memiliki sisi feminim dan modern.

Resepsionis
Denah Basement
Denah Lt 1

MR.TD HOUSE BOGOR, JAWA BARAT

Interior Project |Sakabumi Architect

Luas Bangunan : 192 m2

Project berlokasi di Bogor Jawa barat menekankan pada esiensi ruang serta nuansa yang hangat dan lapang

Ruang Tamu - Musholla Living Room
Dapur
Kamar Utama
Denah Lt 1
Denah Lt 2

MR. A HOUSE BEKASI, JAWA BARAT

Interior Project |Sakabumi Architect

Luas Bangunan : 150 m2

Project berlokasi di Bekasi Jawa Barat Klien menyukai nuansa warna terang yang mewah namun dikemas secara lebih modern dan variatif.

Denah Lt 1 Denah Lt 2
Living Room
Dapur dan Ruang Makan
Kamar Utama Kamar Utama

OTHER PROJECT

Interior Project |Sakabumi Architect

Beragam proyek desain eksterior maupun interior, mulai dari hunian hingga komersil. Proyek yang telah dikerjakan dengan beragam gaya desain bervariasi dari mulai proyek lahan kosong, renovasi total hingga renovasi facade di berbagai kota di Indonesia.

Turn static files into dynamic content formats.

Create a flipbook
Issuu converts static files into: digital portfolios, online yearbooks, online catalogs, digital photo albums and more. Sign up and create your flipbook.