Ally Hagyard 2025 Portfolio

Page 1


ALLY HAGYARD

PORTFOLIO

VIRGINIA TECH INTERIOR DESIGN

EXPECTED GRADUATE DATE 2026

Hello!

Welcome to my portfolio! My name is Ally, and I am a third-year interior design student here at Virginia Tech aspiring to attain an internship this summer! Ever since I can remember I have been passionate when it comes to creativity and designing. I’m determined to make a difference by designing spaces combining functionality, but also comfort and aesthetic. It’s truly special to see how a space impacts indiviualds and communities. As I’ve grown and explored this field, this love has only continued grow more everyday and with every project I do.

allyhagyard@vt.edu

linkedin.com/in/ally-hagyard

Table of Contents

Harbor Haven Interiors

Workplace

01

Clayvergence Retail

The Jamm Coffee Shop

Sketches Personal 3-10 11-18 19-26 27-30

02

Harbor Haven Interiors

Workplace | 3rd Year | Individual

Revit | Enscape

400 Granby St Norfolk, VA 2351

A workspace designed to provide an adaptable and inclusive office experience, catering to the needs of all employees and clients. With a variety of flexible and private workspaces, social gathering spots, and collaborative rooms, everyone can find a space that suits them perfectly.

Our overall design draws inspiration from the local Norfolk Botanical Garden, mirroring its intentional layout, pathways, and wayfinding elements. The office space explores the interaction between plants and humans, highlighting its positive impact on workforce productivity and overall well-being

The Idea

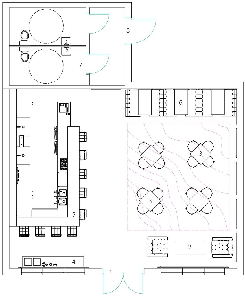
The central way finding path stems from idea of how botanical gardens have main pathways that branch off to more intimate and private spaces for different species of plants.

The design mimics this by including a cental social area while private offices, conference rooms, open workspaces, and the resource center are placed on the outer edge.

1. Private offices

2. Open workspaces

3. Private pods

4. Open huddle room 5. Entrance + lobby

Wellness + lounge

Client display

Conference room

9. Resource center

10. Kitchen

11. Work booths

12. Private huddle booths

13. Central path + social bubble

Roof floor plan : NTS

Work spaces and open huddle

Sections

Section A - A’ : NTS
Section B - B’ : NTS
Section C - C’ : NTS

Open huddle space near work desks and pin up wall allows for employees to collab or hop in on conversation

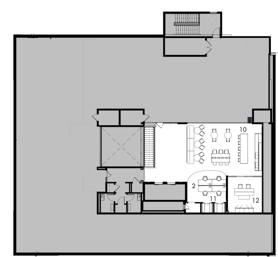
Communal kitchen

Upstairs desks and booths

Furnishings

Square One Upholstery CF Stinson White Sand Concrete STELAPOP
West Elm Work Collection
Belle Couch
Steelcase Karman Chair
West Elm Work Greenpoint Fixed Desk
KOHLER Jabot Two Light Sconce
Lobby and entrance space
Teatro Upholstery
Justin David
Calacatta Marble Formica
Hardwood Flooring Preverco

Clayvergence 02

Retail | 2nd Year | Individual

SketchUp | Twinmotion

1098 Wisconsin Ave NW, Washington DC

Designing and branding for a futuristic boutique retail store where a virtual shopping experience converges with a traditional shopping experience in a truly visceral and immersive space. The proposed design will simultaneously occupy the physical reality of a street address while also occupying a cyber reality Where clay meets algorithms, a new era of pottery emerges. The pottery wheel converges with the network loop, providing an unimaginable set of inspirations to the timeless art. These vessels are receptable to stories, forms, and collected AI ideas.

The Idea

Idea of converging your traditional Georgetown shopping experience with new AI and VR interactive norms.

X marks the area of where the two experiences combine.

Placing the first interactive AI screen mid way through the store keeps the customer intrigued.

Design Feature

Continuous curved line comes from the idea of the network loop and algorithms.

Utilizing the negative space of the line creates a custom LED shelving unit under the stairs for smaller pottery such as mugs, cups, or bowls.

Section A - A’ : NTS
Parti Diagram

1. Checkout

2. Floor to ceiling hologram

3. AI stations 4. Free-standing displays

5. Displays 6. Interactive screen 7. Storage

Office

ADA restrooms

Main entry 11. Emergency + secondary exit 12. Seating

First floor plan : NTS
Mezzanine floor plan : NTS

LED lighting ceiling feature + way finding

Focus Perspectives

AI interactive wall + shelving feature

Mezzanine sitting
KBN Designs MDF panels
MOKUM Textiles Commercial fabric
TerraMai Wide Plank Oak
Trueform Concrete
Porcelanosa Counter tops
DreamScape Plaster
Sherwin Williams #6177

The Jamm 03

Coffee Shop | 2nd Year | Individual

Sketch Up | Twinmotion

8267 Main St, Ellicott City, MD 21043

The Jamm is a local coffee shop that is located along the main street of historic Old Ellicott City. As the strip is lined with various shops and boutiques making it a great place for the Jamm-or tj’s!

The Jamm is a must-visit destination, whether you’re a visitor passing through or a local looking for a regular spot to unwind. Its historic character and charm are seamlessly integrated with OEC’s local architecture, creating a welcoming and inviting atmosphere. The space beautifully blends modern, timeless design elements, making it a unique and memorable experience for all who stop by.

Trashcans
Coffee bar
Back exit
Zoning Diagram

Booth seating and decorative wall feature

Sections

TerrazzCo Recycled glass
Justin David Textile Monument Aleutian Fabric
Benjamin Moore Sage Tint #458
Meridian Michelle Velvet Chair
Meridian Velvet Dining Chair
Best Quality Furniture Velvet Dining Chair : Bar
Possini Euro Elena Warm Brass Sconce
LYFA Pendant Light

Personal Work 04

Here are a few of my cherished and favorite personal projects! All ranging from quick sketches to paintings and realistic drawings. These are collected from over the years, showcasing a variety of mediums including graphite, acrylic, watercolor and charcoal.

VIRGINIA TECH INTERIOR DESIGN
ALLY HAGYARD

Turn static files into dynamic content formats.

Create a flipbook
Issuu converts static files into: digital portfolios, online yearbooks, online catalogs, digital photo albums and more. Sign up and create your flipbook.
Ally Hagyard 2025 Portfolio by Ally Hagyard - Issuu