Allison_McBrearty_Portfolio_2025

Page 1


Welcome to my architecture and fine arts portfolio. With a passion for creating environments that spark meaningful conversations and reflect unique lifestyles, I strive to bridge the human experience and sustainability in each project that I undertake.

Within these pages, you will find a selection of works that range from my 5 years of professional work experience, my Masters Degree in Architecture from Pratt Institute, and my fine artwork that I have produced over the past 6 years.

Each of the projects presented in this portfolio reflects my dedication to create thought-provoking ideas, evoke emotions, form common grounds, and explore themes that will become increasingly important in time.

With a desire for technicality and fine detail, and passion for connective and influential spaces, I believe that architecture can positively influence how all beings live, interact with each other, and perceive the world.

Whether a retail renovation, abstract artificial reef, or illusionist painting, I approach each and every project with an open mind, an eagerness to learn, and a desire to collaborate with the people around me. I am inspired by the ability to connect with nature and people, and expose myself to different ways of thinking.

I hope that while you explore this portfolio, you experience the depth of my passion for architecture, arts, psychology and sustainability. I look forward to the opportunity to collaborate and create meaningful spaces that withstand the test of time.

REFLECTIONS

Broader architecture and fine artwork may be provided upon request.

BRICK-AND-MORTAR: SKIMS

LPC SUBMISSION: LOEWE

DETAILED REDESIGN: LOEWE

RESIDENTIAL ADDITION & RENOVATION

RESIDENTIAL RENOVATION

CONNECTED SUBMERSION

THE QUEEN’S VESSEL

POLYPHONY

RELEVANT RUBBISH

CLIFFSIDE PARANOIA

HEARTACHE

BODY ACHES

REFLECTIONS

THE BARREL

THE LIVING CANVAS

CARA BATHE

THE NATURE OF DRAPERY

TOXIC WAVE

BRICK-ANDMORTAR: SKIMS

Kenneth Park Architects Fall 2023 - Summer 2024; AutoCAD

In Collaboration with: Marlene Pereira, Skims, Perron-Roettinger & Flatiron Project Management

These projects involve design development and documentation for Kim Kardashian’s Skims’ inaugural rollout of permanent brick-and-mortar stores across five locations: Georgetown, Austin, Aventura, Houston and Atlanta. Our team translated concept designs into detailed construction documents while coordinating with contractors and consultants to realize immersive retail environments, featuring the brand’s signature curved forms, high-gloss finishes, and custom neutral-toned fixtures.

We delivered throughout the full scope of the architectural process, provided extensive construction documents, and collaborated closely with MEP and structural engineers and interior designers. These projects required constant problem-solving and creativity, as the concepts and millwork fixtures were the launchpad for Skims’ entry into the world of brickand-mortar stores. Creative detailing, adaptability and clarity of vision were pertinent to ensure seamless project delivery for this culturally impactful retail expansion.

Role: Point of contact for client; Collaborated with PMs and designers throughout all phases of the project; Key contributer to Bid and Permit Sets; Independently conducted site surveys, zoning analyses, code research, existing condition documentation, chalk-walks, punch-lists, and managed RFIs and submittals.

Final Photo of Storefront Facade: Georgetown, DC

• Interior Tenant Improvement work

• Georgetown Historic District

• 2017 District of Columbia Building Code

• 3,501 SF

• 2-Story

• Mercantile and Storage Space

• Interior and Storefront Tenant Improvement work

• Lenox Square Mall

• 2018 International Building Code

• 4,948 SF

• 1-Story

• Mercantile and Storage Space

HOUSTON, TX

• Interior and Storefront Tenant Improvement work

• Houston Galleria II

• 2021 International Building Code w/ City of Houston Amendments

• 6,909 SF

• 1-Story

• Mercantile and Storage Space

• Interior and Storefront Tenant Improvement work

• The Domain Northside

• 2021 International Building Code

• 2012 Texas Accessibility Standards

• 3,320 SF

• 1-Story

• Mercantile and Storage Space

AVENTURA, FL

• Interior and Storefront Tenant Improvement work

• Aventura Mall

• 2023 Florida Building Code

• 3,707 SF

• 1-Story

• Mercantile and Storage Space

LPC SUBMISSION: LOEWE

Kenneth Park Architects Fall 2024 - Summer 2025; AutoCAD, COMcheck In Collaboration with: Jesse Wengrow, Alex Kaluzhny, Nick Boles & Loewe

This project involved the redesign and unification of two historic townhouses into Loewe’s flagship retail and office space in NYC’s historic district. Our team navigated Landmark Preservation Committee approvals to ensure compliance with preservation guidelines while introducing a contemporary storefront that complements the buildings’ historic character.

This project involved extensive structural intervention, including the removal of the central party wall and the insertion of new floor structures. Our team designed a substantial rear addition with a fire-rated egress stair, elevator, and dumbwaiter serving all floors plus the cellar. We collaborated closely with Loewe’s design team, structural and MEP engineers, contractors, and LPC representatives to deliver a seamless integration of modern brand identity within a preserved historic context.

Role: Point of contact for client; Collaborated with PMs throughout all phases of the project; Key contributer to Demolition Filing Set, Core and Shell ALT-1 Package, Permit Set, Energy Analysis Package, and presentation for LPC board review.

• Upper East Side Historic District

• Approximately 12,000 sqft

• Conversion of 5 story + cellar into 4 story + cellar

• Change of Use/Occupancy/Egress

• Conducted project under 1968 building code

• Loewe Flagship building

CODE REVIEW INFORMATION:

ALL WORK DONE UNDER THIS CONTRACT SHALL COMPLY WITH THE PROVISIONS OF THE SPECIFICATIONS, DRAWINGS & CONSTRUCTION CRITERIA OF THE LANDLORD, AND SHALL SATISFY ALL APPLICABLE CODES, ORDINANCES, AND REGULATIONS OF ALL GOVERNING BODIES INVOLVED. ANY MODIFICATIONS TO THE CONTRACT WORK REQUIRED BY SUCH AUTHORITIES SHALL BE PERFORMED BY THE TENANT'S CONTRACTOR. ALL PERMITS AND LICENSES NECESSARY FOR THE EXECUTION OF THE WORK SHALL BE SECURED AND PAID FOR BY THE TENANT'S CONTRACTOR(S). APPLICABLE CODES INCLUDE, BUT ARE NOT LIMITED TO THE FOLLOWING:

PROJECT PROPOSAL

• New rear extension and addition

• Removal of central masonry bearing wall from roof to 1st floor, stair bulkheads, and 2nd and 3rd floor structures

• Complete interior demolition

• New storefront infill at lower storefront

• Installation of new egress stair cores and bulkheads, dumbwaiter, and ADA compliant elevator with bulkhead

• Installation new 2nd floor structure and convenience stair

ARCHITECT: KENNETH

Loewe’s Design Team.

DETAILED REDESIGN: LOEWE

Kenneth Park Architects Spring 2025; AutoCAD

In Collaboration with: Marlene Pereira, Paressa Poulikidis, Nick Boles & Loewe

This project entails the renovation of an existing retail suite at a sprawling indoor and outdoor mall. The angular and expansive nature of the existing storefront presented unique design and technical challenges, requiring our team to develop innovative solutions that balanced structural integrity with a strong visual presence, specially curated by Loewe’s design team.

Our team meticulously designed and documented a series of custom storefront details that respond to the unique geometries of the site while aligning with the client’s brand identity. We also developed comprehensive custom millwork plans and sections, ensuring each element was tailored to the space with a high level of precision.

Role: Key contributer in the makings of the CD set; collaborated on storefront and millwork details.

RESIDENTIAL

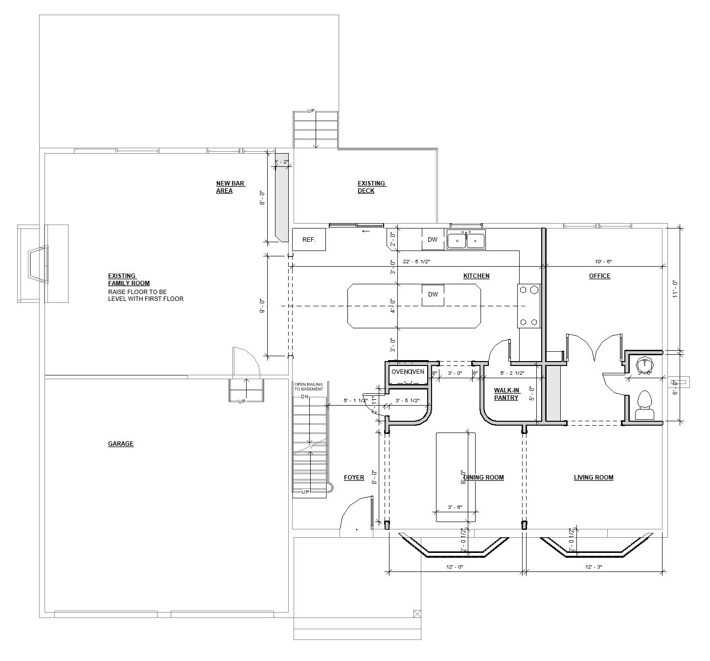
ADDITION & RENOVATION

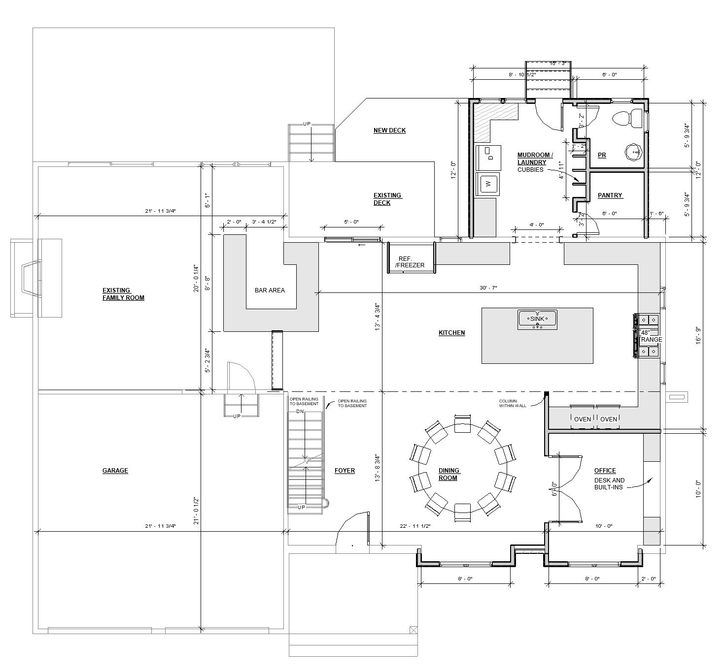
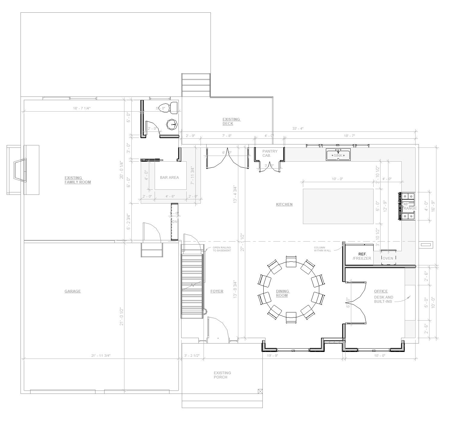
Greg Ralph, Architect & Varitronics Consulting Fall 2020 - Spring 2021; Revit and REScheck

This project is a single-family residential addition, and interior and exterior renovation. The addition was 400 SF, including a new mudroom with laundry utilities, walk-in pantry, and powder room. I was heavily involved throughout all phases of the architectural process. I independently completed a field analysis, existing conditions, zoning and site analysis, and served as the primary point of contact for the client. Correspondence with client required attentiveness and quick response time. It was crucial to maintain keen observation and honed listening skills from beginning to end of this process; I learned about the client’s preferences and daily routines, and designed with this specific lifestyle in mind. I worked directly with the client to create multiple iterations throughout schematic design to achieve an appealing design within budget constraints. I collaborated with other draftsmen and kitchen designers to produce thorough and accurate construction documents.

Role: Primary point of contact for client; Worked independently throughout field analysis, existing conditions, zoning analysis and schematic design; Collaborated during design development and construction documents.

Phase:

CONTRACTOR SHALL MEET ALL REQUIREMENTS OF MUNICIPAL, STATE, NATIONAL CODES AND SPECIFICALLY BUT NOT LIMITED TO THE

INTERNATIONAL MECHANICAL CODE, 2018 INTERNATIONAL ENERGY CONSERVATION CODENJ ED, 2018

Existing Property: 2-story, 13,307.58 SF lot area, single-family residence. Image from Google Maps.

INTERNATIONAL FUEL GAS CODE, 2018 NATIONAL ELECTRICAL CODE, 2017 NATIONAL STANDARD PLUMBING CODE, 2018

DRAWING LIST

Site Plan: Independently referenced official survey; drafted and notated plan in Revit, pre and post final design proposal.

Field Analysis: Independently measured basement and first floor.

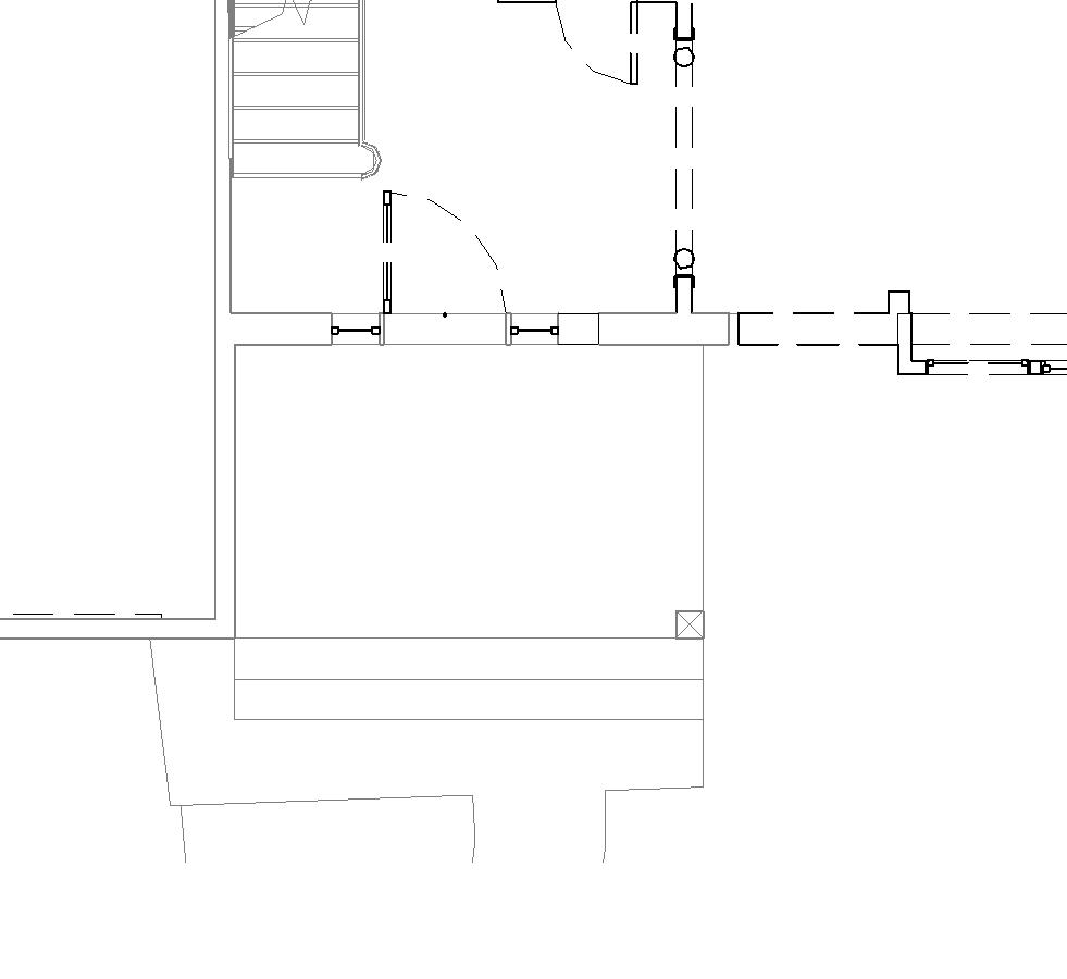
GENERAL NOTES, ZONING INFORMATION A-2 BASEMENT & FOUNDATION PLAN

EXISTING REAR STEPS AND RAILING TO BE DEMOLISHED. EXISTING DECK TO REMAIN AS IS.

EXISTING & NEW FIRST FLOOR PLAN

ROOF PLAN

FRONT & RIGHT ELEVATION

REAR & LEFT ELEVATION

NAILING REQUIREMENTS, DETAILS

SECTIONS AND DETAILS FIRST FLOOR ELECTRICAL PLANS

DOOR

OFFICE EX. DECK

ZONE:

Existing & Demolition Basement Plan: Independently drafted and notated plan in Revit.

DEMO EX. CLOSETS AND LAUNDRY. DEMO WALLS AND REMOVE DOORS AS INDICATED. CAP ALL PLUMBING LINES.

EX. (2) SKYLIGHTS TO REMAIN STAIRS TO BE DEMOLISHED WALL TO BE DEMOLISHED AS INDICATED.

GARAGE DOORS TO BE REMOVED.

WALLS AND (2) COLUMNS TO BE DEMOLISHED, AS INDICATED.

BASEMENT FLOOR PLAN

WEST TO EAST SECTION

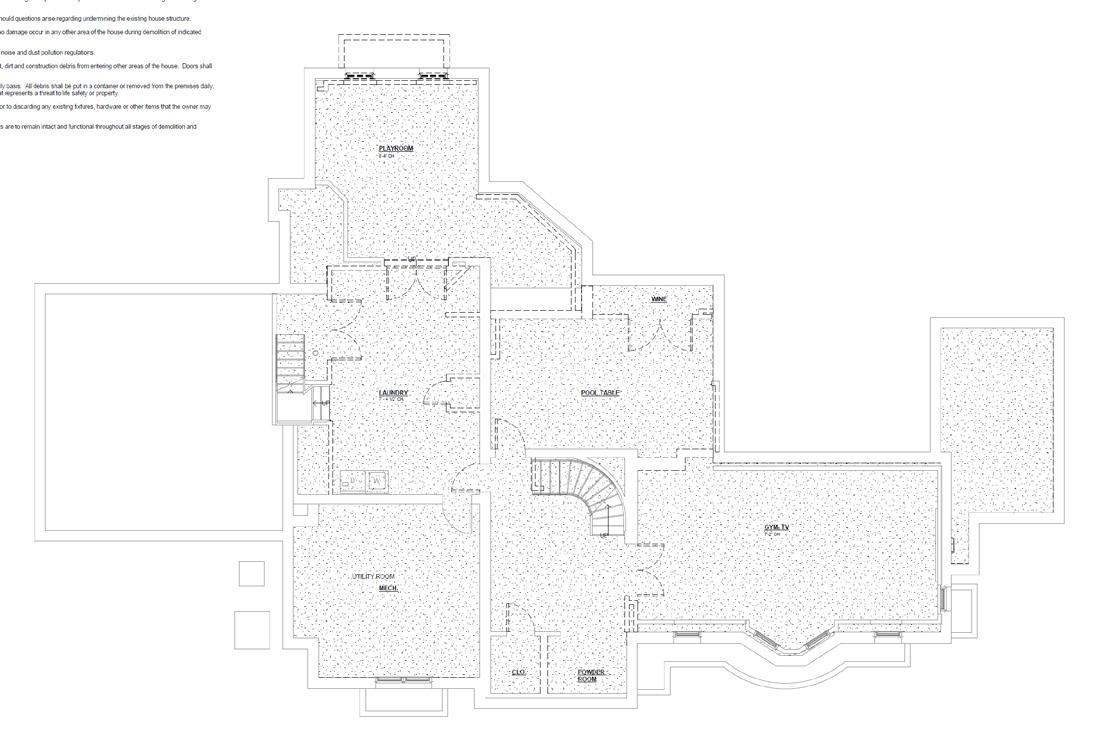
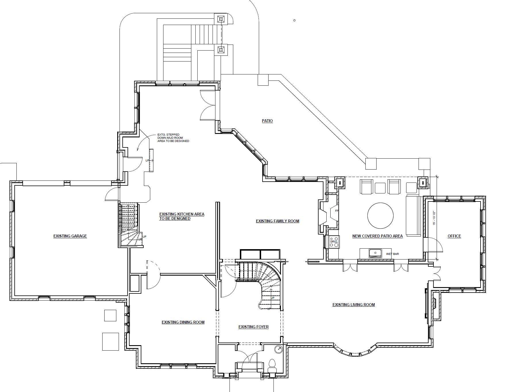
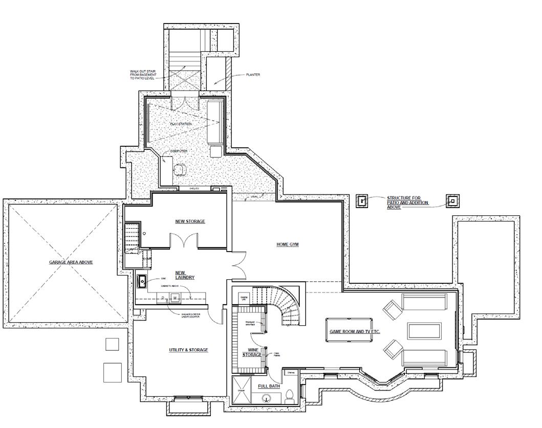
RESIDENTIAL RENOVATION

Lazar Architecture, LLC

Fall 2022; Revit and REScheck

This project is a single-family residential interior and exterior renovation. This interior renovation consisted of finishing the basement with a new wine cellar, gym, game area, and laundry room, renovating the first floor kitchen area and outdoor patio, and renovating the second floor master suite. I independently completed the existing conditions, and the zoning and site analyses. I worked diligently to draft fine-detailed existing plans, and precisely model in Revit. I participated in initial schematic design schemes, both in drafting and 3D-modeling.

Role: Independently modeled and drafted existing conditions. Collaborated during field analysis, zoning analysis, and schematic design.

Existing Property: 2 1/2-story, 36,516 SF lot area, single-family residence.
Existing 3D-Model: Independently modeled and drafted existing conditions in Revit.
Existing Elevations: Independently modeled and drafted existing conditions in Revit.
First Floor and Second Floor Plans: Independently modeled and drafted existing conditions in Revit. Collaborated in initial schematic design iterations.

CONNECTED SUBMERSION

Design 05 - Fall 2022

Long Beach, CA

Professor: Jimenez Lai

Co-Professor: Mor Segal

Long Beach Observatory and Reef

This project strives to achieve the strongest possible connection with the ocean and marine life local to Long Beach and Los Angeles, California. Being submerged under the water and having tide specific areas provides visitors and researchers with the optimal observational and interactive experience for underwater education. This building is intended to be an artificial reef, providing an environment for flora and fauna to flourish and grow. The ocean and its inhabitants are sacred aspects of nature. It is vital that they are understood and respected. This project aims to bring connectedness among humans and marine life via submersion.

Multiple Becher and Becher studies were conducted as preliminary site research.

Becher and Becher refers to the artwork and research conducted by the German conceptual artists and photographers, Bernhard Becher and Hilla Becher.

These studies are meant to bring to light the hidden beauties in everyday industrial scenes, usually organized in a black and white grid.

conducted three studies all within Long Beach, CA: The Cyclone Racer Rollercoaster, Pico Avenue’s Shipping Containers, and finally Long Beach’s local industrial piers, which directly influenced my intention and focus on the health and importance of Los Angeles’ waterfront and marine life.

Cyclone Racer Pedestrian Bridge Long Beach, CA
Site Plan: Proposal located on S. Harbor Scenic Drive in Long Beach, CA, overlooking the San Pedro Bay.
Exterior Render: View from San Pedro Bay, Long Beach, California.
Becher and Becher Study: Pico Avenue’s Shipping Containers. Becher and Becher Study: Long Beach’s Cyclone Racer Rollercoaster.
Becher and Becher Study: Long Beach’s Industrial Piers.
Longitudinal Section
Elevation: High Tide.
Elevation: Low Tide.
Interior Renders: Main Observatory was modeled and rendered using Rhino and V-Ray.
Exploded Axon: Program Diagram.

THE QUEENS VESSEL

Design 04 - Spring 2022

Long Island City, NY

In Collaboration with Rebecca Romero

Professor: Alexandra Barker

Consultants: Charys Clay, Kathleen Kulpa, Emir Pekdemir

Long Island City Waste-to-Energy Plant

This project proposes a vessel-inspired building, serving a Waste-to-Energy and recycling facility, in addition to a gallery showroom and makers’ spaces. Located directly next to a park, it is crucial to encourage visitation from park goers by altering the topography to feel more welcoming. The overarching language of this project consists of a vessel shaped body with extruding “leg-like” bases and points of access. These legs serve both as entrances and trash dropoff and pickup, in addition to routing for conveyor belts and ventilation.

The standing vessel shape is constructed of a steel diagrid structural system, while the horizontal vessels are proposed with a steel cross-bracing arch system. The “legs” are reinforced concrete shells for ultimate support and differentiation in materiality.

Site Plan: Proposal is located underneath the Queensboro Bridge in Long Island City, New York.
Exterior Renders: Views from the exterior courtyard and Vernon Boulevard. Vessels were modeled and rendered using Rhino and V-Ray.
Floor Plan
Exterior Render: Elevational View. Modeled and rendered using Rhino and V-Ray.
Longitudinal Section

ROOF GLASS PANEL

BARRIER

PREFAB WINDOW CASEMENT AND FLASHING 2" GLASS PANEL

1/8" ALUMINUM AIRSEAL SHEET

1/8" ALUMINUM WEATHER PANEL WATER AND VAPOR BARRIER

PRECAST CONCRETE PANEL W12 X 106 BEAM

BATT INSULATION

DRAINAGE MAT, INSULATING

6" DRAINAGE BOARD, OR GRANULAR BACKFILL

STEEL DECKING 6" CONCRETE SLAB WITH

HAUNCH AROUND PERIMETER

PERFORATED DRAIN SYSTEM

Physical Model
Future Floodplains Diagrams: 2020s and 2050s.

Design 03 - Fall 2021 Brooklyn, NY

In Collaboration with Sara Stickney Professor: James Garrison

Co-Professor: Pinar Araci

Farragut Housing Complex

The intention of Polyphony is to make a memorable place; a transition from prioritizing object to prioritizing space. This is emphasized by a modified courtyard typology in regard to the site context. The existing Farragut Housing Complex lacks affordable access to basic amenities such as childcare, fresh food, laundry, and workout and healthcare facilities. There is also a need for memorable space within the site. To rectify the neutrality of the existing landscape and to highlight the Farragut community, a marketplace and maker’s hub is developed from the manipulated landscape, and connected housing. The core and structure of the original towers are maintained for sustainability and historical context, while the additive tilted connecting walls, of the same materials, create a constellation of mixed use housing around and above the community programming. Perforations in the forms ranging from 2 to 3-story cut-throughs and large arches at the base interrupt the uniformity and allow for visual and pedestrian connections with the surrounding neighborhoods.

RETAIL FOOD WORK PLAY

Typical Tower Floor Plan
Environmental Controls Diagram: Thermal, Mechanical, Plumbing and Power.
Physical Model: Laser-Cut basswood on a CNC foam base.
Exterior Renders: Views modeled and rendered using Rhino and Enscape.
Exterior Render: View of typical renovated tower, modeled and rendered using Rhino and Enscape.

RELEVANT RUBBISH

Voracious Vernacular - Fall 2022

Performance Art

This course emphasized the research of global issues of social, political, cultural, and ecological import, and the assembly of building and presenting a visually provocative, multimodal representation of these issues. Efforts were made to understand the impact of image making, video installations and verbal narratives, all in pursuit of bringing awareness to meaningful issues and representing them in new and unorthodox ways. Preliminary research of socio-cultural and socio-political conditions within the local and global context relates to critical practices of architects, as it did in this course. This project brings light to the most commonly produced waste products in the world. I collected all the waste that I individually produced within a 2-week span, which brought attention to my own waste production. I then displayed this trash in an arrangement of photographed stills or physically framed products.

Process: Photographed individual scenes which highlight the biggest waste products in the world.
Images: Aluminum cans; Plastic wrappers; Cotton swabs; Balloons; Paper cups with plastic lids; Daily contact lense cases; Toilet paper rolls; Plastic food containers; Plastic bags; Paper towels; Keurig k-cups; Plastic silverware; Floss; Razers; Plastic containers; Plastic toothbrushes; Cardboard containers; Wine bottles.
Final Exhibition: Assembled photographs and physically framed garbage, highlighting the most commonly wasted products in the world.

CLIFFSIDE PARANOIA

Mediums 03 - Spring 2022

Professor: Joseph Giampietro

Co-Professor: Amir Ashtiani

Visualization - Narrative Renderings

This course introduced students to contemporary mediums, methods and theories of how digital tools, such as ‘Substance Designer and Stager’, impact architectural representation with an emphasis on emotion, perception and experience. Digital media and narrative storytelling were the core concepts in this course. Renderings and narratives were developed in parallel, allowing for synchronized progress and mutual influence. This project hones in on a singular female character, embarking on a personal journey. Feelings of paranoia, disorientation and longing were the drivers for both the renderings and narrative experiences. A keen eye for detail, and curious and explorative imagination were utilized in the production and presentation of this project.

It is a dark, stormy morning in Seattle, Washington. It is dawn, but it could be confused for any time of day due to the thick, dark clouds blocking any hope of sunlight. We begin with View 1 (top image), including the stormy ocean and lightning clouds. The view then shifts and we are looking at the back of a linen dressed woman, who is making her way toward the edge of a cliffside. The winds from the raging waves below are hitting the main subject like impact with solid walls, making every step forward both difficult and strenuous, yet undeniably intentional. She is dramatically leaning forward to convey her fight against the force of the winds.

Each of her footsteps slide and pivot backwards in the thick puddles of mud and pebbles, and this is clear with her every sinking footstep. She is barefoot and her heel is covered in mud and little scratches, to convey that she has traveled far and long to get to this point; strenuously by foot. Her face and clothing are drenched and adding a surprisingly heavy weight to her body, and it is unclear whether the sop of her wet hair is from the massive waves below or the buckets of rain coming from multiple directions. Her normally combed-back hair is knotted and whipping around her face and sticking to her neck, adding to the mess and disorientation of her surroundings. The entirety of her face and her identity are unknown.

In the distance the branches and thick strings of ivy are mimicking the movement of her hair, coiling around the old, weathered mausoleum. The storm is monstrous. Every one of her steps forward is chimed with a bang of thunder or a thud of a heavy branch hitting and sinking into the ground, adding an eerie, chilling rhythm to her progress towards the edge.

She is hovering over the edge of the cliff, and looking onto the disorienting waves below, which are angry, terrifying and mesmerizing in their power. The waves are magnetic, dragging her forward as if she is in a hypnotic state. And then finally the view is a close-up of her profile, as if we are standing right beside her, and her face looks calm and contemplative. The main subject is searching for answers and fighting her way towards the edge of the cliffside, as if the answers might be hanging over the edge.

The scene as a whole is moving in a quiet slow motion, but then when we reach her profile towards the end we are confronted with the roar of the storm and waves, and it’s like we’ve caught up with normal time. The contrast between the close-up shots and details of the woman, and the sheer height of the cliffside and vastness of the ocean serves as an interesting dynamic.

Final Renders: Three renders featuring key moments within the narrative were developed using Rhino, Substance Stager and Designer, and Photoshop.

HEARTACHE

2019 - Acrylic paint on Canvas - 2’ x 3’

Photo-Realism meets Abstraction

This painting demonstrates the translation of photo-realistic concepts into deep abstract feelings and emotions. There is a stark yet balanced contrast between the colors and line-work of the realistic heart and the energetic black and white background. The electrocardiogram wave acts as a direct representation of a heart’s pulse, while also acting as barbed wire constricting and aching the heart. Being able to put an abstract spin on something tangible is important and relevant in the field of architecture. Art and architecture should evoke some feeling while also be functional so that it represents the needs, desires, and priorities of the client.

BODY ACHES

2018

Colors Evoking Emotion: Diptych

These paintings are a demonstration of abstract art. They tap into my fascination with portraiture, while plunging into a spectrum of colors to create an abstract portrait of a screaming woman and aching feet. Utilizing a broad range of colors in an unexpected way is fun and surprising; a breath of fresh air from typical and foreseeable representations. However one may interpret the ‘scream’, it certainly depicts and evokes some emotion from the viewer. Whether that may be rage, anger, pain, surprise or excitement, the subject is undoubtedly full of emotion. This piece was an outlet when I created it; it embodies the emotions I was feeling during that time, and allowed me to be introspective, express myself, and dive deeper into my broad range of emotions. I think it is vital to be able to express oneself in art and architecture. Structures and buildings depict feelings just as human beings do, and being able to encompass those feelings allows for future feeling, relating and learning.

- Acrylic paint on Canvas - 3’ x 4’-6”

REFLECTIONS

2020 - Charcoal and Chalk on Paper - 3’ x 2’

Line-Weight and Shadows

This is an example of a portraiture drawing, executed in charcoal and white chalk. The focus of this composition is not only portraiture, but also the use of varying line-weights and shades to create the illusion of depth and a spotlight on the woman’s face. The direct eye-contact is striking, and confident. At the same time, the subject is not confronting her own reflection, indicating some unchartered territory or unresolved feelings. It’s important to find, or at least search for, a deeper meaning in all art forms; both immediately and over time.

THE BARREL

2019 - Acrylic paint on Canvas - 2’ x 3’

Contrast of Color and Movement

This painting demonstrates awareness of the color spectrum and various movements. There are numerous shades of blues, greens, purples, and whites used to create a cohesive blend of oceanic colors, and display of the wave’s movement and depth. The roar and strength of the wave is contrasted by the static quiet night sky above. Two entirely different movements, ocean and sky, contrasting, yet depending on each other. The use of color, line-weight and form are the building blocks of architecture and design.

creativity, open-mindedness and inventiveness. While some forms of art follow a straight, direct path, other

CARA

2018 - Graphite on Paper - 2’ x 3’

Portraiture

This an example of photo-realistic portraiture, executed in graphite. Precise line-work and shading is apparent in this composition, highlighting the subtle light differences of facial features and strands of hair. An eraser was particularly useful in the creation of this composition, as it acts as a natural highlight. This is clear on the brow bone, whites of the eyes, and highlights in the hair. Although so much of drafting is now completed on computerized programs, having a steady hand and keen eye for detail is an advantage in the field of architecture, including the awareness for how to successfully translate the 3D world onto a 2D platform, and vice-versa.

BATHE

2019 - Watercolor on Paper - 2’ x 4’

Color Through Different Lenses

This painting leverages the use of watercolor to evoke emotion in the varying layers of colorful shapes and patterns. The angular, modelesque face is contrasted by the faint pastel colors and warped distortions of her body, submerged under the sudsy water. It is important in painting and architecture to take advantage of the limitless spectrum of color, texture, shape, shade and layering. How one uses different artistic elements will evoke certain emotions, whether that is eluding to bubbles and reflections in a bathtub, or utilizing different sidings, stones, shakes, bricks, etc. The use of color, and matching and pairing different elements is an expression of art in itself.

THE NATURE OF DRAPERY

2018 - Oil Pastels on Paper - 2’ x 1’-6”

Depth of Colors, Shadows and Reflections

This piece is an example of a Still Life study. It demonstrates abstract representation and depth of physical objects in a room. In addition, the use of color, shading, detail and line-weight contribute to the appearance of the drawing. Drawing in layers and sketches allows for a fuller development of ideas and a more finished detailed product. Being able to draw both, loosely and realistically, is important in the field of architecture. A skilled architect can visualize a detail or concept, and be able to convey that unique aspect in a 2D or 3D representation. An architect must be able to convey their ideas through visual works, while also making it functional in the real world.

TOXIC WAVE

Environmental Awareness

This painting is a demonstration of my interest in environmental activism. This composition is a relevant social commentary on Hokusai’s The Great Wave off Kanagawa; the natural blue colors are replaced with vengeful reds and a toxic manufacturing plant in the background. It’s ever-increasingly important to be environmentally conscious as an architect, and create environmentally-friendly and sustainable designs.

2019 - Acrylic Paint on Canvas - 5’ x 3’

Turn static files into dynamic content formats.

Create a flipbook
Issuu converts static files into: digital portfolios, online yearbooks, online catalogs, digital photo albums and more. Sign up and create your flipbook.
Allison_McBrearty_Portfolio_2025 by alliemcbrearty - Issuu