Architectural Technologist Portfolio

Page 1

Architecture & Design

Portfolio

NADIYA GROMADSKA

Hello there!

Welcome to my portfolio.

My name is Nadiya Gromadska. Architecture and Design is my passion. Graduate with honours from George Brown College’s Architectural Technologist Program 2022.

This book will summarize individual and team projects I have been working on academically, as well as my twelve-years of background experience as an Interior Designer in my homeland, Odesa, Ukraine. Professionally I have been involved from beginning sketches to choosing finish materials and furniture. I am inspired by architecture that is layered, textured, and thoughtfully detailed.

nadingrom@gmail.com

(647) 241-5302

2

2020- 2022

05-06/2014

2007-2008

2003-2004

1999-2003

04/2022-PRESENT

06/2019- 06/2020

02/2011–10/2018

03/2016–09/2018

06/2005–02/2011

12/2004–06/2005

EDUCATION

Architecture Technician, George Brown College, Toronto, ON, Canada

Technology and design sewing article, Certificate Course, School “Effect”, Odesa, Ukraine

Interior designer and Art History, Design School “Service Class”, Odesa, Ukraine

Master’s Degree in Economics, Odesa State Economic University,Odesa, Ukraine

Bachelor’s Degree in Economics, Odesa State Economic University, Odesa, Ukraine

WORK EXPERIENCE

Architectural Drafter, Allied Technical Solutions,ON, Canada

Checkout Services Co-worker, IKEA Etobicoke, ON, Canada

Interior Designer, Self-employed, Odesa,Ukraine

Sewing Machine Operator, (part time) “Olimp” LLC, Odesa, Ukraine

Account Manager, “Bunge Ukraine”, Odesa, Ukraine

Sales manager, “Progress building” (HighRise Construction), Odesa,Ukraine

SKILLS QUALIFICATION

AutoCAD

Revit

Adobe Illustrator

Adobe InDesign

Adobe Photoshop

Microsoft Office

Free-hand sketching

Creative

Details oriented

Customer oriented

Work independently & In team environment

Effective multi-tasking

Problem-solving skills

Resistance to working under pressure

Deans List for 3 years at George Brown College

Successful AIODO Accessibility training 2019 and 2020

LANGUAGES HOBBY

English

Ukrainian

Russian

Sketching

Paining

Sewing

Making fruit bouquets

Embroidery

Reading

Ballroom dancing

Skiing

4
TABLE OF CONTENTS INTRODUCTION 2 CURRICULUM VITAE 3 TABLE OF CONTENTS 5 COLLEGE WORKS Cedarvale Homes Residences 6 Anciant Roots Heritage Eco Tourism Centre 10 Canoe Residences 14 Teepee Bus Shelter 16 Barn House 18 Swirl 20 Model Hammer Arch Truss 22 Steel Structure Model 24 Ikebana 25 Fruit Bouquets 26 INTERIOR DESIGN WORKS Kitchen Plan & Perspective View 28 Bedroom Plan & Perspective View 29 Restaurant Atlantida 30 Painted Canvas Acrylic 32 Karlskirche Church (free-hand sketch) 33

CEDARVALE HOMES

Cedarvale Homes is a commercial and residential community located at Victoria Square Hamlet, Markham, Ontario. The Homes are perfectly connecting modern and traditional aesthetics. All the units are thought to provide comfort and accessibility, without forgetting the respect for the environment and protecting the future generation, by using environmentally friendly materials, and equipment. All the healthy trees existing on the land were preserved.

Architectural Studio, ARCH 3008, April, 2022

Team work:

Elaine Barreira Picinin

Melissa Hombrebueno

Nadiya Gromadska

6

BASEMENT (4 ROOMS) FIRST FLOOR (4 ROOMS) SECOND FLOOR (4 ROOMS)

ELECTRICAL GARBAGE KITCHEN 12 m² DISHWASH PLACE BAKERY STORE MANAGER RESIDENTIAL ENTRANCE 11 m² FIRST FLOOR UNIT 1 & 2 W/D 7 m² DRY STORAGE 5 m² WALKIN FREEZER 9 m² OFFICE 38 m² HVAC 48 m² STAFF REST ROOM 17 m² MEETING ROOM 14 m² OFFICE 8 m² BATHROOM 4 m² MECHANICAL ROOM 3 m² STORAGE/ ARCHIVAL ROOM TANKLESS WATER HEATER HVAC ELEV. BASEMENT FLOOR UNIT 1 & 2 CL HVAC mm1500ø GARB. GARB. mm1500ø 31 m² KITCHEN 10 m² LIVING ROOM 15 m² BEDROOM 1 4 m² ENSUITE BATHROOM BALCONY BALCONY HVAC COAT CLOSET CLOSET CLOSET CLOSET BATHROOM 10 m² MASTER BEDROOM 5 m² ENSUITE 8 m² BF BEDROOM 10 m² LAUNDRY ROOM 32 m² OPEN KITCHEN/ LIVING ROOM W/D COAT CLOSET CL CL ELEC. PANEL LINEN CLOSET 12 m² BEDROOM 2 ELEC. PANEL REF. TANKLESS WATER HEATER TANKLESS WATER HEATER ELEV. ELEV. 1 : 50 A8 1 SECOND FLOOR UNIT 1 & 2
8 EXTERIOR 2ND FLOOR WALL CONNECTION DETAIL SECOND FLOOR CANTILEVER DETAIL PARAPET DETAIL WEST WALL SECTION WOODBINE AVE. SHOULDER GRASS SIDEWALK TRUE NORTH PROPERTY PROPERTY LINE PROPERTY LINE N 10 0 14’ 20” W BASEMENT FLOOR -3500 mm 100 mm DIA. WEEP TITLE NQ3624-115 W/ 150 CRUSHED STONE OVER AND AROUND WEEP TITLE FINISHED GRADE 0 mm FIRST FLOOR 200 mm % 3 A-602 K-LINE NEUF PORTE ENTREE 2VT TIERCES (SEE SPECIFICATIONS) 2ND FL 3200 mm 6 A-600 FLOOR FINISH 22 mm WOOD SHEATING SUBFLOOR WOOD -JOIST @ 303 mm, OF 15.9 TYPE 'X' GYPSUM BOARD 1h F.R.R. BASEMENT FLOOR -3500 mm 100 mm DIA. WEEP TITLE NQ3624-115 W/ 150 CRUSHED STONE OVER AND AROUND WEEP TITLE BASEMENT SLAB 80 mm 25 MPa (3600psi) CONC. SLAB ON R5 - 50 mm SYRFOAM SM INSULATION ON 150 mm COARSE GRANILAR FILL, OR 20MPa. (2200psi) CONC. WITH DAMPPROOFING BELOW SLAB FINISHED GRADE 0 mm FIRST FLOOR 200 mm FOUNDATION WALL FOOTINGS 250 mm POURED CONC. FDTN. WALL 20MPa 2200psi) (2.6m max.) WITH 24" LONG DOWEL @ 48" C/C INTO CONCRETE FOOTING AND BITUMENOUS DAMPROOFING AS PER 9.13.2.2(1)a CAN/CGSB -37.1-M AND OPT DRAINAGE LAYER. DAINAGE LAYER REQ WHEN BASEMENT INSUL. EXTEND 900 BELLOW FIN. GRADE MAXIMUM WALL HEIGHT 2390 ON 550 x 200 CONTIN. KEYED CONC. FGT 32 MPa BRACE FOUNDATION WALL PRIOR TO BACKFILING. ALL FOOTINGS SHALL REST ON NATURAL UNDISTURBED SOIL OR COMPACTED ENGINEERED FILL, WITH MIN. BEARING CAPACITY OF 150kPa OR GREATER MOISTURE BARRIER, 225 mm POURED CONCRETE ON GRADE FLOOR FINISH 22 mm WOOD SHEATING 19 mm PLYWOOD SUBFLOOR WOOD -JOIST @ 303 mm, 2 LAYERS OF 15.9 TYPE 'X' GYPSUM BOARD 1h F.R.R. 2ND FL 3200 mm 2 A-602 WOOD DOOR D6 - SINGLE FLUSH W/ LOUVER HEIGHT: 2108 mm WIDTH: 914 mm FLOOR FINISH 22 mm WOOD SHEATING 19 mm PLYWOOD SUBFLOOR WOOD -JOIST @ 303 mm, 2 LAYERS OF 15.9 TYPE 'X' GYPSUM BOARD 1h F.R.R. EXTERIOR WALL - BRICK FINISH BRICK VENNER 25 mm AIR SPACE 50mm SEMI-RIGID INSULATION AIR BARRIER 13 mm WOOD SHHETING CHIPBOARD 152 mm STUD TRUCK WITH 150 mm BATT INSULATION AND VAPOUR BARRIER 13 mm GYPSUM BOARD HOT DIPPED GALVANIZED OR STAINLESS-STEEL JOIST HANGER 127 mm HOT-DIPPED GALVANIZED OR STAINLESS-STEEL BOLD OR LAG SCREWS WASHER CREATE 127 mm DRAINAGE SPACE PRESURE-TREATED LEDGER 2x8 MIN. ALLUMINIUM RAILING SYSTEMA WITH ANCHORED ON THE BOTTOM BALCONY DOOR D12 - GLASS SYSTEM SOLAR INOVATION STAKING THERMAL HEIGHT 2391 mm WIDTH: 1994 mm T.O. PARAPET 7398 mm 21mm CEDAR SHIP LAP CLADDING, 24mm AIR SPACE, 50mm SEMI-RIGID INSULATION, AIR BARRIER ON 13mm PLYWOOD SHEATHING, 7.04 RSI BATT INSULATION IN 150mm STUD CAVITY, VAPOUR BARRIER, AIR BARRIER ON 13mm PLYWOOD SHEATHING, SURE WHITE EPDM TO OVERLAP SURE WHITE EPDM, RIGID INSULATION TO TAPERED TO 2% SLOPE, AIR BARRIER, 13mm PLYWOOD SHEATHING, 10.56 RSI BATT INSUL. IN JOIST CAVITY, 16" TJI S31 AT 16" O.C., 13mm PLYWOOD SHEATH., 25mm AIR SPACE, ALUMINUM SOFFIT MECHANICALLY FASTENED TO WOOD FURRING AT 305mm O.C. SPF BUILT-UP RIDGE BEAM 5-38 X 235 ALUM. FLASHING BATT INSUL. IN CAVITY ALUM. CAP FLASHING MECHANICALLY FASTENED TO WOOD BLOCKING 2% SLOPE COURSE DATE PROJECT ADDESS DRAWN 10761 VICTORIA SQUARE BLVD. PROJECT NAME A-401 ARCH 3008 CEDARVALE HOMES 2022-04-13 1 : 20 A-401 2 WEST WALL SECTION 1 : 20 A-401 3 EAST WALL SECTION 21mm CEDAR SHIP LAP CLADDING, 24mm AIR SPACE, 50mm SEMI-RIGID INSULATION, AIR BARRIER ON 13mm PLYWOOD SHEATHING, 7.04 RSI BATT INSULATION IN 150mm STUD CAVITY, VAPOUR BARRIER, 13mm GYPSUM WALL BD. FINISH 2x TYPE X 13 GYPSUM WALL BD., AIR BARRIER ON 13mm PLYWOOD SHEATHING, 8.81 RSI BATT INSULATION IN 355mm JOIST CAVITY, 13mm PLYWOOD SHEATHING, 8mm OAK FLOOR FINISH 25mm AIR SPACE ALUMINUM SOFFIT WOOD FURRING 25mm O.C. 14" TJI s47 JOIST @16" O.C. AIR BARRIER WOOD BLOCKING WHITE ALUM. FLASHING MECH. FASTENED TO WOOD BLOCKING AIR BARRIER TO OVERLAP ALUM. FLASHING INTERIOR EXTERIOR CONC. SYRFOAM mm FILL, OR WITH BELOW SLAB BASEMENT SLAB 80 mm 25 MPa (3600psi) CONC. SLAB ON R5 - 50 mm SYRFOAM SM INSULATION ON 150 mm COARSE GRANILAR FILL, OR 20MPa. (2200psi) CONC. WITH DAMPPROOFING BELOW SLAB 90mm BRICK VENEER, 25mm AIR SPACE, 50mm SEMI RIGID INSULATION, AIR BARRIER, 13mm PLYWOOD SHEATHING, BATT INSULATION IN 150mm WOOD STUD, VAPOUR BARRIER, 13mm GYPSUM WALL BOARD 8mm OAK FLOORING, 22mm PLYWOOD SUBFLOOR, 7.04 RSI BATT INSULATION IN JOIST CAVITY, 13mm PLYWOOD SHEATHING, 2x TYPE-X GWB INTERIOR INTERIOR EXTERIOR 2% SLOPE SURE WHITE EPDM, RIGID INSULATION TO TAPERED TO 2% SLOPE, AIR BARRIER, 13mm PLYWOOD SHEATHING, 10.56 RSI BATT INSUL. IN JOIST CAVITY, 16" TJI S31 ROOF TRUSSAT 16" O.C., 2x TYPE-X GWB 21mm CEDAR SHIP LAP CLADDING, 24mm AIR SPACE, 50mm SEMI-RIGID INSULATION, AIR BARRIER ON 13mm PLYWOOD SHEATHING, 7.04 RSI BATT INSULATION IN 150mm STUD CAVITY, VAPOUR BARRIER, AIR BARRIER ON 13mm PLYWOOD SHEATHING, SURE WHITE EPDM TO OVERLAP BATT INSUL. IN CAVITY ALUM. CAP FLASHING MECHANICALLY FASTENED TO WOOD BLOCKING INTERIOR INTERIOR INTERIOR INTERIOR INTERIOR EXTERIOR EXTERIOR DN EXTERIOR INTERIOR EXISTING FOUNDATION WALL W/ ADDED CAVITY COMPOSITION EXISTINNG 470 mm STONE RUBBLE NEW: 50 150 METAL STUD. NEW: 5 mm AIR INFILTRATION BARRIER NEW: 13 mm GYPSUM BOARD NEW FOUNDATION WALL - FN1 (NORTH ADDITION) 50 mm XPS RIGID INSULATION 6.4 mm DRAINAGE PANEL/HDPE 5 mm WATERPROOFING MEMBRANE 250 mm POURD REINFORCE CONCRETE @ 20 MPA 50 x 150 mm METAL STUD @ 406mm O.C. WITH INSULATION 5 mm AIR INFILTRATION BARRIER 13 mm GYPSUM BOARD HVAC TANKLESS WATER HEATER 638 479 EXISTENT BRICK VENNER CONSTRUCTION OF A HOUSE BUILT IN 1863 BRICK VENNER WITH AIR SPACE PLASTER, LATH AND BATTEN ASSEMBLY ON 25mm SHEATING BOARD 38 64 STUD 25mm SHEATING BOARD PLASTER, LATH AND BATTEN ASSEMBLY L1 + L7 CUT OPENING FOR NEW EXTERIOR TYPE DOOR AND PROVIDE A LINTEL SEE THE NOTE ON THE PAGE A-501 M_Door Exterior-Single-EntryHalf Flat Glass-Wood_Clad D3 HEIGHT 2025 mm WIDTH = 943 CONCRETE STEP WITH 343 mm HEIGHT 1000 280 292 222 292 57 NEW INTERIOR SHEAR WALL FOR THE STAIR 16 mm GYPSUM BOARD 190 mm POURED CONCRETE WALL RESILIENT CHANNEL ONE SIDE SPACED 610 mm O.C 16 mm GYPSUM BOARD PAINT EXPOSED SURFACE AS SPECIFIED F.R.R 2HR PROVIDED – OBS SB2 S.T.C. 59+ - PORTLAND CEMENT ASSOCIATION (O.B.C Vol. 2, SB-2 Table 1) NEW EXTERIOR WALL FOR THE HERITAGE HOUSE BRICK VENNER APROXIMADE COLOR OF THE ORIGINAL ONE 10 mm AIR SPACE 50mm PLASTER, LATH AND BATTEN INSULATION 25.5 mm WOOD SHETING CHIPBOARD 76.2 mm STEEL STUD @ 400 MM O.C SET 25 MM AWAY FROM BLOCK 25.5 WOOD SHETING CHIPBOARD 50mm PLASTER, LATH AND BATTEN INSULATION NEW BRICK DETAIL ON THE WALL SIMULATE THE EXITENT ONE EXTERIOR INTERIOR T.O. FLAT ROOF 6600 mm 2ND FL 3200 mm COMMERCIAL RAIILING WITH FIXED GLASS 1118 mm HIGHT EXTERIOR WALL - BRICK FINISH 90 mm BRICK VENEER 25 mm AIR SPACE 50mm SEMI-RIGID INSULATION AIR BARRIER 13 mm WOOD SHHETING CHIPBOARD 152 mm STUD TRUCK WITH 150 mm BATT INSULATION AND VAPOUR BARRIER 15.9 mm TYPE 'X' GYPSUM BOARD EXTERIOR INTERIOR 25.4 mm PRESSURE TREATED WOOD DECKING mm GAP BETWEEN DECK BOARDS 50 100 SLEEPERS MIL ROOFING MEMBRAINE 19 mm PLYWOOD SHEATHING 203.2 mm S31TJI FLOOR JOISTS 190.5 mm BATT INSULATION 16 mm SOFIT PERPENDICULAR EXTERIOR WALL FINISHED GRADE 0 mm FIRST FLOOR 200 mm FOUNDATION WALL 50 mm RIGID INSULATION WITH DRAINAGE LAYER DAMPPROOFIN TO GRADE 200 mm (8 in.) POURD CONC. FOUNDATION WALL 0.15 mm (6 mil.) POLYETHYLENE (M.B.) 64 mm STEEL STUD @ 400 MM O.C SET 25 MM AWAY FROM BLOCK 89 mm ROXUL INSULATION 6 MIL. POLY VAPOUR BARRIER 13 mm GYPSUM BOARD 200 2ND FL 3200 mm SCALE COURSE DATE DRAWN BY CHECKED BY PROJECT ADDESS REVISIONS NO. DATE DRAWN 10761 VICTORIA SQUARE BLVD. MARKHAM, ON PROJECT NAME SHEET NAME MNE ARCHITECTURAL DESIGNS 951 ORBISON BOULEVARD TORONTO, ON, M1M 2Q2 416 - 585 - 9866 WWW.MNE.CA 1 : 10 A-600 DETAILS 1-6 ARCH 3008 CEDARVALE HOMES 2022-04-13 GROUP 4 Checker 1 : 10 A-600 1 PLAN DETAIL-HERITAGE HOUSE BASEMENT ADDITION 1 10 A-600 3 PLAN DETAIL - HERITAGE HOUSE FIRST FLOOR ADDITION 1 : 10 A-600 2 FRONT PARAPET, FLAT ROOF, & BALCONY CELING SECTION DETAIL 1 10 A-600 4 CONECTIO BETWEEN 2ND FLOOR BALCONY AND 1ST FL.STORE FRONT EXTERIOR WALL SECTION DETAIL 1 : 10 A-600 5 FOUNDATION WALL & STOREFRONT WINDOW SECTION DETAIL 1 : 10 A-600 6 CANTILEVERED 2ND FLOOR SECTION DETAIL 21mm CEDAR SHIP LAP CLADDING, 24mm AIR SPACE, 50mm SEMI-RIGID INSULATION, AIR BARRIER ON 13mm PLYWOOD SHEATHING, 7.04 RSI BATT INSULATION IN 150mm STUD CAVITY, VAPOUR BARRIER, 13mm GYPSUM WALL BD. FINISH 2x TYPE X 13 GYPSUM WALL BD., AIR BARRIER ON 13mm PLYWOOD SHEATHING, 8.81 RSI BATT INSULATION IN 355mm JOIST CAVITY, 13mm PLYWOOD SHEATHING, 8mm OAK FLOOR FINISH 25mm AIR SPACE ALUMINUM SOFFIT WOOD FURRING 14" TJI s47 JOIST @16" O.C. AIR BARRIER WOOD BLOCKING WHITE ALUM. FLASHING AIR BARRIER TO OVERLAP ALUM. FLASHING INTERIOR EXTERIOR ALUMINUM FRAMED TRIPLE GLAZED FIXED STOREFRONT WINDOW WITH MINERAL WOOL INSULATION SILICONE CAUKING FACTORY ASSEMBLED ALUMINUM FRAMED TRIPLE GLAZED FIXED STOREFRONT WINDOW WITH MINERAL WOOL INSULATION SILICONE CAUKING FACTORY ASSEMBLED EXTERIOR INTERIOR EXTERIOR WALL - BRICK FINISH 90 mm BRICK VENEER 25 mm AIR SPACE 50mm SEMI-RIGID INSULATION AIR BARRIER 13 mm WOOD SHHETING CHIPBOARD 152 mm STUD TRUCK WITH 150 mm BATT INSULATION AND VAPOUR BARRIER 15.9 mm TYPE 'X' GYPSUM BOARD 21mm CEDAR SHIP LAP CLADDING, 24mm AIR SPACE, 50mm SEMI-RIGID INSULATION, AIR BARRIER ON 13mm PLYWOOD SHEATHING, 7.04 RSI BATT INSULATION IN 150mm STUD CAVITY, VAPOUR BARRIER, AIR BARRIER ON 13mm PLYWOOD SHEATHING, SURE WHITE EPDM TO OVERLAP SURE WHITE EPDM, RIGID INSULATION TO TAPERED TO 2% SLOPE, AIR BARRIER, 13mm PLYWOOD SHEATHING, 10.56 RSI BATT INSUL. IN ROOF TRUSS CAVITY, 13mm PLYWOOD SHEATH., 25mm AIR SPACE, ALUMINUM SOFFIT MECHANICALLY FASTENED SPF BUILT-UP RIDGE BEAM 5-38 X 235 ALUM. FLASHING MECHANICALLY FASTENED TO BUILT-UP RIDGE BEAM BATT INSUL. IN CAVITY ALUM. CAP FLASHING MECHANICALLY FASTENED TO WOOD BLOCKING AIR BARRIER TO OVERLAP ALUM. FLASHING 16" TJI S31 ROOF TRUSS @ 406mm O.C. DN EXISTING FOUNDATION WALL W/ ADDED CAVITY COMPOSITION EXISTINNG 470 mm STONE RUBBLE NEW: 50 x 150 METAL STUD. NEW: 5 mm AIR INFILTRATION BARRIER NEW: 13 mm GYPSUM BOARD 6.4 mm DRAINAGE PANEL/HDPE mm WATERPROOFING MEMBRANE 250 mm POURD REINFORCE CONCRETE @ 20 MPA 50 150 mm METAL STUD @ 406mm O.C. WITH INSULATION mm AIR INFILTRATION BARRIER 13 mm GYPSUM BOARD HVAC TANKLESS WATER HEATER 638 EXISTENT BRICK VENNER CONSTRUCTION OF A HOUSE BUILT IN 1863 BRICK VENNER WITH AIR SPACE PLASTER, LATH AND BATTEN ASSEMBLY ON 25mm SHEATING BOARD 38 x 64 STUD 25mm SHEATING BOARD PLASTER, LATH AND BATTEN ASSEMBLY L1 + L7 CUT OPENING FOR NEW EXTERIOR TYPE DOOR AND PROVIDE A LINTEL SEE THE NOTE ON THE PAGE A-501 M_Door Exterior-Single-EntryHalf Flat Glass-Wood_Clad D3 HEIGHT = 2025 mm WIDTH = 943 CONCRETE STEP WITH 343 mm HEIGHT 1000 292 222 NEW INTERIOR SHEAR WALL FOR THE STAIR 16 mm GYPSUM BOARD 190 mm POURED CONCRETE WALL RESILIENT CHANNEL ONE SIDE SPACED 610 mm O.C 16 mm GYPSUM BOARD PAINT EXPOSED SURFACE AS SPECIFIED F.R.R 2HR PROVIDED – OBS SB2 S.T.C. 59+ - PORTLAND CEMENT ASSOCIATION (O.B.C Vol. 2, SB-2 Table 1) ONE 10 mm AIR SPACE 50mm PLASTER, LATH AND BATTEN INSULATION 25.5 mm WOOD SHETING CHIPBOARD 76.2 mm STEEL STUD @ 400 MM O.C SET 25 MM AWAY FROM BLOCK 25.5 WOOD SHETING CHIPBOARD 50mm PLASTER, LATH AND BATTEN INSULATION T.O. FLAT ROOF 6600 mm 2ND FL 3200 mm COMMERCIAL RAIILING WITH FIXED GLASS 1118 mm HIGHT EXTERIOR WALL - BRICK FINISH 90 mm BRICK VENEER 25 mm AIR SPACE 50mm SEMI-RIGID INSULATION AIR BARRIER 13 mm WOOD SHHETING CHIPBOARD 152 mm STUD TRUCK WITH 150 mm BATT INSULATION AND VAPOUR BARRIER 15.9 mm TYPE 'X' GYPSUM BOARD EXTERIOR INTERIOR 25.4 mm PRESSURE TREATED WOOD DECKING 6 mm GAP BETWEEN DECK BOARDS 50 x 100 SLEEPERS 6 MIL ROOFING MEMBRAINE 19 mm PLYWOOD SHEATHING 203.2 mm S31TJI FLOOR JOISTS 190.5 mm BATT INSULATION 16 mm SOFIT PERPENDICULAR EXTERIOR WALL FINISHED GRADE 0 mm FIRST FLOOR 200 mm FOUNDATION WALL 50 mm RIGID INSULATION WITH DRAINAGE LAYER DAMPPROOFIN TO GRADE 200 mm (8 in.) POURD CONC. FOUNDATION WALL 0.15 mm (6 mil.) POLYETHYLENE (M.B.) 64 mm STEEL STUD @ 400 MM O.C SET 25 MM AWAY FROM BLOCK 89 mm ROXUL INSULATION MIL. POLY VAPOUR BARRIER 13 mm GYPSUM BOARD 200 2ND FL 3200 mm SCALE COURSE DATE DRAWN BY CHECKED BY PROJECT ADDESS REVISIONS NO. DATE DRAWN 10761 VICTORIA SQUARE BLVD. MARKHAM, ON PROJECT NAME SHEET NAME MNE ARCHITECTURAL DESIGNS 951 ORBISON BOULEVARD TORONTO, ON, M1M 2Q2 416 - 585 - 9866 WWW.MNE.CA 1 10 A-600 DETAILS 1-6 ARCH 3008 CEDARVALE HOMES 2022-04-13 GROUP 4 Checker 1 : 10 A-600 1 PLAN DETAIL-HERITAGE HOUSE BASEMENT ADDITION 1 : 10 A-600 3 PLAN DETAIL - HERITAGE HOUSE FIRST FLOOR ADDITION 1 : 10 A-600 2 FRONT PARAPET, FLAT ROOF, & BALCONY CELING SECTION DETAIL 1 : 10 A-600 4 CONECTIO BETWEEN 2ND FLOOR BALCONY AND 1ST FL.STORE FRONT EXTERIOR WALL SECTION DETAIL 1 : 10 A-600 5 FOUNDATION WALL & STOREFRONT WINDOW SECTION DETAIL 1 10 A-600 6 CANTILEVERED 2ND FLOOR SECTION DETAIL 21mm CEDAR SHIP LAP CLADDING, 24mm AIR SPACE, 50mm SEMI-RIGID INSULATION, AIR BARRIER ON 13mm PLYWOOD SHEATHING, 7.04 RSI BATT INSULATION IN 150mm STUD CAVITY, VAPOUR BARRIER, 13mm GYPSUM WALL BD. FINISH 2x TYPE X 13 GYPSUM WALL BD., AIR BARRIER ON 13mm PLYWOOD SHEATHING, 8.81 RSI BATT INSULATION IN 355mm JOIST CAVITY, 13mm PLYWOOD SHEATHING, 8mm OAK FLOOR FINISH 25mm AIR SPACE ALUMINUM SOFFIT WOOD FURRING 14" TJI s47 JOIST @16" O.C. AIR BARRIER WOOD BLOCKING WHITE ALUM. FLASHING AIR BARRIER TO OVERLAP ALUM. FLASHING INTERIOR EXTERIOR ALUMINUM FRAMED TRIPLE GLAZED FIXED STOREFRONT WINDOW WITH MINERAL WOOL INSULATION SILICONE CAUKING FACTORY ASSEMBLED ALUMINUM FRAMED TRIPLE GLAZED FIXED STOREFRONT WINDOW WITH MINERAL WOOL INSULATION SILICONE CAUKING FACTORY ASSEMBLED EXTERIOR INTERIOR EXTERIOR WALL - BRICK FINISH 90 mm BRICK VENEER 25 mm AIR SPACE 50mm SEMI-RIGID INSULATION AIR BARRIER 13 mm WOOD SHHETING CHIPBOARD 152 mm STUD TRUCK WITH 150 mm BATT INSULATION AND VAPOUR BARRIER 15.9 mm TYPE 'X' GYPSUM BOARD 21mm CEDAR SHIP LAP CLADDING, 24mm AIR SPACE, 50mm SEMI-RIGID INSULATION, AIR BARRIER ON 13mm PLYWOOD SHEATHING, 7.04 RSI BATT INSULATION IN 150mm STUD CAVITY, VAPOUR BARRIER, AIR BARRIER ON 13mm PLYWOOD SHEATHING, SURE WHITE EPDM TO OVERLAP SURE WHITE EPDM, RIGID INSULATION TO TAPERED TO 2% SLOPE, AIR BARRIER, 13mm PLYWOOD SHEATHING, 10.56 RSI BATT INSUL. IN ROOF TRUSS CAVITY, 13mm PLYWOOD SHEATH., 25mm AIR SPACE, ALUMINUM SOFFIT MECHANICALLY FASTENED SPF BUILT-UP RIDGE BEAM 5-38 X 235 ALUM. FLASHING MECHANICALLY FASTENED TO BUILT-UP RIDGE BEAM CAVITY ALUM. CAP FLASHING MECHANICALLY FASTENED TO WOOD BLOCKING AIR BARRIER TO OVERLAP ALUM. FLASHING 16" TJI S31 ROOF TRUSS @ 406mm O.C. DN EXTERIOR INTERIOR EXISTING FOUNDATION WALL W/ ADDED CAVITY COMPOSITION EXISTINNG 470 mm STONE RUBBLE NEW: 50 x 150 METAL STUD. NEW: 5 mm AIR INFILTRATION BARRIER NEW: 13 mm GYPSUM BOARD NEW FOUNDATION WALL - FN1 (NORTH ADDITION) 50 mm XPS RIGID INSULATION 6.4 mm DRAINAGE PANEL/HDPE mm WATERPROOFING MEMBRANE 250 mm POURD REINFORCE CONCRETE @ 20 MPA 50 150 mm METAL STUD @ 406mm O.C. WITH INSULATION mm AIR INFILTRATION BARRIER 13 mm GYPSUM BOARD HVAC TANKLESS WATER HEATER 638 479 EXISTENT BRICK VENNER CONSTRUCTION OF A HOUSE BUILT IN 1863 BRICK VENNER WITH AIR SPACE PLASTER, LATH AND BATTEN ASSEMBLY ON 25mm SHEATING BOARD 38 x 64 STUD 25mm SHEATING BOARD PLASTER, LATH AND BATTEN ASSEMBLY L1 + L7 CUT OPENING FOR NEW EXTERIOR TYPE DOOR AND PROVIDE A LINTEL SEE THE NOTE ON THE PAGE A-501 M_Door Exterior-Single-EntryHalf Flat Glass-Wood_Clad D3 HEIGHT = 2025 mm WIDTH = 943 CONCRETE STEP WITH 343 mm HEIGHT 1000 280 292 222 292 57 NEW INTERIOR SHEAR WALL FOR THE STAIR 16 mm GYPSUM BOARD 190 mm POURED CONCRETE WALL RESILIENT CHANNEL ONE SIDE SPACED 610 mm O.C 16 mm GYPSUM BOARD PAINT EXPOSED SURFACE AS SPECIFIED F.R.R 2HR PROVIDED – OBS SB2 S.T.C. 59+ - PORTLAND CEMENT ASSOCIATION (O.B.C Vol. 2, SB-2 Table 1) NEW EXTERIOR WALL FOR THE HERITAGE HOUSE BRICK VENNER APROXIMADE COLOR OF THE ORIGINAL ONE 10 mm AIR SPACE 50mm PLASTER, LATH AND BATTEN INSULATION 25.5 mm WOOD SHETING CHIPBOARD 76.2 mm STEEL STUD @ 400 MM O.C SET 25 MM AWAY FROM BLOCK 25.5 WOOD SHETING CHIPBOARD 50mm PLASTER, LATH AND BATTEN INSULATION NEW BRICK DETAIL ON THE WALL SIMULATE THE EXITENT ONE EXTERIOR INTERIOR T.O. FLAT ROOF 6600 mm 1 : 10 A-600 1 PLAN DETAIL-HERITAGE HOUSE BASEMENT ADDITION 1 : 10 A-600 3 PLAN DETAIL - HERITAGE HOUSE FIRST FLOOR ADDITION 1 : 10 A-600 2 FRONT PARAPET, FLAT ROOF, & BALCONY CELING SECTION DETAIL 21mm CEDAR SHIP LAP CLADDING, 24mm AIR SPACE, 50mm SEMI-RIGID INSULATION, AIR BARRIER ON 13mm PLYWOOD SHEATHING, 7.04 RSI BATT INSULATION IN 150mm STUD CAVITY, VAPOUR BARRIER, AIR BARRIER ON 13mm PLYWOOD SHEATHING, SURE WHITE EPDM TO OVERLAP SURE WHITE EPDM, RIGID INSULATION TO TAPERED TO 2% SLOPE, AIR BARRIER, 13mm PLYWOOD SHEATHING, 10.56 RSI BATT INSUL. IN ROOF TRUSS CAVITY, 13mm PLYWOOD SHEATH., 25mm AIR SPACE, ALUMINUM SOFFIT MECHANICALLY FASTENED SPF BUILT-UP RIDGE BEAM 5-38 X 235 ALUM. FLASHING MECHANICALLY FASTENED TO BUILT-UP RIDGE BEAM BATT INSUL. IN CAVITY ALUM. CAP FLASHING MECHANICALLY FASTENED TO WOOD BLOCKING AIR BARRIER TO OVERLAP ALUM. FLASHING 16" TJI S31 ROOF TRUSS @ 406mm O.C.
DRIVEWAY CONCRETE WALKWAY CONCRETE WALKWAY PERMEABLE PAVERS PERMEABLE PAVERS CONCRETE WALKWAY PROPOSED BUILDING 500 m2 HERITAGE BUILDING 51.80 m2 LANDSCAPE AREA LANDSCAPE AREA LANDSCAPE AREA LANDSCAPE AREA LANDSCAPE AREA COMMUNITY GARDEN COFFEE SHOP PATIO BICYCLE PARKING ZONELOADING BAKERY PATIO 30.54 m 14.76 m 6.42 m 6 m PRIVATE SPACE OUTDOOR ACTIVITY/LOUNGE SPACES PRIVATE SPACE FOR TENNANT USE PLAY AREA LANDSCAPE AREA PROPERTY LINE PROPERTY LINE N 72 0 59’ 10” E BALCONY PRIVACY HEDGE PRIVACY HEDGE WOOD FENCING WOOD FENCING WOOD FENCING BALCONY UP UP UP SNOW COLLECTION WASTE COLLECTION AREA GARBAGE ACCESS GARBAGE ACCESS (GRND FL BELOW BALCONY) GARBAGE ACCESS (GRND FL BELOW BALCONY) GARBAGE ACCESS GARBAGE ACCESS PROPERTY LINE PROPERTY LINE S 10 0 42’ 10” E BRIGHT COLOURED ROOFING REFLECTS SOLAR RADIATION LANDSCAPE AREAS MITIGATES HEAT ISLAND EFFECT PHOTOVOLTAIC SOLAR PANELS GREY WATER COLLECTION

PERSPECTIVE VIEW - SILENCE GALLERY

ANCIENT ROOTS

THE VILLAVALLELONGA HERITAGE & ECO TOURISM CENTRE

Concentration in ARCH 3019

December, 2021

Individual work.

This is a proposed Centre for spiritual cornerstone of ancient church artifacts connected to the contemporary sustainable enclosure that eagerly brings new energy and a positive atmosphere into the town of Villavallelonga, Abruzzo Lands, Italy. Roots are very important to any plant in the world to be able to survive. This Centre is not less important to citizens of Villavallelonga. Roots are presented as a structure wooden columns around Silence Gallery with the Cross in the middle.

PARTI DIAGRAM & INSPIRATION

NORTH ELEVATION

EAST ELEVATION

North East

SOUTH

BOOKSTORE PERSPECTIVE

1
150 North 1
150 East
ELEVATION
2
:
:
SOUTH ELEVATION WEST
3D View 5 Bookstore
WORKSHOP PERSPECTIVE
VIEW PERSPECTIVE NORTH VIEW PERSPECTIVE

EAST VIEW PERSPECTIVE

WEST VIEW PERSPECTIVE

12

GALLERY PERSPECTIVE

PERSPECTIVE VIEW FROM MEZZANINE

CANOE RESIDENCES

WATERFRONT COMMUNITY ARCHITECTURAL STUDIO ARCH 3007

December, 2021

Team work:

Nadiya Gromadska

Melissa Hombrebueno

William Engels

Sheldon Williams

Canoe Residenses combines the varied multiunit practicality of midtown condominiums with the luxurious feel of amenity-heavy waterfront residences. The elliptical shape is evocative of the form and functionality of a canoe, while also allowing for panoramic views of lake Ontario and the floor space for the units that fit every budget.

STUDIO PLAN 2 BEDROOM PLAN

STUDIO sq.m BATH OPEN SPACE BEDROOM sq.m BARRIER FREE 16 sq.m sq.m BATHROOM1 WC SCALE (@ A1) TITLE CLIENT PROJECT DRAWING NUMBER REV STATUS PURPOSE OF ISSUE CODE SUITABILITY DESCRIPTION 1 50 2021-10-15 1:14:37 PM SUITS-STUDIO & BF TWO BEDROOM Project 1 Studio Sustainable Design Project 1 GBC M.Slopack A102 N.Gromadska 10/15/21 RevDescriptionDate 1 50 Level 5 STUDIO 1 1 50 Level 5 -BF 2 BEDROOM UNIT 2

PARAMETRIC BALCONY RAILING

tYPICAL FLOOR PLAN

SITE PLAN

AMENITIES FLOOR PLAN

GROUND FLOOR PLAN

11 m² WC Bath 58.1 SF WC ø1500 ø1500 ø1500 ø1500 LINEN BDRM. CL.BDRM. CL. ø1500 SCALE (@ A1) CHECKED BY TITLE PROJECT NUMBER PURPOSE OF ISSUE SUITABILITY DESCRIPTION TYPICAL FLOOR Studio Sustainable Design Project GBC M.Slopack Rev Description 1 575 271m² RESTAURANT/DINING AREA KITCHEN COLD ROOM MALE WASHROOM FEMALE m² DRY STG. COLD STG. GARBAGE W.C KITCHEN MECHANICAL ROOM ELECTRICAL ROOM BILLARDS ROOM 89m² YOGAROOM VIEWINGNotEnclosedROOM m² PARTY ROOM 1 m² PARTYROOM m² BAR AREA W.C UTILITY UTILITY SCALE (@ A1) PROJECT DRAWING NUMBER DRAWN BY STATUS CODE S.WILLIAMS Rev Description COMMERCIAL UNIT STORAGE COMMERCIAL UNIT COMMERCIAL UNIT 28 m² EXIT/ELEV VESTIBULE UTILITY ø1500 PN TN PROPERTY LINE PROPERTY LINE PROPERTY LINE ENTRANCE 1 ENTRANCE 2 PARKING ENTRANCE TRUCKS ENTRANCE BICYCLE LANES BICYCLE PARKING BICYCLE PARKING SOLAR PANELS GREEN ROOF ROOF PLANTS GREEN ROOF

TEEPEE BUS SHELTER

One week challenge individual assignment. Concentrations in Architecture ARCH 3039

This proposed bus shelter is bringing indigenous representation into Canadian architecture. As most big cities around the globe have similar architecture style. Pro posed shelter is an inspiration from rich First Nations culture.

16 Level 1 DOOR ROOF 1 : 100 4
Level 1 0 Level 1 0 Level 1 0 DOOR 4005 ROOF 7265 Level 1 0 DOOR 4005 ROOF 7265 150 3D View 1 1 : 100 East 2 1 : 100 West 3 1 : 100 North 4 1 : 100 South 5 1 : 100 Level 1 6
Level 1 0 DOOR 4005 ROOF 7265 Level 1 0 DOOR 4005 ROOF 7265 Level 1 0 DOOR 4005 ROOF 7265 Level 1 0 DOOR 4005 ROOF 7265 150 1 : 100 East 2 1 : 100 West 3 1 : 100 North 4 1 : 100 South 5

FRONT ELEVATION

LEFT ELEVATION

RARE ELEVATION RIGHT ELEVATION

18

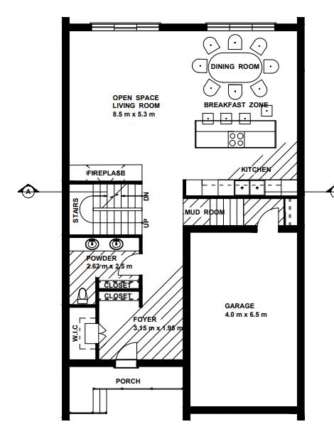
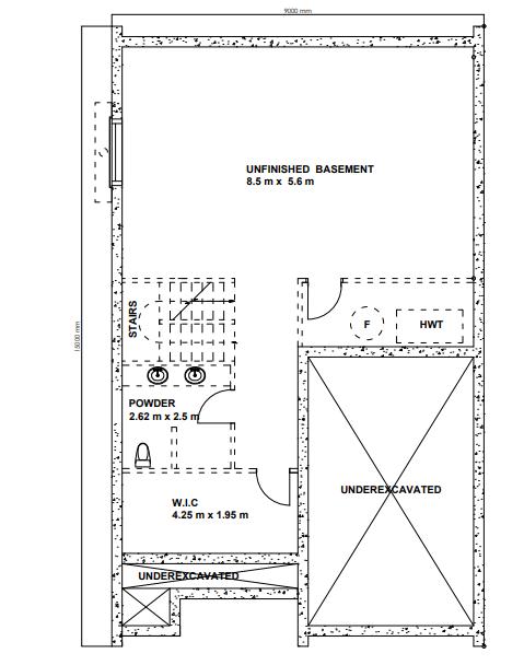
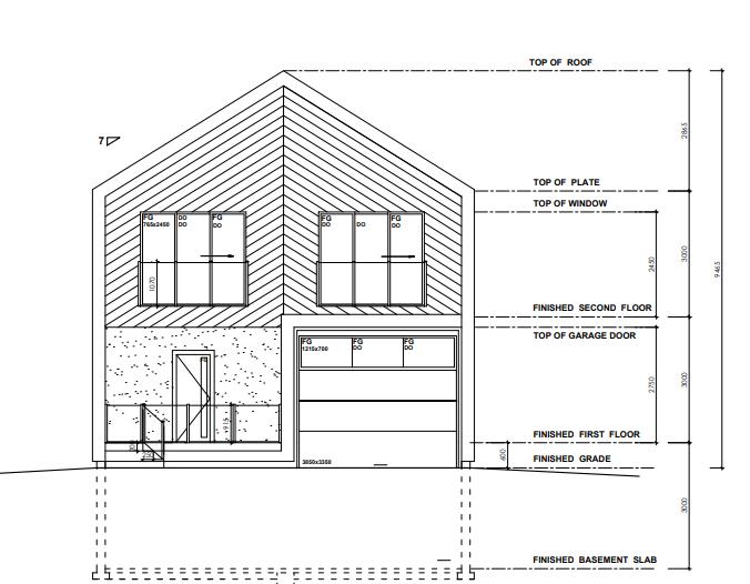
BARN HOUSE

Individual assignment. Architectural Studio, ARCH 1006 Proposed 2 floors residensial building in a barn style.

FIRST FLOOR

SECOND FLOOR

BASEMENT

SWIRL

HIGH-RISE BUILDING

Digital Practice ARCH 3002

December, 2021

Team work:

Nadiya Gromadska

Melissa Hombrebueno

William Engels

Sheldon Williams

SCALE (@ TITLE CLIENT PROJECT DRAWING DRAWN BY STATUS CODE Mel S N Project Martin A106 William RevDescriptionDate 30.01 31.57 9.27 9.28 5.74 2.28 7.40 8.35 8.44 7.37 2.19 3.51 3.50 1.39 3.02 2.98 1.44 1.94 1.83 0.63 0.80 2.20 0.82 4.86 4.86 2.82 4.38 2.99 3.01 4.38 4 A102 1 2 3 4 5 A B C D E 1b 2a 3c 4a Aa Ba Cb Da 2c 3a Bb Ca Db Ab 1a 4b 400x800mm 400x800mm 400x800mm 400x800mm 400x800mm 400x800mm 400x800mm 400x800mm 400x800mm 400x800mm 400x800mm 400x800mm 400x800mm 400x800mm 0.73 2.72 2.28 4.86 1.39 3.02 2.98 1.44 4.86 2.28 2.82 0.63 5.73 9.27 9.28 5.74 30.01 2.20 0.82 4.38 3.50 1.83 3.01 2.99 1.94 3.51 4.38 0.80 2.19 7.40 8.35 8.44 7.37 31.57 3 4 5 2a 3c 4a 2c 3a 4b xmm 400x800mm 400x800mm 400x800mm 400x800mm 400x800mm 400x800mm 400x800mm 400x800mm 400x800mm 400x800mm SCALE (@ A1) CHECKED BY TITLE PROJECT NUMBER CLIENT PROJECT DRAWING NUMBER REV DRAWN BY DATE STATUS PURPOSE OF ISSUE CODE SUITABILITY DESCRIPTION Me li ss a H ombr ebueno S hel don Wi l li am s E ngel s W il li a m N a diya Gromadsk a 1 : 200 PLan Views Project Number Project 1 Part 2 Martin Radikov Checker A101 Author 10/01/21 RevDescriptionDate Floor 1 : 200 2 Floor 2 Roof 3D Structure 4
22

HAMMER ARCH TRUSS

The Trusses have evolved throughout history. This type of truss is much used for supporting open timbered roofs, especially in Gothic halls and churches, known as English Hammer-Beam roof. It is believed to have been first used in the great hall of Westminster Palace, built in 1397.

Structure Systems ARCH 1048, March, 2020

Team work:

Nadiya Gromadska

Andres Machado

Hernandez Zoraya Ivon

Pious Amir

STEEL STRUCTURE MODEL

BUILDING CROSS SECTION

DIY Reused materials (plastic, cardboard, fetr, glue, rust paint)

Structure Systems ARCH 2034, March, 202I

24

IKEBANA

FRUIT BOUQUETS

26

KITCHEN PERSPECTIVE VIEW

28

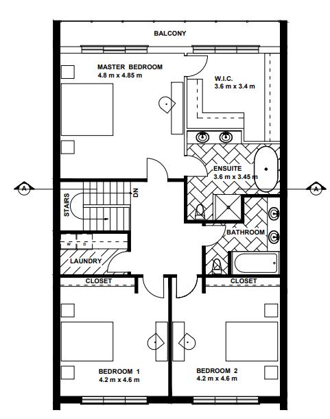
BEDROOM PERSPECTIVE VIEW

FLOOR PLAN

CEILING PLAN

30
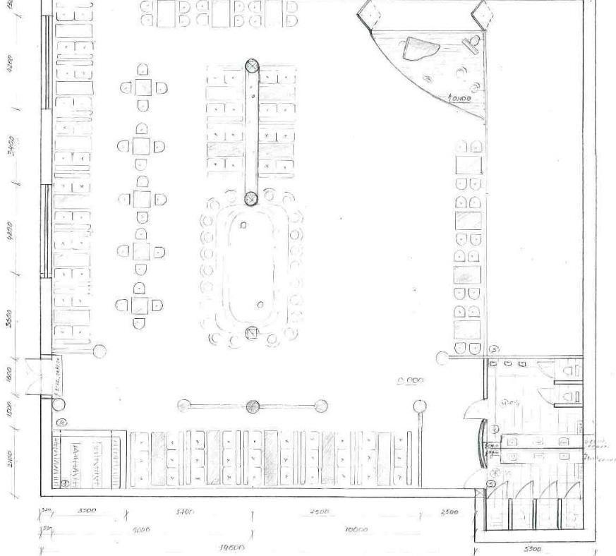
RESTAURANTE ATLANTIDA
BAR TABLE WC
FLOOR PLAN

PAINTED CANVAS ACRYLIC

32

KARLSKIRCHE CHURCH

Nadiya Gromadska

nadingrom@gmail.com

647-241-5302

linkedin.com/in/nadiya-gromadska-85849b208

Turn static files into dynamic content formats.

Create a flipbook
Issuu converts static files into: digital portfolios, online yearbooks, online catalogs, digital photo albums and more. Sign up and create your flipbook.