Portfolio - Alina Krakowiak

Page 1

P O R T F O L I O

Alina Krakowiak

Wpracy architekta najbardziej fascynuje mnie zderzenie dobrego designu z technologią i poszukiwaniem niestandardowych rozwiązań. Głęboko wierzę w możliwość połączenia funkcjonalizm ergonomii z pięknem i ekologią.

Interesują mnie teorie urbanizmu oraz związki i wpływy jakie tworzą się pomiędzy społecznością, miejscem architekturą. Podczas procesu projektowania dużą uwagę przykładam do historii, która niesie ze sobą zarównowyzwania jak i inspiracje.

Obserwując postępującą urbanizację oraz jej wpływ na środowisko uważam za istotne dążenie do wykorzystania istniejących obiektów architektonicznych. Tchnięcie w nie kolejnego życia, poprzez nadanie nowej funkcji, stanowi dla mnie ogromną wartość. Idąc tym tropemwprzyszłości chciałabym skupić się na pracyz tkanką historyczną.

ALINA KRAKOWIAK

alina@sub.com.pl

+48 609 439 199

Gdańsk / Pruszcz Gdański

01. KOMPETENCJE

AutoCAD ArcGis

AutoCad 3D MS Office

Revit CorelDraw

Autodesk Inventor Adobe Illustrator

SketchUp Adobe InDesign

Enscape Adobe Photoshop

Przepisy techniczno-budowlane GIMP

Prawo jazdy kat. B Figma

02. WYKSZTAŁCENIE

10.2020 – obecnie Politechnika Gdańska

Kierunek: architektura i urbanistyka

Poziom wykształcenia: inżynier

09.2005 – 06.2010 Pomorska Szkoła Wyższa w Starogardzie Gdańskim

Kierunek: ekonomia - Specjalizacja: Rachunkowość Finanse

Poziom wykształcenia: licencjat

09.2000 – 06.2004 Liceum Ogólnokształcące w Gniewie

03. SZKOLENIA, KURSY, CERTYFIKATY

06.2023 Revit zaawansowany - Revit Architecture level I, II

Uwielbiam zabawę z grafiką detalem, dlatego w tych obszarach jestem perfekcjonistką. Do pracy napędzają mnie wyzwania, toteż ze śmiałością wchodzę w nowe projekty, dając upust swo e kreatywności Cechuje mn e determ nac a oraz wiara w posiadane umiejętności, dlatego chętnie dzielę się swojąwiedzą angażujęwproces projektowy

Posiadam bogate doświadczenie w pracy na różnych stanowiskach, a moja praca często wspierała procesy projektowe. W 2019 roku postanowiłam sięgnąć po swoje marzenia i rozpoczęłam studia na Wydziale Architektury Wbrew trendom związanym ze sztuczną inteligencją, wierzę, że projektanci będą zawsze potrzebni. Dla mnie dobra architektura to nie tylko piękno, trwałość i użyteczność. To również autentyczność miejsca, nasza historia i kultura oraz cała paleta emocji, którewiążą się z procesem twórczym.

07 DOŚWIADCZENIE ZAWODOWE

10.2020 – 09.2023 Kreślenie wAutoCAD i tworzenie wizualizacji - praca zdalna

Blue Soluons Grzegorz Pietrukiewicz / Chwaszczyno

Przygotowywanie rysunków technicznych ogródków gastronomicznych oraz zadaszeń dla stref rekreacji wypoczynku (AutoCAD);

ź Tworzenie wizualizacji ogródków gastronomicznych wraz z wnętrzem i najbliższym otoczeniem (Sketchup + Enscape/Lumion);

ź Wsparcie w procesie sprzedaży uzgodnieniach z konserwatorem zabytków

07.2021 08.2021 P aktyka na budowie: „Osiedle Więcej” Gdańsk - ROBYG CONSTRUCTION Sp. z o.o.

Marex Sp. z o.o. Mława

Asystowanie kierownictwu budowy w codziennych obowiązkach;

ź Nanoszenie wymiarów na rysunkach dla branżystów (AutoCAD);

ź Uczestnictwo w odbiorach poszczególnych etapów robót przez inspektora nadzoru inwestorskiego;

Pomoc w weryfikacji poprawności wykonania zbrojenia, sprawdzaniu dostaw stali, nadzorowaniu BHP i porządku na budowie.

02.2017 – 09.2020 Specjalista ds. Administracji Wsparcia Sprzedaży

Blue Soluons Grzegorz Pietrukiewicz / Chwaszczyno

ź Przygotowanie szkiców technicznych na podstawie pomiarów (AutoCAD); Zakup, sprzedaż i transport towarów na terenie Europy;

ź Opracowywanie dokumentacji projektowej, powykonawczej planów BIOZ zgodnie z wymogami Generalnych Wykonawców;

ź Ścisła współpraca z kontrahentami z Włoch, Francji, Niemiec, Turcji, Skandynawii;

ź Przygotowywanie grafik dla celów markengowych - w tym druk wielkoformatowy CorelDraw); Prowadzenie biura handlowego.

01.2016 – 01.2017 Account Manager (w dziale produkcji maszyn

ELPLAST EUROPE Sp. z o.o. / Żory

ź Bezpośrednia współpraca z klientem;

Organizator: Procad S.A.

Poziom wykształcenia: średnie Dodatkowe informacje:kurs praktyczny w wymiarze 42 godz.

06.2018 Negocjacje handlowe

12.2017 Adobe llustra or na potrzeby DTP internetu

08.2016 Autodesk Inventor S opień

08.2016 CorelDRAW na potrzeby DTP internetu

ź Tworzenie dokumentacji techniczno-ruchowej dla nowo-projektowanych urządzeń;

Wsparcie działu handlowego w zakresie kreowania promocji nowego wizerunku firmy;

ź Projektowanie grafik dla celów markengowych CorelDraw);

ź Udział w targach branżowych.

03.2013 – 02.2016 Koordynator Projektów Działu Rozwoju

Mikrostyk S.A. / Gniew

ź Bezpośrednia współpraca z klientem w zakresie sprzedaży maszyn prototypowych;

ź Nadzór nad procesem budowy maszyn oraz kontrola kosztów produkcji;

ź Tworzenie modeli 3D projektowanych maszyn (Autodesk Inventor), dokumentacji techniczno-ruchowej instrukcji obsługi;

Opracowywanie strategii ozwoju działu marki MADevice maszyny proptotypowe);

05.2014 Oznaczenie CE dla maszyn i urządzeń według dyrektywy maszynowej,

10.2014 Projektowanie szablonów w WordPress niskonapięciowej kompatybilności elektromagnetycznej)

04.2014 Prezentacje produktowe handlowe

10.2009 Specjalista ds. kadr płac (210 godzin zajęć edukacyjnych

03.2008 Praktyczne problemy prawa pracy w 2008 roku – w siedmiu krokach

angielski: poziom zaawansowany włoski: poziom podstawowy w trakcie nauki) polski: ojczysty

03.2022 – obecnie Koło Naukowe "Hulaj Urban Squad" Politechnika Gdańska / Gdańsk

Dodatkowe informacje:

Członek Zarządu Koła Naukowego

Funkcje: koordynacja projektów, skarbnik

Główne zadania: Poszukiwanie nowych kierunków działania koła naukowego,

integrowanie zespołu, prowadzenie projektów mających na celu pozyskiwanie

środków finansowych na ealizacje zadań, współorganizacja warsztatów

Urbanistyka, psychologia społeczna, jazda na rowerze, literatura fantasy SF grafika, architektura wnętrz, majsterkowanie.

ź Prowadzenie szeroko zakrojonych akcji markengowych marki MADevice udział w targach, prowadzenie seminariów technicznych, opracowywanie tekstów grafik do publikacji branżowych, opieka nad stroną internetową social mediami).

01.2010 – 02.2013 Specjalista ds. Zamówień Rozliczeń Działu Technicznego

Mikrostyk S.A. / Gniew

ź Przygotowywanie ofert handlowych oraz bieżąca obsługa klientów;

ź Koordynowanie projektów budowy maszyn dla sprzedaży zagranicznej;

ź Zarządzanie porelem dostawców zakup materiałów ozliczanie kosztów produkcji oraz nadzór nad stanami magazynowymi; Tworzenie instrukcji obsługi dla produkowanych maszyn prototypowych.

01.2009 – 07.2009 Konsultan Klienta Combidata Poland Sp. z o. o. / Sopot

Pozyskiwanie nowych kontrahentów oraz podtrzymywanie relacji z klientami poprzez stały kontakt telefoniczny spotkania;

ź Organizacja sprzedaż szkoleń informatycznych oraz interpersonalnych na podstawie własnych planów sprzedażowych.

01.2008 – 12.2008 Specjalista ds. Administracyjnych Kadrowych

Comex S.A. / Gdańsk

ź Prowadzenie dokumentacji kadrowej przygotowywanie umów o pracę oraz umów cywilno-prawnych, rozliczenia czasu pracy prowadzenie rekrutacji);

ź Zarządzanie sekretariatem oraz obiegiem dokumentów w firmie.

04.2005 – 12.2007 Sekretarka / Asystentka Zarządu

Mikrostyk S.A. / Gniew

ź Zarządzanie sekretariatem biura zarządu oraz firmy

Wyrażam zgodę na przetwarzanie danych osobowych zawartych w moim CV oraz porolio, dla celów rekrutacyjnych. Dodatkowo zgadzam się na przetwarzanie przez pracodawcę danych osobowych zawartych w moim zgłoszeniu ekrutacyjnym dla celów przyszłych rekrutacji.

05. AKTYWNOŚĆ DODATKOWA 04. ZNAJOMOŚĆ JĘZYKÓW 06. ZAINTERESOWANIA
C
V

PROJEKTY ARCHITEKTONICZNE

Kulturowe serce Wrzeszcza - Projekt koncepcyjny, wraz z opracowaniem budowlanym i konstrukcyjnym budynku użyteczności publicznej - Gdańsk Dolny Wrzeszcz

Uzupełnienie pierzei ul. Partyzantów 323/2 - Projekt koncepcyjny wraz z projektem budowlanym i konstrukcyjnym budynku wielorodzinnego - Gdańsk Wrzeszcz

Dom przy Siennej - Projekt koncepcyjny wraz z projektem budowlanym proekologicznego domu jednorodzinnego - Gdańsk Przeróbka

II. PROJEKTY URBANISTYCZNE

Trakt w zielony takt - koncepcja przekształcenia dzielnicy - Gdańsk Dolny Wrzeszcz

Razem blisko - Koncepcja zespołu zabudowy wielorodzinnej wraz z obiektami usługowymi - Gdańsk Piecki-Migowo

INNE PROJEKTY

Projekt zagospodarowania terenu wraz z elementami zieleni - kampus Politechniki Gdańskiej

Projekt wnętrza domu jednorodzinne - Trzęsacz, woj. zachodniopomorskie - zmiany aranżacyjne realizowane na podstawie bryły budynku zaprojektowanego przez Filipa Lasotę

S P I S T R E Ś C I :
I.
III.
1.1
1.2 1.3
2.2 2.1 3.2 3.1 Makiety wykonywane ręcznie 3.3

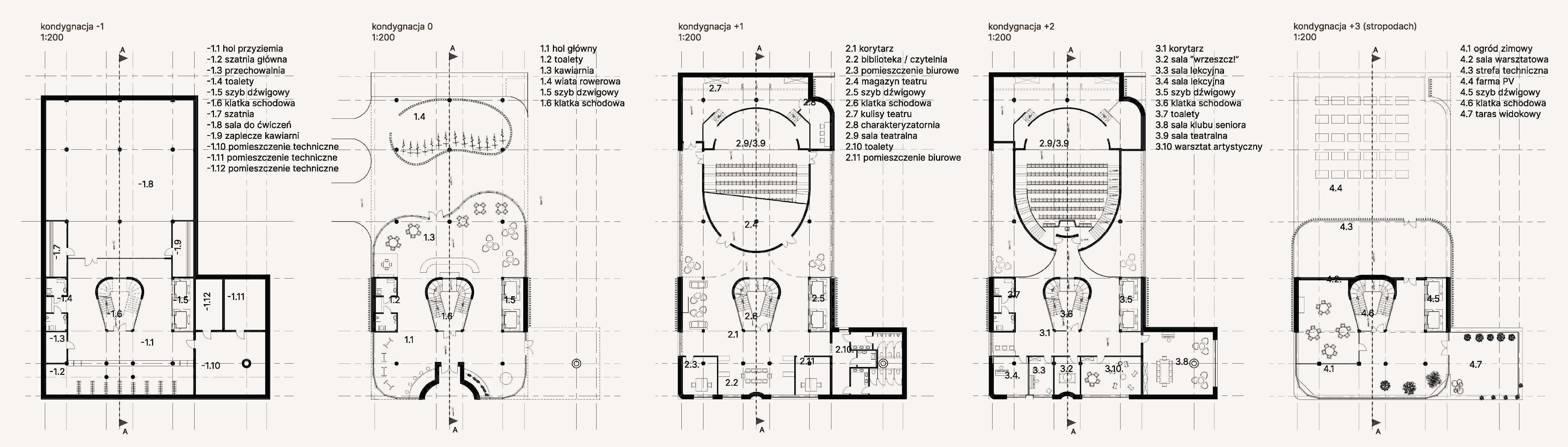
PROJEKT ARCHITEKTONICZNY (sem. V)

Kulturowe serce Wrzeszcza

Projekt koncepcyjny wraz z projektem budowlanym i konstrukcyjnym

Budynek użyteczności publicznej - Gdańsk Dolny Wrzeszcz

autorzy:

Alina Krakowiak, Tomasz Urbański

1 . 1

PROJEKT ARCHITEKTONICZNY (sem. IV)

Partyzantów 323/2 - uzupełnienie pierzei

Projekt koncepcyjny wraz z projektem budowlanym i konstrukcyjnym

Budynek wielorodzinny wraz z usługami w parterze - Gdańsk Wrzeszcz

autorzy:

Alina Krakowiak, Hubert Maciejewski

1 . 2

PROJEKT ARCHITEKTONICZNY (sem. III)

Projekt

Proekologiczny dom jednorodzinny - Gdańsk Przeróbka

Alina Krakowiak autorzy:

1 . 3
Dom przy Siennej koncepcyjny wraz z projektem budowlanym

PROJEKT URBANISTYCZNY (sem. V)

Trakt w zielony takt

Projekt koncepcyjny przekształcenia dzielnicy - Gdańsk Dolny Wrzeszcz

Alina Krakowiak, Tomasz Urbański, Milena Mołdawska, Małgorzata Deptuła autorzy:

2 . 1

PROJEKT URBANISTYCZNY (sem. IV)

Razem blisko - osiedle mieszkaniowe

Projekt koncepcyjny zespołu zabudowy wielorodzinnej wraz z usługami - Gdańsk Piecki-Migowo

autorzy:

Alina Krakowiak, Julia Kromer, Adrian Kowalski

2 . 2

PROJEKT WYRÓŻNIONY NA WYSTAWIE

Zielony pasaż wiedzy

Projekt zagospodarowania terenu wraz z elementami zieleni - Kampus Politechniki Gdańskiej

Alina Krakowiak, Oktawia Kłos, Julia Kargier autorzy:

PROJEKT WYRÓŻNIONY NA WYSTAWIE

3 . 1 INNE PROJEKTY (sem. VI)

Projekt wnętrza domu jednorodzinnego o pow. 280m

Trzęsacz, woj. zachodnio-pomorskie

projekt wnętrza - Alina Krakowiak; projekt bryłu budynku - Filip Lasota autorzy:

3 . 2 INNE
PROJEKTY (sem. IV)
2

Makiety wykonywane ręcznie wymiar 40x40x40 cm

Alina Krakowiak autorzy:

3 . 3 INNE PROJEKTY
(sem. I-IV)
2
„SEN” - wg. własnej koncepcji wymiar 40x40x40 cm, 1:20 sem. I 3.
2
„DZIECIŃSTWO” - wg. własnej koncepcji wymiar 40x40x40 cm, 1:20 sem. I
D Z I Ę K U J Ę Z A P O Ś W I Ę C O N Y C Z A S
Alina Krakowiak

Turn static files into dynamic content formats.

Create a flipbook
Issuu converts static files into: digital portfolios, online yearbooks, online catalogs, digital photo albums and more. Sign up and create your flipbook.
Portfolio - Alina Krakowiak by Alina Krakowiak - Issuu