Portofolio Arsitektur Alif Adanni

Page 1

PORTOFOLIO ARSITEKTUR

ALIF ADANNI

2023
SELECTED PROJECTS

Alif Adanni

21 - 02 - 2000

Saya percaya dengan kerja keras dan kejujuran akan selalu datang kesuksesan

alif.adanni@gmail.com

@alifadanni

081312533617

2015 - 2022

Al - Ukhuwah Boarding Shool

Pendidikan Sekolah Menengah Pertama

Pondok Pesantren Binaul Ummah

Pendidikan Sekolah Menengah Akhir

Universitas Pendidikan Indonesia

Pendidikan Sarjana

Autocad 2D Drafting

Sketch Up 3D Modelling

Enscape for Sketch Up 3D Rendering

Lumion 3D Rendering

Vray for Sketch Up 3D Rendering

Adobe Illustrator

Adobe Photoshop

Pendidikan Hard Skill Soft Skill Pengalaman

2021 - 2023

HDII E-Internship Program

Program magang yang disediakan oleh HDII JaBar

Drafter Arsitektur Arsisten Indonesia

Parket place yang berfokus pada bidang asitektur

11 Besar Skripsi Terbaik Arsitektur UPI

Kompetisi untuk mahasiswa Arsitektur UPI

Lotus Design

Drafter desain

MS Office, Word, Excel, Power Point

Problem Solving

Komunikasi

Etos Kerja

Berpikir Kritis

Teamwork

Integritas

Kreatif

Contens

Mall Bandung Timur

Rumah Tinggal Maisonette

Cafe

Karaoke Room

Taman dan JHJ Kota Bandung

Mall Bandung Timur

TUGAS BESAR SKRIPSI

Perancangan mall dilatarbelakangi oleh berkumpulnya mall di Kota

Bandung dengan konsep Neo-vernakular dengan tujuan agar mall bisa diterima oleh masyarakat sekitar yang merupakan masyarakat pinggir Kota. 001

2021 - 2022

Mall Bandung Timur

Konsep Neo-vernakular

Penggunaan material mix tradisional dan modern menghasilkan perpaduan arsitektur yang dapat keluar dari desain umum mall yang biasanya elegant dan boring.

Mall Bandung Timur

Konsep Bentuk

Bentuk yang dihasilkan berdasar dari budaya sunda yang diolah menjadi bentuk yang lebih ergonomis menghasilkan sirkulasi dan bentuk bangunan yang lebih menarik

Mall Bandung Timur

Konsep Tata Bangunan

Mall memiliki anchor untuk menarik pengunjung pada lantai paling atas sehingga seluruh bagian mall akan lebih memungkinkan untuk dikunjungi. anhor mall adalah Open Rooftop F&B, Bioskop dan Roof Garden

Site Plan

Mall Bandung Timur

Konsep Anchor

Salah satu anhornya adalah taman dengan pemandangan seluruh Bandung

Timur. dengan konsep labirin untuk menghasilkan ruang pdestrian dan ruang hijau .

Mall Bandung Timur

Konsep Anchor

Salah satu anhornya adalah taman dengan pemandangan seluruh Bandung

Timur. dengan konsep labirin untuk menghasilkan ruang pdestrian dan ruang hijau .

Kerja
Gambar
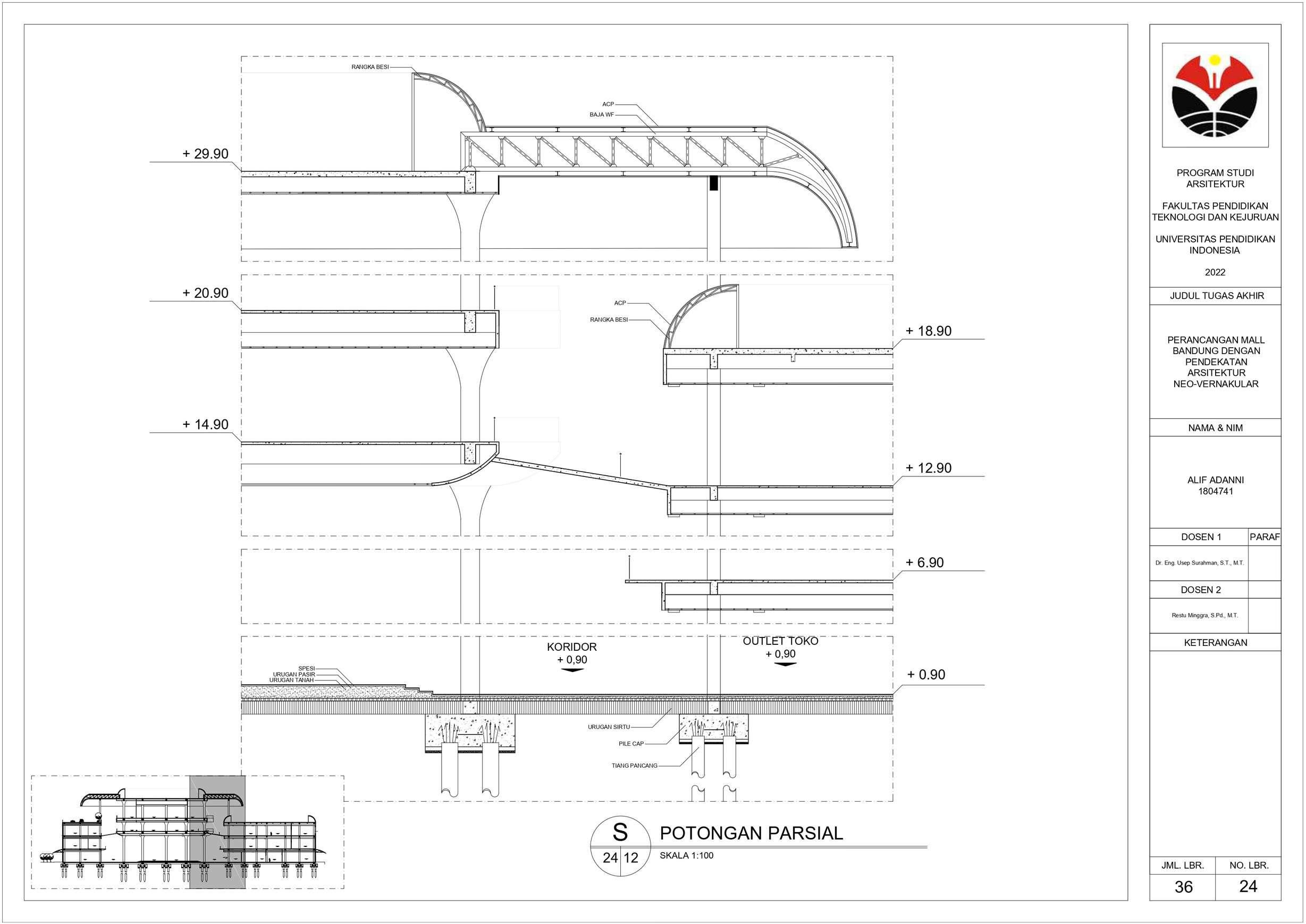
Mall Bandung Timur
Gambar Kerja
Mall Bandung Timur
Kerja
Gambar
Mall Bandung Timur
Gambar Kerja
Mall Bandung Timur
Gambar Kerja
Mall Bandung Timur
Kerja
Gambar
Mall Bandung Timur

Rumah Tinggal Maisonette

TUGAS BESAR MATA KULIAH PERANCANGAN INTERIOR

Perancangan rumah tinggal di lahan yang berdempetan dengan sisi kiri, kanan dan belakang rumah dan memiliki lahan yang terbatas. tantangan dari desain ini adalah menciptakan desain yang dapat memaksimalkan lahan terbatas dengan tetap memberikan semua kebutuhan rumah tinggal. 002 2020

Rumah Tinggal Maisonette

Konsep Open Room

Konsep dimana ruangan dengan berbeda fungsi tidak memiliki pembatas sehingga menghasilkan satu ruang besar yang menjadikan rumah terasa lebih luas

Rumah Tinggal Maisonette

Konsep Modern Scandinavian

Penggunaan konsep modern scandinavian untuk menghasilkan rungan yang lebih luas karena warna dominan putih untuk menghasilkan suasana ruang yang lebih luas

Rumah Tinggal Maisonette Konsep Layout

Mushola dekat dengan

toilet untuk memudahkan

wudhu

Taman Belakang untuk

mendukung sirkulasi

cahaya dan udara

Toilet Tamu di Lt.1

terjangkau dekat

dengan ruang tamu

Foyer tetap dihadirkan

untuk menjadi transisi

antara ruang luar, atas

dan bawah

Teras luar dijadikan

sebagai ruang untuk tamu

Ruang Besar dengan

fungsi

ruang keluarga, ruang makan dan dapur

disatukan tanpa

pembatas sehingga

menghasilkan area yang

luas

Rumah Tinggal Maisonette Konsep Layout

R.Cuci semi open untuk mendukung aktivitas servis

Foyer lt.2 masih

menjadi transisi untuk

lantai atas

Void untuk

mendukung sirkulasi

cahaya dan udara

Ruang Tidur Anak masih

mendapatkan cahaya dan

udara yang cukup dari

void taman dibelakang

Kamar Utama

dilengkapi walk-in closet dan toilet sendiri

Cafe

KLIEN ARSISTEN INDONESIA

Berlokasi di Bekasi, Cafe bertema Industrial Scandinavian ini dibuat dengan memaksimalkan space namun tetap meyediakan kenyaman untuk para pengunjung dengan tampilannya. tersedia dalam beberapa variasi tempat duduk mulai dari untuk nongkrong, nugas sampai santai - santai. 003

2023

Cafe

KLIEN ARSISTEN INDONESIA

Cafe ini memiliki target utama yaitu anak muda baik yang sudah kerja maupun maasih sekolah dimana gaya yang digunakan dalam interior cafe ini berusaha untuk terlihat trendi namun tetap bersih, nyaman dan tenang untuk beraktivitas didalam cafe.

Cafe

KONSEP RUANG

Cafe ini terbagi menjadi 2 bagian yaitu area smooking dan no smoking yang dimana kenyamanan pengunjung akan lebih terdukung karena pengunjung yang tidak merokok tidak terganggu oleh yang merokok.

KASIR

INDOOR no smooking

OUTDOOR smooking

Cafe

KONSEP RUANG

Desain yang digunakan dalam ruanan indoor adalah Scandinavian karena akan lebih mendukung aktivitasnya yang lebih dikhususkan untuk tenang dan untuk aktivitas belajar dan kerja dan untuk area outdoor bertema Industrial untuk lebih mendukung aktivitas nongkrong dan ngobrol santai yang asik.

INDUSTRIAL STYLE

santai, nongkrong, ngobrol.

SCANDINAVIAN STYLE

tenang, nugas, fokus

Cafe

KONSEP RUANG

Hasil akhir dari desain menghasilkan aktivitas cafe yang lebih teratur tapi tidak menghilangkan suasana cafe yang nyaman untuk emnghabiskan waktu bersama.

PROGRAM MAGANG HDII JAWA BARAT

Karaoke Room

Desain karaoke room family dengan tema modern sunda karena lokasinya yang berada di Kota Bandung. tema unik yang jarang digunakan dalam family karaoke room bisa menarik bagi pengunjung . 003 2023

Karaoke Room Reguler Room

KONSEP RUANG

Terdapat 3 jenis ruang yaitu Reguler, VIP dan VVIP dimana ketiga ruang memiliki kapasitas dan desain yang berbeda-beda. reguler untuk kapasitas 3 - 4 orang, VIP untuk 5 - 6 orang dan VVIP untuk 9 - 10 Orang.

VIP Room

VVIP Room

Karaoke Room

Reguler Room

Ditargetkan untuk pengunjung yang datang bersama keluarga atau teman yang berjumlah 3 - 4 orang. kenyamanan tetap didukung oleh air conditioning ruangan. tema sunda menjadikan ruangan terasa seperti di rumah.

Karaoke Room

VIP Room

Ditargetkan untuk pengunjung yang datang bersama keluarga atau teman yang berjumlah 5 - 6 orang. kenyamanan ruangan tercapai karena ruangan yag luas dan desain yang santai. tema sunda tetap ditonjolkan dengan finishing bambu di ruangan.

Karaoke Room

VVIP Room

Ditargetkan untuk pengunjung yang datang bersama keluarga atau teman yang berjumlah 9 - 10 orang. kenyamanan ruangan diberikan dari ruangan yang sangat luas untuk grup yang besar. dengan ruangan yang bertema sunda dan modern akan menghasilkan suasana yang nyaman dan asik.

Karaoke Room

Ayaman Bambu

Sarang Burung

Elemen Bambu

Finishing kayu

Elemen Sunda

Karaoke Room

Bentuk Sederhana

Warna Netral(Putih)

Material Modern

Minim Hiasan

Elemen Modern

Taman dan JHJ Kota Bandung

Klien Arsisten Indonesia

Berupa full desain dan redesign yang ditujukan dalam rangka perbaikan beberapa taman dan Jalur Hijau Jalan di Kota Bandung. dengan desain yang dipenuhi hijau tanaman membuat taman di Kota Bandung menjadi lebih asri seperti yang sudah diketahui banyak orang sebagai ciri khas di Kota Bandung. 003 2023

JHJ Kota Bandung

KONSEP DESAIN

Jumlah JHJ yang didesain terdapat 3 JHJ dimana setiap JHJ memiliki desain yang berbeda beda dimana desain dari JHJ ini merupakan desain yang berusaha untuk membuat jalan kota Bandung terasa lebih asri dan segar

JHJ Jl. CIbeunying

JHJ Jl.Citarum

JHJ Taman Lalu Lintas

Taman Kota Bandung

KONSEP RUANG

Terdapat 3 taman dalan proyek ini yang dimana setiap taman memiliki desain yang berbeda-beda sesuai dengan budget dan kebutuhan taman dimana terdapat taman yang ada taman bermain dan tidak dan juga menggunakan tanaman yang berbeda sesuai dengan kebutuhan

Taman Cijagra

Taman Lembu

Taman Turangga

Taman dan JHJ Kota Bandung

KONSEP TANAMAN

Tanaman-tanaman yang digunakan dalam desain merupakan tanaman-tanaman khas daerah Bandung untuk menumbuhkan kembali tanaman lokal dan juga tanaman lokal lebih mudah didapat karean jumlah yang akan digunakan dalam desain sangat banyak

HANJUANG ARAREA

MARANTA SILVER AIRIS

SPATUFILUM

CALATHEA LOESENERI

MUTIARA

SYNGONIUM VARIEGATA

CALATHEA LUTEA

MIANA MERAH BROMELIA LILI PARIS ADAM HAWA LANDEP RUMPUT MONDO

Taman dan JHJ Kota Bandung

SELECTED PROJECTS

TE K

PORTOFOLIO ARSITEKTUR

ALIF ADANNI

2023

Turn static files into dynamic content formats.

Create a flipbook
Issuu converts static files into: digital portfolios, online yearbooks, online catalogs, digital photo albums and more. Sign up and create your flipbook.
Portofolio Arsitektur Alif Adanni by alifadanni - Issuu