BOOK 24

Page 1

4 RUE ALFRED BRUYAS . 34 000 MONTPELLIER ALICE.LHARDIT@HOTMAIL.FR 06 75 41 16 03 ALICE LHARDIT

01/ CURRICULUM VITAE

02/ PROJETS D’ÉCOLE

- MASTER 1 - PROJET DE FIN D’ÉTUDE

LES JARDINS DU BOURG ENSEMBLE DE LOGEMENT

SOUS LA TERRE LE VIN CENTRE OENOLOGIQUE

03/ PROJETS D’AGENCE

04/ PROJETS PERSONNELS

SOMMAIRE

01/ CURRICULUM VITAE

CONTACT

4 rue Alfred Bruyas Montpellier, 34000

06 75 41 16 03

alice.lhardit@hotmail.fr

COMPÉTENCES INFORMATIQUES

ALICE LHARDIT

EXPÉRIENCES PROFESSIONNELLES EN AGENCE

Fevrier 2023/Novembre 2023 :

NURArchitectes, salarié en CDI. Montpellier

Réhabilitation et reconstruction d’immeubles pour logements collectifs.

Phases AVP, APS , APD jusqu’à la constitution des dossiers de permis de construire/ déclaration préalable de travaux/atttestation de travaux.

Phases DCE, ACT

Constitution de dossier de candidature d’appels d’offres marchés publics.

Juin 2021/Fevrier 2023 :

GSLN Architectes, Missions en auto entreprise. Montpellier Missions diverses logements, commerces, cabinet médical, restauration.

Phases AVP, APS , APD jusqu’à la constitution des dossiers de permis de construire/ déclaration préalable de travaux/atttestation de travaux principalement. Projets de surélévation, réhabilitation, reconstruction, extension, réaménagement.

Phases DCE rédaction de CCTP et PV de récéption avec levés de reserves.

Décembre 2020/Juin 2021 :

GSLN Architectes, mise en situation en milieu professionnel dans le cadre de la formation pour la HMONP. Montpellier

Participation aux phases AVP, APS , APD jusqu’à la constitution des dossiers de permis de construire/ déclaration préalable de travaux/atttestation de travaux principalement pour particulier. Création de mobilier sur mesure, insertion photoshop, travail de façade, relevés existants, Aménagement intérieur et rénovation d’appartements, recherches matériaux/fournitures.

Septembre 2018/Février 2019 : Stage de 6 mois

Tourre Sanchis Architectes, stage de fin de 4ème année en agence d’architecture, Montpellier

Participation aux phases AVP, APS , APD jusqu’à la constitution de dossiers de permis de construire pour des logements sociaux.

Collaboration en analyse et recherche pour diagnostic Hôpital Nord de Marseille. Travail autonome pour proposition de scénographie magasin DARTY Montpellier.

Collaboration suivi de chantier logement social ZAC Port Marianne, rendez vous entreprise, levés de réserves, accompagnement jsuqu’à livraison.

Juin /Aout 2017 : Stage de 2 mois

A+ Architecture, stage en agence d’architecture, Montpellier

Participation à la production de documents graphiques coupes d’architecture/élévations à destination d’un concours pour un EPHAD.

Autocad

Et la volonté d’en ajouter des nouveaux

LANGUES

Français

Anglais

Espagnol

HOBBIES

Explorer

Capturer

Partager

Création d’une illustration murale pour le nouveau crous Aix Marseille, Lucien Cornil. Participation à la production de carnets de détails, crous Aix Marseille, Lucien Cornil. Étude autonome de faisabilité sur potentialité de terrain, Villeneuve-lès-Maguelone.

EXPÉRIENCES PROFESSIONNELLES PERSONNELLE

Fevrier2022/Septembre2023 :

-Mission complète pour la refection totale d’un studio 45m2, centre historique de Montpellier. -Déclaration préalable de travaux pour la rénovation d’une façade en centre historique de Montpellier en secteur sauvegardé.

-Rénovation espaces intérieurs d’une maison de village, création de mobilier sur mesure.

Janvier 2021/Mai2021 :

Mission complète pour la refection totale d’un studio 38m2, centre historique de Montpellier secteur sauvegardé.

Septembre 2020 : Projet d’une signalétique pour le jardin botanique historique de Montpellier SupAgro.

Aout 2020 :

Montage de façades d’un bâtiment ancien, Montpellier, à but promotionnel. VALENIA promotion.

FORMATIONS

Décembre 2021 : Inscritpion à la formation HMONP à l’école d’Architecture de Montpellier. Validation des examens écrits, soutenance du mémoire à valider.

Juin 2020 : Diplôme d’architecture avec les félicitations, à l’École Spéciale d’Architecture, Paris. Sujet de diplôme : Mobilités et projets de ville

Decembre 2017 : Licence d’architecture à l’École Spéciale d’Architecture, Paris.

Septembre/Decembre 2014 : Préparation cycle découverte à L’École spéciale d’Architecture, Paris.

Septembre 2013 : Mise à niveau en art appliqués à l’ESMA, Montpellier.

Juin 2011 : BAC ES, Montpellier.

02/ PROJETS D’ÉCOLE

LES JARDINS DU BOURG

La commune de Bourneville-Sainte-croix possède une véritable idendité liée à la compacité de sa forme urbaine. L’agriculture a un rôle actif dans la vie de la commune, ressources du territoire. Les terres agricoles viennnent encercler la vie urbaine. C’est cette relation entre la ville et la nature que j’ai désirée mettre en valeur.

Mon processus de réflexion s’est orienté sur les moyens à mettre en oeuvre pour renforcer les liens entre les différentes communes pour créer un sentiment d’appartenance à un territoire commun.

Un programme mixte est envisagé afin de renforcer le lien et de signaler la présence d’une ville attractive. Des espaces de tiers lieux, mêlés à un ensemble de logement le tout relié par un jardin partagé

L’implantation des logements permet un espace privé à chacun mais aussi un accès aux espaces verts partagés. Afin de favoriser les ressources de la commune chaque logement possède un revêtement différent avec des matériaux biosourcés comme le bois, le chanvre... mais aussi des matériaux issus des entreprises locales comme les briques et ardoises.

LES JARDINS DU BOURG

Projet de 4ème année

lieu : Bourneville , France

date : 2019

Programme : Ensemble de 20 logements, tiers lieux, Espaces de rencontre

DUPLEX R+1 T2 R+1
ÉLÉVATION SUD VUE DEPUIS L’ENTRÉE SUR SITE
T3 RDC COUPE AA’

PROJET DE FIN D’ÉTUDE LA MOBILITÉ ET LA RéSILIENCE AGRICOLE

Au cours de mon cursus de Master à l’école spéciale d’architecture, plusieurs problématiques ont été au coeur de nos processus de réflexion. Ce master a été l’occasion de se questionner sur le lien fondamental qu’entretient la ville avec l’architecture en s’intéressant aux déséquilibres économiques, écologiques et sociaux.

L’exercice du projet de fin d’étude doit être l’occasion de concrétiser les connaissances acquises lors du Master et de se questionner sur le renouvellement de la ville. Ce projet s’articule autour de la problématique de l’hypermobilité et de ses conséquences sur nos territoires mais aussi sur les opportunités qu’elle pourrait générer.

Mon étude porte plus précisément sur le cas de la nouvelle gare TGV de Montpellier construite en périphérie de la ville. Depuis quelques années de nouvelles gares TGV ont été implantées en bordure des villes, venant compléter l’offre de transport déjà en place dans les villes via les gares historiques. Souvent construites dans des territoires vierges d’urbanité elles font l’objet d’aménagement urbain et de réflexion quant au devenir de leur environnement.

Ces futurs aménagements urbains font souffrir les terrains agricoles ou viticoles qui entourent les gares pourtant acteurs essentiels de la ville, Montpellier est au coeur d’une politique d’urbanisation massive. Une urbanisation de remplissage qui tourne le dos au patrimoine paysager qui constitue les bordures de la ville. Les vignes et les exploitations s’altèrent au profit de l’étalement urbain. La gare pourrait être une nouvelle articulation entre la ville et l’agriculture en favorisant la résilience du sytème agricole.

Afin de raisonner cet étalement urbain, ma recherche se porte sur les différentes possibilités qu’offre la nouvelle gare de Montpellier en terme de territoire urbain renouvelé.

SITE PROJET

Projet de fin d’études

lieu : Montpellier, France

date : 2020 Programme : Centre oenologique et fermes ressources

Du fait de la qualité paysagère mais aussi du constat du agricoles mon projet s’est orienté vers une philosophie du respect de la culture. La présence de la gare peut être un appui dans la création d’un pôle oenologique revalorisant l’héritage viticole ainsi freiner l’étalement urbain.

Le tourisme serait favorisé par la gare et la logistique des transferts de marchandises des vignerons serait également assurée de manière plus efficace. Il semble alors intéressant en terme d’articulation gare et le projet d’envisager un mixte, mêlant tourisme et production.

Il se positionnerait à l’entrée sud de la ville, la nouvelle porte d’entrée de Montpellier.Ce projet intègre des espaces de rassemblement, de partage ressources ), ouvert sur le paysage mais aussi des espaces plus professionnels intégrés au chai pour les vignerons.

L’ensemble de l’intervention vise à proposer un équipement porteur de sens. une implantation semi enterrée, une déambulation sous les vignes et cela afin de ramener le visiteur à la vin, la terre. D’un point de vu fonctionnel cette intervention semi enterrée permet d’optimiser la vinification en gravité. L’intention principale est d’intégrer le pôle œnologique avec la vigne en plus possible les ruptures visuelles.

SOUS LA TERRE LE VIN
ESPACE VITICOLE
REALISE A L'AIDE D'UN PRODUIT AUTODESK VERSION ETUDIANT REALISE A L'AIDE D'UN PRODUIT AUTODESK VERSION ETUDIANT

03/AGENCE

AGENCE

ARCHITECTES

POUR UNE MAISON

ESQ/AVP/PC

SEPTEMBRE 2022

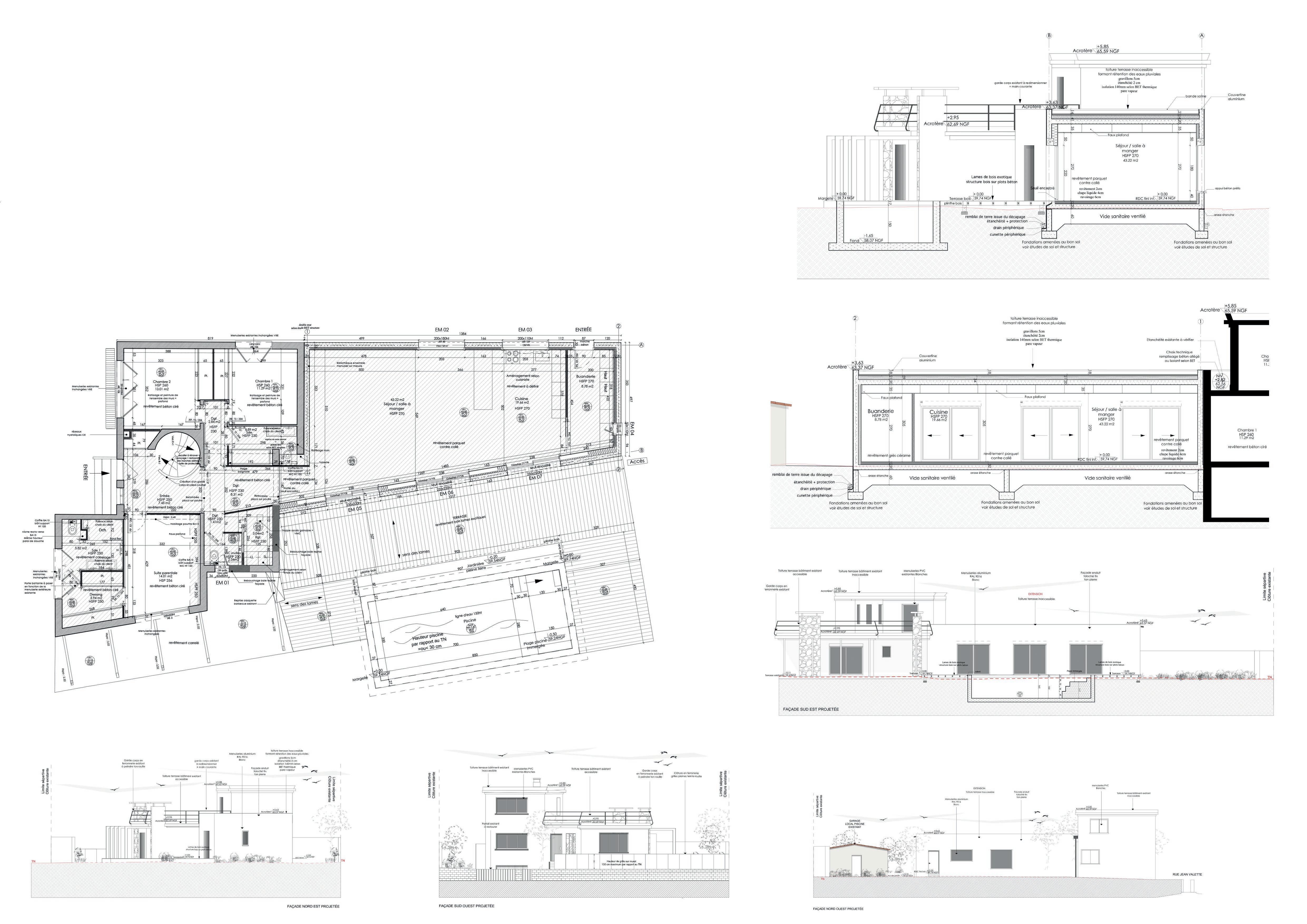
- Plans d’esquisse/Avp pour l’aménagement intérieur et exterieur avec création d’une piscine et de terrasses bois - Plans d’esquisse/Avp pour la création d’une extension au dessus du garage - Constitution des pièces graphiques pour le dossier de permis de construire

GSLN
CRÉATION D’UNE EXTENSION PAR SURÉLÉVATION
R+1 extension
RDC

AGENCE GSLN ARCHITECTES

CRÉATION D’UNE EXTENSION PAR SURÉLÉVATION

POUR UNE MAISON

ESQ/AVP/PC

SEPTEMBRE 2022

- Plans d’esquisse/Avp pour la création d’une extension - Constitution des pièces graphiques pour le dossier de déclaration préalable - Planches ambiances pour l’aménagement de l’extension

Plan de masse
R+1 RDC

ESQ/AVP/PC/ DCE / CCTP

SEPTEMBRE 2022

- Plans d’esquisse/Avp/PC/Dce pour la création d’une extension et l’aménagement extérieur avec la création d’une piscine

- Plans d’esquisse/Avp/PC/Dce pour la rénovation de la partie existante de la maison RDC et R+1

- Constitution des pièces graphiques pour le dossier de déclaration préalable

- Planches ambiances pour l’anémagement de la partie existante et de l’extension

- Constitution des pièces graphiques pour le dossier DCE - Rédaction du CCTP

GSLN
AGENCE
ARCHITECTES CRÉATION D’UNE EXTENSION
RDC Coupe sur extension AA’ Coupe sur extension BB’

Rénovation et aménagement d’un

magasin de vêtements

ESQ/AVP/DCE /CCTP

MAI 2022

- Recherches revêtments et matériaux

- Dessins sur mesure mobilier de rangements /portants / banque d’accueil / Niches ... - dessins des façades intérieures

- Élaboration du dossier de consultation des entreprise pour la phase dce.

AGENCE GSLN ARCHITECTES
Vitrine GS ARCHITECTURES & LAURA NARGEOT ARCHITECTES LE GALEO/ 1348 AVENUE RAYMOND DUGRAND / 34000 MONTPELLIER REAMENAGEMENT D'UN MAGASIN DE VÊTEMENT 10 Bd des Arceaux, 34000 Montpellier ESQ 10/02/2022 ÉLÉVATIONS HSP 2.76 HSP 2.90 Portants suspendus au plafond Meuble sur mesure présentoir 50 cm ht Meuble sur mesure présentoir et rangements 35 cm ht Miroir cabines Cabines 90 cm x 110 cm x 200 cm ht Accès arrière bureau Vitrine Réserve Vitrine PLAN N° ARCHITECTES 34000 MONTPELLIER ECHELLE : 1/50 IND ÉLÉVATIONS Miroir cabines Cabines 90 cm x 110 cm x 200 cm ht Revêtement peinture décorative Niche Accès arrière bureau Vitrine Accès Réserve HSP 2.76 HSP 2.90

Console + rangements hauteur all

Console + rangements hauteur all

Composition présentoir

Console + rangements 35 cm ht

Magasin S = 30.52 m2 HSP 3.16

Présentoir 60 cm ht

Vitrine et estrade HSP 2.90

ACCEUIL 90 cm ht

Vers R+1
Étagère
HSP 276 S
Cabines
AGENCE GSLN ARCHITECTES
MASTER RDC

04/ PROJETS PERSONNELS

RÉNOVATION et décoration D’UN

STUDIO DE 40 M2.

ESQ/AVP/DP/DCE/DET/AOR.

RDC PHOTOS DU PROJET RÉALISÉ

RÉNOVATION et décoration D’UN STUDIO DE 32 M2.

ESQ/AVP/DP/DCE/DET/AOR.

RDC

Production d’une façade d’un bâtiment ancien pour l’agence de promotion VALÉNIA.

25 rue Saint Guilhem, Montpellier

ALICE LHARDIT PORTFOLIO 2023

Turn static files into dynamic content formats.

Create a flipbook
Issuu converts static files into: digital portfolios, online yearbooks, online catalogs, digital photo albums and more. Sign up and create your flipbook.