Portafolio BIM de Aleyxander

Page 1

ALEYXANDER AGUILAR
PORTAFOLIO ARQ.

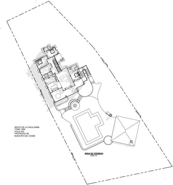
CASA DE CAMPO EN SORÁ

Este proyecto se sitúa en una comunidad montañosa y abarca un terreno total de 2,777.35 m2, con una superficie construida que comprende 618.86 m2 en área cerrada y 114.96 m2 en área abierta.

CASA DE CAMPO EN SORÁ ARQ. ALEYXANDER AGUILAR

La distribución de las áreas construidas se detalla según los niveles:

Semi-sótano (-100): Incluye una habitación con baño, un bar, lavande- ría, área de juegos, sala de cine, depósito y terraza.

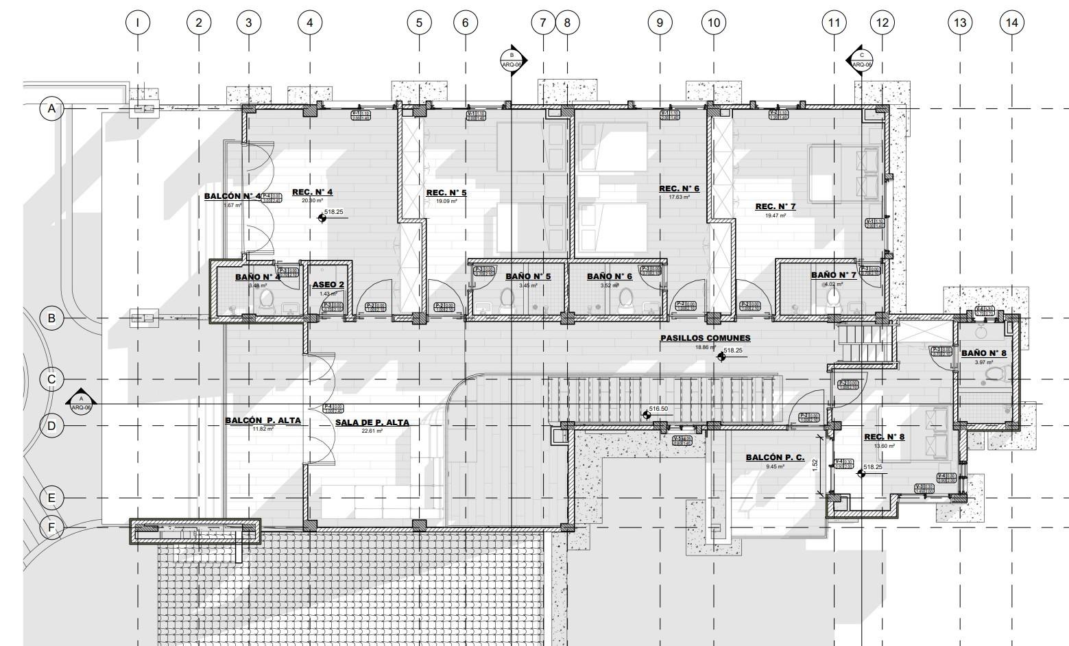
Primer nivel (000): Dispone de tres habitaciones, cada una con su res- pectivo baño, un estudio, cocina, comedor, sala, terraza y portal.

Segundo nivel (100): Ofrece cinco habitaciones, cada una con su pro- pio baño, sala y dos terrazas.

Tercer nivel (200): Destinado como ático.

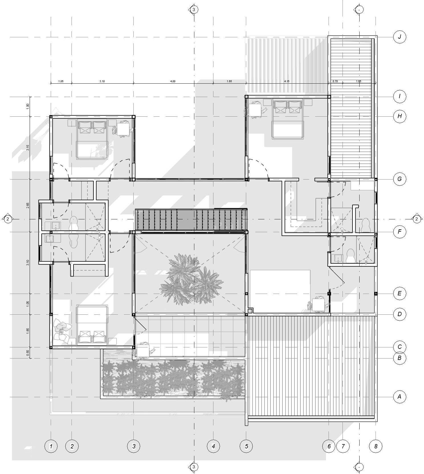
PLANTA DE NIVEL 000
ISOMÉTRICO 1
2
ISOMÉTRICO

El concepto detrás de esta residencia es proporcionar un espacio de descanso familiar que permita disfrutar de las vistas panorámicas de las montañas, al mismo tiempo que garantice comodidad para recibir a un gran número de amigos y familiares durante los fines de semana.

CASA DE CAMPO EN SORÁ ARQ. ALEYXANDER AGUILAR
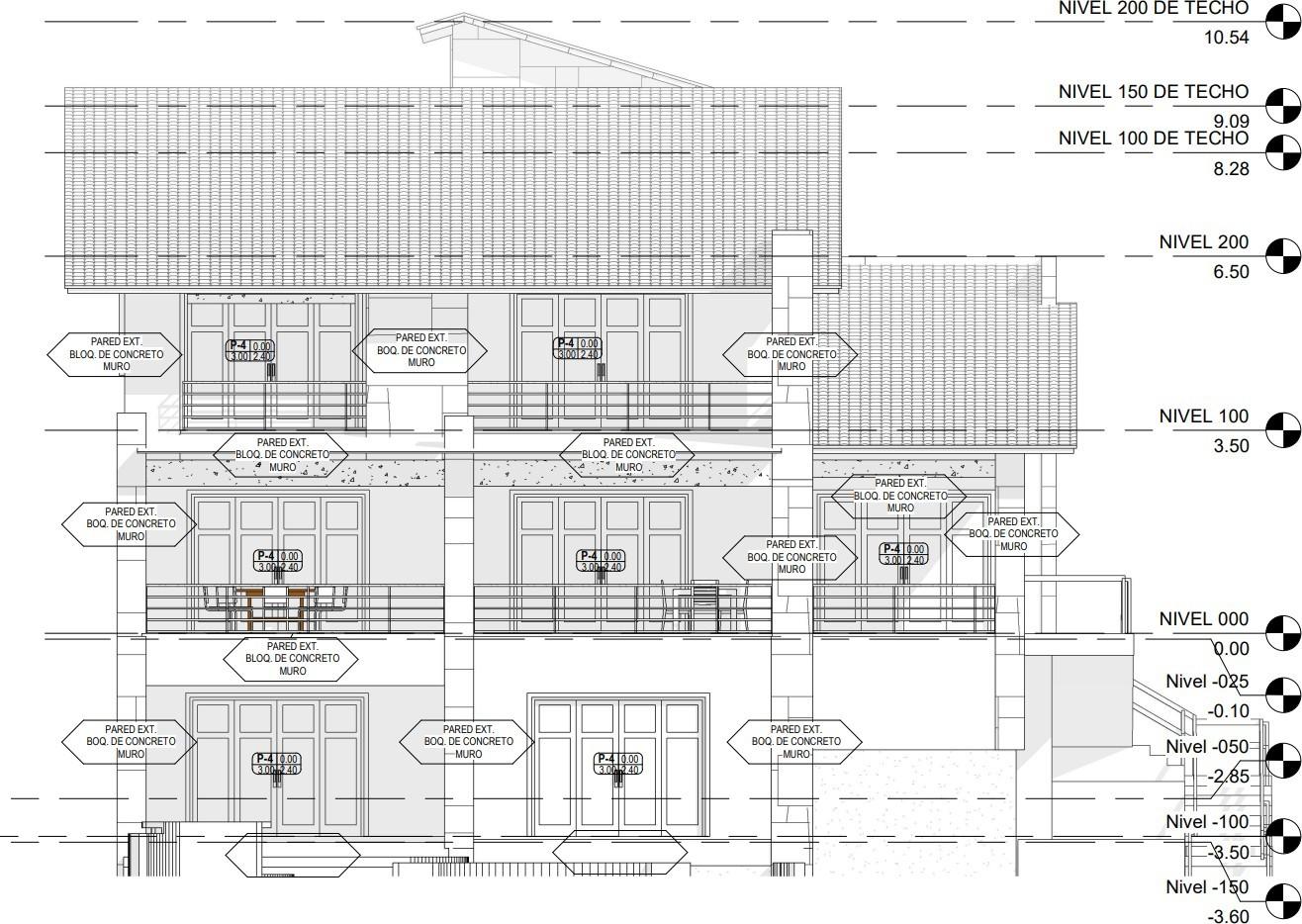
ELEVACIÓN
FRONTAL
PLANTA DE NIVEL -100 PLANTA DE NIVEL 100 ELEVACIÓN LATERAL IZQUIERDA
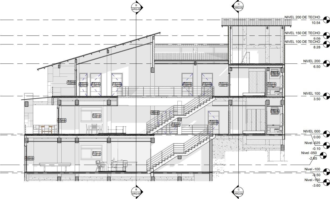
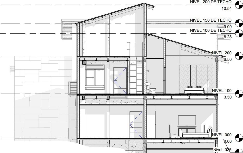
CASA DE CAMPO EN SORÁ ARQ. ALEYXANDER AGUILAR
SECCION C ISOMÉTRICO DE COCINA SECCION A PLANTA DE COCINA ELEVACION 1 DE COCINA ELEVACION 2 DE COCINA

En cuanto al sistema estructural, se emplea un diseño que incluye zapatas de concreto con muro de contención co- rrido para la cimentación, pilares estructurales, vigas prin- cipales y secundarias de concreto, losa de Metaldec y vi- guetas WF para las losas, así como un techo de carriolas con tejas metálicas.

CASA DE CAMPO EN SORÁ ARQ. ALEYXANDER AGUILAR
PLANTA DE CIMIENTO NIVEL -100 PLANTA DE LOSA NIVEL 000 PLANTA DE TECHO DETALLE DE LAMINA DE METAL DECK

Objetivos del proyecto:

El proyecto se realizó con la metodología BIM en los programas Revit y Naviswork. Tiene como objetivo obtener un metrado para obra con una fialidad del 95%, y poder generar entregables de alta calidad que permitan reducir los conflic- tos de especialidades en obra. Se modelaron 3 especialida- des: Estructura, Arquitectura y Plomería. Sobre el modelo de coordinación se realizarán comprobaciones de interferencias entre los elementos de los distintos modelos.

CASA DE CAMPO EN SORÁ ARQ. ALEYXANDER AGUILAR
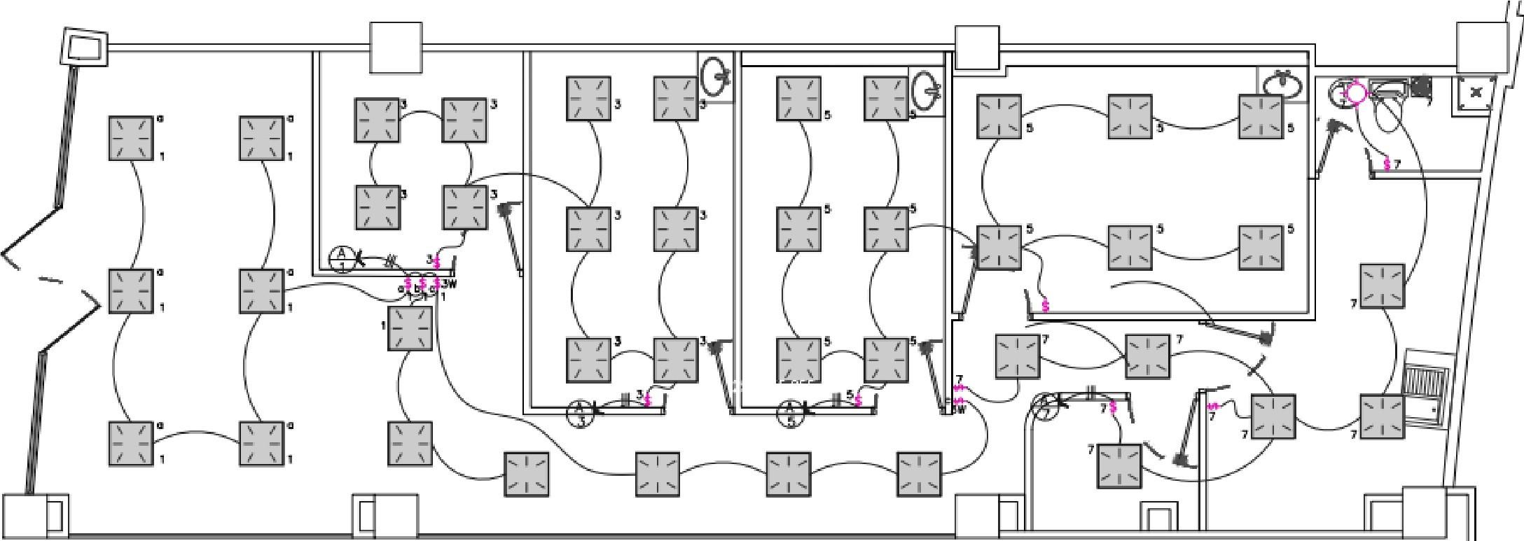
PLANTA DE PLOMERIA NIVEL 100 ISOMÉTRICO DE PLOMERIA NIVEL 100 VISTA DE BAÑO 4 VISTAS DE BAÑO 5 Y 6

CONSULTORIO PEDIÁTRICO MEDIKIDS

Se encuentra ubicado en el segundo piso del Andes Mall, en el Distrito de San Migue- lito, en el local 136. Este espacio está diseñado específicamente para proporcionar atención médica especializada a niños.

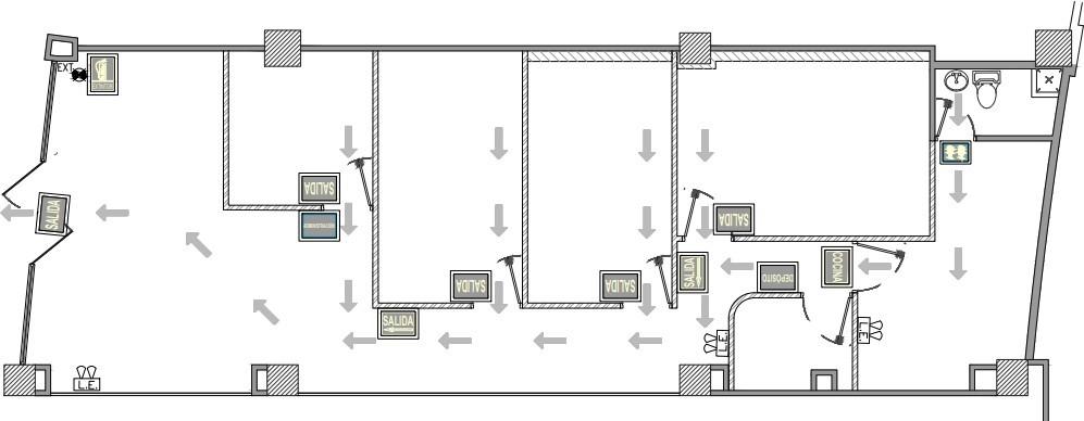
CONSULTORIO PEDIÁTRICO MEDIKIDS ARQ. ALEYXANDER AGUILAR
PLANTA ARQUITECTONICA PLANTA DE RUTA DE EVACUACIÓN

Aquí está la distribución de los espacios dentro de los 134.52 metros cuadrados:

Dos consultorios médicos: Estos son espacios privados donde los médicos pueden atender a los pacientes y sus familias de manera individual, brindando diagnósticos y tratamientos especializados.

Cuarto de procedimientos: Equipado con dos camillas, este espacio está destinado a realizar procedimientos médicos y exámenes que requieran un entorno controlado y cómodo para los niños.

Oficina pequeña: Un área destinada al personal administrativo para llevar a cabo tareas como programación de citas, registro de pacientes y gestión de documentos.

Pasillo de circulación: Un espacio abierto que conecta las diferentes áreas del consultorio, permitiendo el flujo eficiente de pacientes y personal.

CONSULTORIO PEDIÁTRICO MEDIKIDS ARQ. ALEYXANDER AGUILAR
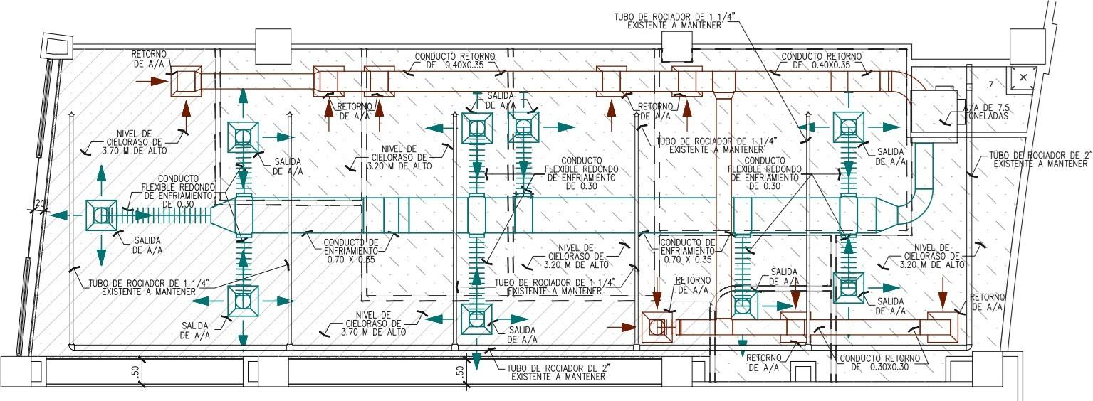
SECCIÓN A SECCIÓN B PLANTA DE CIELORASO, DUCTERIA Y ROCIADORES

Baño: Un área sanitaria equipada con los elementos necesarios para garantizar la higiene y comodidad de los pacientes y el personal.

Depósito pequeño: Espacio destinado al almacenamiento de suministros médicos, equipos y material de oficina necesarios para el funcionamiento del consultorio.

Cocineta: Un área pequeña equipada con lo básico para preparar bebidas y alimentos ligeros, destinada al uso del personal durante sus descansos.

Esta distribución de espacios está diseñada para ofrecer una atención médica integral y cómoda a los pacientes pediátricos y sus familias en el Andes Mall, en el Dis- trito de San Miguelito.

CONSULTORIO PEDIÁTRICO MEDIKIDS ARQ. ALEYXANDER

PLANTA DE ELECTRICIDAD

/J

24 TA. l 125A 1 .w:J.I! Ei élE N p-,r, ¡:o

1 120/ 0BV,3 f"ASIES, 4 HD...DS. N"

9t'AAA$ CliJNIKIJTIW. SOl.ttlil C..... IN1/t_RRUí'flVAltl<A

1 INlftl',t"ir-"' !íl'iilm.

l l,oo) i;, $ L f.:I f 1.. ,e r ® ® c::::J-1 ,A L llllU8:YAIJ e: e : 12 LLCES ENTIRADA zo 1

a. 11. • :ll!l! II

3 4:Dl 4,9XI TIPIJIHWl1 1 l.lAC-7,5lfilt30,20EIV

3 1 al) 10 CTIJ PRIICEDIHto,ITD / ¡J'"I

2A.6 so

5 20 ao l l,! X(I 2 a 1.1!: CGlSIJ.TO.:l!JI !11,

7 zo 1 4 1 6 1 !E:PO&lffi/COCli

9 20 1 m'.I 3 tEF'Ors::ITil - COCMiA

8 a1 l 700 1,a:o , ¡, TiiM!\S ENTRADA-CTD RROC,

10 m'.I 2 1 CTD 1PROXDl1HDENTC

li za 1 8l1) 3 CDISULT[F!ffi #1

11 20 zo 1 1,80 0 l rn::1t1ETA - Hl! DA

13 1 800 4 CGlSULTO.:l!, J 20

l4 zo 1 3511 7 l AI.AAl<'A K04DID

15 20 1 l.alO l 20 :ílll 3 C0:1t,[f¡!,-,6RT" u n:s El•EIU,Nl:IA

16 1 7 20 1 8l1) 2 1 CIJNStLTmm 112

18 l'il 20 ii,a3

22.,24 llll!lil.E:!i w a l " º al 4 7 ] 3

t!illC •m.m1W11 11,55(1 8,000 8,300 eeimcc1c IIO WJ l'llllS r g"' ''"" 6.840 6.'!00 ü"1I flltil!ill a: i.ilM 0-4 1 o, -61..HtU• mJB• 3>-1/0N 1/0 :ot-111 H... • 1--l/QN•1/0 >HIW',lt.

• IJICtll C1II, 11:SNIIIOCI

a:E iU;l:i: 1 ll!l IlJ.ilJtI&!. 1 M.H!l!S IIE l!iü/1! iIT - "i!, li'VC ;¡, ¡¡

RESUME DE CARGA 0,80. AMPElFU!lS 3--1/C

TIEJ; ¡:fil:A

1- /D31: 8 CU,D[S:N. <T>

PLANTA DE FUERZA CAPACfDAD ! 10 KA

SHOWRROM DE ECCSA

El proyecto del Showroom de ECCSA representa un espacio innovador y centrado en el cliente, destinado a ofrecer una experiencia completa en el mundo de la tecnología informática. Situado estratégicamente en la Vía Santa Elena, Parque Lefevre, este showroom de 60 m^2 es el resultado de un esfuerzo por brindar soluciones integra- les en venta y atención al cliente, así como soporte técnico especializado para una amplia gama de marcas de computadoras.

SHOWROOM DE ECCSA ARQ. ALEYXANDER AGUILAR

REMODELACIÓN: TECHO DE RECEPCIÓN

REMODELACIÓN: VISTA GENERAL

ANTES DE LA REMODELACIÓN

Características del Showroom:

•Área de Venta: Un espacio diseñado para exhibir una amplia variedad de computadoras, desde equipos de escritorio hasta portátiles, permitiendo a los clientes explorar y comparar diferentes modelos.

•Mostradores de Atención al Cliente: Puntos de contacto donde los clientes pueden recibir asesoramien- to personalizado, realizar consultas y realizar compras con la asistencia de nuestro equipo de ventas capacitado.

•Zona de Soporte Técnico: Un área dedicada al diagnóstico y reparación de equipos, equipada con las herramientas y tecnologías necesarias para brindar un servicio técnico eficiente y confiable.

•Sala de Demostración: Un espacio adicional destinado a demostraciones de productos y presentaciones, donde los clientes pueden experimentar de primera mano las características y funcionalidades de los productos ofrecidos.

SHOWROOM DE ECCSA ARQ. ALEYXANDER AGUILAR
VISTA A AREA REMODELADA 1 VISTA A AREA REMODELADA 3 VISTA A AREA REMODELADA 4 VISTA A AREA REMODELADA 2

CENTRO CULTURAL DE VOLCÁN

Introducción:

El Centro Cultural y Comercial en Volcán se proyecta como un espacio multifuncional destinado a potenciar el desarrollo turístico y económico de la región. Ubicado en un lote de 6442.07 m2 en el área urbana de Volcán, este proyecto busca no solo ofrecer servicios comerciales y de entretenimiento, sino también enriquecer la calidad de vida de la comunidad local y atraer inversiones hacia la zona.

Objetivos del Proyecto:

1. Maximizar el aprovechamiento del frente comercial hacia las calles principales para incrementar la visibilidad de los locales comerciales.

2. Aprovechar la ubicación estratégica del centro cultural en una esquina para crear un espacio público acogedor, un acceso peatonal destacado y una expansión visual y física de los locales comerciales.

3. Lograr un equilibrio óptimo entre áreas comerciales y áreas de servicio para garantizar la rentabilidad del proyecto.

4. Diseñar un estacionamiento eficiente que cumpla con la demanda de usuarios y que al mismo tiempo sirva como un frente atractivo para los locales comerciales circundantes.

CENTRO CULTURAL DE VOLCÁN ARQ. ALEYXANDER AGUILAR
ELEVACIÓN FRONTAL ELEVACIÓN POSTERIOR ELEVACIÓN LATERAL IZQUIERDA ELEVACIÓN LATERAL DERECHA

Características del Proyecto:

1.

• Implantación en L: Dos volúmenes de igual altura se desfasan sobre la esquina, creando una arista abierta que permi- te una continuidad visual y física con las áreas verdes adyacentes.

• Distribución de Locales: Los locales comerciales se ubican en las fachadas principales, permitiendo una exhibición efectiva de productos y vitrinas hacia las calles principales y secundarias.

• Restaurante en la Esquina: El restaurante se sitúa en la esquina para aprovechar su posición privilegiada y ofrecer una experiencia gastronómica destacada con vistas a la plaza.

• Estacionamiento: Con acceso desde las calles principal y secundaria, el estacionamiento cuenta con 63 puestos con- vencionales, 3 para personas con discapacidad, 1 para carga y 26 para motos.

• Diseño Estructural: Se emplean pórticos metálicos y losas de chapa metálica colaborante para garantizar la seguridad y cumplir con las normativas locales.

Conclusiones:

El Centro Cultural y Comercial en Volcán representa un proyecto integral que busca impulsar el desarrollo económico y social de la región. Con una combinación de servicios comerciales, áreas de entretenimiento y un diseño urbano cuidado- samente planificado, este centro se posiciona como un punto de encuentro clave para la comunidad local y los visitantes.

CENTRO CULTURAL DE VOLCÁN ARQ. ALEYXANDER AGUILAR
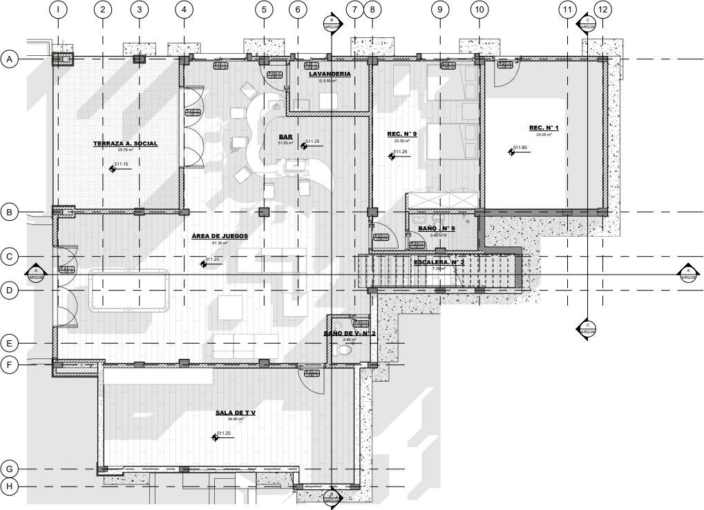
PLANTA ARQUITECTONICA VISTA GENERAL VISTA DESDE EL NORTE VISTA DESDE EL SUR

VILLAS DE PLAYA

Descripción:

Villas de Playa es un proyecto residencial modelado en BIM para el estudio AD Arquitectura. Se compone de 9 casas ubicadas en un área cerrada de 7314 metros cuadrados, situadas a aproximadamente 200 metros de la playa. Cada una de estas casas está diseñada con una superficie de 465 metros cuadrados, distribuidos en dos niveles.

ARQ. ALEYXANDER AGUILAR
VILLAS DE PLAYAS PLANTA ARQUITECTONICA PLANTA BAJA PLANTA ARQUITECTONICA PLANTA ALTA

Objetivos del Proyecto:

Proporcionar a los residentes un estilo de vida exclusivo y conforta- ble en un entorno costero.

Integrar el diseño arquitectónico con el entorno natural de manera armónica.

Crear un espacio que fomente la convivencia comunitaria y el disfru- te de las amenidades cercanas a la playa.

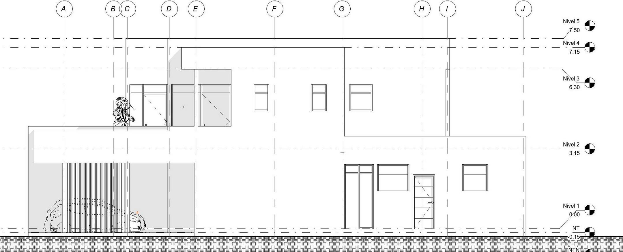
VILLAS DE PLAYAS ARQ. ALEYXANDER AGUILAR
ELEVACIÓN FRONTAL ELEVACIÓN POSTERIOR ELEVACIÓN LATERAL IZQUIERDA ELEVACIÓN LATERALDERECHA
ARQ. ALEYXANDER AGUILAR
VILLAS DE PLAYAS ISOMÉTRICO VISTA 1 ISOMÉTRICO VISTA 2 ISOMÉTRICO EXPLOTADO
ARQ. ALEYXANDER AGUILAR
VILLAS DE PLAYAS SECCIÓN A SECCIÓN B PLANTA DE TECHO

CASA DE FIN DE SEMANA CERRO AZUL

Descripción:

La Casa de Fin de Semana en Cerro Azul es una residencia diseña- da para proporcionar un refugio moderno y confortable en el pinto- resco entorno de Cerro Azul. Con un diseño contemporáneo y una superficie total de 221 metros cuadrados distribuidos en dos niveles, esta casa ofrece un espacio elegante y funcional para escapadas de fin de semana y momentos de relajación en la naturaleza.

CASA DE FIN DE SEMANA EN CERRO AZUL ARQ. ALEYXANDER AGUILAR
SECCIÓN A
B
SECCIÓN
PLANTA ARQUITECTONICA PLANTA BAJA PLANTA ARQUITECTONICA PLANTA ALTA
CASA DE FIN DE SEMANA EN CERRO AZUL ARQ. ALEYXANDER AGUILAR

ELEVACIÓN POSTERIOR

ELEVACIÓN LATERALDERECHA

ELEVACIÓN FRONTAL ELEVACIÓN LATERAL IZQUIERDA

Turn static files into dynamic content formats.

Create a flipbook
Portafolio BIM de Aleyxander by Aleyxander Aguilar - Issuu