Portafolio de Aleyxander AGUILAR

Page 1

ARQ. ALEYXANDER AGUILAR
PORTAFOLIO

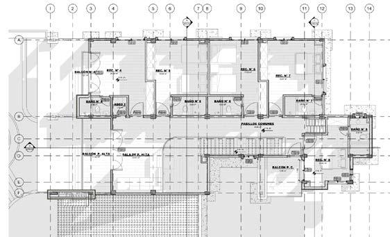
CASA DE CAMPO EN SORÁ

Este proyecto se sitúa en una comunidad montañosa y abarca un terreno total de 2,777.35 m2, con una superficie construida que comprende 618.86 m2 en área cerrada y 114.96 m2 en área abierta.

VER PLANOS DESARROLLADOS

CASA DE CAMPO EN SORÁ ARQ. ALEYXANDER AGUILAR

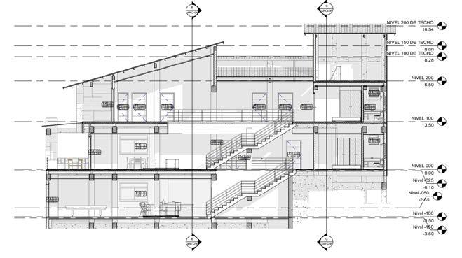
La distribución de las áreas construidas se detalla según los niveles:

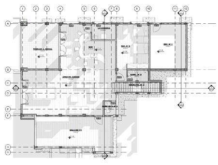
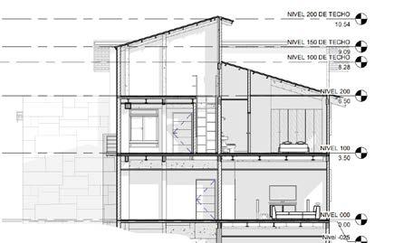
Semi-sótano (-100): Incluye una habitación con baño, un bar, lavandería, área de juegos, sala de cine, depósito y terraza.

Primer nivel (000): Dispone de tres habitaciones, cada una con su respectivo baño, un estudio, cocina, comedor, sala, terraza y portal.

Segundo nivel (100): Ofrece cinco habitaciones, cada una con su propio baño, sala y dos terrazas.

Tercer nivel (200): Destinado como ático.

1
2
PLANTA DE NIVEL 000 ISOMÉTRICO
ISOMÉTRICO

El concepto detrás de esta residencia es proporcionar un espacio de descanso familiar que permita disfrutar de las vistas panorámicas de las montañas, al mismo tiempo que garantice comodidad para recibir a un gran número de amigos y familiares durante los fines de semana.

CASA DE CAMPO EN SORÁ ARQ. ALEYXANDER AGUILAR
FRONTAL
ELEVACIÓN PLANTA DE NIVEL -100 PLANTA DE NIVEL 100 ELEVACIÓN
LATERAL IZQUIERDA
CASA DE CAMPO EN SORÁ ARQ. ALEYXANDER AGUILAR

DE COCINA

SECCION C ISOMÉTRICO SECCION A PLANTA DE COCINA ELEVACION 1 DE COCINA ELEVACION 2 DE COCINA

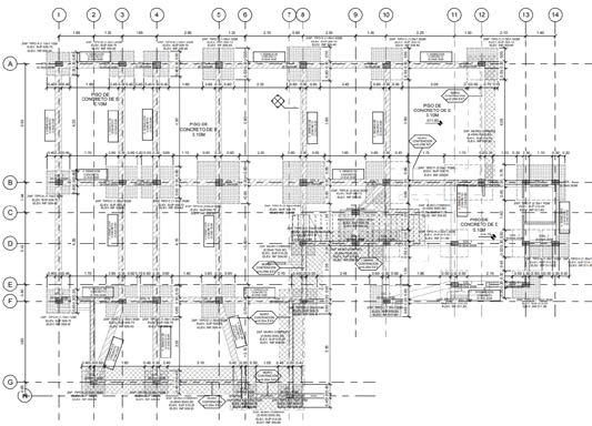
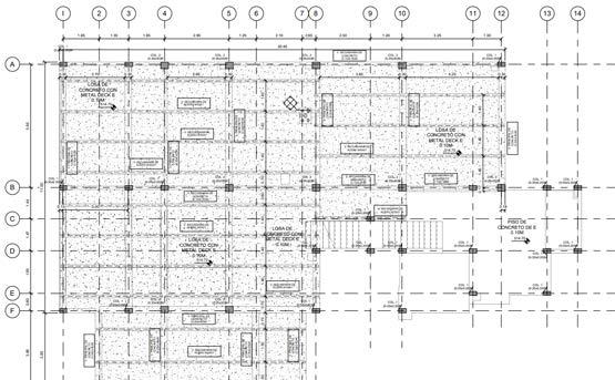
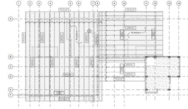
En cuanto al sistema estructural, se emplea un diseño que incluye zapatas de concreto con muro de contención corrido para la cimentación, pilares estructurales, vigas principales y secundarias de concreto, losa de Metaldec y viguetas WF para las losas, así como un techo de carriolas con tejas metálicas.

CASA DE CAMPO EN SORÁ ARQ. ALEYXANDER AGUILAR
PLANTA DE CIMIENTO NIVEL -100 PLANTA DE LOSA NIVEL 000 PLANTA DE TECHO DETALLE DE LAMINA DE METAL DECK

Objetivos del proyecto:

El proyecto se realizó con la metodología BIM en los programas Revit y Naviswork. Tiene como objetivo obtener un metrado para obra con una fialidad del 95%, y poder generar entregables de alta calidad que permitan reducir los conflictos de especialidades en obra. Se modelaron 3 especialidades: Estructura, Arquitectura y Plomería. Sobre el modelo de coordinación se realizarán comprobaciones de interferencias entre los elementos de los distintos modelos.

CASA DE CAMPO EN SORÁ ARQ. ALEYXANDER AGUILAR
PLANTA DE PLOMERIA NIVEL 100 ISOMÉTRICO DE PLOMERIA NIVEL 100 VISTA DE BAÑO 4 VISTAS DE BAÑO 5 Y 6

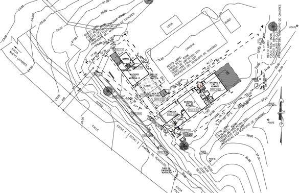
CENTRO DE ATENCIÓN INTEGRAL A LA PRIMERA INFANCIA (CAIPI)

Palmas Bellas, ubicado en el distrito de Chagres, provincia de Colón.

Este CAIPI, que atenderá a 40 niños y niñas menores de 4 años del corregimiento

Colmena de Palmas Bellas, en la Costa Abajo de Colón, se construyó con una inversión de 500,437.94 balboas.

ELANCE DEL MIDES VER PLANOS DESARROLLADOS CENTRO DE ATENCIÓN INTEGRAL A LA PRIMERA INFANCIA (CAIPI) ARQ. ALEYXANDER AGUILAR
VER
PLANTA DE LOCALIZACION GENERAL OLABTA ARQUITECTONICA

La atención integral y de calidad que recibirán los infantes en este CAIPI será impartida en dos salones: uno de Maternal B para niños y niñas de 2 a 3 años, y otro de Maternal C para niños y niñas de 3 a 4 años. Además, cada salón contará con un baño, ducha y depósito.

CENTRO DE ATENCIÓN INTEGRAL A LA PRIMERA INFANCIA (CAIPI) ARQ. ALEYXANDER AGUILAR

ELEVACIÓN FRONTAL

ELEVACIÓN LATERAL IZQUIERDA

SECCIÓN A

SECCIÓN B

AMPLIACIÓN DE BAÑO MATERNAL B Y C

C
ELEVACIÓN BAÑO ELEVACIÓN BAÑO B

“Los CAIPI ofrecen al niño un entorno estimulador, a través de una atención de calidad, en el que se sienten queridos, respetando siempre la individualidad de cada niño y niña. Además, estos centros facilitan el desarrollo general de la personalidad de los pequeños, garantizando el cuidado y atención de sus necesidades básicas y la potenciación de todas sus capacidades intelectuales, afectivas, físicas y motoras”, .

CENTRO DE ATENCIÓN INTEGRAL A LA PRIMERA INFANCIA (CAIPI) ARQ. ALEYXANDER AGUILAR

CONSULTORIO PEDIÁTRICO MEDIKIDS

Se encuentra ubicado en el segundo piso del Andes Mall, en el Distrito de San Miguelito, en el local 136. Este espacio está diseñado específicamente para proporcionar atención médica especializada a niños. VER

PLANOS DESARROLLADOS CONSULTORIO PEDIÁTRICO MEDIKIDS ARQ. ALEYXANDER AGUILAR
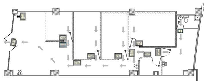
PLANTA ARQUITECTONICA PLANTA DE RUTA DE EVACUACIÓN

Aquí está la distribución de los espacios dentro de los 134.52 metros cuadrados:

Dos consultorios médicos: Estos son espacios privados donde los médicos pueden atender a los pacientes y sus familias de manera individual, brindando diagnósticos y tratamientos especializados.

Cuarto de procedimientos: Equipado con dos camillas, este espacio está destinado a realizar procedimientos médicos y exámenes que requieran un entorno controlado y cómodo para los niños.

Oficina pequeña: Un área destinada al personal administrativo para llevar a cabo tareas como programación de citas, registro de pacientes y gestión de documentos.

Pasillo de circulación: Un espacio abierto que conecta las diferentes áreas del consultorio, permitiendo el flujo eficiente de pacientes y personal.

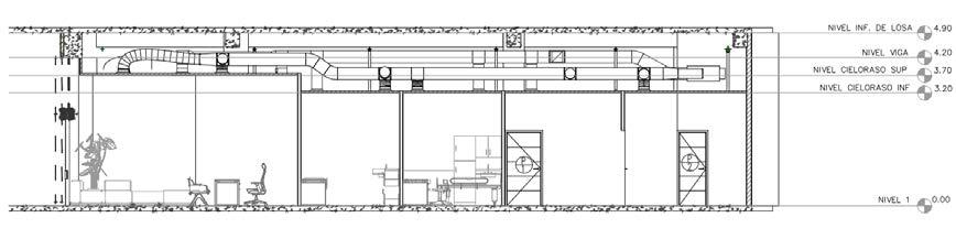
CONSULTORIO PEDIÁTRICO MEDIKIDS ARQ. ALEYXANDER AGUILAR
SECCIÓN A SECCIÓN B PLANTA DE CIELORASO, DUCTERIA Y ROCIADORES

Baño: Un área sanitaria equipada con los elementos necesarios para garantizar la higiene y comodidad de los pacientes y el personal.

Depósito pequeño: Espacio destinado al almacenamiento de suministros médicos, equipos y material de oficina necesarios para el funcionamiento del consultorio.

Cocineta: Un área pequeña equipada con lo básico para preparar bebidas y alimentos ligeros, destinada al uso del personal durante sus descansos.

Esta distribución de espacios está diseñada para ofrecer una atención médica integral y cómoda a los pacientes pediátricos y sus familias en el Andes Mall, en el Distrito de San Miguelito.

CONSULTORIO PEDIÁTRICO MEDIKIDS ARQ. ALEYXANDER AGUILAR

SHOWRROM DE ECCSA

El proyecto del Showroom de ECCSA representa un espacio innovador y centrado en el cliente, destinado a ofrecer una experiencia completa en el mundo de la tecnología informática. Situado estratégicamente en la Vía Santa Elena, Parque Lefevre, este showroom de 60 m^2 es el resultado de un esfuerzo por brindar soluciones integrales en venta y atención al cliente, así como soporte técnico especializado para una amplia gama de marcas de computadoras.

SHOWROOM DE ECCSA ARQ. ALEYXANDER AGUILAR

REMODELACIÓN: TECHO DE RECEPCIÓN

REMODELACIÓN: VISTA GENERAL

ANTES DE LA REMODELACIÓN

Características del Showroom:

•Área de Venta: Un espacio diseñado para exhibir una amplia variedad de computadoras, desde equipos de escritorio hasta portátiles, permitiendo a los clientes explorar y comparar diferentes modelos.

•Mostradores de Atención al Cliente: Puntos de contacto donde los clientes pueden recibir asesoramiento personalizado, realizar consultas y realizar compras con la asistencia de nuestro equipo de ventas capacitado.

•Zona de Soporte Técnico: Un área dedicada al diagnóstico y reparación de equipos, equipada con las herramientas y tecnologías necesarias para brindar un servicio técnico eficiente y confiable.

•Sala de Demostración: Un espacio adicional destinado a demostraciones de productos y presentaciones, donde los clientes pueden experimentar de primera mano las características y funcionalidades de los productos ofrecidos.

SHOWROOM DE ECCSA ARQ. ALEYXANDER AGUILAR
VISTA A AREA REMODELADA 1 VISTA A AREA REMODELADA 3 VISTA A AREA REMODELADA 4 VISTA A AREA REMODELADA 2

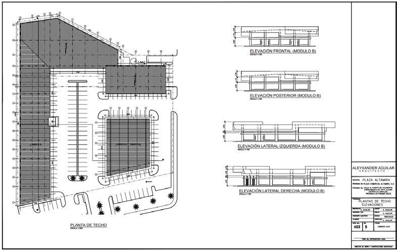
PLAZA ALTAMIRA

La Plaza Altamira es un proyecto comercial ubicado en Vacamonte, Arraiján, con una extensión total de 5200 metros cuadrados. El diseño propuesto incluye 47 locales comerciales distribuidos en el área. Uno de los aspectos destacados de este proyecto es que la mayoría de los locales comerciales contarán con una doble altura, lo que proporciona un espacio más amplio y versátil para los negocios.

1. Distribución de locales: Los 47 locales comerciales se distribuyen de manera estratégica dentro del área de la plaza para maximizar la visibilidad y accesibilidad de cada uno. Se pueden incluir una variedad de negocios, como tiendas minoristas, restaurantes, servicios de salud y belleza, entre otros.

2. Doble altura: La característica de doble altura en la mayoría de los locales comerciales agrega un elemento distintivo al diseño arquitectónico de la plaza. Esto no solo proporciona un aspecto visualmente atractivo, sino que también permite a los comerciantes aprovechar al máximo el espacio disponible para la exhibición de productos o la creación de ambientes únicos.

ARQ. ALEYXANDER AGUILAR
PLAZA ALTAMIRA

3. Áreas comunes: Además de los locales comerciales, la Plaza Altamira puede contar con áreas comunes destinadas al entretenimiento, descanso y recreación de los visitantes. Esto puede incluir zonas verdes, espacios al aire libre para eventos, bancos y áreas de juego para niños.

4. Estacionamiento: Se prevé un área de estacionamiento suficiente para atender la demanda de visitantes, con un diseño que facilite el flujo de vehículos y garantice la comodidad de los clientes.

5. Diseño arquitectónico: El diseño arquitectónico de la Plaza Altamira puede ser moderno y funcional, con énfasis en la estética y la funcionalidad. Se busca crear un ambiente agradable y acogedor que invite a los visitantes a disfrutar de su experiencia de compra y entretenimiento.

En resumen, la Plaza Altamira es un proyecto comercial ambicioso en Vacamonte, Arraiján, que busca ofrecer una amplia gama de opciones comerciales en un entorno moderno y atractivo. La combinación de una extensión considerable, la presencia de numerosos locales comerciales y la característica de doble altura en la mayoría de los espacios hacen de este proyecto una opción interesante para inversores y comerciantes.

ARQ. ALEYXANDER AGUILAR
PLAZA ALTAMIRA

PLAZA HUANQIU

La Plaza Huanqiu es un proyecto de construcción diseñado para ser un centro comercial y de entretenimiento ubicado en Tocumen. Aquí está una descripción del diseño inicial:

Ubicación y tamaño: La plaza se encuentra ubicada en un área estratégica de Tocumen y cuenta con una construcción total de 2302 metros cuadrados.

32 locales comerciales: La plaza alberga 32 locales comerciales de diferentes tamaños y configuraciones para acomodar una variedad de negocios y servicios, desde tiendas minoristas hasta restaurantes y servicios de ocio.

Diseño arquitectónico: El diseño arquitectónico de la Plaza Huanqiu es moderno y funcional, con un enfoque en la eficiencia del espacio y la comodidad de los visitantes. Se busca crear un ambiente acogedor y atractivo que invite a los clientes a explorar y disfrutar de las instalaciones.

ARQ. ALEYXANDER AGUILAR
PLAZA HUANQIU
ELEVACIÓN FRONTAL EDIFICIO A ELEVACIÓN FRONTAL EDIFICIO B VISTA GENERAL

CENTRO CULTURAL DE VOLCÁN

Introducción:

El Centro Cultural y Comercial en Volcán se proyecta como un espacio multifuncional destinado a potenciar el desarrollo turístico y económico de la región. Ubicado en un lote de 6442.07 m2 en el área urbana de Volcán, este proyecto busca no solo ofrecer servicios comerciales y de entretenimiento, sino también enriquecer la calidad de vida de la comunidad local y atraer inversiones hacia la zona.

Objetivos del Proyecto:

1. Maximizar el aprovechamiento del frente comercial hacia las calles principales para incrementar la visibilidad de los locales comerciales.

2. Aprovechar la ubicación estratégica del centro cultural en una esquina para crear un espacio público acogedor, un acceso peatonal destacado y una expansión visual y física de los locales comerciales.

3. Lograr un equilibrio óptimo entre áreas comerciales y áreas de servicio para garantizar la rentabilidad del proyecto.

4. Diseñar un estacionamiento eficiente que cumpla con la demanda de usuarios y que al mismo tiempo sirva como un frente atractivo para los locales comerciales circundantes.

CENTRO CULTURAL DE VOLCÁN ARQ. ALEYXANDER AGUILAR
ELEVACIÓN FRONTAL ELEVACIÓN POSTERIOR ELEVACIÓN LATERAL IZQUIERDA ELEVACIÓN LATERAL DERECHA

Características del Proyecto:

1.

• Implantación en L: Dos volúmenes de igual altura se desfasan sobre la esquina, creando una arista abierta que permite una continuidad visual y física con las áreas verdes adyacentes.

• Distribución de Locales: Los locales comerciales se ubican en las fachadas principales, permitiendo una exhibición efectiva de productos y vitrinas hacia las calles principales y secundarias.

• Restaurante en la Esquina: El restaurante se sitúa en la esquina para aprovechar su posición privilegiada y ofrecer una experiencia gastronómica destacada con vistas a la plaza.

• Estacionamiento: Con acceso desde las calles principal y secundaria, el estacionamiento cuenta con 63 puestos convencionales, 3 para personas con discapacidad, 1 para carga y 26 para motos.

• Diseño Estructural: Se emplean pórticos metálicos y losas de chapa metálica colaborante para garantizar la seguridad y cumplir con las normativas locales.

Conclusiones:

El Centro Cultural y Comercial en Volcán representa un proyecto integral que busca impulsar el desarrollo económico y social de la región. Con una combinación de servicios comerciales, áreas de entretenimiento y un diseño urbano cuidadosamente planificado, este centro se posiciona como un punto de encuentro clave para la comunidad local y los visitantes.

CENTRO CULTURAL DE VOLCÁN ARQ. ALEYXANDER AGUILAR
PLANTA ARQUITECTONICA VISTA GENERAL VISTA DESDE EL NORTE VISTA DESDE EL SUR

Turn static files into dynamic content formats.

Create a flipbook