PORT FOLIO

El presente portafolio reúne algunos de mis proyectos realizados durante mi formación académica asi como en la vida laboral.
![]()

El presente portafolio reúne algunos de mis proyectos realizados durante mi formación académica asi como en la vida laboral.
INGENIERIA EN ARQUITECTURA

1. PROYECTOS REVIT
2 .RENDERS LUMION Y 3DSMAX/VRAY
3. FOTOGRAFÍA

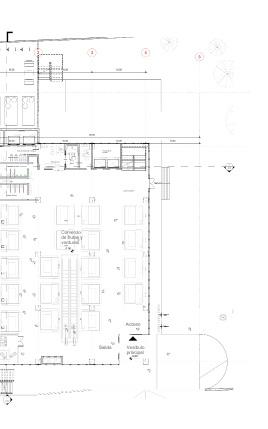
Proyecto : Mercado SPGG
Año: 2021
El proyecto de Mercado de alimentos en el municipio de San Pedro Garza García, surgió por una problemática en municipio de inexistencia del mercados de alimentos a un costo razonable y con buena calidad y frescura, lo cual el proyecto logra satisfacer la necesidad de un lugar donde hacer compra y venta de alimentos a un buen precio con calidad y frescura ya que el mismo mercado tiene venta de alimentos cosechados en los huertos.
La problemática de tener un lugar en el cual poder realizar varias actividades sin tener que desplazarse a otra parte de la ciudad; el Mercado logra resolverlo ya que cuenta con una zona de venta de frutas y verduras, una zona de fast food con juegos en su parte superior, dos restaurantes con certificación michelin y un antro bar en el roof garden, generando así un lugar al cual se pueda asistir todo el día toda la semana.
Plantas






El espacio arquitectónico solo cobra vida en correspondencia con la presencia humana que lo percibe - TADAO ANDO
Corte por fachada


Client Project : Compnay Name & Co.
Year : 2020
Lorem ipsum dolor sit amet, consectetuer adipiscing elit, sed diam nonummy nibh euismod tincidunt ut laoreet dolore magna aliquam erat volutpat. Ut wisi enim ad minim veniam, quis nostrud exerci tation ullamcorper suscipit lobortis nisl ut aliquip ex ea.
Año : 2022
Departametnos proyectados en la ciudad de México para un cliente con un terreno con xonstrucción existente, el cual se demolera para iniciar la obra de los departamentos.
Este proyecto consta de 7 departamentos, 2 por nivel en los niveles superiores, y uno en la planta baja, incluye amenidades como gimnacio, carril de nado, roof garden y áreas verdes.
Los departamentos cuentan con estacionamiento subterraneo, cada departamento cuenta con un espacio para un automovil. este proyecto fue realizado como inicio de mi servicio social, pero al agradarles el proyecto me pidieron que siguiera con el proyecto.
-Siete departamentos de 125 m2 cada uno
-Gymnasio completo
-Carril de nado
-Bodegas para cada departamento
-Roof garden común
-Estacionamiento subterraneo con un lugar para cada departamento
-Áreas verdes









En este apartado,colocare algunos render realizados durante mi formación académica asi como en la vida laboral.
























Una de las pasiones que descubrí a partir de una asignatura de la carrera fue la fotografia y el como plasmas momentos para que perduren, me gusta tomar fotografías de arquitectura así como el street photography. Muy pocas de mis fotografias las paso por arreglos en PS, me gusta lograr la mejor fotografia en estado RAW.








Algo que me desestresa es dibujar, actualmente lo he dejado puesto que no tengo mucho tiempo, pero es una de mis pasiones desde pequeño y quiero compartirles un poco de lo que he hecho. De igual forma me gusta hacer sketches de arquitectura , lastimosamente se qudearon en un disco duro que no pude recuperar.














¡Hola!
soy Alexis Correa
Tengo un gusto por aprender, conocer y sentir el verdadero significado de la arquitectura. Apasionado por el dibujo, fotografía y arquitectura en general. Iniciando una pagina donde comparto renders, fotos en formato RAW y algunos sketches..
He desarrollado habilidades a lo largo de mi experiencia laboral, adoptando y reforzando valores como lealtad, trabajo en el equipo, tolerancia a la frustración, resolución de conflictos.
Busco hacer carrera en una empresa que me permita aprender de ellos y a su vez mostrar lo aprendido u obtenido en mi trayectoria.
¡Espero haya sido de su agrado mi portafolio!