Alexis Bentley Portfolio 2019-2023

Page 1

PORTFOLIO

ALEXIS BENTLEY
2019-2023

CONTENTS

All rights reserved. No part of this publication may be used or reproduced without written concent.

COPYRIGHT © 2023 Alexis Bentley
04 PNMCS COMMUNITY CENTER 26 NORTH STREET RESIDENCE 30 32 HAND DRAWINGS
FOR FUN

PNMCS

4

ROHINGYA REFUGEES

5

BACKGROUND

Pacific Northwest Multicultural Community Services (PNMCS), based in Portland, Oregon is a non-profit organization specializing in helping the Rohingya refugees from Myanmar resettle in their new environment by providing help with housing and social services.

PNMCS, has pooled resources to create a community center with the aim of welcomeing new immigrants and provide them with social services, education, temporary housing, and community connection as they journey toward self-sufficiency and adjust to life in a new city.

6

Designing a community center where the refugees can feel safe and restore their dignity is the main objective.

Given that the Rohingya have been displaced because of their faith, the design of the space will utilize symbols and architectural details that are important to the Islamic faith

7

SITE ANALYSIS

8

WALKABILITY SCORE: 69

TRANSIT ACCESS: 67

The area south of Holladay Street is zoned for general employment which, if the refugees are able to acquire documentation, the area could afford some great entry opportunities.

Portland is well laid out for public transportation and the nearest access point is only a block away.

North of the proposed site is primarily residential with a small node of mixed use commercial which could also provide employment opportunities.

9

DEMOGRAPHICS

Rose City Park is a neighborhood in Portland, Oregon with a population of 16,589. Rose City Park is in Multnomah County and is one of the best places to live in Oregon. Living in Rose City Park offers residents an urban suburban mix feel and most residents own their homes. In Rose City

Park there are a lot of bars, restaurants, coffee shops, and parks. Many families live in Rose City Park and residents tend to be liberal. The public schools in Rose City Park are highly rated.

10

Popular Transportaion Methods

7% 3%

11%

79%

Information sourced from: https://www.point2homes.com/US/Neighborhood/OR/Portland/Rose-City-Park-Demographics.html https://www.niche.com/places-to-live/n/rose-city-park-portland-or/residents/

City Park Neighborhood Population
Household Income
Rose
16,589 51% 49% Median
$92,520
11

CONCEPT STATEMENT

The concept of the community center will be to immerse visitors and residents in an atmosphere of gathering and healing. As the mosque has traditionally been the center hub of followers of the muslim faith, the center will include abstract elements of a mosque that will be recognizable and comforting to the refugee residents as well as structurally exciting to neighborhood residents who visit.

12

INSPIRATION

13
The intent of the community center will be a place of peace and gathering.

PROS

- Open spaces

- Residents have private entrance

- Break room

- Cafe has access to exterior

- Social services is isolated from chaos of the main floor

- Cafe open to skylight allows natural light into space

CONS

- Classrooms have limited access to natural light

- Main entrance is on less busy side of road

- Residences are on the noisiest side of the site

14
15
BUBBLE DIAGRAM

FIRST FLOOR

The first floor is a linear organization. The two sections are are broken up with a series of vertical planes which will help to instill a sense of stability for the refugees. Columns are an essential architectural feature used in mosques which will be a comfort to the religiously persecuted Rohingya refugees.

Lobby Cafe Cafe Office Restrooms Janitorial Mechanical Community Room Storage Classrooms (4) Primary Adjacency Secondary Adjacency Undesired Adjacency 16

SECOND FLOOR

Reception

Open Work Space

Counseling Office

Private Offices (2)

Break Room

Meeting Room

Restroom

Storage

Primary Adjacency

Secondary Adjacency

Undesired Adjacency

The second floor continues the linear organization from the first floor. The adjacent open space looks out over the lobby and cafe. The open views make the waiting area feel more open. The offices and break room will continue with the vertical columns and windows.

The living quarters are organized in a radial pattern originating from the entrance and spanning out.

17
5 2 1 3 4 11 10 12 13 14 15 26 24 21 23 9 8 6 7
RESIDENCE
1. Coat Closet
2. Kitchen 3. Pantry
4. Dining
Center
5. Living Community
Entrance
16.
Womens
23.
25.
26.
17. Lobby 18. Cafe 19. Cafe Office 20. Mechanical 21.
22. Elevator
Janitor 24. Mens
Community
Storage
6. W/C
7. Bedroom 1
8. Full Bath 9. Bedroom 2
18
10. Primary Bed 11. Primary Bath 12. WIC 13. Laundry 14. Resident Entry 15. Resident Bike Rack
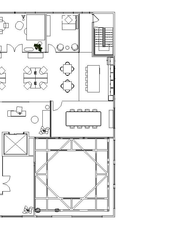
18 30 16 17 29 28 27 25 22 20 19 Womens Restroom Elevator Janitor Mens Restroom Community Room Storage 27. Classroom 1 28. Classroom 2 29. Classroom 3 30. Visitor Bike Rack 19 FIRST FLOOR PLAN
Community Center 1. Reception 2. Computer Lab 3. Womens Restroom 4. Mens Restroom 5. Open Work 6. Private 7. Counseling 8. Private 9. Kitchen 10. 11. 3 4 6 20
Private Office 1
1 2 10 11 9 5 7 8
Counseling Office Private Office 2 Kitchen Break Room Meeting Room Open Below
21
The Rub el Hizb (Islamic Star) is used to facilitate recitation of the Quran and is used an architectural detail above the cafe.
SECOND FLOOR PLAN

COLOR SCHEME

The use of cool hues of green and blue mixed with natural light woods will create a calming effect. Keeping tones of the colors on the lighter side will allow the perception of openness in the spaces

The color green carries both physical and spiritual healing benefits

22
1 2 3 4 23
SELECTED FURNITURE & FINISHES 1. Counseling Office 2. Cafe 3. Reception 4. Community Room

RENDERINGS

24
25

NORTH STREET

26

COMPLETE REMODEL + 2ND FLOOR ADDITION IN NORTH BOULDER

SCANDINAVIAN INSPIRED, CUSTOM WOODWORK, MODERN LINES, AND HIGH END FINISHES

27
28
29
NORTH STREET

1. PLAN DRAWING

2. INTERIOR SALON 1 POINT PERSPECTIVE

3. FIREPLACE PERSPECTIVE - STONE SURROUND

4. FIREPLACE PERSPECTIVE - GRANITE SURROUND

1 2 30 HAND DRAWINGS
3 4 31

FOR FUN

32

Prior to entering the Academy of Art University my creative outlet was to build homes and venues in The Sims

These are some of my favorites

33
34
35
ALEXIS BENTLEY DENVER, CO (303) 416-5652 ALEXISRBENTLEY@GMAIL.COM LINKEDIN.COM/IN/ALEXISBENTLEY

Turn static files into dynamic content formats.

Create a flipbook
Issuu converts static files into: digital portfolios, online yearbooks, online catalogs, digital photo albums and more. Sign up and create your flipbook.
Alexis Bentley Portfolio 2019-2023 by AlexisBentley - Issuu