ALEXANDER GROSEK
PORTFOLIO

![]()








FORT GREENE SITE MODEL + MASSING STUDIES





STEAM-BENT, GLUE-LAMINATED BIRCH





WELDED FRAME WITH TURNBUCKLE TENSION CABLES












1/8” = 1’0” SITE MODEL


SPECULATIVE ADDITION TO THE BROOKLYN HOSPITAL CENTER








SITE MODEL WITH 3D PRINTED SPECULATIVE


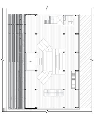
1:200 MODEL, RENDERED PLAN AND SECTION




COLLABORATOR: GYLES FERRAO











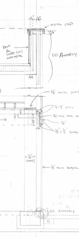
EXPLODED VIEW OF GLULAM COLUMNS, CONCRETE SPANDRELS, AND CLT FLOOR PLATES





Portfolio: Alexander Grosek
Rhode Island School of Design