Alex Martin Gama | Architectural Portfolio

Page 1

Alex Martín Gama Architectural Portfolio
- ACADEMIC PROJECTS- PROFESSIONAL- INTERNSHIP- PERSONALCONTENTS NAHB Design Comp. | 15 - 16 Academic Work | 17 - 18 Personal Work | 19 - 22 Studio Alliance | 1 -4 RH Interior Design | 5- 8 Studio 2G | 9 - 14

STUDIO ALLIANCE | Confidential Law Firm - Los Angeles, CA

100,000 SF interior fit out for Confidential Law firm’s new Los Angeles offices spanning 5 floors. Scope of work includes new workspaces, conferencing, back of house support areas, work gym, work café, and outdoor loggia. Project divided as 5 permit submissions (1 per 2 floors, new staircase, and new loggia). Designed by Tim Kearney + Lauren Caraccio. CD Package by Ju Kim, Megumi Miyaoka, Azauria McDuffie, and myself. Renderings by Ping. Shown with permission of Alliance.

1 [PROFESSIONAL]

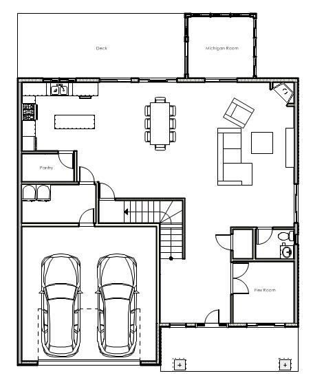
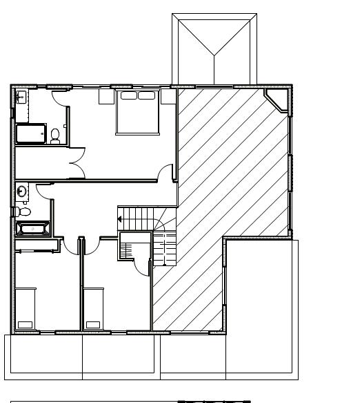
STUDIO ALLIANCE | Private California Residence -

San Mateo County

2,500 SF Remodel and addition of a private residence. Scope of work include kitchen, living room, family room, all restrooms, new garage, and pool house. Management of the BIM model. Coordination of design and site changes with Local Architect, Interior Designer, and Engineer. Designed by Marcus Cross. CD Package + Renderings by Shannon Cheung and Alex Gama. Shown with permission of Alliance

[PROFESSIONAL] 2

STUDIO ALLIANCE | Midtown NYC Building Spec Suites

12,000 SF Building Spec Suites. Provided and rendered warm and cool palatte, as well as 2 different layout options (open office / office centric). Responsible for creating and managing the revit model, renderings, elevations, and plans. Spec book options created additional fit-outs and design proposals for two potential tenants in the building.

RECEPTION

ELEVATOR LOBBY

PANTRY/BREAK ROOM

CONFERENCE

3 [PROFESSIONAL]
Designed by Marcus Cross. Design Package by Alex Gama and Katie Stroetzel. Shown with permission of Alliance.
[PROFESSIONAL] 4
PANTRY (WARM) OPEN OFFICE OPTION (WARM) PERIM. OFFICE OPTION (WARM) OPEN OFFICE OPTION (COOL) PERIM. OFFICE OPTION (COOL) PANTRY (COOL)

RH - INTERIOR DESIGN

Private Residence - Cabo San Lucas, México

Assisted in the creation of CAD plan and elevations. Assisted with interior render of great room. Aided Lead Designer in client meetings in Spanish. Project turnover from conception to final design presentation lasted 7 weeks. All work under minimal supervision from Lead Designer.

Designed by Krysi Diaz. Presentation package created by myself, Franky Ochoa, and Callie Van Ryn. Shown with permission of RH
[PROFESSIONAL] 6 LIVING ROOM CH@9'-0" TERRACE CH@9'-0" BEDROOM 2 CH@9'-0" DINING ROOM CH@9'-0" ENTRY CH@9'-0" KITCHEN CH@9'-0" BEDROOM 3 CH@9'-0" CASITA CH@9'-0" GARAGE CH@9'-0" PRIMARY BEDROOM CH@9'-0"
Dining Room Elevation NTS Primary Room Elevation NTS
Site Plan NTS

RH - INTERIOR DESIGN

Private Residence - Rancho Santa Fe, California

Created 2D CAD plan and elevations. Worked in tandem with other Design Assistant on interior render of Formal Great Room. Assisted with furniture selection, material selection and art curation. All work under minimal supervision from Lead Designer.

7 [PROFESSIONAL]
by Leah Wade. Presentation package created by myself, Morgan Thomas. Shown with permission of RH
[PROFESSIONAL] 8 LIVING KITCHEN FAMILY ROOM CH@VAULTED FORMAL DINING PRIMARY BEDROOM CH@12'-4" PRIMARY BATH FORMAL LIVING OFFICE
Formal Living Room Elevation NTS Primary Room Elevation NTS
Site Plan NTS

STUDIO 2G | ROCKVIEW MODERNS

Residential development consisting of 8 single-family homes in San Luis Obispo, CA.

I created the Demolition and CD package for submittal to the City of SLO. I coordinated with external consultants for CDs on behalf of the owner. I also assisted in the creation of renderings and final material colorboard for owner and planning department approval.

Designed by Heidi Gibson. CD package assisted by Tony de Fazio and Tyler Hall. Shown with permission from Studio 2G.

9 [INTERNSHIP]

Overall Site Section Scale - 1/4” : 10’-0”

Overall Site Plan Scale - NTS

Site was located on a hillside with historical Native significance and local endangered flora. Height limitations based on local ordinances were crucial design drivers for overall building and site design.

[INTERNSHIP] 10

Second Floor Plan - Units 1 - 3, 6 - 8 (Typ.) Scale - 1/4” : 1’-0”

First Floor Plan - Units 1 - 3, 6 - 8 (Typ.) Scale - 1/4” : 1’-0”

11 [INTERNSHIP]
[INTERNSHIP] 12
Back Elevation - Unit 1 Scale - NTS Front Elevation - Unit 1 Scale - NTS

STUDIO 2G | DAOU WINERY BARREL STORAGE

Proposal for a new two story Winery Facility that includes barrel storage, tank room, lab, break room and restrooms. Exterior uses include covered crush pad, mechanical, electrical and storage rooms.

Assited in the creation of drawings in the Minor Use Permit package for submittal to the City of SLO and managed the 3D BIM Model.

13 [INTERNSHIP]
Designed by Heidi Gibson. MUP/CD package created by Joe Rivas. BIM model created by Alex Gama. Shown with permission from Studio 2G.

Architectural Site Plan Scale - 1/2” : 20’-0”

[INTERNSHIP] 14

2018 NAHB DESIGN COMPETITON - 2ND PLACE

I was selected for the National Association of Home Building student design competition as part of Cal Poly’s interdisciplinary team at IBS 2018 along with fellow architecture student Tyler Hall, and city and regional planning student, Eric Martinez.

Project: Meridian Village at Herron Creek is a residential development of 133 dwelling units that uses open, natural space to promote health, wellness, and community in Okemos MI. Located on a challenging site surrounded by wetlands and a 100-year flood plane. Our site and home design were tailored with to the local demographic demands in order to rival neighboring communities and stand out in the competitive market. The project boasts 7 different home options - all homes ranging between 3,000SF - 4400 SF.

15 [ACADEMIC]
Site design by Alex Gama + Eric Martinez. Home designs by Tyler Hall + Alex Gama
[ACADEMIC] 16
St. Helens House - Product A Basement Floor Ground Floor 2nd Floor Torch House - Product G Crystal House - Product D Road Cross Section Analysis

CAMPING PLATFORM - CAMP NATOMA DESIGN BUILD (2019)

Elevation - South Transversal Section

17 [ACADEMIC]
Plan Ghost Tower Precendents

OCEAN VIEW ACADEMIC COMMUNITY - 2ND YEAR

(2016)

Existing Site

New Site Plan Covered Walkway Concept

Classroom Section Perspective

New Classroom Elevation

[ACADEMIC] 18

PERSONAL WORK | HAND SKETCHES

St. Thomas Parish - Washington DC

Neighborhood - Stuttgard, Germany

Quartz Hotel - Tijuana, México

19 [PERSONAL WORK]
[PERSONAL WORK] 20

Lafayette Park Houses - San Francisco

21 [PERSONAL WORK]

PERSONAL WORK | D&D MAP COMMISSIONS

[PERSONAL WORK] 22
City of Rúcina Baui - Planning Map La Port | Li Port | Belah Town Jakarthus Hold

Turn static files into dynamic content formats.

Create a flipbook
Issuu converts static files into: digital portfolios, online yearbooks, online catalogs, digital photo albums and more. Sign up and create your flipbook.
Alex Martin Gama | Architectural Portfolio by Alex Martín Gama - Issuu