Interior Design Portfolio

Page 1

Interior Design portfolio

ALEXA ANDERSON

EDUCATION

University of Wisconsin- Stout

Major in Interior Design

● Anticipated date of Graduation: May 2025

● BFA Interior Design

● CIDA accredited

Contact: 651-428-2620

andersona7480@

my.uwstout.edu

WORK EXPERIENCE

Barista | Caribou Coffee- Woodbury MN June 2017-May 2023

● Develop communication skills while performing efficient transactions.

● Manage and balance a register of at least $500 with attention to detail.

● Work as part of an energetic team with differing work styles to complete tasks

● Demonstrate the ability to prioritize and move quickly among different tasks.

● Engaged in and understood the needs of diverse clientele

Child Care Teacher Aid | Tiny Sprouts-Woodbury MN May 2023-Present

● Planning and organizing age-appropriate activities and games

● Handling emergencies or unexpected situations calmly and effectively

● create engaging and imaginative environments for children

● mastered great attention to detail while supervising children

● communicated effectively with both children and parents

SKILLS

● Strong working knowledge and proficiency in Revit and AutoCAD determined by completing the course: Interior Design communication tools and in progress of completing Interior Design Studio 1.

● Knowledge of color theory, fabric selection, and material choices.

● Strong creative mindset used for problem solving skills and great visualization for potential designs.

● Keen eye for design, style, and trends.

● Analytical and critical thinking skills to solve design challenges.

● Knowledge of certain building codes and regulations.

ACHIEVMENTS

All Conference Award Winner| Tartan High School- Oakdale, MN

Spring 2021

● Received an award that goes to female athletes who demonstrate strong leadership, strong work ethic, athletic and scholarly achievement.

LEADERSHIP/VOLUNTEER

Athletic Leadership Council

December 2019-May 2021

● Worked collaboratively with athletes of all sports to improve high school athletics.

● Opportunities to lead discussions and events due to being a captain of a sport.

● Improved team cohesion and morale though team-building initiatives.

CONTENTS

PALM SPRINGS

ONE LEVEL HOME

PAGES 1-6

COLORADO LOFT APARTMENT

ONE TWO THREE

PAGES 7-16

Residential

PAGES 17-24

YOU MEDIA TEEN

LIBRARY

Residential Commercial

FOUR Studio Project

PAGES 25-26

GEOMETRIC CERAMIC SLAB PIECE

CONTEXT

PALM SPRINGS

ACCESSIBLE HOME

1

Home is located in Palm Springs, CA

• Clients Prefer a Hollywood Regency Design with emphasis on bold colors, elegant features, reflective surfaces, and inviting elements which are both functional and aesthetically pleasing.

• this style concides with Hollywood’s golden age that takes place in the 1930’s

• Emphasis on eye catching pieces of furniture and accents

• Palm springs is located in the Sonoran Desert, causing it’s climate to range anywhere from 60100 degrees depending on the season

Clients: Kim is in her 50’s and her mother, Patricia, is 80. Patricia was diagnosed with Glaucoma which causes her to have severe vision loss. Kim lives with her mother and takes care of her.

1

The design concept for this piece is to encapsulate the glamor and luxury of the Hollywood regency style originated in the 1930’s. This opulent look is achieved by using a variety of bold and contrasting colors with a mix of various textures and detailed patterns. Also, the use of reflective elements and shiny surfaces will allow the client to experience the allure of Hollywood regency.

Modern Luxury

2

3D RENDERINGS, MATERIALS, AND FURNISHINGS

3
4
SKETCHED & RENDERED & ACCESSIBLE 5

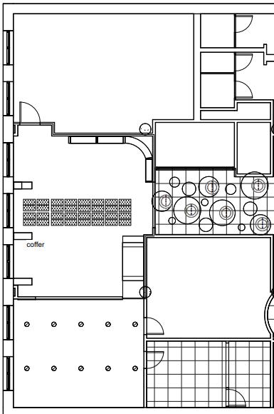
RENDERED FLOOR PLANS

6
ACCESSIBLE FEATURES

2COLORADO LOFT APARTMENT

CONTEXT

Client:

38 year old Male Architect

One additional roomate

Takes interest in the outdoor activities such as camping, skiiing, and rock climbing

Has a passion for cooking

Meditates daily and does yoga Spiritual hippie

Has an appreciation for clean lines and structure

Location:

Boulder, Colorado

Home:

Apartment home with an inclusion of a loft.

7

RUSTIC MINIMALISM

The design concept for this space is to honor the skill of imperfection and the beauty inherent in minimalism. This look is achieved by using warm neutral tones and natural elements to compliment the designs deep connection to the natural world. With the inclusion of organic elements, clean lines, and matte finishes, this space will portray a simplistic Wabi Sabi aesthetic.

8

MASTER BATH AND KITCHEN RENDERING

RESEARCH

Wabi-Sabi is a Japanese philosophy simplicity, imperfection, and with nature. This aesthetic design by embracing weathering using natural materials that adhering to minimalist design Sabi provides an everlasting soulful and genuine interiors natural beauty of materials accepting their transience.

9

RESEARCH

philosophy that values and a close relationship aesthetic is achieved in interior weathering and irregularities, that age gracefully, and design principles. Wabieverlasting method for designing interiors by appreciating the materials and environments and transience.

10
11
RENDERED
MEDITATION
12 MEDITATION ROOM & RENDERED FLOOR PLANS

BEDROOM & DINING RENDERINGS

13
14
15

HAND SKETCHED FLOOR PLANS

16

3YOU MEDIA TEEN LIBRARY

CONTEXT

This is a space where teens can hang out, get help with homework, experiment with design software in a range of disciplines, record music, and participate in a variety of digital media activities and workshops

17

Monochromatic Serenity

The design concept for this space is to encapsulate the tranquility and opulence of a modern Victorian style library. This sophisticated look is achieved by using a monochromatic blue pallet with shades ranging from midnight blue to powder blue. With a focus on detailing and gold accents, the rich textures and compelling architecture of the Victorian era will be highlighted. The inclusion of luxurious furnishings and moody lighting will assemble the space into a lyrical and calming environment that encour-ages peacefulness and productivity.

18

READING AREA & SOCIAL AREA RENDERINGS

RESEARCH

E Libraries such as The Bubbler ogy programs that give students to explore different hobbies like editing, and music creation. These ly offered without charge, are held contemporary library layouts, encouraging group work. These areas also function nity gatherings and workshops. tools for users to interact with developing media literacy. They are outfitted free instructional software. The Bubbler inclusivity and support, offering a practical help to users during their

19

RESEARCH

Bubbler in Madison provide technoland enthusiasts a great way graphic design, coding, video These courses, which are frequentheld in cooperative areas seen in encouraging both individual and function as locations for commuThese libraries provide useful developing technologies and outfitted with charging stations and Bubbler Madison takes pride in its variety of design resources and their educational journeys.

20

LOUNGE AREA, WALKWAY, FLOOR PLAN, & CIELING PLAN

21

PLAN

22

FURNITURE

23
24
FURNITURE DESIGN- INFO DESK

CONTEXT

4GEOMETRIC SLAB CERAMIC SCULPTURE

Objective (left): To reinterpret build the Organic Form through slab construction. Flat slabs create planes, angles and edges expressing the volume in a different visual language.

Objective (right): Build a sculptural coil-built earthenware piece originating from a known organic object. You are to transform this organic object though applying a formal issue provided to change both form and surface of it.

About: An abstarct form of a pineapple in both geometric and organic form made with the use of red clay, glaze, and slip material.

25
26

THANK YOU

Turn static files into dynamic content formats.

Create a flipbook
Issuu converts static files into: digital portfolios, online yearbooks, online catalogs, digital photo albums and more. Sign up and create your flipbook.
Interior Design Portfolio by AlexaVanderson - Issuu