Portfolio 2024

Page 1

PORTFOLIO

2024
In copertina: Dettaglio copertura, ampliamento del cimitero di Montecatini Alto (PT) di Leonardo Savioli, maggio 2024, foto di Alessandro Dini

ALESSANDRO DINI

Urbino (PU), Italia, 03 | 07 | 1998 Via Canale 12, Sant’ Angelo in Vado (PU), Italia

dini.alessandro3@gmail.com + 39 3465262806

CONTENUTI

Museo per l’Acropoli

Musealizzazione della colmata sud dell’Acropoli di Atene Atene, Grecia

2022 | 2023

Rinalda

Ricostruzione e valorizzazione di una torre costiera Lecce, Italia 2023

Social housing a Ravenna

Social housing

Ravenna, Italia

2018 | 2019

Soglia per palazzo El Badi

Ridisegno dell’accesso al palazzo imperiale El Badi

Marrakech, Marocco 2024

Torre

Museo per l’Acropoli

“E, del resto, sapete una cosa: sono convinto che noi altri del sottosuolo andiamo tenuti a freno. Infatti, benchè siamo capaci di starcene in silenzio nel sottosuolo per quarant’anni, se però usciamo alla luce e sbottiamo, allora parliamo, parliamo, parliamo...”

Fëdor Dostoevskij , Memorie dal sottosuolo, 1864 .

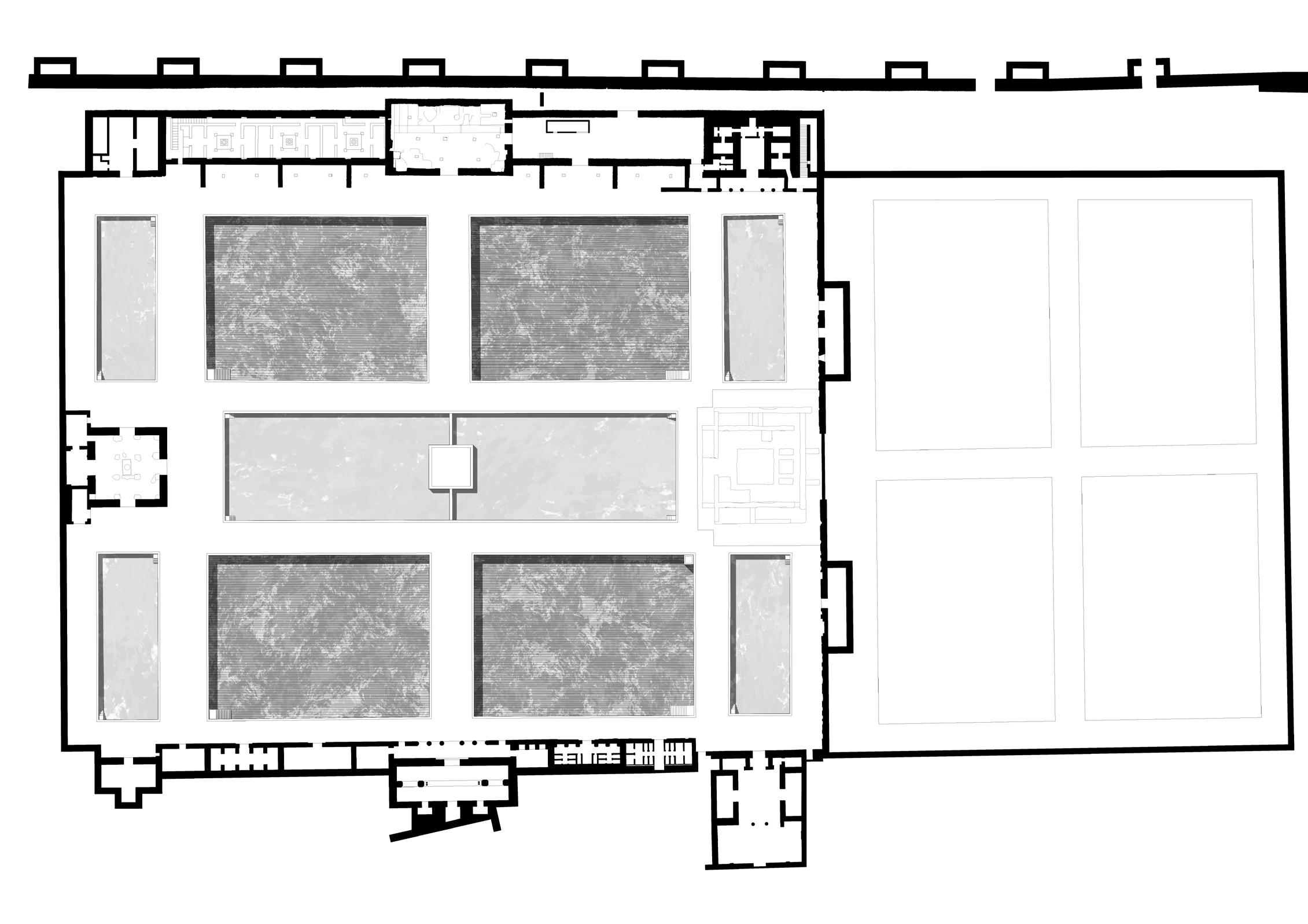
Il progetto di tesi, relativo alla progettazione di un nuovo museo per l’Acropoli di Atene, fa parte di un vasto progetto riguardante l’intera superfice dell’Acropoli attraverso il quale, con il Dipartimento di Architettura di Cesena, abbiamo partecipato al bando internazionale indetto dall’Accademia Adrianea.

Il progetto generale in questione ha agito su due livelli: a livello dell’epigeo con una serie di interventi che ripropongono l’antica conformazione dell’acropoli fatta di terrazze e volumi architettonici, e a livello dell’ipogeo attraverso la progettazione di una serie di coperture che sormontano le due grandi aree di scavo, la Colmata Nord e quella Sud. Il progetto di tesi riguarda l’area di scavo a sud, quella vicina al Partenone, e propone un nuovo museo per l’Acropoli, o meglio, la musealizzazione di quest’area. L’azione architettonica contemporanea, infatti, svela la ricchezza archeologica di quest’area, per troppo tempo sepolta e nascosta, attraverso lo scavo del terreno preesistente, che viene nuovamente utilizzato per creare i percorsi del museo, e la realizzazione di una copertura che permetta la visita di questo grande spazio ipogeo e allo stesso tempo, a livello epigeo, la restituzione dell’antico terrazzamento del Partenone.

Tipologia : Architettura per l’Archeologia | Progetto di tesi

Luogo : Atene, Grecia

Anno : 2022 | 2023

Collaboratori : Lisa Bellosi, Floriana Cogliani

Stato di fatto | Epigeo
Stato di progetto
progetto | Epigeo
Stato di progetto | Ipogeo Stato di fatto | Epigeo Stato di progetto | Epigeo Stato di progetto | Epigeo senza copertura Stato di progetto | Ipogeo Sezione longitudinale

Torre Rinalda

Pensando al paradigma architettonico della torre, viene in mente il passaggio di atmosfera che l’unica soglia d’ingresso determina, ovvero quello tra un esterno luminoso, in cui l’intorno è immediatamente dato e presentato, e un interno totalmente opposto, buio e che offre tutto ciò che circonda la torre in porzioni, sezioni, frammentate e incorniciate da fessure precise, profonde e puntuali. Una volta varcata la soglia, immergendosi nell’oscurità della torre, l’unico modo per riconquistare quell’intorno, prima dato nella sua interezza, è attraverso l’ascensione, la faticosa e ripida salita che le scale della torre prevedono. Una salita che conduce e guida il visitatore alla conquista di quel panorama vasto e apparentemente lontano. È questo il duplice flusso di perdita e conquista giocato dalla torre, essenza sintomatica di quell’eterna verità secondo cui la Bellezza, la vera Bellezza, può essere raggiunta solo attraverso un grande, grandissimo sforzo.

Tipologia : Ricostruzione architettonica

Luogo : Lecce, Italia

Anno : 2023

torre passerella
+ 1.80
Sud | Ovest
+ 3.80
Sud | Est
+ 6.60
Nord | Est
+
Nord | Ovest
10.30

il progetto prevede la riproposizione semplificata dell’antico volume della torre, sulla base sia di note storiche che di osservazioni volumetriche della preesistenza stessa. Questo volume di completamento si disegna in negativo con quello che è il profilo del rudere, appoggiandosi su di esso in modo da denunciarne la differenza: sia attraverso il tema del giunto, che distanzia i due corpi, sia attraverso il tema materico, utilizzando lo stesso materiale della preesistenza ma differenziandosi attraverso il colore che la nuova pietra presenta. Come spazio pubblico, la proposta deriva dall’osservazione diretta dello stato formale della torre e da alcuni indizi storici a livello compositivo. Entrambi suggeriscono una composizione su tre livelli: un piano interrato, un piano nobile e un belvedere. Questa composizione è stata riproposta, ma reinterpretata a livello funzionale. Il piano interrato - raggiunto da una nuova passerella in legno che diventa un bastione, una barriera per la torre e un luogo di sosta e ascolto - ha un ingresso profondo, una soglia ideale per preparare il visitatore a quel passaggio di sensazioni. Questo piano è ora utilizzato come foyer, dove il visitatore viene accolto. Da qui si nota subito la presenza dell’elemento che collega tutti i piani, la scala. Questa si snoda attraverso una sequenza ritmica di spazi serventi stretti e bassi e di spazi serviti ampi e alti, come il piano nobile, ora voltato, che è diventato uno spazio culturale polivalente, per proiezioni di film, conferenze, ecc. Da qui parte l’ultima rampa di scale che conduce il visitatore al piano del belvedere, dove quel panorama “lontano” riappare in tutta la sua vastità.

1 2 3 1
2
3
Sezione longitudinale Sezione trasversale
| Foyer
| Cinema hall
| Belvedere

Social housing a Ravenna

L’attenta osservazione dell’ambiente circostante è una qualità essenziale per qualsiasi progetto architettonico. Questo principio è alla base della riqualificazione dell’area dell’ex caserma Dante Alighieri a Ravenna. L’obbiettivo principale dell’intervento è quello di mantenere un contatto diretto con l’area e con gli elementi che la compongono attraverso la conservazione delle relazioni con il lotto esistente. Con queste premesse, si definisce un insediamento residenziale composto da elementi lineari che collaborano tra loro a formare una serie di cortili chiusi.

Le corti e il verde nascosto, tipico del centro storico di Ravenna, diventano gli elementi principali del progetto. Il complesso, sul fronte di via Port’Aurea, è caratterizzato da un lungo edificio commerciale di tre piani che assume la funzione di filtro e che quindi chiude parzialmente l’insediamento. Il progetto ricerca inoltre un’alternanza tra vuoti e pieni che, oltre a fornire una grande illuminazione alle residenze, costituisce una continuità tra gli spazi aperti, evidenziando i percorsi e le strutture preesistenti. I percorsi mantengono una certa continuità con alcune relazioni preesistenti che caratterizzano la trama del sito e stabiliscono flussi ben visibili che confluiscono nei grandi spazi aperti.

Tipologia : Progetto residenziale | Social housing Luogo : Ravenna, Italia

Anno : 2018 | 2019

Collaboratori : Matteo Spadoni, Alberto Ercolani, Lorenzo Ercolani

verde privato verde pubblico

residenza spazi commerciali museo lavanderia Preesistenza Corti Filtro e tagli Destinazioni
a - a’ b - b’ a a’ b b’
Primo piano Piano terra
T1 T2 T3
Corpi scala

1 | soggiorno e cucina

T1
T3
2
3
4
4 3 3 1 1 2 3 1 5 2 4 3 6 7 3 2 2 1
2
3
singola 4 | camera doppia 5
6 | studio 7
loggia
2
T2
1 | soggiorno e cucina
| bagno
| camera singola
| camera doppia
| soggiorno e cucina
| bagno
| camera
| libreria
|
| bagno 3 | camera singola

Soglia per palazzo El Badi

Il progetto si inserisce in quello spazio che viene definito dalla biglietteria esistente e dal bastione nord attualmente inaccessibile. E’ proprio quell’interstizio e quella piega che dapprima anticipa e che poi immette all’ interno del palazzo che offre le migliori possibilità per disegnare una vera e propria soglia. Ponendosi a cavallo tra il caotico spiazzo stradale che guida il cammino verso Palazzo El Badi, e il fresco silezio che vi si trova in esso, la soglia gioca un ruolo di mediatore tra questi due estremi perennemente coesistenti. Il passaggio tra questi contrapposti viene dilatato gradualmente grazie alla forma e alla composizione che la soglia assume. Tale processo inizia già grazie alla presenza dell’esistente galleria/promenade che il palazzo stesso definisce, per poi procedere mediante una sequenza di spazi, elementi e composizioni che si intervallano e che si susseguono l’una con l’altra. Gallerie strette e rivolte verso l’azzurro cielo; volumi pieni, pesanti e sospesi che gravano sulla testa del visitatore per schiacciare quest’ultimo; e alte stanze la cui copertura gradonata presenta un preciso ritaglio dell’azzurro cielo. In questo continuo alternarsi, la necessità di creare ombra tramite la predisposizione delle coperture pocanzi citate, permette alla luce di divenire elemento essenziale per costruire alienazione e distacco, silenzio e riflessione; in attesa di quella pace silenziosa che segue il caos della tempesta. In conclusione sta in questo l’anima e il ruolo del progetto: un traghettore che dalla luminosa caoticità di Marrakesh conduce, tramite l’ombra, all’interno dell’altrattanto luminosa ma silenziosa atmosfera di Palazzo El Badi; un’occasione di profonda riflessione.

Tipologia: Architettura per l’Archeologia | Progetto di tesi master

Luogo: Marrakech, Marocco

Anno: 2024

Collaboratori: Alessandro Pascuzzi

area di progetto
ingresso uscita

Sezione longitudinale

Sezione trasversale

Scatola archeologica Struttura e pavimentazione Camini di luce Copertura Spaccato assonometrico doppia trave a C binario monorotaia carrello asta a sezione cilindrica peso per il fissaggio pannello espositivo binario piedino regolabile Dettaglio allestimento Sul retro: Teatro romano di Lione, Lione (FR), aprile 2023, schizzo di Alessandro Dini

Turn static files into dynamic content formats.

Create a flipbook
Issuu converts static files into: digital portfolios, online yearbooks, online catalogs, digital photo albums and more. Sign up and create your flipbook.
Portfolio 2024 by Alessandro Dini - Issuu