CADERNO DE PROJETO COZINHA HELCIA

Page 1

SUMÁRIO Layout humanizado ...................................................................................................................................Folha 1 Planta técnica/ Planta baixa/ Vista superior com corte ..............................................................Folha 2 Perspectiva Isométrica .........................................................................................................................Folha 3 Perspectiva com balcão de refeições / vistas B e D ....................................................................Folha 4 Cortes e vistas A e C.................................................................................................................................Folha 5 Vista detalhada ..........................................................................................................................................Folha 6 Detalhamento balcão cooktop ............................................................................................................Folha 7 Vistas C e D Detalhadas .........................................................................................................................Folha 8 Moodboard....................................................................................................................................................Folha 9 Planta de paginação de piso ..................................................................................................................Folha 10 Planta de Elétrica .......................................................................................................................................Folha 11 Planta de Iluminação ................................................................................................................................Folha 12
SUMÁRIO Imagem renderizada vista A...................................................................................................................... .....Folha 13 Imagem renderizada vista C............................................................................................................................Folha 14 Imagem renderizada vista D............................................................................................................................Folha 15 Imagem renderizada vista B............................................................................................................................Folha 16 Imagem renderizada vista AA.........................................................................................................................Folha 17 Comparação Antes e Depois ...........................................................................................................................Folha 18 Comparação Antes e Depois ...........................................................................................................................Folha 19 Lista de Compras ................................................................................................................................................Folha 20 Lista de Compras ................................................................................................................................................Folha 21 Lista de Compras Luminotécnica ..................................................................................................................Folha 22 Lista de POSSÍVEIS FORNECEDORES
B C A DGELADEIRA 1 @alesilva.designdeinteriores (12)988016899 FOLHA 1
0,76
tramontina
11 @alesilva.designdeinteriores (12)988016899 FOLHA

o d a p é e m a l v e n a r i a r e v e s t i d o c o m m e s m o m a t e r i a l d o p i s o

A
d e g a S e c a c o m 1 0 x 1 0 c m
A R M Á R I O S U P E R I O R
0 , 9 0 m P
O R T A B A S C U L A N T E C O M A B E R T U R A P A R A C I M A E C O M P I S T Ã O
P O R T A S B A S C U L A N T E C O M P I S T Ã O
P
i s t a o a g á s , f o r ç a n o r m a l p r a t a 8 0 N 8 K g
M a d e i r a M D F F r e i j ó ( A r a u c o )
0 , 0 5 m A
m á r i o S u s p e n s o
1
5 c m ( P r e s o n a p a r e d e )
P e d r a d a b a n c a d a e m G r a n i t o B r a n c o I t a ú n a s
R
T o r r e Q u e n t e E m M D F C i n z a G r a s s
M
D F C i n z a G r a s s ( A r a u c o )
M
D F F r e i j ó ( A r a u c o )
R o d a b a n c a e m G r a n i t o B r a n c o I t a ú n a s
C L I E N T E H E L C I A C R I S T I N A
FOLHA 3D A T A : 1 4 / 1 0 / 2 0 2 2 A
L E S S A N D R A S I L V A D E S I G N E R D E
I
N T E R I O R E S
@ a l e s i l v a . d e s i g n e r d e i n t e r i o r e s ( 1 2 ) 9 8 8 0 1 6 8 9 9 A S
S U N T O : P E R S P E C T I V A I S O M É T R I C A
E S
C
A L A : 1 : 2 5 P
R O J E T O : C O Z I N H A S O N H O
E S C A L A : 1 : 2 5 * O B S : C O N F E R I R T O D A S A S M E D I D A S N O L O C A L
C
O R T E V I S T A D
C
O R T E V I S T A B
P
É D A M E S A E M A Ç O M E T A L O N C O M T I N T A P R E T A
C L I E N T E H E L C I A C R I S T I N A FOLHA 4D A T A : 1 4 / 1 0 / 2 0 2 2 A L E S S A N D R A S I L V A D E S I G N E R D E I N T E R I O R E S @ a l e s i l v a . d e s i g n e r d e i n t e r i o r e s ( 1 2 ) 9 8 8 0 1 6 8 9 9 A S S U N T O : P E R S P E C T I V A C O
M
D E T A L H E / C O
R
T E S / V I S T A S E S
C
A L A : I N
D
I
C
A D A P
R
O J E T O :
C
O Z I
N H
A S O N H O
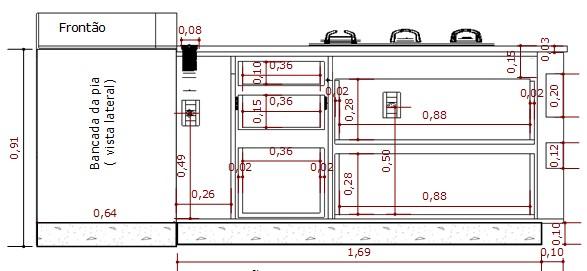
0,10 0,02 0,55 0,58 0,50 1,15 1,15 0,141,04 0,18 @alesilva.designdeinteriores (12)988016899 FOLHA 5

GAVETÃO

GAVETÃO

GAVETÃO GAVETÃOGAVETÃO @alesilva.designdeinteriores (12)988016899 FOLHA
0,50 0,50 0,02 0,040,02 0,10 0,05 0,50 0,27 0,27 *Conferirmedidasnolocal @alesilva.designdeinteriores (12)988016899 FOLHA 0,50 1 1 1 1,84
0,02 0,62 0,62 0,44 0,44 0,74 0,74 0,06 0,32 0,35 0,51 0,660,51 0,11 0,35 0,48 0,300,30 0,22 0,19 0,22 0,88 0,36 0,36 0,150,36 0,300,28 0,020,02 0,93 0,28 0,45 0,15 0,10 0,36 0,34 0,22 0,30 0,33 0,19 0,340,26 0,22 1,010,44 2,462,00 1,85 0,17 0,02 2,45 0,64 0,60 1,010,46 CONFERIR0,49 0,10 0,88 0,02 0,02 @alesilva.designdeinteriores (12)988016899 FOLHA
@alesilva.designdeinteriores (12)988016899 FOLHA ARANDELA35X12X16CMMETALEVIDRO-OLDARTISANAR-5366
1 LEGENDA PEÇA 2,02 3,00 0,15 0,21 0,80 26,361m² @alesilva.designdeinteriores (12)988016899 FOLHA

acabado

acabado

Observação

1 Interruptor Interruptor Interruptor Interruptor TomadaBaixa
TomadaMédia
Tomadaalta-2,00m 0,55 0,05
seguidodooutro,ex:( DATA:14/10/2022
0,51 0,51 0,58 1 0,60 1,330,64 DATA:14/10/2022
@alesilva.designdeinteriores (12)988016899 FOLHA
@alesilva.designdeinteriores (12)988016899 FOLHA
@alesilva.designdeinteriores (12)988016899 FOLHA
@alesilva.designdeinteriores (12)988016899 FOLHA
@alesilva.designdeinteriores (12)988016899 FOLHA
FOLHA
FOLHA
@alesilva.designdeinteriores (12)988016899 FOLHA
@alesilva.designdeinteriores (12)988016899 FOLHA
@alesilva.designdeinteriores (12)988016899 FOLHA 30X120BRANCONEUTRO-4000k Potência48W-Equivalente480WIncandescente FatorPotência>0,99-SuperLEDPremium/MaterialAcrílico (110V-220V)-VidaÚtil50.000horas-Dimensões30cmx120cm-Profundidade PAINELDELEDDEEMBUTIR17X1712W240V PendenteMeiaLua34cmLumináriaAlumínio www.madeiramadeira.com.br *ESPECIFICAÇÕESTÉCNICASDOSPOT**-Potência:10Watts -Vidaútilaproximada:25milhoras-Voltagem:127/220V(Bivolt) -DimensõesdoSpot:Spot13 3cmdelargura-CoresdoTrilho:Branc Cód:GDTB-2M magazineluiza.com.br

R E L A Ç Ã O D E P O S S I V E I S F O R N E C E D O R E S

M O V E L A R I A P L A N E J E

T e l e f o n e : ( 1 2 ) 9 8 7 0 3 - 0 2 2 6 h t t p s : / / w w w f a c e b o o k c o m / M o v e l a r i a P l a n e j e

V E N E Z A M O V E L A R I A - E m p r e s a d e m a r c e n a r i a e m J a c a r e í

T e l e f o n e : ( 1 2 ) 9 9 2 2 9 - 5 5 2 4 h t t p s : / / w w w f a c e b o o k c o m / V e n e z a - M o v e l a r i a - 1 0 0 8 4 0 9 1 5 0 6 3 4 8 4 /

M A R M O R A R I A I R M A O S M I L L E R

E n d e r e ç o : A v . L u c a s N o g u e i r a G a r c ê s , 1 3 2 6 J a r d i m E s p e r a n ç a , J a c a r e í - S P , 1 2 3 2 4 - 0 0 0 Á r e a s a t e n d i d a s : J a c a r e í e a s p r o x i m i d a d e s T e l e f o n e : ( 1 2 ) 3 9 5 1 3 1 3 1

J L M A R C E N A R I A

T e l e f o n e : ( 1 2 ) 9 8 8 8 7 - 7 0 5 9

C o s t a F l o r e s | F Á B R I C A C o n d o m í n i o I n d u s t r i a l R . S a l v i a n o J o s é d a S i l v a , 3 4 5 E l d o r a d o , S ã o J o s é d o s C a m p o s

T e l e f o n e : ( 1 2 ) 3 9 0 3 - 9 0 8 8 h t t p s : / / w w w c o s t a f l o r e s c o m b r /

M O R M O R A R I A E E M P R E I T E I R A C A R L I N H O S P E D R A S

E n d e r e ç o : R o d . G e r a l d o S c a v o n e , 3 0 J a r d i m C a l i f o r n i a , J a c a r e í - S P , 1 2 3 0 5 - 4 9 0 T e l e f o n e : ( 1 2 ) 9 7 4 0 4 8 0 2 9 h t t p s : / / c a r l i n h o s p e d r a n e g o c i o s i t e / ? u t m s o u r c e = g m b & u t m m e d i u m = r e f e r r a l E n d e r e ç o : A v . D o m P e d r o P r i m e i r o , n ° 3 5 0 P a r q u e d o s P r í n c i p e s , J a c a r e í - S P , 1 2 3 1 0 - 0 6 0 T e l e f o n e : ( 1 2 ) 9 8 2 6 7 0 1 0 3

M a r m o r a r i a M G

C A R R A R A M A R M O R A R I A J A C A R E Í

E n d e r e ç o : A v . L u c a s N o g u e i r a G a r c ê s , 7 0 3 - E s p e r a n ç a , J a c a r e í S P , 1 2 3 2 4 0 0 0 T e l e f o n e : ( 1 2 ) 3 9 5 6 - 2 1 6 1

Turn static files into dynamic content formats.

Create a flipbook
Issuu converts static files into: digital portfolios, online yearbooks, online catalogs, digital photo albums and more. Sign up and create your flipbook.