PORTFOLIO Aleksandra Gałgan

Page 1

01 02 03 04 05 06 07 08

01

Dom jednorodzinny Częstochowa

Głównym założeniem projektowym było stworzenie wnętrza eleganckiego, ale zarazem ciepłego i przytulnego.Zastosowanemateriałyikolory,takiejak wielkoformatowe płytki, tkaniny w różnych odcieniach beżu oraz czarne akcenty pozwoliły uzyskać zamierzony efekt, a wnętrze stało się ponadczasowe.

02

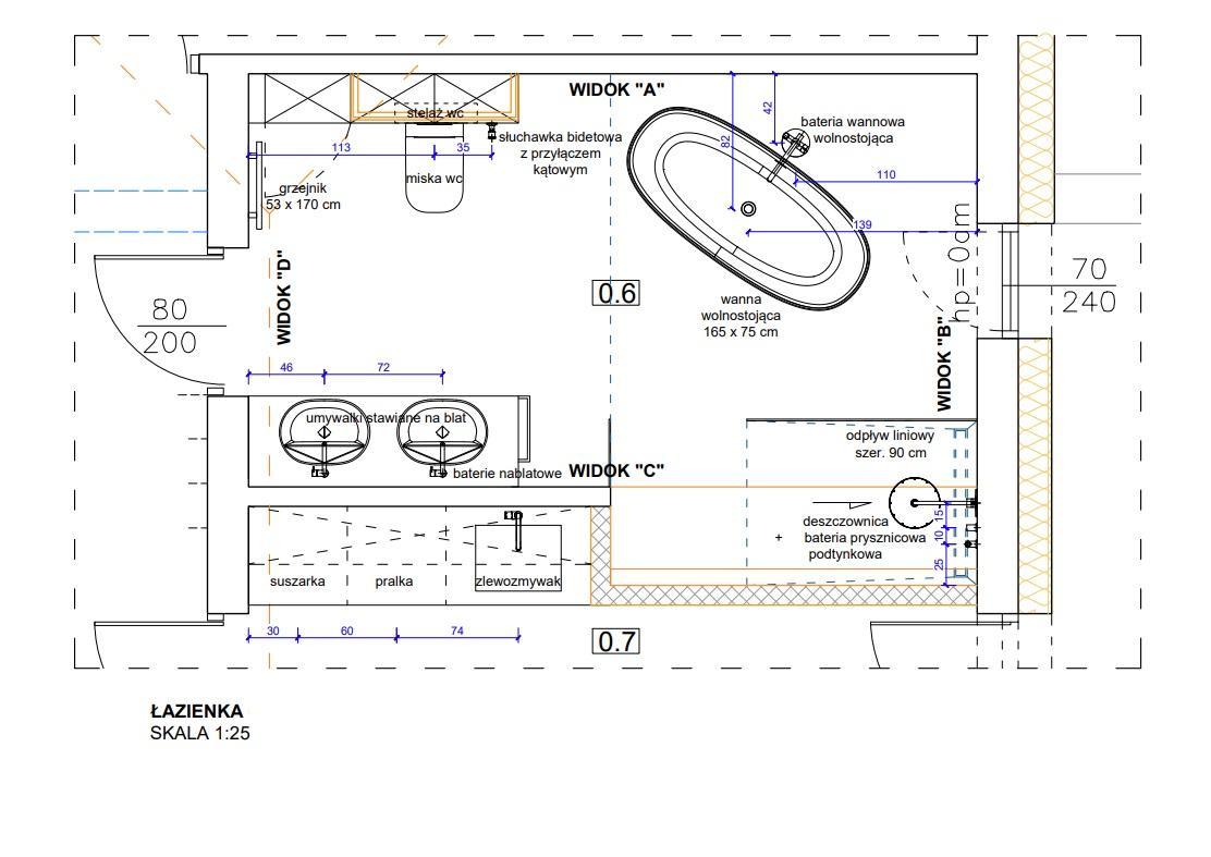
Salon kąpielowy w domu jednorodzinnym

Częstochowa

Punktem wyjściowym stworzonej koncepcji łazienki był zamysł podziału pomieszczenia na dwie części, zróżnicowane kolorystycznie, na zasadzie kontrastu barw.Jednaczęśćobejmujestrefęzumywalkami,dla domowników jak i gości, a druga część strefę prysznicowo-wannową przeznaczoną tylko dla inwestorów.

Rysunki techniczne kilka

wybranych

Schemat instalacji sanitarnych Schemat instalacji elektrycznych

03

Kuchnia w domu jednorodzinnym

Kłobuck k. Częstochowy

Kuchnia w stylu nowoczesnym, minimalistyczna, w jasnych barwach, przełamana wysoką zabudową w kolorze czerni. Wielkoformatowe spieki kwarcowe

nałożonenaścianyiblatynadałylekkościwnętrzu.

Zabudowa

Zabudowa kuchenna / kłady ścian

Rysunki techniczne kilka wybranych
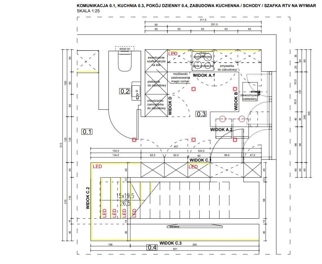
kuchenna na wymiar / rzut

Rysunki techniczne

Zabudowa

kuchenna na wymiar / kłady ścian

Rysunki techniczne

Zabudowa kuchenna na wymiar / układ spieków kwarcowych

04

Mieszkanie

Częstochowa

Mieszkaniejednopokojowezosobnąkuchnią,zostało przearanżowanenamieszkanie2-pokojowezdużym

pokojem dziennym z wydzielonym aneksem kuchennymorazniewielkąjadalnią.Wdrugimpokoju zaprojektowanosypialnię.

Dom jednorodzinny Częstochowa

Wnętrze utrzymanewjasnejkolorystyce, główniew bieliorazwróżnychodcieniachszarościprzełamane złotymi akcentami. Stylistyka wnętrza łączy ze sobą nowoczesność z elementami glamour. Całość stonowanego wnętrza została przełamana nietuzinkowymilampami,tapetamizdomieszkąbarw różuifioletuorazpłytkamizniejednolitąfakturą.

05

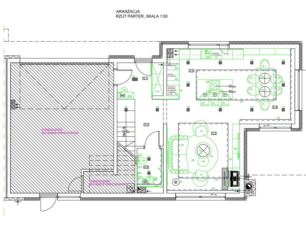
Aranżacja Schemat instalacji elektrycznych

Rysunki techniczne kilka wybranych
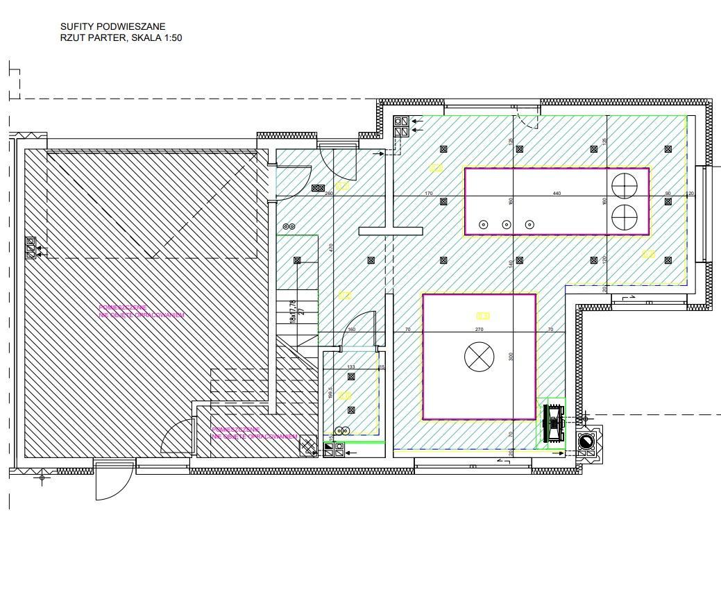
Rysunki techniczne Sufity podwieszane Projektowane podłogi

Rysunki techniczne

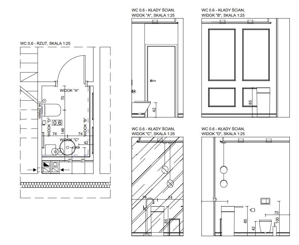
Toaleta rzut/kłady ścian Toaleta rzut/kłady ścian rozmieszczenie płytek

Mieszkanie Kraków

Kontrastujące ze sobą odcienie szarości oraz oryginalny wzór tapety w strefie dziennej nadają

wnętrzu niebanalny charakter. Wielkoformatowe spiekikwarcoweorazdużelustrozaprojektowanew łazienceoptyczniepowiększająprzestrzeń.

06

07

Dom w zabudowie bliźniaczej

Częstochowa

Sercem domu stała się wyeksponowana klatka schodowa, okalająca z jednej strony wiatrołap, przechodzącwwysokązabudowękuchni,natomiastz drugiejstronyprzechodzącadopokojudziennegow zabudowę ściany tv. Wnętrze domu utrzymane w jasnychbarwach,zdodatkamidrewnaorazmocnymi akcentamikolorystycznymiwtonacjiniebieskiego.

Rysunki techniczne kilka wybranych

Zabudowa kuchni i schodów

i ściany tv
Rysunki techniczne Zabudowa schodów
Rysunki techniczne Meble na wymiar

08

Dom jednorodzinny

Kłobuck k. Częstochowy

Klasycznewnętrzeutrzymanewtonacjachbieli,beżu ze złotymi dodatkami. Elegancji i lekkości całości

dodająwielkoformatowepłytyCalacattazastosowane

na ścianach, blacie kuchennym oraz w toalecie. Przestrzeń została optycznie powiększona poprzez zaprojektowanie dużych fazowanych luster, ułożonychnaścianiewformiemozaikiopodłużnych kształtach.

Turn static files into dynamic content formats.

Create a flipbook
Issuu converts static files into: digital portfolios, online yearbooks, online catalogs, digital photo albums and more. Sign up and create your flipbook.