Skip to main content

REVISTA INFORME SEMESTRE

Page 1

INFORME FINAL EDIFICIO MIRADOR

DEL MODERNO

Redes e instalaciones

Nicole Alejandra Molina Estudiante Cristina Cendales Estudiante Patricia García Profesora

ÍNDICE GENERAL

01

Primer corte

1.1 Información general y geolocalización

1.2 Mapas de redes públicas

1.3 Planta estructural

1.4 Análisis de plantas (sótanos, tipo, cubierta)

02

Segundo

corte

2.1 Instalaciones sanitarias

2.2 Instalaciones hidráulicas

2.3 Sistema de aguas lluvia

03

Tercer corte

3.1 Instalaciones eléctricas

3.2 Instalaciones a gas

INTRODUCCION

Para hacer un respectivo estudio de las redes e instalaciones se nos pidió escoger un edificio de residencia y con plantas tipo.

El edificio escogido fue el Mirador del moderno ubicado sobre la carrera 10 con calle 74 (CALLE 74 # 10-33)

Este es un edificio residencial que cuenta con 9 pisos, de los cuales 2 son sótanos y a partir del octavo piso son apartamentos duplex.

Para hacer un buen análisis se realizaron dos aproximaciones, la primera de estas fue a partir de planos en los cuales se ubicaron todas las convenciones visibles al interior y exterior del edificio, mientras que la segunda fue una aproximación visitando el edificio, dándonos como resultado una construcción mas clara del lugar por medio de un análisis fotográfico.

el siguiente informe manifestara el resultado al cual llegamos teniendo en cuenta el proceso mencionado anteriormente.

Edificio Mirador del Moderno

INDICE PRIMER CORTE

Introdución .................................................................................. 3. Geolocalización. ................................................................................. 4 Convenciones encontradas en el predio .................................................................................5 Caracteristicas generales ................................................................................ 6 Mapa red pública de alcantarillado sanitario ....................................................................... 9 Mapa red pública de cuencas de alcantarillado ....................................................................10 Mapa red de alumbrado público de Bogotá ............................................................................11 Plano estructural. ..................................................................................12 Planta primer piso ................................................................................ 13 Planta tipo ................................................................................. 14 Planta octavo piso ................................................................................. 15 Planta noveno piso ................................................................................. 16 Sótano I . .................................................................................17 Sótano II ............................................................................... 18 Cubierta ................................................................................ 19 Recorridos: cuarto de maquinas y de basuras ........................................................................20 Planeamiento tipo alambre de redes sanitarias planta tipo ................................................ 21 Conclusiones .................................................................................22

QUE SON LAS REDES E

INSTALACIONES?

Las redes e instalaciones se refieren a los sistemas estructurados que permiten la distribución y gestión de recursos como electricidad, agua, gas, telecomunicaciones, y datos dentro de edificios y áreas geográficas específicas. Estos sistemas son esenciales para el funcionamiento eficiente y seguro de hogares, oficinas, industrias y comunidades.

Las redes e instalaciones son fundamentales para el funcionamiento moderno de cualquier infraestructura. Nos permiten tener:

Seguridad: Prevención de accidentes y fallos.

Eficiencia: Optimización del uso de recursos y reducción de costos.

Confort y Bienestar: Provisión de servicios básicos y confortables.

Sostenibilidad: Implementación de tecnologías y prácticas que minimizan el impacto ambiental.

NIVEL 0.0

el "nivel 00" se refiere al nivel de referencia principal de un edificio, comúnmente conocido como la planta baja o el nivel del suelo. Este nivel es el punto de partida a partir del cual se miden todas las demás alturas y profundidades dentro de la estructura.

La nivelación es un proceso sumamente importente que se debe realizar antes de construir una obra. Hace parte de los actividades preliminares y resulta primordial a la hora de definir el nivel 00 y los dempo muelos de la edificación, incluyendo la cimentaciones sotanos y las diversas alturos do las plantas dal acriclo

ACTIVIDAD NIVEL 0.0

Se realizó una actividad al aire libre, por medio de la cual se entendió el proceso neto de calculo del nivel 00 en un terreno.

Para esta actividad cada grupo se separo en diferentes espacion del terreno donde variaban las pendientes.

El nivel 00 se calculo por medio de una manguera la cual debía ser llenada por agua y nivelada de forma que en las dos puntas quedara de la misma altura y así poder identificar los desniveles del terreno.

Dirección: Calle 74 # 10-33

Bellavista Chapinero

Bogotá

Distrito capital

Colombia

GEOLOCALIZACIÓN

El edificio esta ubicado en una manzana residencial, imitando:

Hacia el oeste: por la derecha desde la calle 74 con el edificio residencial Lexington,

Hacia el este: por la izquierda y después de la carrera 10 con el edificio Cauca;

Hacia el sur: sobre la carrera 10 y posterior a este limita con el edificio El Dorado

Hacia el norte: tiene un frente al colegio Gimnasio Moderno de Bogota.

Colegio

Gimnasio Moderno

Ed. Cauca

Ed. Lexington

Ed.El dorado

Edificio Mirador del Moderno

OESTE
NORTE
SUR ESTE

LATITUD:

4' 3g’ 30"

LONGITUD:

N74-63' 24" W

CODENSA ACUEDUCTO

TELECOMUNICACIONES

RON:
a es
MOJONES CODENSA ENERGIA
ETB
ELECTICA TELEFONOS RASANTE Edificio Mirador del Moderno

CARACTERISTICAS GENERALES

NUMERO DE APARTAMENTOS: 77

11 Tipo de apartamentos duplex y sencillos.

1 y 2 alcobas.

TAMAÑOS : De 40 a 134 metros cuadrados.

ESTRATO : 5

VALOR METRO CUADRADO: Desde $1.750.000,00 : Edificio de siete (8) pisos, once (11) tipos de apartamentos por piso, dos (2) ascensores, zona de parqueo para visitantes, cada apartamento cuenta con su respectivo depósito, posee planta eléctrica, caldera, buena vista, tranquilidad y administración inmobiliaria.

CARACTERISTICAS GENERALES

EDIFICIO MIRADOR DEL MODERNO

CONTRUCTORA :Unión de Constructores “Conusa S.A.”

DIRECCIÓN PRINCIPAL : Carrera 13 No. 94 A-44 Oficina 403

TELEFONOS :2 574744 – 2 574933

DIRECCIÓN DEL PROYECTO: Calle 74 No. 10 – 33

Frente al Gimnasio Moderno.

BARRIO :La Porciúncula

MAPA RED PUBLICA DE ALCANTARILLADO SANITARIO

En el mapa con la infraestructura de alcantarillado sanitario de la ciudad, encontramos que alrededor de la manzana donde esta ubicado nuetro edificio pasan las siguientes redes: Pozos

Sumideros Red local

Edificio Mirador del Moderno

MAPA RED PUBLICA DE CUENCAS DE ALCANTARILLADO

Sobre las cuencas de alcantarillado que encontramos mas cercanas a nuestra manzana son las que están una manzana detrás hacia el sur, lugar donde ocurre el drenaje de agua y otras sustancias a una salida común.

Subcuenca Pluvial

Edificio Mirador del Moderno

MAPA RED DE ALUMBRADO

PUBLICO

Servicio que consiste en proveer la iluminación mínima necesaria en los espacios públicos y vialidades, de forma que se garantice la seguridad de peatones y vehículos. Encontramos que el edificio cuenta con una red de alumbrado en la parte

Postes Eléctricos

Red de alumbrado

Edificio Mirador del Moderno

INFORME PRELIMINAR

Aspectos a analizar:

Cuartos especiales

Cuarto de maquinas

Ductos

Redes de ventilación

Redes eléctricas

Red hidraulica

Medidores de agua

Pozo eyector

Columnas cuadradas de 60x60 proporcionan una sólida base estructural, mientras que los tres muros pantalla estratégicamente ubicados cumplen la importante función de brindar soporte a las escaleras, garantizando la estabilidad de los puntos fundamentales del edificio.

PLANO ESTRUCTURAL

Es un edificio con estructura aporticada, Además, se integra una columna circular diseñada específicamente para servir como soporte para los balcones de los apartamentos, combinando funcionalidad con un elemento estético distintivo. Sin embargo, lo que realmente resalta en el sistema estructural del edificio es la disposición diagonal de sus vigas. Esta disposición no solo añade un aspecto visual único al diseño, sino que también es el resultado de una planificación meticulosa que se deriva de la distribución precisa al colocar la placa correspondiente.

PLANTA PRIMER PISO

PARQUEADEROS

En en primer piso se encuentra la entrada principal al edificio, lobby y recepción.

Recepción

Escaleras

Ducto shut

4 baños sin ducha

Cocineta

Sala de conductores y escoltas

Lobby

Salón comunal con cocineta pequeña

Dos rampas

Dos ascensores

37 Parqueaderos

Escalinatas de subida y rampas

Cuarto eléctrico

Medidor de agua

Rampa 2 Rampa 1

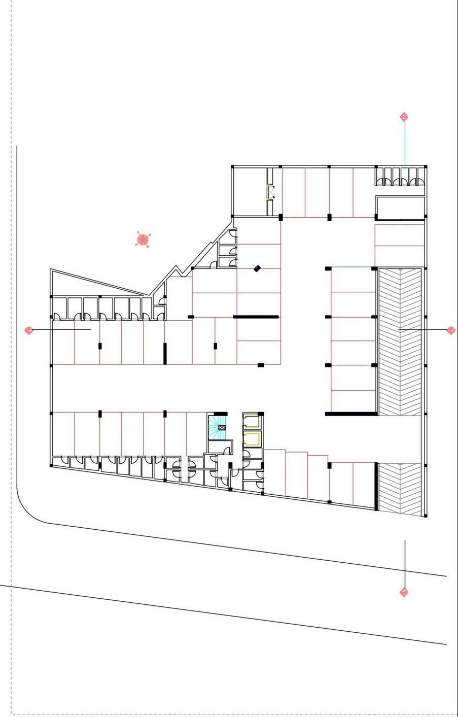
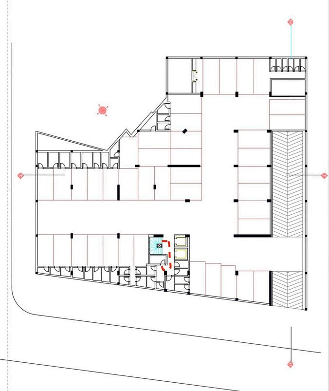
PLANTA TIPO

Se ubicaron las redes según la ubicacion de los instrumentos

Escaleras RED HIDRAULICA

La planta tipo cuenta con 11 apartamentos de los cuales se presentan 4 tipos:

TIPO 1:

Apartamento con 1 habitación, un baño, una sala comedor y espacio de aseo. (ÁREA:

TIPO 2:

Apartamento con 1 habitación, un balcón, un baño, una sala comedor y espacio de aseo. (ÁREA:

TIPO 3:

Apartamento con 1 habitación, dos baños, una sala comedor y espacio de aseo.

TIPO 4:

Apartamento con 1 habitación, tres baños, una sala comedor y espacio de aseo.

RED ELECTRICA

Escaleras

Ascensor

PLANTA OCTAVO PISO

TIPO A TIPO A TIPO B TIPO D TIPO C TIPO C

La octava y novena planta son apartamentos duplex, de los cuales se presentan 4 tipos:

TIPO A:

Una habitación, dos baños, sala comedor, cuarto de ropas y terraza.

TIPO B:

Una habitación, un baño, sala comedor, cuarto de ropas y terraza.

TIPO C:

Dos habitaciones, dos baños, sala comedor, cuarto de ropas y terraza.

TIPO D:

tres habitaciones, tres baños, sala comedor, cuarto de ropas y terraza.

RED HIDRAULICA

RED ELECTRICA

TIPO
TIPO C TIPO C T I P O C T I P O C
A

Escaleras

Escaleras

TIPO D

PLANTA NOVENO PISO

TIPO B

TIPO A

TIPO C

TIPO A

La octava y novena planta son apartamentos duplex, de los cuales se presentan 4 tipos:

TIPO A:

Una habitación, dos baños, sala comedor, cuarto de ropas y terraza.

TIPO B:

Una habitación, un baño, sala comedor, cuarto de ropas y terraza.

TIPO C:

Dos habitaciones, dos baños, sala comedor, cuarto de ropas y terraza.

TIPO D:

tres habitaciones, tres baños, sala comedor, cuarto de ropas y terraza.

RED HIDRAULICA

RED ELECTRICA

TERRAZAS

T I P O C T I P O C

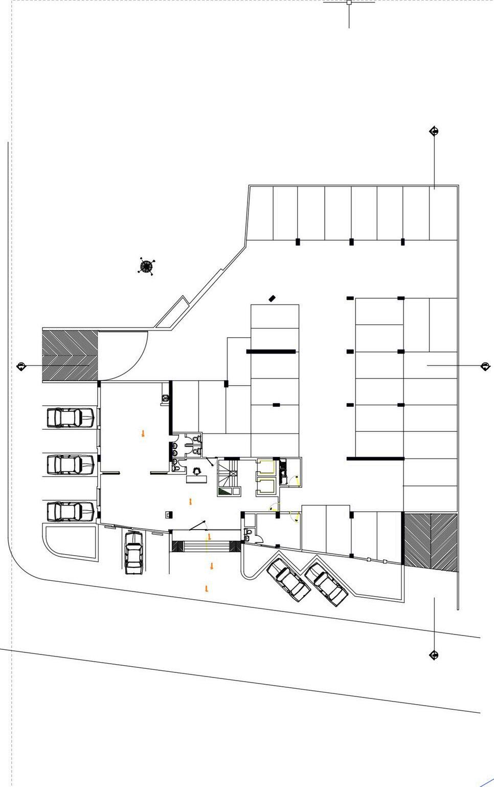
SOTANO I

El sótano 1 tiene un ingreso por medio de ascensores, escaleras o una rampa vehicular

Cuarto de basuras

Rampa

41 parqueaderos

39 depositos

1 cuarto de almacenes

2 Ascensores

Cuarto de basuras y shut sin ducto

Rampa

41 parqueaderos

39 depositos

1 cuarto de almacenes

2 Ascensores

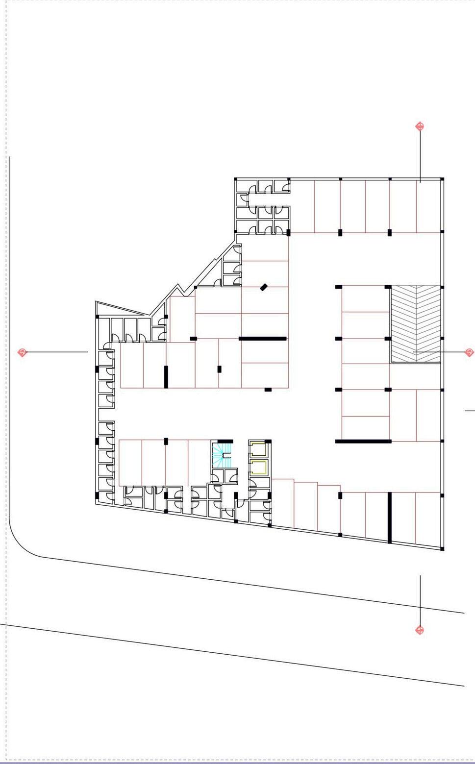
SOTANO II

En el sótano 2 contamos con:

Pozo eyector subterráneo

Tanque de agua

subterráneo

48 depósitos

38 parqueaderos

Rampa

Escalera

2 Ascensores

Cuarto de maquinas

Pozo eyector/ Hidro flo (subterraneo)

Escaleras

Rampa

41 parqueaderos

48 depositos

Tanque de agua (Subterráneo)

2 Ascensores

CUBIERTAS

En las cubiertas podemos encontrar los diferentes ductos que salen a la parte superior del edificio.

Ductos Escaleras

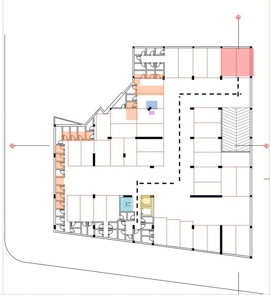
RECORRIDO CUARTO DE MAQUINAS Y CUARTO DE BASURAS

Recorrido concurrente entre los habitantes y el encargado de el cuarto de maquinas desde las escaleras hasta el cuarto de Máquinas y del mismo modo al cuarto de basuras.

Cuarto de maquinas

Pozo eyector/ Hidro flo (subterraneo)

Cuarto de basuras

PLANEAMIENTO TIPO ALAMBRE (DE

REDES SANITARIAS Y SUMINISTROS)

PLANTA TIPO

Se desarrollo el procedimiento de analizar y ubicar de acuerdo a los ductos, el ramal principal, la ventilación, soscos, codos de las instalaciones de la planta tipo.

Ramal principal y derivados

CONCLUSIONES

Entender el planeamiento estructural de un proyecto es de vital y fundamental importancia a la hora de diseñar debido a que a partir de esta planificación es posible organizar, coordinar y darle un sentido mas propio al sentido de lugar del proyecto.

En el caso específico de Bogotá, una ciudad en constante crecimiento y desarrollo, la coordinación efectiva entre los arquitectos y las autoridades

locales es crucial para garantizar que las nuevas construcciones se integren de manera armoniosa con las redes existentes, minimizando impactos ambientales y maximizando la eficiencia operativa.

CORTE 2 INSTALACIONES

HIDRAULICAS Y SANITARIAS

REDES E INSTALACIONES

PATRICIA

- PLANTAS

CORTES GENERALES CON CONEXIÓN A LA RED PÚBLICA

INTRODUCCIÓN REDES SANITARIAS- PLANTAS -Planta de Batería Escala 1:20 ..................................................................... 26 -Planta de apartamento Escala 1:50 ...................................................................... 27 -Planta tipo Escala 1:00 ...................................................................... 28 REDES HIDRÁULICAS
-Planta de Batería Escala 1:20 ..................................................................... 30 -Planta de apartamento Escala 1:50 ..................................................................... 31 -Planta tipo Escala 1:00 ...................................................................... 32 ISOMETRÍAS -Sanitarias Escala 1:20 ...................................................................... 34 -Hidráulicas Escala 1:20 ...................................................................... 35 CORTES DE DETALLE -Sanitario Escala 1:20 ....................................................................... 36 -Hidráulico Escala 1:20. ………………………………………………………...…. 37
-Sanitario Escala 1:100 ....................................................................... 39 -Hidráulico Escala 1:100 ....................................................................... 40 -Aguas lluvias Escala 1:100. ……………………………………………...……………. 41 PLANTA DE CUBIERTA ESCALA 1:50 ..................................................... 42 CONCLUSIÓNES ................................................ 43 ÍNDICE

INTRODUCCIÓN

El análisis de redes hidráulicas y sanitarias en edificios es fundamental para garantizar el funcionamiento eficiente de sus sistemas de suministro de agua y gestión de aguas residuales. En este informe, se examinará detalladamente la red hidráulica y sanitaria del edificio "Mirador del Moderno", evaluando su diseño, capacidad, integridad estructural y eficacia operativa. Este análisis proporcionará una visión comprehensiva de la infraestructura hidrosanitaria del edificio, identificando áreas de mejora y recomendaciones para optimizar su rendimiento y mantener altos estándares de calidad y seguridad.

o

REDES SANITARIAS PLANTAS

¿QUÉ SON LAS INSTALACIONES SANITARIAS?

Los sistemas de saneamiento son un conjunto de dispositivos y estructuras diseñados para manejar de forma segura el suministro de agua potable, así como la recolección, tratamiento y eliminación adecuada de aguas residuales y desechos sólidos. Son esenciales para proteger la salud pública y la higiene, previniendo enfermedades transmitidas por el agua y manteniendo un entorno limpio y seguro. Estos sistemas pueden abarcar desde tuberías y sistemas de alcantarillado hasta tanques de almacenamiento y plantas de tratamiento de aguas residuales.

ELEMENTOS FUNDAMENTALES

1.

Bajantes: Conductos verticales para transportar aguas residuales y pluviales desde pisos superiores hasta niveles inferiores en un edificio.

2.

Derivaciones: Conductos que se ramifican desde las bajantes principales para conectar desagües de diferentes áreas o pisos de un edificio.

3.

Colectores: Conductos horizontales que recogen aguas residuales y pluviales de varias derivaciones y las dirigen hacia la bajante principal o el sistema de alcantarillado.

4.

Acometidas: Conexiones que permiten la entrada de agua potable desde la red pública hacia un edificio o propiedad, equipadas con válvulas de cierre y a menudo conectadas a medidores de agua.

ELEMENTOS FUNDAMENTALES

1.

Sumideros: Puntos de recolección de agua en el suelo para evitar inundaciones.

2.

Sifones: Tubos en forma de "U" que previenen el retroceso de gases o malos olores desde los desagües.

3.

Canalones o Canales: Estructuras para recoger y dirigir el agua de lluvia desde el techo hacia un sistema de drenaje.

1.

Ventilación Primaria: Sistema básico que permite la entrada de aire fresco y la salida de gases residuales mediante tuberías que se extienden por encima del techo.

Ventilación Secundaria: Sistema adicional que utiliza ventiladores para mejorar la circulación del aire en las tuberías, especialmente útil en edificios altos o áreas con restricciones de diseño. 2.

3.

Ventilación Terciaria: Medidas adicionales, como filtros de aire o sistemas de desodorización, para mejorar aún más la calidad del aire en las instalaciones sanitarias, comúnmente utilizadas en entornos donde se requiere un alto nivel de higiene.

PLANO BATERIA- ESCALA 1:20

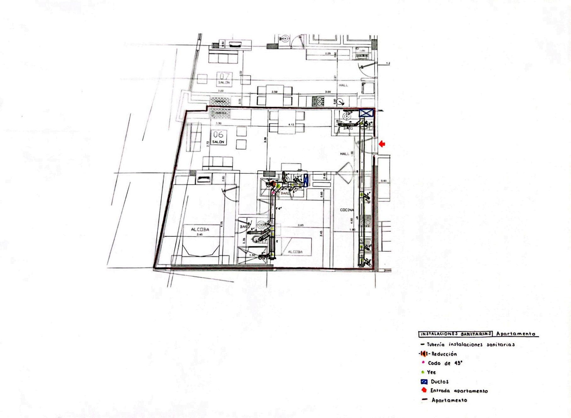
APARTAMENTO DETALLE 1:50

Apartamento a detalle de redes sanitarias en escala 1:50, en el cual se dibujaron las tuberías, con sus respectivas pulgadas, ramal, accesorios y ductos; así como este el sistema de redes se repite en todo el edificio.

ACCESORIOS:

Yee Sanitaria

Entrada Apartamento

Ductos

Delineado Tubería Sanitaria

PLANTA TIPO APTO 1:100

La planta tipo de los apartamentos por nivel; en la cual se identificaron las redes sanitarias de cada apartamento en escala 1:100 y se identificaron los siguientes accesorios:

ACCESORIOS:

Yee Sanitaria

Yee Sanitaria doble

Ductos

Delineado Tubería Sanitaria

Delineado Tubería Sanitaria

REDES HIDRÁULICAS

PLANTAS

¿QUÉ SON LAS INSTALACIONES HIDRÁULICAS?

LLas instalaciones hidráulicas son sistemas diseñados para gestionar el suministro, distribución y uso del agua. Esto incluye el diseño e instalación de tuberías, válvulas, bombas y otros dispositivos para llevar agua potable a los edificios y hogares, así como para gestionar el drenaje de aguas residuales y pluviales. Las instalaciones hidráulicas también abarcan sistemas de riego, control de inundaciones y otros aspectos relacionados con el manejo del agua en entornos urbanos, rurales e industriales. Estos sistemas son fundamentales para garantizar el acceso al agua potable, así como para el tratamiento y gestión adecuada de las aguas residuales, contribuyendo así a la salud pública y la sostenibilidad ambiental.

PLANTA TIPO APTO 1:100

Se analizaron las redes hidráulicas inicialmente de la planta tipo de los apartamentos en escala 1:100, las redes hidráulicas siempre van en un angulo de 90, y van conectadas desde un tanque de agua, medidor hasta el calentador, hasta las llaves.

ACCESORIOS:

Calentador

Tuberia agua caliente

Acceso por las escaleras

Dirección agua fría

Registros de agua

Tuberia agua frìa

Dirección agua caliente Accessories

PLANTA APARTAMENTO 1:50

Se analizaron las redes hidráulicas de el apartamento en escala 1:50 en los cuales se pudieron identificar los siguientes elementos:

ACCESORIOS:

Registro de agua

PLANTA DE BATERIA 1:50

Se analizaron las redes hidráulicas de el apartamento en materia a escala 1:50 en los cuales se pudieron identificar los siguientes elementos:

ACCESORIOS:

Registro de agua

ISOMETRÍAS

SANITARIAS ESCALA 1:20

Se busca identificar la salida de aguas grises y negras, se identifican las pulgadas de los tubos y su distribucción

ACCESORIOS:

Registros de agua

Calentador

HIDRÁULICAS ESCALA 1:20

Se busca identificar la salida y entrada de agua fría y caliente desde el calentador, se identifica en la cocina y se distribuye a las otras partes de la casa

ACCESORIOS:

Calentador

Registros de agua

a

CORTES DE DETALLE

SANITARIO ESCALA 1:20

Se identificaron las salidas sanitarias desde un corte del apartamento, donde se pueden visualizar espacios como la cocina, y el baño

ACCESORIOS:

Sifón 180'

HIDRÁULICO

ESCALA 1:20

Se identificaron las bajantes de las redes hidráulicas, por medio de un corte mas a detalle del apartamento, vizualizando la cocina y un baño

Agua fria Bajante

Agua caliente

CORTES GENERALES CON CONEXIÓN A RED PUBLICA

SANITARIO ESCALA 1:100

Por medio de un corte del edificio podemos identificar la manera decienden las aguas negras/grises por medio de los ductos, hasta llegar a la acometida y finalmente al sumidero

Ducto de ventilación

Colectores

Derivaciones

HIDRÁULICO

ESCALA 1:100

Por medio de un corte del edificio podemos identificar la manera en la que el agua se distribuye desde el tanque de agua y es bombeada por un pozo eyector hacia el edificio, se identificaron:

Circulación agua desde el tanque

AGUAS LLUVIAS ESCALA 1:100

Se estudió el sistema de recolección de aguas lluvias del edificio , el cual inicia en las cubiertas hasta finalizar en la utilización de esta agua para riego de jardines.

Recorrido aguas lluvias

Sumideros y Sifones

CUBIERTA

Desde las cubiertas es posible la bajada de aguas lluvias, salida de gases por los ductos de ventilación, los cuales tienen que estar bien acomodados según estrictas especificaciones.

SE IDENTIFICÓ :

Sifones

Pendientes

Ductos

Claraboyas

CORTE 3 INSTALACIONES

ELÉCTRICAS, DE GAS Y

ESPECIALES

REDES E INSTALACIONES

PATRICIA

ÍNDICE

REDES ELÉCTRICAS

PLANTAS

-Planta de Batería Escala 1:25

-Planta de apartamento Escala 1:50 CORTES

-Corte instalación eléctrica 1:100

-Corte instalación especial Escala 1:100

REDES DE GAS

PLANTAS

-Planta de apartamento- Batería a detalle 1:25 CORTES

-Corte instalación de gas cable 1:100

-ISOMETRÍA

-Isometría bateria a detalle 1:25

REDES ESPECIALES

-Red Contra Incendios

INSTALACIONES ELÉCTRICAS

¿QUÉ SON LAS INSTALACIONES ELÉCTRICAS?

Las instalaciones eléctricas se refieren a todos los componentes, dispositivos y sistemas utilizados para distribuir y controlar la electricidad de manera segura y eficiente en un edificio, una estructura o un área determinada. Esto incluye cables, interruptores, enchufes, paneles de distribución, dispositivos de protección contra sobrecargas y cortocircuitos, así como sistemas de iluminación y aparatos eléctricos. Las instalaciones eléctricas permiten el suministro de energía eléctrica para alimentar equipos, dispositivos y sistemas eléctricos en hogares, oficinas, fábricas, hospitales, entre otros lugares, contribuyendo al funcionamiento y comodidad de la vida moderna. Es fundamental que las instalaciones eléctricas se diseñen, instalen y mantengan correctamente para garantizar la seguridad de las personas y la integridad de los equipos y las estructuras.

Generador Eléctrico:

Dispositivo que convierte energía mecánica en energía eléctrica. Puede ser impulsado por combustibles fósiles, energía hidroeléctrica, eólica u otras fuentes de energía para producir electricidad.

ELEMENTOS IMPORTANTES

Transformador: Dispositivo que se utiliza para aumentar o disminuir el voltaje de la corriente eléctrica alterna. Esto es esencial para la transmisión eficiente de energía eléctrica a través de largas distancias y para adaptar la tensión a diferentes aplicaciones.

Medidor de Luz: Dispositivo utilizado para medir el consumo de electricidad en un hogar, edificio o instalación. Registra la cantidad de electricidad utilizada en kilovatios-hora (kWh), lo que permite a los proveedores de servicios públicos calcular el costo del servicio eléctrico.

Toma Corriente: Punto de conexión en una instalación eléctrica donde se puede enchufar un aparato o dispositivo para obtener energía eléctrica. Están diseñadas para proporcionar una conexión segura y confiable entre el dispositivo y el suministro de energía. 1.

PLANTA ELÉCTRICA ESCALA 1:25

Se analizaron las instalaciones eléctricas del apartamento en escala 1:25 en los cuales se pudieron identificar los siguientes elementos: Circuito 1

cuito 2

Lámpara detecho

Interruptor unipolar

Interruptor bipolar

Interruptor unipolar 2 vías

Tablero

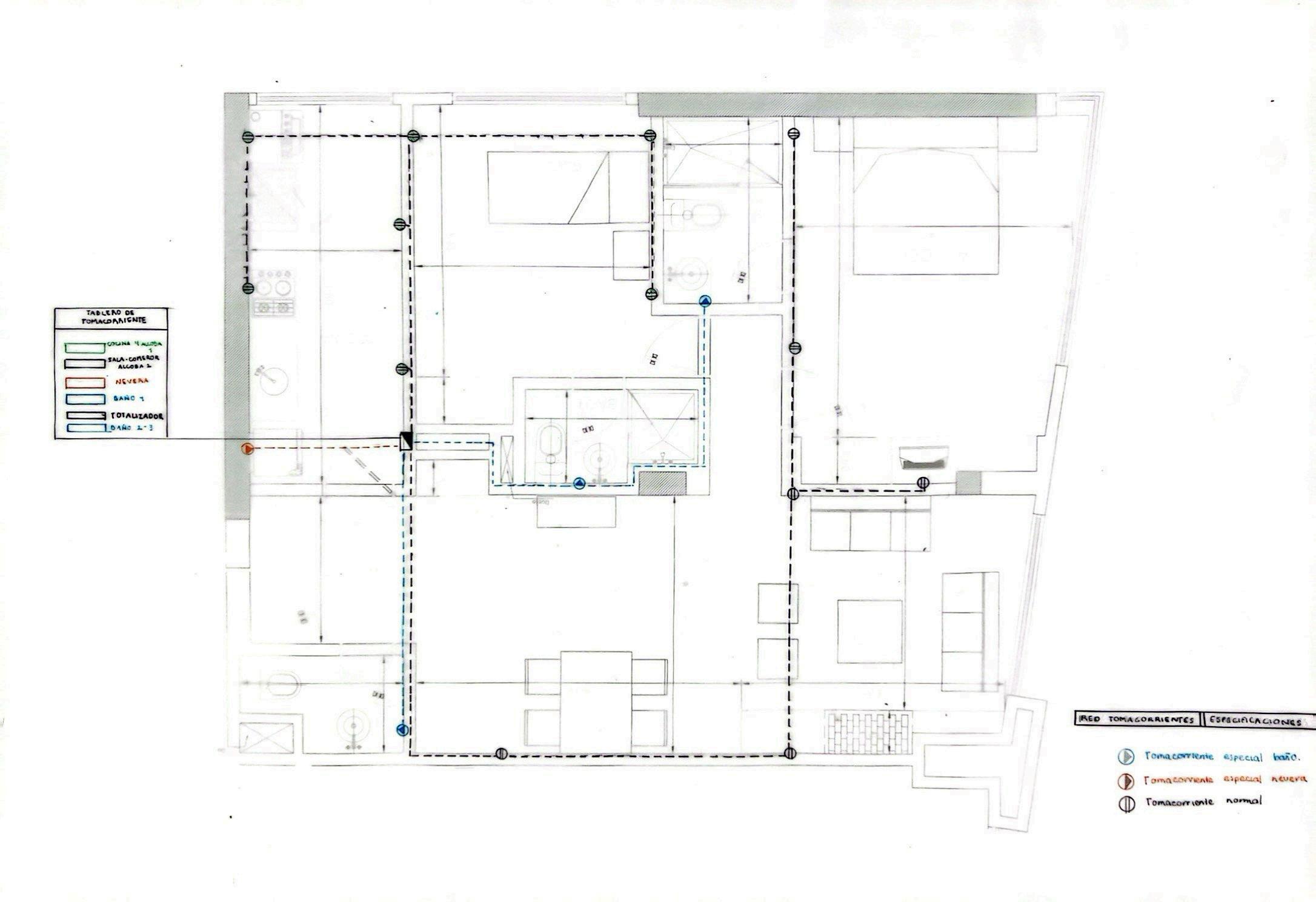
PLANTA DE TOMACORRIENTES

ESCALA 1:25

Se analizaron las instalaciones de tomacorrientes, pudiendo identificar 2 circuitos y 3 instalaciones especiales.

CORTE ELÉCTRICO ESCALA 1:100

el sistema eléctrico del cual inicia en la red a, sigue a la caja, nte hasta la subestación a, los contadores y e distribuye hasta cada partamento

Circuito 1

Circuito 2

INSTALACIONES GAS

¿QUÉ SON LAS INSTALACIONES DE GAS?

Las instalaciones a gas son sistemas diseñados para utilizar gas como fuente de energía en diferentes aplicaciones, como la calefacción, la cocina, el agua caliente, entre otros usos.

Estas instalaciones incluyen componentes como tuberías de gas, reguladores de presión, válvulas de seguridad, quemadores y dispositivos de encendido, dependiendo del tipo de aplicación y el equipo específico utilizado. Es crucial

que las instalaciones a gas se diseñen, instalen y mantengan correctamente para garantizar su seguridad y eficiencia. Esto incluye cumplir con normativas y estándares de seguridad específicos para prevenir fugas de gas, incendios y otros riesgos asociados con el uso de este combustible.

COMPONENTES IMPORTANTES

CONTADOR DE GAS:

Mide la cantidad de gos que se utiliza en un hogar edificio y es responsable de medir la cantidad de gas que se consume.

VÁLVULA DE CIERRE:

Este dispositivo es importante en caso de emergencia y permite cerrar el suministro de gas en caso de una fuga o incendio.

TUBERIA DE GAS:

Son los encargados de transportar el gas desde la calle hasta el hogar o edificio .

REGULADORES DE PRESIÓN

Son necesarios para regular la presión de gas que llega a la propiedad y asegurar que se cumplan los estándares de seguridad.

COMPONENTES IMPORTANTES

DUCTOS DE EVACUACIÓN

Es un ducto preferiblemente vertical, destinado a la evacuación por tiro natural de los productos de la combustión del gas.

DUCTOS DE EVACUACIÓN

Conducto que sirve para la evacuación de los productos de combustión de un solo gaseodoméstico instalados en una o varias plantas de un mismo edificio.

COONVENCIONES EN SIMBIOLOGIAS

DE GAS

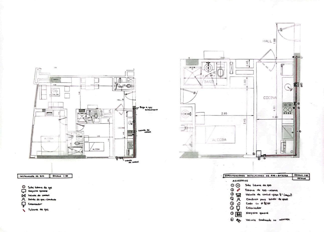
PLANTA- BATERIA INSTALACIÓN DE GAS

ESCALA 1:25

Calentador

Sube tubería

Registro grupal Valvula de control

CORTE INSTALACIÓN DE GAS ESCALA 1:100

Se estudió la instalación de gas en el edificio, el cual inicia en la red pública, sigue al regulador, posteriormente a los medidores y a la distribución por apartamentos, pasando por el calentador, válvula, al calentador y estufa

ISOMETRÍA INSTALACIÓN DE GAS

ESCALA 1:25

En la isometria se identifico a detalle la red de gas y sus respectivas especificaciones:

INSTALACIONES ESPECIALES

¿QUÉ SON LAS INSTALACIONES ESPECIALES?

Las instalaciones especiales son sistemas complejos y específicos diseñados e instalados en edificaciones para cumplir funciones particulares que no se cubren con las instalaciones básicas, tales como las eléctricas o de fontanería. Estas instalaciones incluyen sistemas de seguridad, comunicación, protección contra incendios, automatización, y otros servicios avanzados que requieren conocimientos especializados para su diseño, implementación y mantenimiento.

PLANTA- BATERIA INSTALACIÓN ESPECIAL ESCALA 1:50

Se analizaron las instalaciones especiales que recorren los pasillos del edificio, en este caso la red contra incendios

ESPECIFICACIONES:

Radiadores

Recorridos

CONCLUSIONES

.En conclusión, el análisis exhaustivo de las redes hidráulicas y sanitarias del edificio "Mirador del Moderno" ha revelado una infraestructura sólida y eficiente, fruto de un diseño cuidadoso y una gestión diligente. Se ha demostrado que la planificación y ejecución adecuadas de estos sistemas son cruciales para garantizar el suministro de agua potable y la gestión adecuada de aguas residuales en un entorno residencial. El trabajo en clase ha sido fundamental para comprender la importancia de mantener estándares elevados de calidad y seguridad en la infraestructura hidrosanitaria de los edificios, asegurando así el bienestar y la comodidad de los residentes.

Turn static files into dynamic content formats.

Create a flipbook