Diseño sin título

Page 1

INFORME EDIFICIO MIRADORDEL MODERNO

Redes e instalaciones

Nicol Alejandra Molina Piñeros Cristina Cendales
INDICE Introdución .................................................................................. 3 Geolocalización. ................................................................................. 4 Convenciones encontradas en el predio .................................................................................5 Caracteristicas generales ................................................................................ 6 Mapa red publica de alcantarillado sanitario ....................................................................... 9 Mapa red publica de cuencas de alcantarillado ....................................................................10 Mapa red de alumbrado publico de bogota............................................................................11 Plano estructural. ..................................................................................12 Planta primer piso ................................................................................ 13 Planta tipo ................................................................................. 14 Planta octavo piso ................................................................................. 15 Planta noveno piso ................................................................................. 16 Sótano I . .................................................................................17 Sótano II ............................................................................... 18 Cubierta ................................................................................ 19 Recorridos: cuarto de maquinas y de basuras........................................................................20 Planeamiento tipo alambre de redes sanitarias planta tipo................................................ 21 Conclusiones .................................................................................22

INTRODUCCION

Para hacer un respectivo estudio de las redes e instalaciones se nos pidió escoger un edificio de residencia y con plantas tipo.

El edificio escogido fue el Mirador del moderno ubicado sobre la carrera 10 con calle 74 (CALLE 74 # 10-33)

Este es un edificio residencial que cuenta con 9 pisos, de los cuales 2 son sótanos y a partir del octavo piso son apartamentos duplex.

Para hacer un buen análisis se realizaron dos aproximaciones, la primera de estas fue a partir de planos en los cuales se ubicaron todas

las convenciones visibles al interior y exterior del edificio, mientras que la segunda fue una aproximación visitando el edificio, dándonos como resultado una construcción mas clara del lugar por medio de un análisis fotográfico.

el siguiente informe manifestara el resultado al cual llegamos teniendo en cuenta el proceso mencionado anteriormente.

Edificio Mirador del Moderno

Dirección: Calle 74 # 10-33

Bellavista Chapinero

Bogotá

Distrito capital

Colombia

GEOLOCALIZACIÓN

El edificio esta ubicado en una manzana residencial, imitando:

Haciaeloeste: por la derecha desde la calle 74 con el edificio residencial Lexington,

Haciaeleste: por la izquierda y después de la carrera

10 con el edificio Cauca;

Haciaelsur: sobre la carrera 10 y posterior a este limita con el edificio El Dorado

Haciaelnorte: tiene un frente al colegio Gimnasio Moderno de Bogota.

Colegio

Gimnasio

Moderno

Ed. Cauca

Ed. Lexington

Ed.El dorado

Edificio Mirador del Moderno

OESTE
ESTE NORTE
SUR

LATITUD:

4'3g’30"

LONGITUD:

N74-63'24"W

CODENSA

CONVENCCIONESENCONTADASENELPREDIO

SE

ENCONTRARON:

2 cajas de Codensa

Acueducto y alcantarillado

ETB

Telecomunicaciones

Telefonos

Energia electrica

2 mojones

RASANTE

TELECOMUNICACIONES

CODENSA ENERGIA ELECTICA TELEFONOS ETB
ACUEDUCTO MOJONES
RASANTE
Edificio Mirador del Moderno

CARACTERISTICAS GENERALES

NUMERODEAPARTAMENTOS: 77

11 Tipo de apartamentos duplex y sencillos.

1 y 2 alcobas.

TAMAÑOS: De 40 a 134 metros cuadrados.

ESTRATO: 5

VALORMETROCUADRADO: Desde $1.750.000,00 : Edificio de siete (8) pisos, once (11) tipos de apartamentos por piso, dos (2) ascensores, zona de parqueo para visitantes, cada apartamento cuenta con su respectivo depósito, posee planta eléctrica, caldera, buena vista, tranquilidad y administración inmobiliaria.

CARACTERISTICAS GENERALES

EDIFICIOMIRADORDELMODERNO

CONTRUCTORA :Unión de Constructores “Conusa S.A.”

DIRECCIÓN PRINCIPAL : Carrera 13 No. 94 A-44 Oficina 403

TELEFONOS :2 574744 – 2 574933

DIRECCIÓN DEL PROYECTO: Calle 74 No. 10 – 33

Frente al Gimnasio Moderno.

BARRIO :La Porciúncula

INFORMEPRELIMINAR

Aspectos a analizar:

Cuartos especiales

Cuarto de maquinas

Ductos

Redes de ventilación

Redes eléctricas

Red hidraulica

Medidores de agua Pozo eyector

MAPAREDPUBLICA DE ALCANTARILLADO SANITARIO

En el mapa con la infraestructura de alcantarillado sanitario de la ciudad, encontramos que alrededor de la manzana donde esta ubicado nuetro edificio pasan las siguientes redes: Pozos

Sumideros Redlocal

Edificio Mirador del Moderno

MAPAREDPUBLICA DECUENCASDE ALCANTARILLADO

Sobre las cuencas de alcantarillado que encontramos mas cercanas a nuestra manzana son las que están una manzana detrás hacia el sur, lugar donde ocurre el drenaje de agua y otras sustancias a una salida común.

Subcuenca Pluvial

Edificio Mirador del Moderno

MAPAREDDE ALUMBRADO PUBLICO

Servicio que consiste en proveer la iluminación mínima necesaria en los espacios públicos y vialidades, de forma que se garantice la seguridad de peatones y vehículos. Encontramos que el edificio cuenta con una red de alumbrado en la parte

Postes Eléctricos

Edificio Mirador del Moderno Red de alumbrado

PLANOESTRUCTURAL

columnascuadradasde60x60

proporcionan una sólida base estructural, mientras que los tres muros pantalla estratégicamente ubicados cumplen la importante función de brindar soporte a las escaleras, garantizando la estabilidad de los puntos fundamentales del edificio.

Esunedificioconestructura aporticada, Además,seintegraunacolumna circulardiseñadaespecíficamentepara servircomosoporteparalosbalconesde losapartamentos,combinando funcionalidadconunelementoestético distintivo.Sinembargo,loquerealmente resaltaenelsistemaestructuraldel edificioesladisposicióndiagonaldesus vigas.Estadisposiciónnosoloañadeun aspectovisualúnicoaldiseño,sinoque tambiéneselresultadodeuna planificaciónmeticulosaquesederivade ladistribuciónprecisaalcolocarlaplaca correspondiente.

PARQUEADEROS

PLANTAPRIMERPISO

En en primer piso se encuentra la entrada principal al edificio, lobby y recepción.

Recepción

Escaleras

Ducto shut

4 baños sin ducha

Cocineta

Sala de conductores y escoltas

Lobby

Salón comunal con cocineta

pequeña

Dos rampas

Dos ascensores

37 Parqueaderos

Escalinatas de subida y rampas

Cuarto eléctrico

Medidor de agua

Rampa 2 Rampa 1

Escaleras

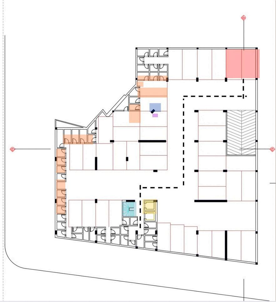
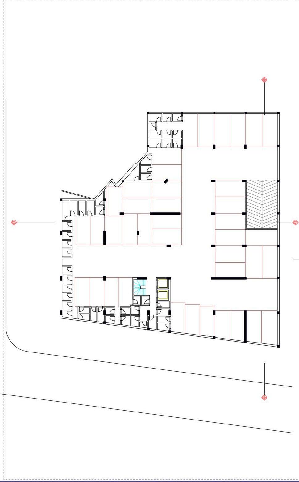
PLANTATIPO

Se ubicaron las redes según la ubicacion de los instrumentos

La planta tipo cuenta con 11 apartamentos de los cuales se presentan 4 tipos:

TIPO1:

Apartamento con 1 habitación, un baño, una sala comedor y espacio de aseo. (ÁREA:

TIPO2:

Apartamento con 1 habitación, un balcón, un baño, una sala comedor y espacio de aseo. (ÁREA:

TIPO3:

Apartamento con 1 habitación, dos baños, una sala comedor y espacio de aseo.

TIPO4:

Apartamento con 1 habitación, tres baños, una sala comedor y espacio de aseo.

RED
RED ELECTRICA
HIDRAULICA

Escaleras

Ascensor

PLANTAOCTAVOPISO

La octava y novena planta son apartamentos duplex, de los cuales se presentan 4 tipos:

TIPOA:

Una habitación, dos baños, sala comedor, cuarto de ropas y terraza.

TIPOB:

Una habitación, un baño, sala comedor, cuarto de ropas y terraza.

TIPOC:

Dos habitaciones, dos baños, sala comedor, cuarto de ropas y terraza.

TIPOD:

tres habitaciones, tres baños, sala comedor, cuarto de ropas y terraza.

RED HIDRAULICA

RED ELECTRICA

TIPOA TIPOA TIPOB TIPOD TIPOC TIPOC TIPOA TIPOC TIPOC T I P O C T I P O C

Escaleras

Escaleras

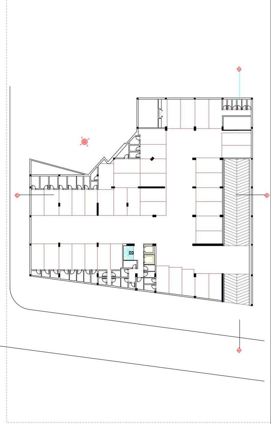
PLANTANOVENOPISO

La octava y novena planta son apartamentos duplex, de los cuales se presentan 4 tipos:

TIPOA:

Una habitación, dos baños, sala comedor, cuarto de ropas y terraza.

TIPOB:

Una habitación, un baño, sala comedor, cuarto de ropas y terraza.

TIPOC:

Dos habitaciones, dos baños, sala comedor, cuarto de ropas y terraza.

TIPOD:

tres habitaciones, tres baños, sala comedor, cuarto de ropas y terraza.

RED HIDRAULICA

RED ELECTRICA

TERRAZAS

TIPOC T I P O C T I P O C
TIPOA TIPOA TIPOB TIPOD

SOTANOI

El sótano 1 tiene un ingreso por medio de ascensores, escaleras o una rampa vehicular

Cuarto de basuras

Rampa

41 parqueaderos

39 depositos

1 cuarto de almacenes

2 Ascensores

Cuartodebasurasyshutsinducto

Rampa

41parqueaderos

39depositos

1cuartodealmacenes

2Ascensores

SOTANOII

Cuartode maquinas

Pozoeyector/ Hidroflo (subterraneo)

En el sótano 2 contamos con:

Pozo eyector subterráneo

Tanque de agua subterráneo

48 depósitos

38 parqueaderos

Rampa

Escalera

2 Ascensores

Escaleras

Rampa

41parqueaderos

48depositos

Tanquedeagua(Subterráneo)

2Ascensores

CUBIERTAS

En las cubiertas podemos encontrar los diferentes ductos que salen a la parte superior del edificio.

Ductos Escaleras

RECORRIDOCUARTODEMAQUINAS YCUARTODEBASURAS

Recorrido concurrente entre los habitantes y el encargado de el cuarto de maquinas desde las escaleras hasta el cuarto de Máquinas y del mismo modo al cuarto de basuras.

Cuartodemaquinas

Pozoeyector/ Hidroflo (subterraneo)

Cuartodebasuras

PLANEAMIENTOTIPOALAMBRE(DEREDES SANITARIASYSUMINISTROS)PLANTATIPO

Se desarrollo el procedimiento de analizar y ubicar de acuerdo a los ductos, el ramal principal, la ventilación, soscos, codos de las instalaciones de la planta tipo.

Ramalprincipalyderivados

CONCLUSIONES

Entender el planeamiento estructural de un proyecto es de vital y fundamental importancia a la hora de diseñar debido a que a partir de esta planificación es posible organizar, coordinar y darle un sentido mas propio al sentido de lugar del proyecto.

En el caso específico de Bogotá, una ciudad en constante crecimiento y desarrollo, lacoordinaciónefectiva entrelosarquitectosylasautoridadeslocales es crucial para garantizar que las nuevas construcciones se integren de manera armoniosa con las redes existentes, minimizando impactos ambientales y maximizando la eficiencia operativa.

INFORME CORTE2 INSTALACIONES

HIDRAULICASY

SANITARIAS

REDES E INSTALACIONES

PATRICIA

CORTES GENERALES CON CONEXIÓN A LA RED PÚBLICA

INTRODUCCIÓN REDES SANITARIAS- PLANTAS -Planta de Batería Escala 1:20 ...................................................................... 26 -Planta de apartamento Escala 1:50 ...................................................................... 27 -Planta tipo Escala 1:00 ...................................................................... 28 REDES HIDRÁULICAS - PLANTAS -Planta de Batería Escala 1:20 ...................................................................... 30 -Planta de apartamento Escala 1:50 ...................................................................... 31 -Planta tipo Escala 1:00 ...................................................................... 32 ISOMETRÍAS -Sanitarias Escala 1:20 ...................................................................... 34 -Hidráulicas Escala 1:20 ...................................................................... 35 CORTES DE DETALLE -Sanitario Escala 1:20 ...................................................................... 36 -Hidráulico Escala 1:20. ………………………………………………………………. 37
-Sanitario Escala 1:100 ...................................................................... 39 -Hidráulico Escala 1:100 ...................................................................... 40 -Aguas lluvias Escala 1:100. ………………………………………………………………. 41 PLANTA DE CUBIERTA ESCALA 1:50 .......................................................... 42 CONCLUSIÓNES .......................................................... 43 ÍNDICE

INTRODUCCIÓN

El análisis de redes hidráulicas y sanitarias en edificios es fundamental para garantizar el funcionamiento eficiente de sus sistemas de suministro de agua y gestión de aguas residuales. En este informe, se examinará detalladamente la red hidráulica y sanitaria del edificio "Mirador del Moderno", evaluando su diseño, capacidad, integridad estructural y eficacia operativa. Este análisis proporcionará una visión comprehensiva de la infraestructura hidrosanitaria del edificio, identificando áreas de mejora y recomendaciones para optimizar su rendimiento y mantener altos estándares de calidad y seguridad.

no

REDESSANITARIAS

PLANTAS

PLANOBATERIA-ESCALA1:20

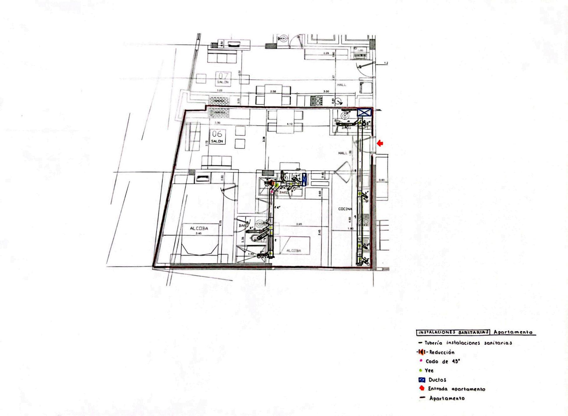
APARTAMENTODETALLE1:50

Apartamento a detalle de redes sanitarias en escala 1:50, en el cual se dibujaron las tuberías, con sus respectivas pulgadas, ramal, accesorios y ductos; así como este el sistema de redes se repite en todo el edificio.

ACCESORIOS:

Yee Sanitaria

Entrada Apartamento

Ductos

Delineado Tubería Sanitaria

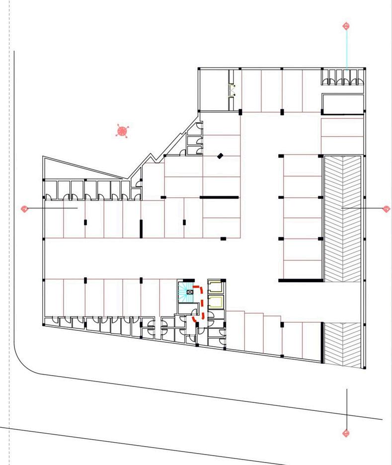
PLANTATIPOAPTO1:100

La planta tipo de los apartamentos por nivel; en la cual se identificaron las redes sanitarias de cada apartamento en escala 1:100 y se identificaron los siguientes accesorios:

ACCESORIOS:

Yee Sanitaria

Yee Sanitaria doble

Ductos

Delineado Tubería Sanitaria

Delineado Tubería Sanitaria

REDES HIDRÁULICAS PLANTAS

PLANTATIPOAPTO1:100

Se analizaron las redes hidráulicas inicialmente de la planta tipo de los apartamentos en escala 1:100, las redes hidráulicas siempre van en un angulo de 90, y van conectadas desde un tanque de agua, medidor hasta el calentador, hasta las llaves.

ACCESORIOS:

Calentador

Tuberia agua caliente

Acceso por las escaleras

Dirección agua fría

Dirección agua caliente

Registros de agua

Tuberia agua frìa

Accessories

PLANTAAPARTAMENTO1:50

Se analizaron las redes hidráulicas de el apartamento en escala 1:50 en los cuales se pudieron identificar los siguientes elementos:

ACCESORIOS:

Registro de agua

PLANTADEBATERIA1:50

Se analizaron las redes hidráulicas de el apartamento en materia a escala 1:50 en los cuales se pudieron identificar los siguientes elementos:

ACCESORIOS:

Registro de agua

ISOMETRIAS

SANITARIASESCALA1:20

Se busca identificar la salida de aguas grises y negras, se identifican las pulgadas de los tubos y su distribucción

ACCESORIOS:

Registros de agua

Calentador

HIDRÁULICASESCALA1:20

Se busca identificar la salida y entrada de agua fría y caliente desde el calentador, se identifica en la cocina y se distribuye a las otras partes de la casa

ACCESORIOS:

Calentador

Registros de agua

a

CORTESDE DETALLE

SANITARIO

ESCALA 1:20

Se identificaron las salidas sanitarias desde un corte del apartamento, donde se pueden visualizar espacios como la cocina, y el baño

ACCESORIOS:

Sifón 180'

HIDRÁULICO

ESCALA 1:20

Se identificaron las bajantes de las redes hidráulicas, por medio de un corte mas a detalle del apartamento, vizualizando la cocina y un baño

Agua fria Bajante

Agua caliente

CORTES GENERALESCON CONEXIÓNARED PUBLICA

SANITARIO ESCALA1:100

Por medio de un corte del edificio podemos identificar la manera decienden las aguas negras/grises por medio de los ductos, hasta llegar a la acometida y finalmente al sumidero

Ducto de ventilación

Colectores

Derivaciones

HIDRÁULICO ESCALA1:100

Por medio de un corte del edificio podemos identificar la manera en la que el agua se distribuye desde el tanque de agua y es bombeada por un pozo eyector hacia el edificio, se identificaron:

Circulación agua desde el tanque

AGUASLLUVIAS ESCALA1:100

Se estudió el sistema de recolección de aguas lluvias del edificio , el cual inicia en las cubiertas hasta finalizar en la utilización de esta agua para riego de jardines.

Recorrido aguas lluvias

Sumideros y Sifones

CUBIERTA

Desde las cubiertas es posible la bajada de aguas lluvias, salida de gases por los ductos de ventilación, los cuales tienen que estar bien acomodados según estrictas especificaciones.

SE IDENTIFICÓ : Sifones

Pendientes

Ductos

Claraboyas

CONCLUSIONES

.En conclusión, el análisis exhaustivo de las redes hidráulicas y sanitarias del edificio "MiradordelModerno" ha revelado una infraestructura sólida y eficiente, fruto de un diseño cuidadoso y una gestión diligente. Se ha demostrado que la planificación y ejecución adecuadas de estos sistemas son cruciales para garantizar el suministro de agua potable y la gestión adecuada de aguas residuales en un entorno residencial. El trabajo en clase ha sido fundamental para comprender la importancia de mantener estándares elevados de calidad y seguridad en la infraestructura hidrosanitaria de los edificios, asegurando así el bienestar y la comodidad de los residentes.

Turn static files into dynamic content formats.

Create a flipbook
Issuu converts static files into: digital portfolios, online yearbooks, online catalogs, digital photo albums and more. Sign up and create your flipbook.