Portfolio 2025 Alejandra

Page 1


as

education

Cornell University | Ithaca, NY aug 2020-present

Bachelor of Architecture Candidate | GPA 4.12

Double Minor in Real State and Business

Studio Work Selected for PLATE Publication| FA 20, FA 21

Dean’s Honor: FA 24, SP 24, FA 23, SP 23, FA 22, SP 22, FA 21, SP 21, FA 20

Wellesley and MIT | Wellesley, MA aug 2018-may 2020

Bachelor of Art in Architecture Candidate

Completed 80 credits in Degree of Architecture

Harvard University GSD | Cambridge, MA july 2019

Design Discovery Architecture Program Candidate

Introduction to architecture design and representation

experience

Perkins Eastman | Washigton, D.C. jun 2024- aug 2024

Architectural Intern | Living Studio

Assisted in the design of over 40 apartment layouts for a senior living building using REVIT and Enscape. Conducted site visits and participated in punch list reviews. Developed construction drawings for an electrical room using REVIT and AutoCAD.

Gensler | Chicago, IL jun 2023-aug 2023

Architectural Intern | Lifestyle 2 Studio

Worked on initial model massing and renders for a bath house using Rhino and Enscape. Worked on a city submission for a local bank, utilizing REVIT, Sketchup, and Photoshop (task included drafting elevations, sun analysis and construction details) .

Caliptra Arquitectura | Guayaquil, EC jun 2022-aug 2022

Architectural Intern

Drafted plans and sections of 10 residential projects with AutoCAD. Modeled various of these residences using SketchUp. Created a standarized catalog for windows and doors in AutoCAD.

Inmobiliaria XIMA | Guayaquil, EC may 2017- may 2018

Architectural Intern

Helped the senior architect in the design of a medical tower. Organizing fles, prepared written reports, and conducted research on zoning laws and regulations.

email

as3989@cornell.edu linked in alejandra siguenza

extracurricular

Ithaca Carbon Neutral 2030 | CUSD jan 2022- present Project Team Co-Leader

Work alongside the local goverment and different stakeholders to help existing buildings become carbon neutral by 2030. Responsable for leading the modeling and analysis of retroft options to get the most optimar energy saving and greenhouse reductions.

NOMAS Cornell Chapter jul 2022- present Student Member

Represented Cornell University at the annual NOMA Conference. Actively participate in mentorship programs. Provide and receive portfolio and resume critiques.

awards

NOMAS Student Competition 23’ | Portland, OR 1st Place

Co-Led the design for a restorative justice project in Portland. Led weekly meetings with fve subteams to ensure progress. Presented the project to jurors and NOMA attendees, integrating research, narrative, and design.

The Regeneration Collection 23’ | Leewarden, NL 1st place

Work in an interdiscplinary team to develop a fnancially viable hotel concept that repairs environmental damage. Responsible for developing a 50 acre masterplan and design the central gathering space.

The Addison Crowley Award 23’ | Ithaca NY Winner

Award for the best design in the feld of Architecture, for the project Reimagining Liberty City.

skills

Softwares

Rhino, REVIT, AutoCAD, SketchUp, Enscape, Climate Studio, Grasshopper, Adobe Creative Suite, Microsoft Ofce Suite

Languagues

English (advanced), Spanish (native), French (beginner)

alejandra siguenza

SEEDING [IN]FORMALITY

Nairobi, Kenya

Canovanas, Puerto Rico

01 | SEEDING [IN]FORMALITY

Professor Felix Heisel

Nairobi, Kenya

Fall 2024 | with Idil Derman 25’

Key Words: Urban Planning, Infrastructures, Informal Settlements

Contrinbutions: Conceptualization, Design Development, Model Making, Drafting, Massing, Visualization.

Examining the everyday urban practices in Mathare 4B, households sustain themselves through microeconomies within their homes. By introducing ‘the park’, ‘the workshop’, ‘the bridge’, and ‘the market’, and urban planning strategies, this proposal adds a new dimension to the existing social fabric. These bottom-up interdependencies are spatialized, visualized, and documented to represent the community’s social dynamics.

The proposal is structured in a phased, sustainable manner. Beginning with the development of ‘seeds,’ the focus is improving basic services while addressing insecurity spots. Attention will then shift to enhancing road infrastructure and waste management systems. Finally, the long-term objective is to secure tenure for all residents. This phased approach ensures that the most pressing needs are met frst to building a strong foundation for future growth and self-suffciency.

OWNERSHIP, IMPACT AND TRIGGERNG INDEPENDENCIES

SEEDS INTERVENTIONS

A THE WORKSHOP

B THE MARKET

C THE PARK

D THE BRIDGE

PROPOSED OPEN SPACES

SEEDS INTERVENTIONS

OPENING THE CLUSTERS

A THE WORKSHOP

B THE MARKET

OPEN SPACES

C THE PARK

PEDESTRIAN ACCESS

D THE BRIDGE

VEHICULAR ACCESS

PROPOSED OPEN SPACES

UC BERKELEY PROPOSED INFRASTRUCTURES

OPENING THE CLUSTERS

PERFORMATIVE RIPERIAN ZONE STUDY (2011)

OPEN SPACES

MATHARE RIVER

EXISTING VEHICULAR ROADS

SEEDS INTERVENTIONS

PEDESTRIAN ACCESS

A THE WORKSHOP

VEHICULAR ACCESS

PROPOSED VEHICULAR ROADS

B THE MARKET

PROPOSED PEDESTRIAN

C THE PARK

PROPOSED SEWER LINES

UC BERKELEY PROPOSED INFRASTRUCTURES

D THE BRIDGE

PERFORMATIVE RIPERIAN ZONE STUDY (2011)

PROPOSED OPEN SPACES

EXISTING CONDITION

MATHARE RIVER

HOTSPOT AREAS

EXISTING VEHICULAR ROADS

ILLEGAL DISPOSAL AREAS

SEEDS INTERVENTIONS

OPENING THE CLUSTERS

A THE WORKSHOP

PROPOSED VEHICULAR ROADS

GOVERNAMENTAL CLEARANCE (15 M)

OPEN SPACES

B THE MARKET

PROPOSED PEDESTRIAN

VEHICULAR ACCESS

C THE PARK

PEDESTRIAN ACCESS

PROPOSED SEWER LINES

PEDESTRIAN ACCESS

D THE BRIDGE

VEHICULAR ACCESS

MATHARE RIVER

EXISTING CONDITION

PROPOSED OPEN SPACES

UC BERKELEY PROPOSED INFRASTRUCTURES

HOTSPOT AREAS

ILLEGAL DISPOSAL AREAS

OPENING THE CLUSTERS

PERFORMATIVE RIPERIAN ZONE STUDY (2011)

GOVERNAMENTAL CLEARANCE (15 M)

MATHARE RIVER

OPEN SPACES

VEHICULAR ACCESS

EXISTING VEHICULAR ROADS

PEDESTRIAN ACCESS

PEDESTRIAN ACCESS

PROPOSED VEHICULAR ROADS

MATHARE RIVER

VEHICULAR ACCESS

PROPOSED PEDESTRIAN

PROPOSED SEWER LINES

UC BERKELEY PROPOSED INFRASTRUCTURES

PERFORMATIVE RIPERIAN ZONE STUDY (2011)

EXISTING CONDITION

MATHARE RIVER

HOTSPOT AREAS

EXISTING VEHICULAR ROADS

ILLEGAL DISPOSAL AREAS

GOVERNAMENTAL CLEARANCE (15 M)

PROPOSED VEHICULAR ROADS

VEHICULAR ACCESS

PROPOSED PEDESTRIAN

PEDESTRIAN ACCESS

PROPOSED SEWER LINES

MATHARE RIVER

EXISTING CONDITION

HOTSPOT AREAS

ILLEGAL DISPOSAL AREAS

GOVERNAMENTAL CLEARANCE (15 M)

VEHICULAR ACCESS

PEDESTRIAN ACCESS

MATHARE RIVER

SEEDS STRATEGIES

SEED A: HOUSING (+workforce development)

SEED B: MARKET (+clean water points)

LAND & HOUSING

Densify and upgrade housing

Maintein of existing roads

Enforce building standards

Ensure building tenure

MARKET

Design a well planned public market for county

Facilitate government investment

Allow open spaces for social interaction

Include water points

SEED C: RIPERIAN PARK (+waste management facilities)

ENV & SANITATION

Incorporate open green spaces

Designate waste collection points

Extend sewer connections

Provide sanitation mngmt facilities

SEED D: DAY/NIGHT CARE BRIDGE (+public toilets)

CHILDCARE

Add childcare facility (to reduce walk distance)

Provision of mix development (public+private)

Integrate public toilet facilities

INITIAL PROPOSAL | SKETCHES

THE WORKSHOP + HOUSING

The Workshop and Housing is designed as a hub for skill development and housing. It has a core shaft that allows for ncremental build and fexibility in workshop and housing layouts. The façade acts like an insertion, adapting to the few existing permanent structures. Financing comes from community residents, who pools funds for materials and labor, and NGO and a Mathare-based CBO offering expertise and resources. The workshop employs local residents as trainers and administrators, creating a codependency where the facility thrives on community engagement, and residents gain new skills and livelihoods. Programs focus on relevant skills like tailoring, carpentry, and ICT, promoe collaborative use of resources by doubling as a space for production and meetings.

PLAN: Tracing interdependencies generated by ‘The Workshop’

CONCEPTUAL FRAMEWORK

COLLABORATIVE MODEL

AXON: Integration of housing + workshop in urban fabric

HOUSING UNITS: Incremental build and fexible layouts

HOUSING | RENTAL

1, + 1 PPL

1BA,1 LR, + SUITE

EXTENDED HOUSING

3, + 1 PPL

2BR,1BA,1 LR, + SUITE

NUCLEAR HOUSING

3 PPL

2BR,1BA,1 LR

MODEL: Adaptation of facade to existing infrastructure

HOUSING | RENTAL

4 PPL

2BR,1BA,1 LR, +RENTAL

NUCLEAR HOUSING

7 PPL

4BR,1BA,1 LR

NUCLEAR HOUSING

4 PPL

2BR,1BA,1 LR

PERSPECTIVE: Street view, core shafts being built

NUCLEAR HOUSING

3 PPL

2BR,1BA,1 LR

EXTENDED HOUSING

5, +2 PPL

3BR,1BA,1 LR, + SUITE

THE BRIDGE

The Day and Night Care is a community-based childcare center created to support families and foster social and economic benefts. The bridge is designed within an existing pedestrian bridge and uses scaffolding for adaptability. The modular elements are used for structural support and a extension of the playground, incorporating climbing frames and interactive surfaces. Financing is a combination of community pool money and a child welfare organisation. Ownership of the facility is equally shared to balance community and external partnership governance.Additionally, it provides educational and social development benefts for children, promoting overall community growth. Members of the childcare union enjoy free childcare, while non-members pay a nominal fee that contributes to upkeep and salaries.

PLAN: Tracing interdependencies generated by ‘The Bridge’

CONCEPTUAL FRAMEWORK

COLLABORATIVE MODEL

AXON: Structure built on existing bridge

PERSPECTIVE: Interior Playground using scaffold system

SECOND FLOOR PLAN

PERSPECTIVE: Childcare at a key transit point for convinient handover

GROUND FLOOR PLAN

Alejandra Siguenza

THE PARK

Designed as a landscape strategy, the park mitigates foods and foster environmental protection through gabion walls and bioswales. It integrates community-driven farming and composting as key components for resiliency. Financing would be secured through a government-community partnership, where land and initial funding come from government grants and environmental NGOs, supplemented by small contributions from residents. A cooperative model allows residents to manage operations and hold equity, while a public-private partnership leases land from the government. The park creates employment opportunities at the local level, through construction, land care, composting, and maintenance Beyond its socio-economic benefts, the Riparian Seed is a survival strategy that engages residents with composting instead of waste disposal.

SECTION | PERSPECTIVE: Featuring farming, gabion walls and bioswale for food mitigation

AXON: Structure follows farming terracing

PLAN: Tracing interdependencies generated by ‘The Park

CONCEPTUAL FRAMEWORK

COLLABORATIVE MODEL

THE MARKET

The market fosters cross-collaboration among Mathare 4B and adjacent villages by allowing small businesses and craftsmen to set up shop and sell their products. A harvesting rainwater system, made with large shading structures, adds to environmental and social benefts of the community. A local developer fnances and builds these shading structures and water collection systems, defning the extent of the marketplace. Members of the cooperative own the individual stall, while non-members may pay a nominal rent. This ‘seed’ uses a BuiltOperate-Transfer model. Initially, the ownership is shared between the investor and community cooperative, and after recouping costs through rental income over a specifed period, ownership is transferred completely to the community cooperative.

PERSPECTIVE: Shading structures and water collection points

AXON: Structures defned by urban conditions

PLAN: Tracing interdependencies generated by ‘The Market’

CONCEPTUAL FRAMEWORK

COLLABORATIVE MODEL

02 | INVERTING THE DINNING EXPERIENCE

Professor Martin Miller Rome, Italy

Spring 2024 | with Valetnina Sanz 25’ and Omar Leon 25”

Key Words: Culinary Experience, Inverted Relationships, Rythm

Contributions: Conceptualization, Design Development, Massing and Visualizations

The project challenges the conventional food service model by introducing unexpected movement, as guests have to physically progress toward each course and constantly change their companions. The very act of moving through the space transforms the experience from a static meal into an evolving, interactive journey. After each course, diners are led into a transitional ‘cleansing’ area. These spaces act as pauses along the journey, turning each transition into a moment of anticipation.

Each dining room is thoughtfully designed to refect the essence and character of the course being served, with architectural elements and atmospheric qualities that are specifcally tailored to complement and enhance the food being served This fusion produces an immersive, multi-layered dining experience where the boundaries between food, space, and human interaction blur, offering an unexpected journey that transcends the traditional notion of dining.

OUTCOME: Rhythmic Development of Geometries

INITIAL CONCEPT: Orchestrating a procession
PLANS AND SECTION: highlighting geometries and procession

TRANSITORI (A): Transitory spaces

Use of arches to frame the progression between dinning rooms while reinforcing the rhythmic movement of the overall experience

UNROLLED SECTION: demonstrates the orchestrated procession across the dining experience

PORTARE (B):

Each course is shaped transition from intimate

Dinning Areas PULIZIA (C): Cleasing Spaces

shaped by distinct atmospheres that intimate enclosures to expansive spaces.

Cleasing passages where diners pause before continuing the dinning experience. A space of renewal.

Alejandra Siguenza

ATMOSPHERIC QUALITIES ACROSS THE GASTRONOMIC JOURNEY

APERITIVI: Focaccia with Tomatoes | Foccacia Grilled Artichoke
PRIMI PIATTI: Tagliatelle alla Amatriciana | Cacio e Pepe Tagliatelle
Alejandra Siguenza Portfolio
Cornell
SECONDI PIATTI: Veal in Tuna Sauce | Aqua Pazza
PULIZIA: Wine and Antipasti
Alejandra Siguenza

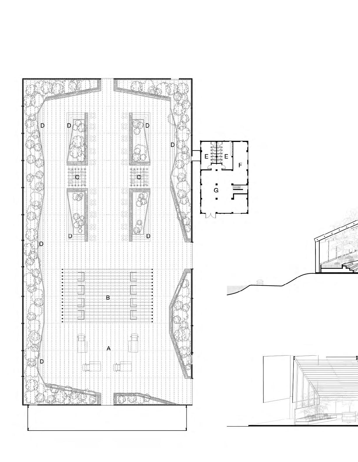
03 | HOTEL ATABEY

Professor Lisa Chervinsky

The Regeneration Collection Competition | 1st place

Spring 2023 | Architectural Leader, working with Emme Wong 24’

Key Words: Eco-Lodge, Community Center, Adaptive Reuse, Masterplan

Contributions: Conceptualization, Design Development, Site Planning, Massing, Drafting, Presenter.

The process began with a site visit and socio-environmental analysis, addressing challenges like its foodplain location, historical preservation requirements, and large size of the site. The project had to meet regulations set by FEMA and the Canóvanas municipality planning department which prohibited new construction and requiring facade preservation.

Hotel Atabey redefnes hospitality by embracing nature and history, transforming a site marked by slavery and abandonment into a sanctuary. Rooted in the Taíno concept of “Atabey,” the design recontextualizes the Old Canóvanas Sugar Mill through adaptive reuse and environmental stewardship. The design includes a 48,0000 sqft pavillion, 40 movable ‘casitas,’ restaurants, and agricultural plots. With hiking trails and a zipline, the hotel fosters ecological resurgence and unites people, nourishing both the land and its visitors.

MASTER PLAN: Hotel Atabey with central marketplace, room units, art center, microplots, etc.

Site Legend

Micro Plots

La Central

Roaming Nests

Nature Reserve

Art installations

Meditation Deck

Zipline Station

Refreshment Station

Seating

Parking

ADAPTIVE REUSE

Using adaptive-reuse to preserve the industrial past while allowing nature to reclaim its space. By repurposing existing structures rather than building new ones, the design reduces environmental impact while reimagining historical elements into a functional, sustainable framework.

EXISTING CONDITION

i. Abandoned House

REPURPOSED SPACES

EXTERIOR COLLAGE: Entering the Casitas Enclave

iii. Repurposed Spa Pods
i. Open-Air Meditation Spaces
ii. Scultuptural Plaza and Artist Residency
ii. Pavillion and Adjacent Structure
iii. Drying Compartments
Alejandra

LAS CASITAS

The design of the Casitas respects the landscape, blending transparency and local wood with hurricane-resistant geometry inspired by traditional Taíno structures. Their A-frame and gable forms serve both structural and functional purposes, incorporating fexible furniture, upcycled materials, and semi-permeable partitions to create a compact yet adaptable living spacea. Designed for mobility, the Casitas can be relocated in response to extreme weather, with storage available in an outsourced warehouse. At the end of their life at Hotel Atabey, they are repurposed as a residential unit for community members in need, reinforcing the project’s commitment to sustainability and social impact.

ROOM TYPE I: Floor Plan and Sections

Cross Section
Longitudal Section

INTERIOR RENDER: Use of Natural Materials

LA CENTRAL

La Central is a 48,000 sqft marketplace pavilion designed as a social hub where locals, visitors, and artisans come together to celebrate Puerto Rican culture. The open, fexible space fosters community interaction with areas for dining, entertainment, and cultural exchange, surrounded by native greenery and local craftsmanship. Inspired by the fuid movement of the river, planters seamlessly follow its geometry, weaving through the space to create a dynamic fow that enhances the natural ambiance and provides shaded pockets for gathering and relaxation.

A. Nomadic Nourishment

B. Market Canopy

C. Refection Nest

D. Gathering Alcoves

E. Restrooms

F. Workshop

G. Gallery

H. Storage

Seating Spaces

INTERIOR PERSPECTIVE: View of La Central: Market Hub for Local Vendors and Cultural Events

04 | RECLAIMING ALBINA’S LEGACY

Carving as a Catalyst for Healing

Professor Imani Day and Suzanne Lettieri

2023 NOMAS Barbara G. Laurie Design Competition | 1st Place

Fall 2023 | Co-Leader and presenter in behalf of the NOMAS Cornell Chapter

Key Words: Social Housing, Community Uplifting

Contributions: Conceptualization, Design Development, Massing, Drafting, Team Managment and Presenter.

The project seeks to heal Albina’s fractured history by weaving a new tapestry into the landscape, reclaiming the Hill Block as a community anchor. Once a thriving commercial and cultural hub, the site was deeply affected by urban renewal policies. In response, the design reintroduces communal spaces that serve as architectural representations of fragmented memories and demolished heritage, ensuring that the cultural essence of the displaced community remains visible. By integrating history, ecology, and social infrastructure, the project fosters a renewed sense of belonging, transforming loss into an opportunity for collective healing.

Five healing pillars shape the project, embedding medical health, urban agriculture, community activation, resilient systems and commerical intergration. Tthese interconnected elements create a regenerative framework that acknowledges past injustices while empowers the current Albina community.

SITE STRATEGY

The design draws from historical lot lines and erased typologies, shaping topography while reintroducing lost spatial forms. This approach acknowledges erased history while creating continuity within the evolving landscape.

RECONSTRUCTED HOUSING

INMACULATE HEART CHURCH

HILL BLOCK BUSINESS DISTRICT

HISTORICAL HOUSING

i. Taking Existing Site Condition

ii. Underlaying Historical Lot Lines

iii. Creating a Topography and Generating Form

iv. Carving Smaller Erased Typologies

FIVE HEALING PILLARS

The project is built upon fve healing pillars that shape its central concept: medical care, communal space activation, home and retail connection, healthy living, and sustainable rainwater collection.

Medical Care

Communal Space Activation

Home and Retail Connection

Healthy Living Rain Water Collection

: Retail and Community Spaces Activated at Ground Level

PHYSICAL MODEL: Highlighting the Green Roof ‘Topography’

DIAGRAM: Showing Square Footage of Required Program

Alejandra Siguenza

PETERSON (18 year old)

Olivia is a curious high school student who loves gardening. Her green thumb was nurtured by her beloved grandpa, who taught her the secrets of gardening, from planting delicate seeds to tending to the full-bloomed fowers on the roof of her unit

DR. SARAH CRISLIP (72 year old)

Dr Sarah works at the Legacy Emanuel Hospital of the history, she seeks to heal the relationship covid testing stalls, and seasonal vaccination

SITE SECTION: Showing Relationship between Housing Complex and Adjencies (vibrancy, scale)

Hospital who runs the community health clinic. Aware relationship with the community by organizing blood drive, vaccination booths.

CARLOS AND LORETTA GUZMAN (43, 44 year old)

Carlos and Maria are a couple who own a coffee shop in one of the retail spaces. With a passion for crafting the perfect brew and a commitment to sourcing locally, their cafe has become a thriving hub, not only for caffeine lovers but also for boosting economic growth in their town.

Alejandra

ABOUT ME

Hey there! My name is Alejandra an architecture student pursuing Cornell University. My journey exactly linear. I started at Wellesley had the opportunity to take architectural I also had the chance to cross-register immersed myself in spatial and I even experimented interactivity into my designs. to Cornell to fully embrace my and it’s been an exciting ride I’ve come to understand that designing buildings but about and fostering connections

This journey has deepened architecture’s role in enhancing people, and driving positive beyond a profession, it’s a communities. Whether through spatial storytelling, or techniques, I am dedicated foster meaningful dialogue. the boundaries of traditional immersive storytelling to is perceived and experienced. transformative design has on experiences in my last Perkins Eastman and Gensler.

Alejandra Siguenza and I am pursuing a B.Arch degree at journey into architecture wasn’t Wellesley College, where I architectural history courses. cross-register at MIT and spatial projects and exhibitions, with electronics to bring designs. Eventually, I transferred my passion for architecture, ride ever since. Along the way, that architecture is not about about shaping experiences deepened my understanding of enhancing spaces, connecting positive change. I see design medium for empowering through urban interventions, innovative representation dedicated to designing spaces that dialogue. My work often pushes traditional representation, using challenge how architecture experienced. This passion for driven me to seek handstwo summer internships at Gensler.

These professional experiences have strengthened my technical skills and deepened my understanding of architecture’s role in shaping society. Community engagement is a fundamental part of my approach to design. Most recently, I had the incredible opportunity to travel to Kenya and visit Mathare 4B, an informal settlement in Nairobi as part of my fall studio. Engaging with residents and understanding their everyday urban practices reinforced my belief that architecture should be deeply rooted in the people it serves. Similarly, my work has taken me to Puerto Rico, where I collaborated with planners and community leaders to develop a fnancially viable, regenerative hotel concept seeking to repair environmental damage.

When I’m not working on design projects at Milstein, you’ll probably fnd me cooking (and inevitably making a mess), searching for new recipes from around the world, or sketching whatever comes into my mind. I love traveling and immersing myself in different cultures, whether exploring their local supermarket or taking aimless walks (because getting slightly lost is the best way to discover a city, in my opinion). I also have a habit of searching the weirdest topics and falling deep into rabbit holes about conspiracy theories. If you’re still reading this, I am very impressed. To be honest, I kept writing because I was trying to fll up the space and make my layout look good, but hey, thanks for taking your time and read.

VISUAL STORYTELLING

OVERLAPPING SPACES

ARCH 4101 Studio Fall 2023 | Prof. Florian Idenburg

Axonometric drawing that uses an overlapping design strategy for programmatic invention and multigenerational interaction, fostering social cohesion and community engagement.

REIMAGINING LIBERTY CITY

ARCH 3102 Studio Spring 2023 with Omar Leon

Hand-made textile on the duality of domestic both the established rituals and the common

domestic life at Liberty City, Miami. It highlightings imaginary taking place at the porch.

VAULTED NARRATIVES

ARCH 2102 Studio Spring 2022 | Prof. Katharina Kral

Exterior perspective of a dynamic composition of brick vaults. The design geometry encourages connection between interior and exterior spaces

Leon 24’ | Prof. Sydney Maubert
Alejandra

TECHNICAL SKILLS

DAYLIGHT ANALYSIS

ARCH 2616 | Spring 2022 | Prof. Timur Dogan

USEFUL DAYLIGHT AUTONOMY

33.7% of the rooms receive more than 300 lux

Offces and computer spaces don’t receive enough lighting, needs to be addresed.

ANNUAL GLARE

14.7% of the bldg receive disturbing glare

Expected result but goal is to try and lower while getting more light into rooms.

PLUMBING, ELECTRICAL &

ARCH 3102 Architecture Studio | Spring 2023

PLUMBING

Residential Kitchen and Bathroom

Commercial Laundromat

ELECTRICAL

STRUCTURAL

6”x8” Wood Purlins and Rafters

STRUCTURAL

2023 | Prof. Sydney Maubert

Plumbing Axonometric

CONSTRUCTION DETAILS

ARCH 2102 Integrative Design Studio| Spring 2022 | Prof. Katharina Kral

Alejandra
Concrete Walls with Stucco Finish

BEYOND THE CLASSROOM

MATHARE 4B INFORMAL SETTLEMENT VISIT

ARCH 5101 Studio Fall 2024 | Nairobi, Kenya

In collaboration with Slum Dewellers International. Week long opportunity to talk with the residents, visit their houses and participate in design charades with them. Meet with local stakeholders and UN-Habitat Kenya.

BARBARA G. LAURIE 2023 STUDENT

NOMAS Cornell Fall 2023 | Portland, OR.

Co-Lead the project and presented the fnal Portland Conference. Competed against 38 architecture

STUDENT COMPETITION

proposal in front of a jury at the 2023 NOMA architecture schools across the United States.

REGENERATION COLLECTION COMPETITION

Hospitality Competition Spring 2023 | Netherlands and Puerto Rico

Architectural designer in a multidisciplinary team developing a fnancially viable regenerative hotel. Engaged with municipality planners and local organizations in Puerto Rico. Presented the fnal proposal at NHL Stenden in the Netherlands.

Alejandra Siguenza

as

architectural design

Turn static files into dynamic content formats.

Create a flipbook
Issuu converts static files into: digital portfolios, online yearbooks, online catalogs, digital photo albums and more. Sign up and create your flipbook.