Portafolio+cv_Alexsandra Becerra

Page 1


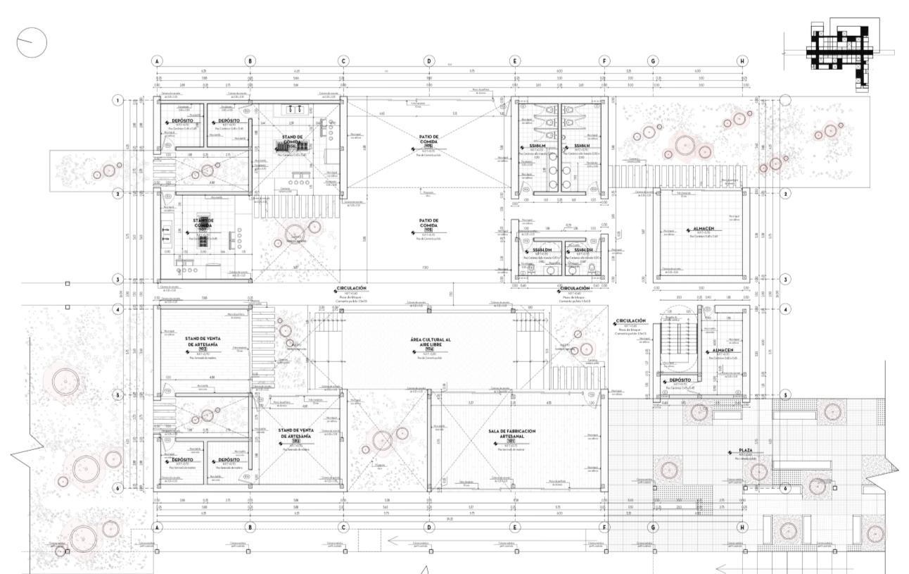
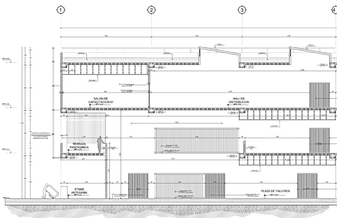
El proyecto se concibe con el fin ayudar al mejoramiento de la situación actual de Mochumí para asistir al déficit de equipamientos y espacios públicos, además de difundir sus principales actividades como parte de la cultura que identifica este distrito Asimismo, se detecta 4 usuarios principales : agricultores, turistas, investigadores y pobladores locales, los mismos que se toman como punto de partida para el diseño del programa, potenciando tres actividades perennes que se desarrollaran en espacios de investigación, producción y comercio de especies agrícolas .

EXTRATEGIAS DE APROXIMACIÓN

Conecta con los almacenes para una rápida salida del vehículo de carga

Vía importante que conecta otros distritos y sirve como acceso principal al proyecto

Aproximación directa al espacio por medio de la circulación principal

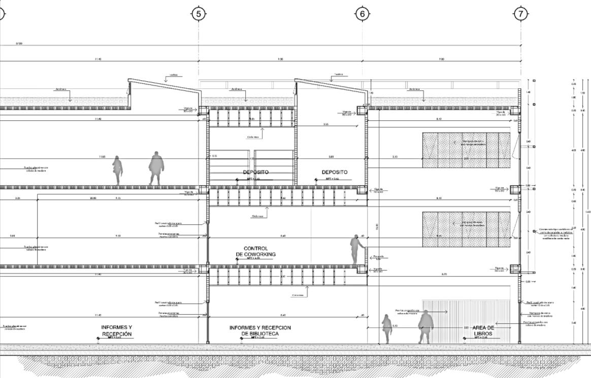
EXTRATEGIAS BIOCLIMATICAS

Se genera patios para ventilar y se ubica espacios importantes donde hay menor incidencia solar

La disposición volumétrica permite amortiguar los vientos predominantes

EDIFICIO HIBRIDO

Mochumi - Lambayeque

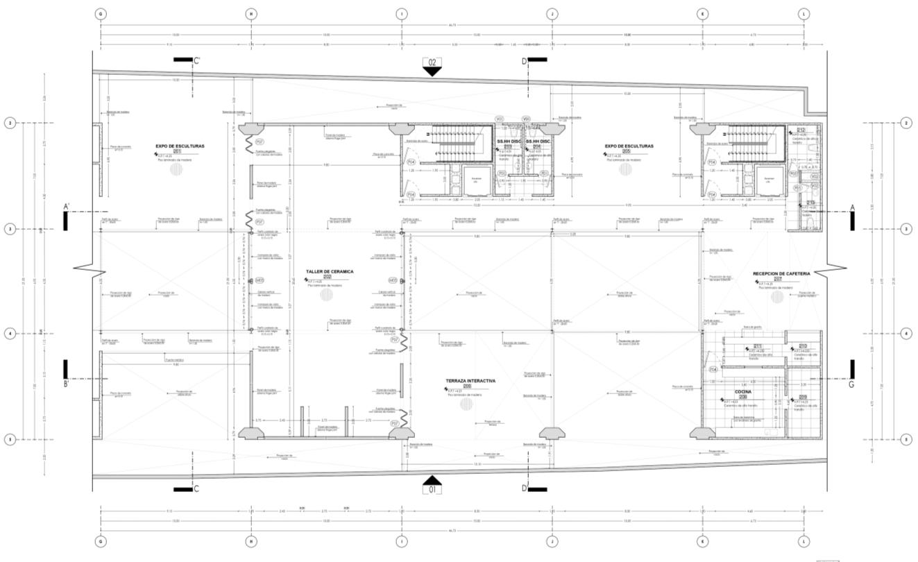
DESARROLLO BLOQUE 01 PRIMER NIVEL

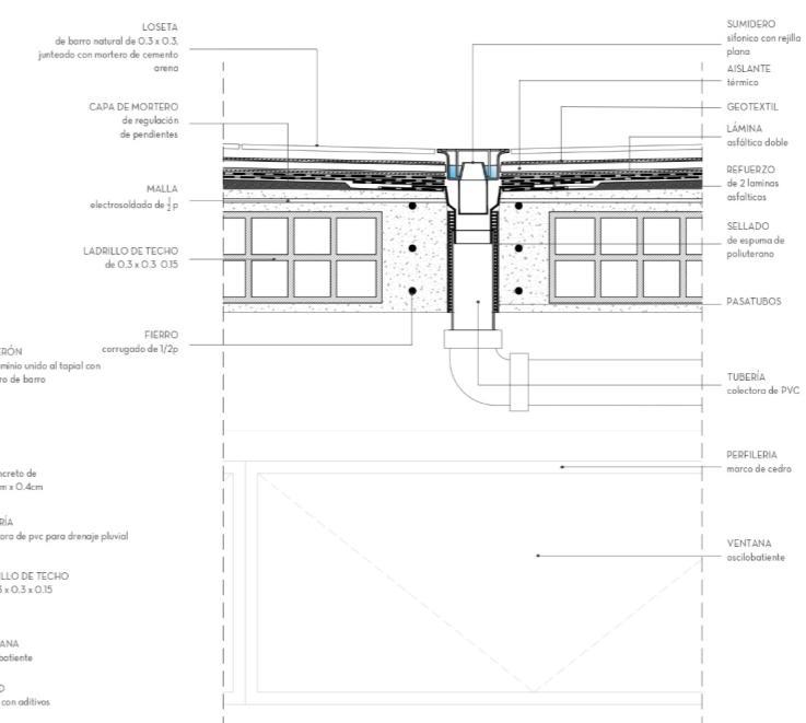
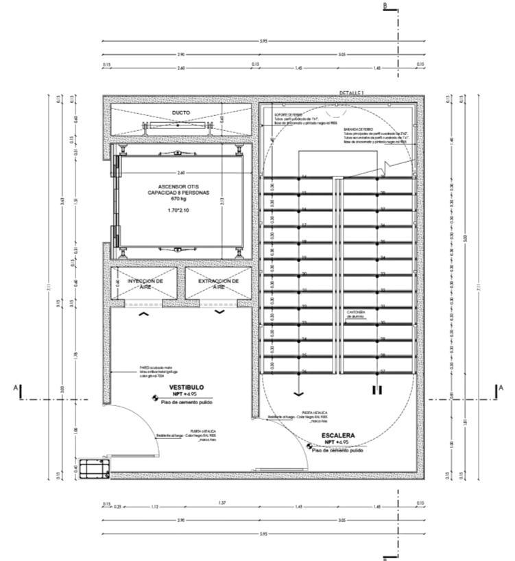
DETALLE DE SUMIDERO

DETALLE DE VENTANA OSCILOBATIENTE

DESARROLLO BLOQUE 01 SEGUNDO NIVEL

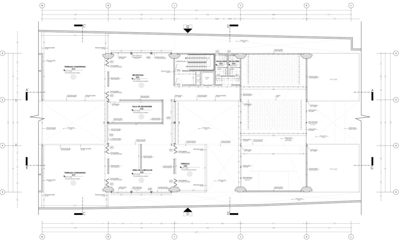
El proyecto desarrollado es la REHABILITACIÓN del “Ex Cine Tropical” ubicado en el Casco Histórico de Chiclayo, este forma parte de toda una red de espacios públicos que han sido atmosferas cobijadoras de una serie de actividades sociales y culturales desde su concepción hasta la actualidad, siendo este un punto con un alto valor histórico para la ciudad

De este modo, se toma ese concepto como instrumento para conservar su historia, preservar su memoria y mantener el impacto de su exterior en relación a su entorno

EX CINE TROPLICAL

Sector a desarrollar

DESARROLLO PRIMER NIVEL SECTOR

DESARROLLO SEGUNDO NIVEL SECTOR

Chiclayo - Lambayeque

DESARROLLO TERCER NIVEL SECTOR

DESARROLLO CUARTO NIVEL SECTOR

Se busca ceder el 1er nivel, como espacio integrador entre el edifico y el espacio público, implementando actividades socioculturales.

Se complementan actividades que funcionen durante todo el día, con el objetico de hacer al sector seguro, durante las 24 horas

ELEVACION 01
CORTE A-A
CORTE B-B
ELEVACION 02

ENCARGO

El proyecto se concibe con el fin ayudar al mejoramiento y la dotación de equipamiento actual del distrito de Ferreñafe

De este modo se propone una unidad hospitalaria I-2 para poder cubrir la demanda de los usuarios De este modo, se toma de manera individual el desarrollo de la UPSS de consultas

Esta se encuentra continua al ingreso debido a la gran afluencia de usuarios que recibe Además, cuenta con salida hacia la vía principal debido al ingreso diferenciado de los consultorios aislados

UPSS CONSULTAS

Ferreñafe - Lambayeque

Detalle 01 Mampara

Detalle 02 Ventana

Detalle 03 Revestimiento wpc

Detalle 04 Jardinera

CORTE
CORTE C-C
CORTE B-B
CORTE A-A

ENCARGO

El proyecto se concibe con el fin ayudar al mejoramiento de la situación actual de Puerto Eten

De este modo contribuir a mejorar el déficit de equipamientos y espacios públicos, además de difundir sus principales actividades como parte de la cultura que identifica este distrito

Asimismo, se detecta 5 usuarios principales: Pescadores, turistas, investigadores, pobladores locales y comerciantes los mismos que se toman como punto de partida para el programa

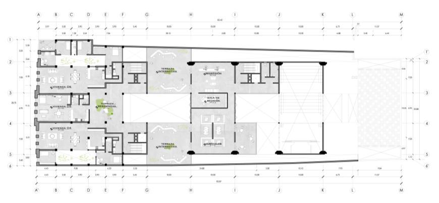
EDIFICIO COMUNITARIO

Puerto Eten - Lambayeque

ELEVACION FRONTAL

CORTE TRANSVERSAL

CORTE

Detalle de circulación Planta primer nivel
Detalle de circulación Planta segundo nivel - típica
ALEXSANDRA
BECERRA HURTADO DE MENDOZA

+51 979804011

FORMACIÓN

AlexsandraBecerra

ARQUITECTA

Arquitecta apasionada por los procesos de diseño innovadores Me considero una persona alegre, creativa y responsable, con buen trato hacia las personas haciendo fácil un trabajo en equipo. Organizada y dedicada procuro siempre cumplir con mis objetivos a corto y largo plazo tratando siempre de influenciar de manera positiva en mi entorno cercano.

alebh8@hotmailcom

UNIVERISAD TECNOLOGICA DEL PERU

Facultad de Arquitectura y Urbanismo

REDDY ACADEMY

Modelado BIM en Edificaciones

EXPERIENCIA

MEGLIO - EUROESTILO SAC

Analista de Oficina Tecnica

IDIOMAS

PROGRAMAS

Calle Las Garzas Sur 173, Surquillo

MAYO 2024-ACTUALIDAD

-Soporte y asesoría técnica a los diferentes departamentos de la empresa, ayudando a resolver problemas técnicos o a mejorar procesos y procedimientos

-Ayuda en la estimación de costos, optimización de recursos y control de presupuestos dentro de los proyectos, asegurando que los costos no se desvíen demasiado de lo previsto.

Asistente de Instalaciones

-Apoyo en la supervicion asegurando la calidad en la ejecución de los trabajos de acabados

-Verificar los acabados para detectar defectos y corregirlos antes de la entrega

-Registro y documentacion tecnica de las instalaciones realizadas

GRID STUDIO

Docente

MAYO 2022-ACTUALIDAD

-Apoyo en el área académica con el curso Photoshop + Diagramación de paneles

-Apoyo en el área académica con el curso AutoCAD 2D

-Seguimiento y asesoramientos de los alumnos semanalmente

-Apoyo en el área académica con el curso Skp USER + Vray/Skp0 + Endscape

LIFE ARQUITECTOS SAC

Practicante pre profesional

-Diseño interior residencial

-Planimetría, 3D y renderización

INGENIERÍA VERDE SAC

Practicante pre profesional

ENERO 2023-ABRIL 2023

ENERO 2022-ABRIL 2022

-Croquis, modelos 3D y renders de los proyectos arquitectónicos Utilizando softwares especializados como AutoCAD, Revit, SketchUp, entre otros

-Apoyo en la elaboración de documentación técnica, informes y presentaciones para clientes, así como en la gestion de trámites de permisos y licencias

Castellano│Nativo

Inglés│Intermedio

Turn static files into dynamic content formats.

Create a flipbook
Issuu converts static files into: digital portfolios, online yearbooks, online catalogs, digital photo albums and more. Sign up and create your flipbook.
Portafolio+cv_Alexsandra Becerra by Alexsandra Becerra - Issuu