
Curated
CC6 Lighting Package Guide
Exclusively Designed for The Hills
The Hamptons, New York

![]()

Curated
CC6 Lighting Package Guide
Exclusively Designed for The Hills
The Hamptons, New York

As part of our Curated Collections experience at The Hills, we’ve designed tailored lighting packages that balance sophistication with ease. Each selection is thoughtfully chosen to complement the architecture and lifestyle of The Hills community—refined palettes, intentional fixtures, and elevated functionality that enhance every space. With Alder and Tweed, lighting becomes more than illumination; it’s the finishing touch that defines atmosphere, comfort, and long-term enjoyment in your Discovery home.
Soft, neutral tones accented with coastal blues and brushed gold finishes, while layered textures in glass and metal add depth. Each piece balances function and artistry, creating illumination that feels both timeless and considered.

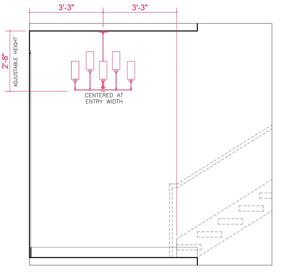
Sophisticated silhouettes paired with luxe finishes and soft, glowing shades set the perfect tone from the moment you step inside. A welcoming radiance and sense of elegance make the entry feel both polished and inviting.



Cohesive pendants seamlessly connect the kitchen and dining room, creating a unified and elevated look. A mix of refined metal finials and woven rope details introduces a touch of coastal charm, while each fixture casts a warm, inviting glow.





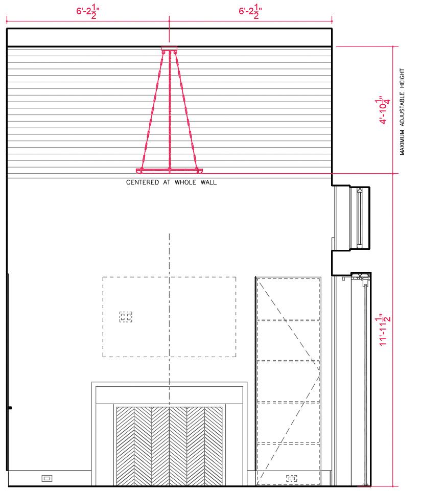
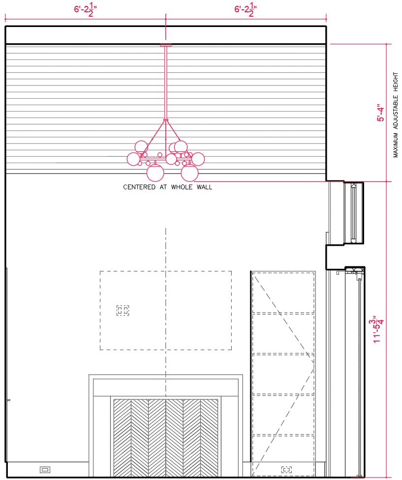
Striking large-scale fixtures elevate the living room, drawing the eye upward to showcase tall ceilings and add a layer of sophistication. Offered in two semi-flush styles with glass and metal or a longer woven chandelier, each piece creates a warm, inviting glow that enhances connection and comfort.




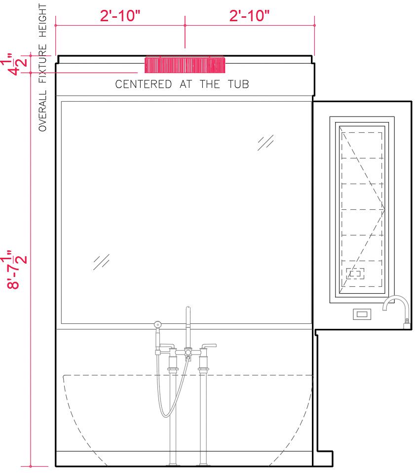
Chic, understated fixtures or richly textured designs—two stunning options that bring distinct character to the primary suite and bath. Whether you prefer the simplicity of sleek glass or the depth of layered textures, each piece offers a soft, elevated glow that enhances serenity and style.






A mix of tones, shapes, and textures defines the lighting for the downstairs rec room and bar, offering options that range from sleek and refined to warm and textured. Each fixture is designed to complement the space with personality and polish, adding just the right glow for entertaining and unwinding in style.





Norfolk Pendant in White Linen & Antique Brass Arteriors
Blaine Pendant in Aged Brass & Matte Dark Slate Rejuvenation
Blaine Pendant in Polished Nickel & Matte Dark Slate Rejuvenation
La Dolce Vita lighting features bold finishes and expressive silhouettes, where sculptural forms and distinctive fixtures come together in a way that feels unique, timeless, and curated. Filled with personality, the rich finishes add beauty to every space throughout the home.

Expressive silhouettes and bold finishes bring drama and vibrancy to the entry, transforming light into a statement. Sculptural forms and rich details draw the eye upward, setting a worldly, collected tone.



Striking pendants with bold finishes and expressive silhouettes bring a sense of drama to the kitchen, transforming everyday lighting into art. We love the use of contrasting textures—rope paired with leather in one option, or the mix of luxe metal and soft glass in another—each creating a vibrant, worldly aesthetic.



29.75” (Adjustable Height- 32.75”74.75”) H x 24” W


28” H x 29.25” W
Bold living room fixtures draw the eye upward, pairing playful rattan in organic silhouettes with the clean, sculptural form of a semi-flush mount offered in two finishes.




Medium Reflector SemiFlush Mount in Hand-Rubbed Antique Brass
Ronaldo Chandelier in Natural Rattan Arteriors
Whimsical silhouettes in cool finishes offer one approach to primary suite and bath lighting, while a more textured, beachinspired option brings an organic warmth.




30” H x 36” W
Fumar Asymmetrical Flush Mount in Ridged Tombac & Alabaster
Comfort 4” H x 21” W


Lighting in the downstairs bar takes on a bolder spirit with La Dolce Vita. Choose between two sleek options in brass or polished nickel, a rattan rope design that adds organic texture, or a playful shade offered in a range of vibrant colors—each bringing personality and polish to the space.









Ponce Pendant in Polished Nickel
Ponce Pendant in Hand-Rubbed Antique Brass
in Natural Kalas Abaca Rope
Oliva Pendant in Green, Light Petrol, Blue, Rose, or Red Lumens
