My Architecture Portfolio

Page 1


Amy Albert Diego Castilo. albertdiego177@gmail.com

081553159403

albertdiego177@gmail.com

albert.dc_

Lk.04 Ngunut, RT.01, RW.02 Gentengan, Ngunut, Tulungagung.

SKILL

Microsoft Word

Microsoft Excel

Microsoft Power Point

Autodesk Autocad

Autodesk Revit

Adobe Photoshop

Adobe Ilustrator

Adobe Premiere

Sketchup

Corel Draw

Enscape

Lumion

Rapidmainer (Intermediate) (Intermediate) (Intermediate) (Expert) (Intermediate) (Intermediate) (Beginner) (Beginner) (Expert) (Expert) (Expert) (Beginner) (Beginner)

SOFTSKILL

Leadership

Multi Tasking

Team Building

Hard Working Public Speaking

AMY ALBERT DIEGO CASTILO

15 MEI 2000

ABOUT ME

I am an architecture student from Yogyakarta University Of Technology Faculty OF Science And Technology Architecture Study Program. I am an enthusiastic, self motivated and hard working person. I also like to learn about something new in architecture.

EDUCATION

- 2016 - 2019 SMAN 1 REJOTANGAN

- 2020 - 2024

Architecture Department, faculty of Science and Technology, University of Technology Yogyakarta. (IPK 3.60)

EXPERIENCE

FINAL PROJECT - “Designing a Final Processing Site in Sutojayan of the Blitar Regency using the Eco-Tech Architectural Approach is a design of a Final Processing Site with a sanitary landfill system in the southern part of the Blitar Regency.” Architecture Student - Analysis, Concept, Design, 2D, 3D. (June 2024)

LECTURER PROJECT “TAMAN D’JAVANINGRAT” - YOGYAKARTA, INDONESIA Junior Architecture - Survey, Concept, Design, 2D, 3D. (February 2024 - Maret 2024)

LECTURER PROJECT “JOGLO PAMERAN” - YOGYAKARTA, INDONESIA

Junior Architecture - Survey, Concept, Design, 2D, 3D. (February 2024)

LECTURER PROJECT “MIX USED” - YOGYAKARTA, INDONESIA

Junior Architecture - Survey, Concept, Design, 2D, 3D. (January 2024 - February 2024)

LECTURER PROJECT “GAZEBOKU” - YOGYAKARTA, INDONESIA

Junior Architecture - Survey, Concept, Design, 2D, 3D. (January 2024)

STUDIO DESAIN ARSITEKTUR 5 “AUTOLUXUS - AUTOMOBILE”

Architecture Student - Analysis, Concept, Design, 2D, 3D. (January 2024)

FREELANCE PROJECT “MINIMALIST HOUSE” - YOGYAKARTA, INDONESIA

Drafter - Design, 3D. (Desember 2023)

FREELANCE PROJECT “MYHOUSE” - YOGYAKARTA, INDONESIA

Drafter - Design, 3D. (November 2023)

STUDIO DESAIN ARSITEKTUR 4 “TROPICAL CITY HOTEL - 4 STAR HOTEL” Architecture Student - Analysis, Concept, Design, 2D, 3D. (June 2023)

STUDIO ENVIRONMENT TEKNOLOGI II “VERTICAL HOUSING - VERTICAL VILAGE” Architecture Student - Analysis, Concept, Design, 2D, 3D. (January 2023)

STUDIO ENVIRONMENT TEKNOLOGI I “PANGGON IJO - RECREATIONAL SPACE” Architecture Student - Analysis, Concept, Design, 2D, 3D. (June 2022)

STUDIO DESAIN ARSITEKTUR 3 “NATURE KINDERGARTEN - KINDERGARTEN” Architecture Student - Analysis, Concept, Design, 2D, 3D. (January 2022)

Designing a Final Processing Site in Sutojayan of the Blitar

Bachelor - Final Project INDIVIDUAL WORK - INDUSTRIAL BUILDING

Taman D’Javaningrat, JogloPameran, Mix Used, Gazeboku

Bachelor - Lecturer Project TEAM WORK - COMMERCIAL BUILDING

Minimalist House, MyHouse.

Bachelor - Freelance Project INDIVIDUAL WORK - RESIDENCE BUILDING

AutoluxusAutomobile.

Bachelor - Architectural Design Studio 5 INDIVIDUAL WORK - COMMERCIAL BUILDING

Tropical City Hotel4 Star Hotel.

Bachelor - Architectural Design Studio 4 INDIVIDUAL WORK - COMMERCIAL BUILDING

Designing a Final Processing Site in Sutojayan of the Blitar

Tempat Pemrosesan Akhir (TPA) Di Sutojayan Kabupaten Blitar Dengan Pendekatan

Arsitektur Eco-Tech

Tempat Pemrosesan Akhir (TPA) Di Sutojayan Kabupaten Blitar Dengan Pendekatan Arsitektur Eco-Tech merupakan perancangan Tempat Pemrosesan Akhir (TPA) dengan sistem sanitary landfill yang ada di Kabupaten Blitar bagian selatan. Perancangan Tempat Pemrosesan Akhir (TPA) Di Sutojayan Kabupaten Blitar Dengan Pendekatan Arsitektur Eco-Tech ini menjawab issu dari Dinas Lingkungan Hidup Kabupaten Blitar yang menyebutkan bahwa jumlah Tempat Pemrosesan Akhir (TPA) yang ada di Kabupaten Blitar masih kurang dibandingkan dengan luas wilayah Kabupaten Blitar dan berencana akan menambah Tempat Pemrosesan Akhir (TPA), yang berlokasi di Kecamatan Sutojayan dan Wonotirto Mengingat TPA Jingglong yang sebelumnya ditutup oleh warga karena permasalahan lingkungan, Pendekatan Arsitektur Eco-Tech dipilih sebagai konsep utama dalam perancangan Tempat Pemrosesan Akhir (TPA) Di Sutojayan Kabupaten Blitar yang berguna untuk mengatasi dan meminimalisir potensi kerusakan yang disebabkan oleh adanya Tempat Pemrosesan Akhir (TPA) Di SutojayanKabupatenBlitar.

Kata kunci: Tempat Pemrosesan Akhir, Sanitary Landfill, Arsitektur Eco-Tech

Location.

merupakan salah satu dari dua puluh dua Kecamatan yang berada pada wilayah administrasi Kabupaten Blitar.

K e c a m a t a n S u t o j a y a n memiliki luas wilayah 44.20 km dan berada pada ketinggian 150mdaripermukaanlaut.

Kec. Sutojayan, Kab. Blitar

Designing a Final Processing Site

Amy Albert Diego Castilo

Designing a Final Processing Site in Sutojayan of the Blitar

Sumberairbersih

Pada bangunanan Entertainment menggunakan duasumberairbersihyaitu SumurdanPDAM. Down

Distribusi air dari tangki bawah (ground Tank) kemudian dipompakan ke atas (Upper Tank) yang biasanyadipasangdiatas,kemudiandidistribusikan. Sanitary.

BUILDING PHYSICS. CONCEPT.

Plumbing Concept.

Pada sistem perpipaan ini dipasang dua buah pipa W C dan urinal dihubungkan ke bak mandi pipa tanah vertikal, dapur, wastafel, dll dihubungkan ke pipa limbah vertikal terpisah lainnya Pipa tanah dan pipa limbah dilengkapidenganpipaventilasiterpisah.

Plumbing Scheme.

Jumlah Pengguna: 228 Orang (P)

(N)

Taman D’Javaningrat.

Albert Diego Castilo
Joglo Pameran.
Joglo
l Amy Albert Diego Castilo
Amy Albert Diego Castilo

MyHouse.

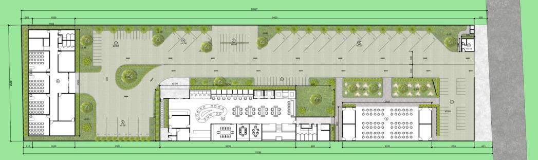
Auto Luxus

The evolution of autoshow design which can become a multi-purpose space without compromising the identity of the BMW brand. By combining technology and the environment, it makes the Autoshow seem

and

Grand Concept.

Eco-Tech Architecture dapat diinterpretasikan sebagai sustainable (berkelanjutan), earthfriendly (ramah lingkungan),danHighperformancebuilding(bangunandenganpeformabaik) Menurut Niombs dkk, Eco-Tech Architecture merupakan sebuah metode perancangan yang mengaitkan dan menyelaraskan lingkungan dan berlandaskan kepedulian tentang konservasi lingkungan global dengan penekanan pada efisiensi energi pemakaianlahandanpengolahansampahefektif dalamtatananarsitektur.

Expresion. Sclupting With Light.

Repones.

Conection.

Matter

Amy Albert Diego Castilo

Structure Expresion.

Sclupting With Light.

Making Conection.

cahaya yang dikombinasikan antara fasad orientasi dan pencahayaan d desa n sedemik an rupa untuk memaksimalkan pencahayaanluardandalambangunan.

Civic Symbolism.

Pengekspresian struktur bangunan yang

menciptakan kesan bangunan yang kokoh dan ramahlingkungan.

Mempresentasikan symbol/brand dar ATPM berupa bentuk fasad ornamen nter or dan warna pada bangunan maupun landscape yang bertujuan sebagai identitas dan daya tarik dari ATPMBMWGroup.

Amy Albert Diego Castilo

TROPICAL CITY

HOTEL ?!

M e n u r u t

Undang-undang Nomor 26 tahun 2007 tentang

P e n a t a a n R u a n g menyatakan proporsi RTH di kota paling sedikit 30

p e r s e n d a r i l u a s wilayahnya Artinya, jika melihat dari data yang ada saat ini, Kota Bandung masih kurang sekitar 17 persenan untuk mencukup proporsi minimal luas RTH sesuaiundang-undang.

B a d a n Meteorologi, Klimatologi, dan Geofisika (BMKG),

s u h u c u a c a p a n a s

b e r k i s a r a n t a r a 2 9 , 6 hingga 31,6 derajat Celsius melebihi suhu normal Kota Bandung 28,8 derajat Celsius karena mengalami kenaikan suhu antara 89 hingga 91 persen dari nilai normal88persen.

L o k a s i t a p a k

berada di Babakan Ciamis, Kec. Sumur Bandung, Kota Bandung, Jawa Barat yang merupakan kawasan padat komersial dan penginapan.

Letak tapak berada pada

Urban City yang terdapat b a n y a k h o t e l d a n penginapan dengan konsep modern Hotel, City Hotel, dll.

Selain itu, pada area sekitar t a p a k m i n i m a d a n y a vegetasi kecuali pada sepadan jalan dan halaman bangunan.

J u m l a h h o t e l

berbintang di Kota Bandung tercatat hingga 2019 sebanyak 288 buah, yang dirasa masih

kurang untuk memenuhi kebutuhan wisatawan yang diproyeksikan hingga 10 tahun ke depan. Kekurangan jumlah hotel ini menjadi salah satu faktor untuk dibangunnya proyek sebuah City hotel untuk menjadi penunjang kegiatan turisme dan berbisnis di Kota Bandung.

TAG LINE ?! TCH ?!

TROPICAL CITY HOTEL

TROPICAL atau TROPIS adalah iklim dimana panas merupakan masalah yang dominan yang pada hampir keseluruhan waktu dalam satu tahun bangunan “bertugas” mendinginkan pemakai, dari pada menghangatkan dan suhu rata-rata pertahun dak kurangdari200C(Koenigsberger 1975:3)

CITY HOTEL merupakan jenis hotel yang berada di pusat kota besar dan ditujukan bagi wisatawan yang tertarik dengan desnasi wisata kota dan menjadi pilihan bagi para tamu yang membutuhkan akses lebih mudah menuju restoran, museum, toko, hingga transportasi umum.

TROPICAL CITY HOTEL

merupakan CITY HOTEL dengan konsep

TROPICAL dimana fungsi hotel kota yang biasa digunakan untuk aktivitas transit dan bisnis dikombinasikan dengan konsep tropis dengan menerapkan prinsip-prinsip desain building dan landscape sehingga menghasilkan hotel kota selain sebagai tempat penginapan dan bisnis juga dapat difungsikan sebagai fasilitas liburan tanpa harus pergi kedaerahpantaimaupunpegunungan.

TROPICAL CITY HOTEL

Kondisi tapak merupakan area padat komersial dengan massa bangunan yang berbedabeda.

Massa awal bangunan didapat dari jumlah KDB yang kemudian diolah dan dibentuk sehingga menjadibentukyangdinamis.

Penambahan jumlah lantai pada dua area bangunan dengan mempertimbangkan bentuk dan orientasi massa bangunan.

Penambahan jumlah lantai pada sisi barat yang digunakan sebagai area room hotel karena memilikibebearapapotensi.

Mengatur tata zona pada bangunan yang dibedakan menjadi zona publik zona privat,danzonasemiprivat.

B e n t u k a k h i r g u b a h a n menampilkan massa dengan satu tower yang berada pada sisi barat, serta penambahan elemen landscape pada tapakyang berguna sebagai elemenpendukungbangunan.

Respon iklim pada bangunan dengan mengatur o r i e n

memanfaatkan potens matahar sebaga penghawanalamibangunan.

Respon sirku as pada bangunan dengan memberi akses luar bangunan sebagai sirkulasi kendaraandansirkulasipejalankhaki.

Respon ang n pada bangunan dengan mengatur tower dengan or entasi se atanbarat untuk menciptakan pola aerodinamis padabangunan.

Landscape pada tapak diolah dengan konsep tropical yang identik dengan tanaman seperti tanaman pa em dan paku serta member elemenbluescape.

Bangunan mengarah kesegala penjuru guna memaksimalkan potensi view pada kawasan sekitar. Selain itu, pengolahan area landscape sebagaiviewdanpendukungbangunan

Perzonasian pada bangunan dibedakan dalam beberapa zona guna memberi kesan prifat atau pub ik dan memberi kenyamanan pada pengunjung.

MEETING ROOM

SUITE ROOM DELUXE ROOM
STANDAR ROOM
POOL
DROPOFF
BIRD VIEW
POOL
Tropical City Hotel

TROPICAL

Portofolio

Amy Albert Diego Castilo.

Turn static files into dynamic content formats.

Create a flipbook
Issuu converts static files into: digital portfolios, online yearbooks, online catalogs, digital photo albums and more. Sign up and create your flipbook.