Albert Tom_CV+Portfolio

Page 1

Portfolio.

Architecture | Urban planning+design

Albert Tom

Architect - Urbanist

Details

DOB : 22.10.1996

iamalberttom@gmail.com

+39 3515378680

Nationality : India

Domicile : Milan, Italy

Languages

English - Native

Malayalam - Mother tongue

Hindi

Tamil

Education

Politecnico di Milano - Milan,Italy.

(2021- 2024)

(2014 - 2019)

(2002 - 2014)

Msc - Urban Planning and Policy Design

Anna University - CIET - TamilNadu,India

B.Arch - Bachelor of Architecture

Kuriakose Elias English Medium Schoool

Work Experience

(2023 - 2024)

Studio Hartzema - Rotterdam,Netherlands

Post Graduate Internship

Worked on architecture and master planning projects under the supervision of senior architects throughout the design and implementation stages. Coordinated with the team during the rapid phase of design creation and research.

Rozenlust Pavillion Rotterdam : Creating design options for the pavilion

Design development

Estate’s landscape schematic development

3D modelling of the project

Visualization and renderings in Enscape

Development of architecture drawings and presentations

Stuart Hotel in Rijswijk : Preperation of Permit Drawings

3D modelling of the project

Architectural technical drawings

Development of design options

Visualization and renderings in Enscape

Interior renovation design

OLVG Amsterdam : Masterplan development

Architecture designing of parking building

Architectural technical drawings

Development of design options

Visualization and renderings in Enscape

(2020 - 2021) IPE Design Workshop - Kerala ,India

Architect

Worked on architecture, landscape and urban design projects under the supervision of senior architects throughout the design and implementation stages. Indipendantly worked on architecture projects at different stages including construction supervision, collaborated with multi disciplinary experts in urban design and landscape projects.

Mullanthuruthy House : Design development

Permit drawings

Landscape schematic development

3D modelling of the project

Ashoka Shopping complex: Design development

Permit drawings

Construction supervision

3D modelling and visualization of the project

Construction drawings

Coordination with client

Kottayam Urban Design : Site study and documentation

Design development

Design illustration

Visualization, renderings and walkthroughs

Design board presentation

(2019 - 2020) Prasanna Desai Architects - Pune,India

Jr.Architect / Urban designer

Worked mostly on urban (public) place making and street design projects along with design competition projects, all the projects were government commissioned in collaboration with multiple national,international bodies and stakeholders.

Bremen linear park : Site Study and Research

Design development

Permit drawings

Construction drawing development

Visualization and renderings

Client and stakeholder management

Site inspection and management

TATA Pune Metro Project : Site Study and research

Street design developemt

Schematic design of metro station

Architectural drawings

Visualization and renderings

Mumbai Urban Lab

Design Competition : Site study and documentation

Masterplan development

Street design and transportation planning

Urban design illustrations

Visualization and renderings

Design presentation

Ente Kochi

Design Competition : Site study and documentation

Masterplan development

Development strategies and policies

Urban design illustrations

Visualization and renderings

Design presentation

(2017 - 2018) Akbar Khan Architects - Kerala,India Internship

Worked mostly on preparing detailed construction drawings and assisting architects in various task in the office and at site.

Worked as a part of design team and prepared presentations for client meetings and discussions.

(2017 - 2018) Freelance Work

2016 - Commissioned by the parish church to design a reliquary for the church 2019 - Commissioned by a local real estate developer to design a housing project 202comprising of 4 individual houses.

2020 - Commissioned to design a vacation house

2021 - Proposal of Chavara chapel and pilgrim office 2021 - Master planning of Chavara pilgrim center 2023 - House design project in bengaluru, India

Interests and Skill Software Skill*

Architecture design of all scale and typeCreative and curious

Urban design and placemaking

Master planning

Urban planning with SDG goals

Attention to detail

Team player

Design execution

Urban regeneration projects Project management

Climate resilient urban planning and design

Nature based solution and planning

Activities

Volunteer at FEED Pune, India. Forum for Exchange and Excellence in Design Student Ambassador of Msc-UPPD Politecnico di Milano - Milan, Italy (2016 ) (2019 -2020) (2022-2023)

Member of illustration team in NASA (National Architecture Students Association) published magazine - Thought Papers Scissors

AutoCad (5/5) Adobe Photoshop (3/5)

SketchUp (5/5) Adobe illustrator (4/5)

Revit (3/5) Adobe inDesign (3/5) Lumion (5/5) Enscape (5/5)

*5/5 - Expert 4/5 - Advanced 3/5 - Experienced 2/5 - Beginner QGis (2/5) Rhino (3/5)

Awards and Recognition

Urban Design Competition - Winning team IIA - Indian Institute of Architects (2021)

Urban Design Competition - Shortlisted team Ente Kochi (2020)

Urban Design Competition - Winning team Mumbai Street Lab (2019)

Panel Discussion - Winner

NASA - National Architecture Students Association

*Coimbatore - 2016

*Chennai - 2018

DATUM

February 1, 2024

ONDERWERP

Recommendation

Albert Tom

PAGINA

1/1

Albert Tom has been an intern to our office from October 2023 until February end 2024

In this period, he has been mainly working on three projects: -Extension Rozenlust Estate in Rotterdam - Building permit The Stuart Hotel in Rijswijk - Masterplan OLVG in Amsterdam

For these projects Albert has been contributing to preliminary and final design stages by visualisation, building 3D model and executing studies for design options

We have learned Albert as a quick learner and an interested professional. Albert is very much capable of arranging work and time. He knows what he can and recognizes the moment to ask for assistance or input. Besides that, he is positive and a constructive team member!

Studio Hartzema was most happy to have Albert on board for a while. We recommend him most positively to anyone that consider hiring him!

TO WHOM IT MAY CONCERN

Albert Tom iamalberttom@gmail.com +39 3515378680

Language : English

Curriculum vitae

Education

Politecnico di Milano - Milan,Italy.

Msc - Urban Planning and Policy Design (2021-2024)

Anna University - CIET - TamilNadu,India

B.Arch - Bachelor of Architecture (2014 - 2019)

Work Experience

Studio Hartzema - Rotterdam, NL

Internship - Post graduate (2023 - 2024)

Architecture - Urban planning

Ipe Design Workshop - Kerala,India

Architect (2020 - 2021)

Architecture - Landscape - Urban design

Prasanna Desai Architects - Pune,India

Architect-Urban designer (2019 - 2020)

Urban design - Urban planning

Akbar Khan Architects- Kerala,India Internship (2017-2018)

Architecture - interior design - Planning

Freelance practice

6 executed projects

Architecture - Planning - Product design

Student Ambassador of Msc-UPPD Politecnico di Milano - Milan,Italy. (2022-2023)

Volunteer at FEED - Pune, India

Forum for Exchange and Excellence in Design (2019-2020)

Software Skills

AutoCad (5/5)

SketchUp (5/5)

Revit (3/5)

Adobe Photoshop (3/5)

Adobe illustrator (4/5)

Adobe inDesign (3/5)

Enscape (5/5)

Rhino (2/5)

Lumion (5/5)

QGis (2/5)

Awards and Recognition

Urban Design Competition - Winning team

IIA - Indian Institute of Architects (2021)

Urban Design Competition - Shortlisted team

Ente Kochi (2020)

Urban Design Competition - Winning team

Mumbai Street Lab (2019)

Panel Discussion - Winner

NASA - National Architecture Students Association

*Coimbatore - 2016

*Chennai - 2018

This is a compilation of my selected works over the years. From a pool of various types of projects, I have selected a few that would exhibit my enthusiasm and experience in urban planning/design, architecture and landscape design.

Content

Rozenlust Pavilion

Pavilion and Restoration of an old Stable in the heart of Rotterdam

Marbled Memories

Archive Museum for sculptures from Milan Cathedral

Greening Corso Sempione

Reconnecting People with Nature

Planning for Integrated Urban Connectivity and Architectural Expansion

Synergy: Rethinking Citta Studi

A Livable and climate positive transition of Citta Studi

OLVG Master
04 pg 36 01 pg 06 05 pg 44 03 pg 22 02 pg 16

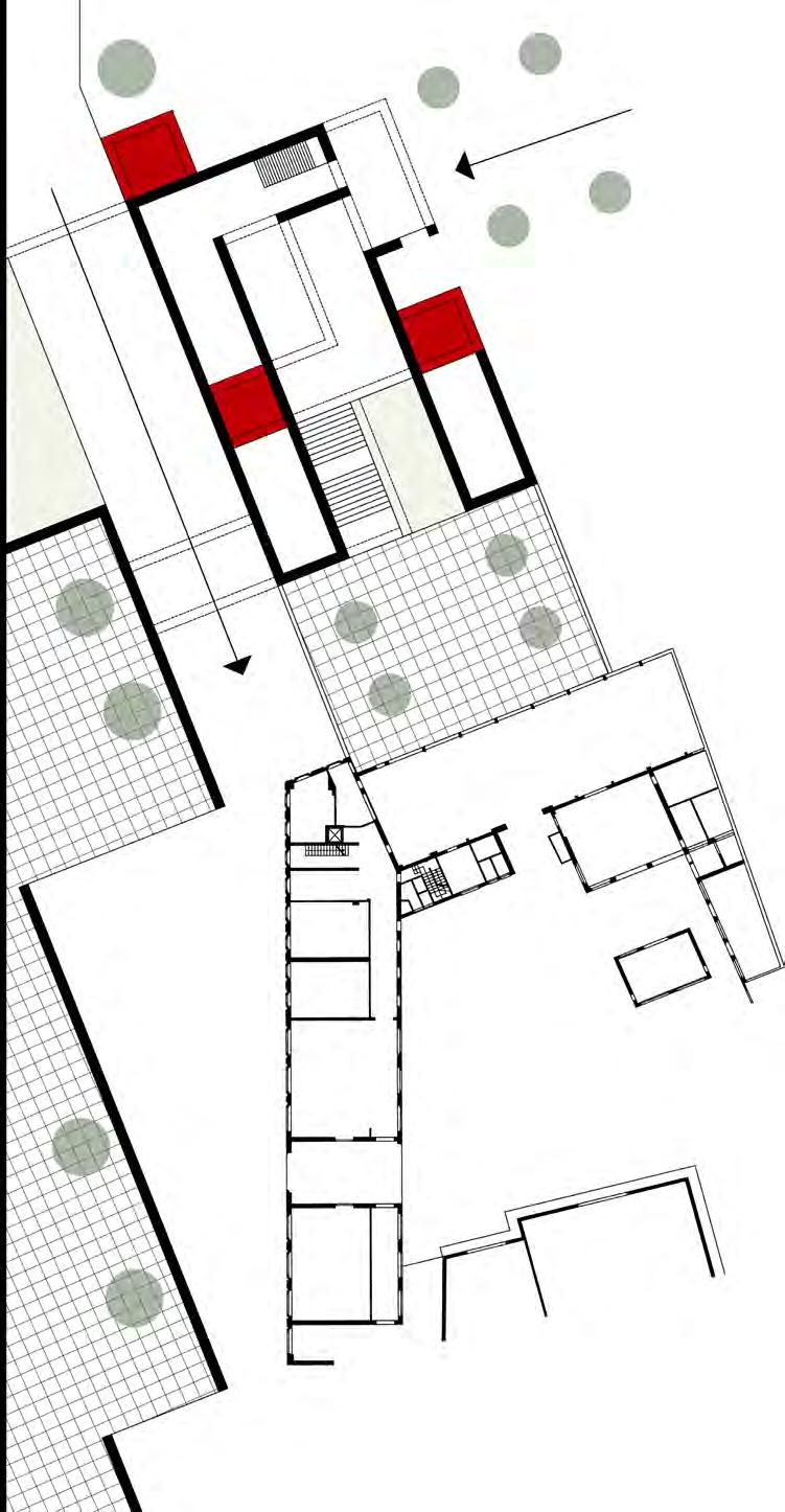
Rozenlust Pavilion

Studio Hartzema|Internship|2023 Architecture

Pavilion and Restoration of an old stable in the heart of city of Rotterdam

Rotterdam-Netherlands

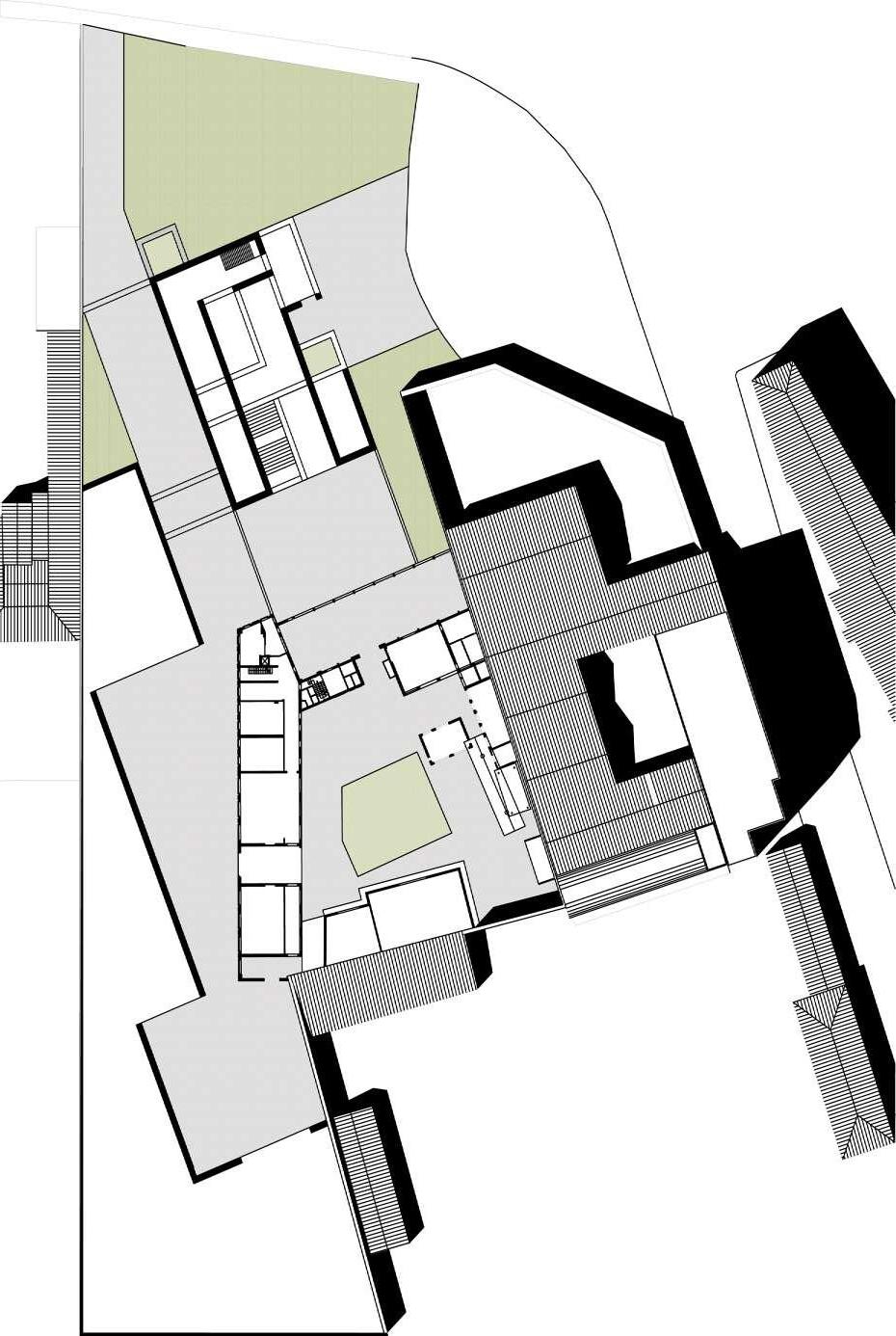
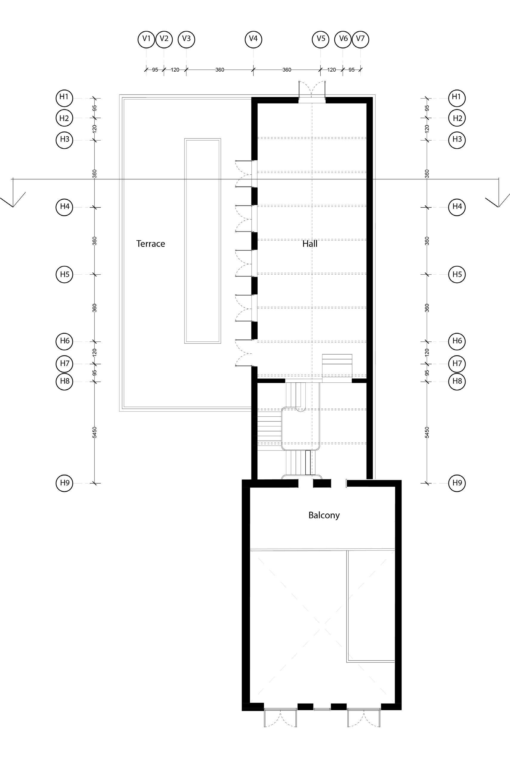
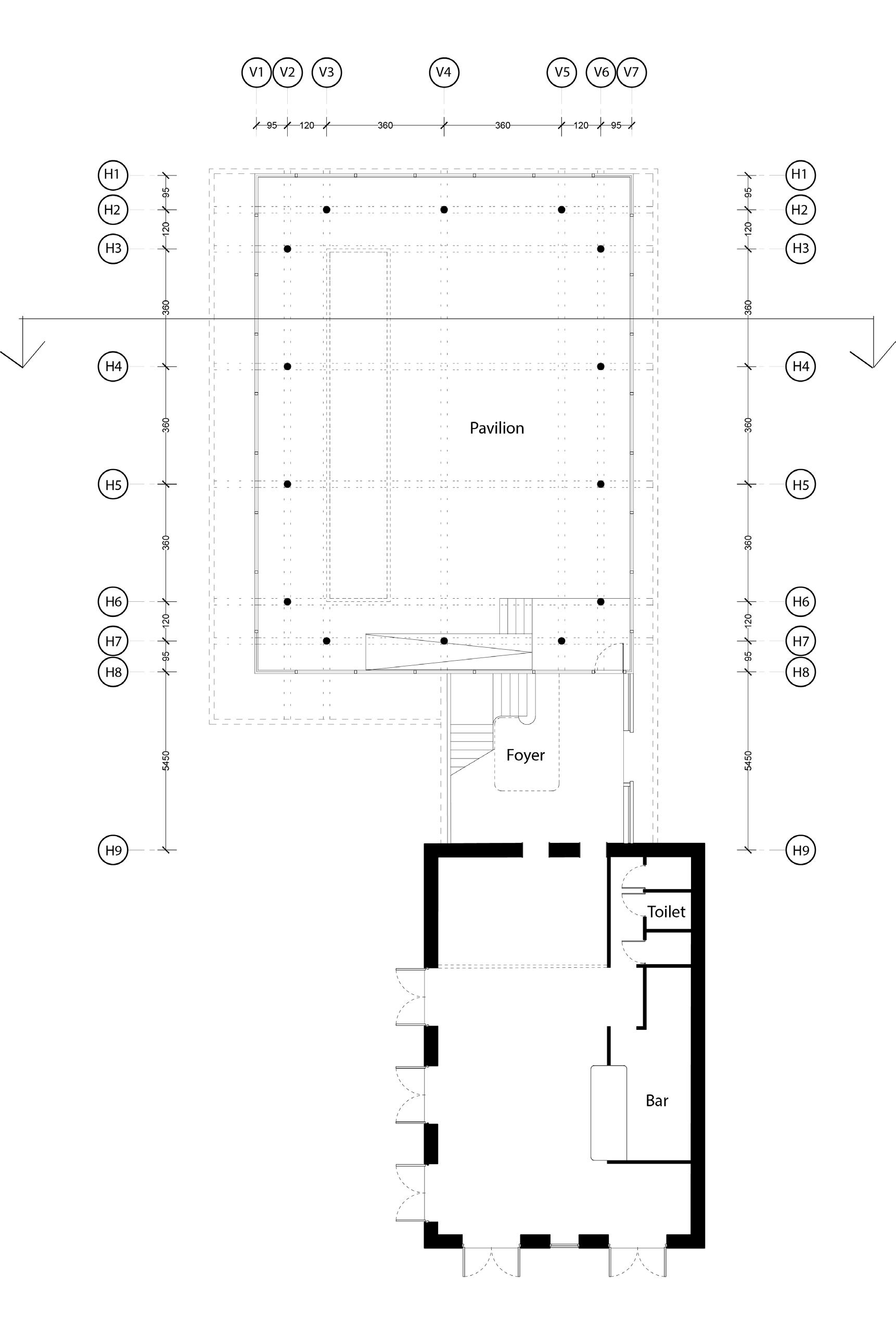
Project in Rotterdam is a visionary endeavor that seamlessly blends modern design with historical preservation. The centerpiece of the project is the Pavilion, an architectural masterpiece set to grace the garden in the heart of the city of Rotterdam. Adjacent to the Pavilion, the project includes the meticulous restoration of an old stable, transforming it into a charming space for a bar or cafe opening to the sarrounding garden. This revitalized space will preserve the historical character of the stable while providing new function to the building. The restoration effort aims to breathe new life into the structure, celebrating its heritage and providing a dynamic backdrop for the serene garden.

Role: Concept and Design development, 3D modelling, Renders, illustration of plans and sections, presentation .

Studio Hartzema|Internship|2023 06.
Site Plan 05 06 Site for pavilion Rozenlust building 01 03 02 04
Parking Design Development Studio Hartzema|Internship|2023 08.
Old Stable
Ground Floor First Floor Elevation - North
Studio Hartzema|Internship|2023 10.
Section

Exploded View

Sectional view of pavilion and view of the stable

Copper fascade panels Sky light Wooden beams Acquired industrial pillars Delft blue tiles
Studio Hartzema|Internship|2023 12.
Wooden staircase
Studio Hartzema|Internship|2023 14.

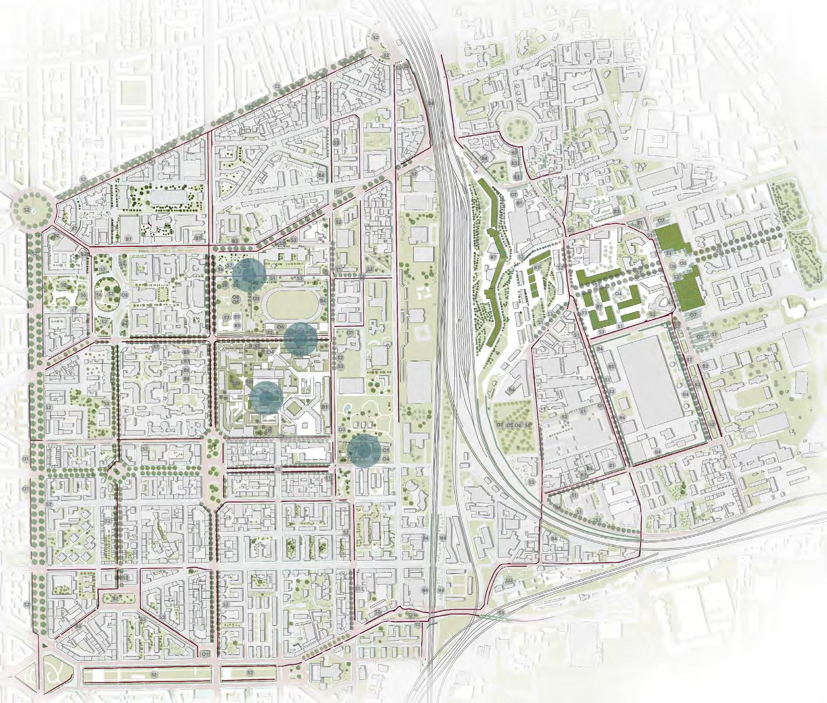
OLVG: 2040

Studio Hartzema|Internship|2024 Architecture|Master Planning|Urban Design

Master Planning for Integrated Urban Connectivity and Architectural Expansion

Amsterdam-Netherlands

OLVG is Amsterdam’s top clinical training hospital locat-ed at two main locations, in the East on the Oosterpark and in the West on the Jan Tooropstraat. In order to re-new and innovate hospital care, the OLVGWest location will have to be transformed and expanded in the com-ing years. This also creates the opportunity to radically improve the functionality of the existing complex at this location and to better embed the future care environment in the urban environment, both functionally and spatially.

Role: Design development for the parking block, architectural drawings, illustrations, presentations,Renders, 3D Modelling.

16. Studio Hartzema|Internship|2023

Programmatic assignment

Several functions come together at Zorgkwartier-West. With the intended concentration on West, the integration of Reade, entrance building and the integration of strategic reserve approximately 196,800m2 GFA is realized.

Flexibility & Connection

Circulation Scheme

18. Studio Hartzema|Internship|2023
Goods and Freight Logistics Emergency route
Visitor flow - Public Transport and Pedestrian
flow - Car and Taxi
Visitor
20. Studio Hartzema|Internship|2023
PHASE 1 PHASE 2 PHASE 3 PHASE 4 PHASE 6
22. Studio Hartzema|Internship|2023
1.Inner Street Main entrance at JanTooropstraat Green plaza View of Garden 2.The Plaza 3. Garden 4.Logistics Plaza 5.Lab Building 6.Ambulance post 7.SEH 8. South Pavillion 9. Canteen 10. Parking
24. Studio Hartzema|Internship|2023 North South & East West Cross Sections
26. Studio Hartzema|Internship|2023
View of the Garden

Marbled Memories

Milan International Architecture Week|Academic Work|2023 Architecture

Archive Museum for sculptures from Milan Cathedral

Milano

- Italy

The Duomo Sculpture Archive museum project is a captivating endeavor dedicated to preserving and celebrating the extraordinary legacy of sculptures adorning the Duomo di Milano. This visionary project is dedicated to preserving and showcasing the profound craftsmanship and workshops for restoration of sculptures once ornamented the fascade of Duomo di Milano. The design of spaces and building materials are chosen in a way that it pays tribute to the celebrated scuptures that it houses.

Role: Concept and Design development, 3D modelling, Renders, illustration of plans and sections, presentation .

MIAW|Academic work|2023 28.
MIAW|Academic work|2023 30.
The marble from Candoglia used for the construction of cathedral of Milan and sculptures is used as cladding for walls in the building, large panels of 3 meter height is used to narrate the volume of Milan’s biggest cathedral.
MIAW|Academic work|2023 32.
Concept Development Conceptual Massing
MIAW|Academic work|2023 34. Site Plan Plan Piazza Workshop Workshop Drive way Courtyard Courtyard Gallery OTS Gallery OTS Gallery OTS Gallery OTS Gallery OTS Entry Entry Gallery Archive Tower A Archive Tower B Archive Tower C Exhibits area Exhibits area

Section through Archive Tower C

panel Detail

MIAW|Academic work|2023 36. Archive Tower A Archive Tower C Archive Tower B
Steel bar reinforcement Steel bar reinforcement Concrete layer Marble cladding Fascade
MIAW|Academic work|2023 38.
MIAW|Academic work|2023 40.

Synergy: Rethinking

Citta Studi

3rd Semester|M.Sc UPPD|2022

Energy, Climate and Urban Planning

and

positive transition of Citta Studi

Citta Studi, Milan - Italy

Citta Studi is a historically developed district with majorly educational functions, heavily influenced by the presence of educational instittuions including Polimi and Unimi, the objective of this studio was to propose interventions addressing the needs of energy, climate and well being leading to the development of a master plan for the area. In the project the focus was on transformation of Citta studi into a more livable and energy-climate positive place through majorly nature based solutions. Attention was also given to green mobility and walking expereince hence working on multiple scales.

Group work.

Role: Analysis through comparison, Mapping,Concept and strategy development, design and development of master plan for the focus areas, detailing of the master plan, detailed design of focus areas, illustration of plans sections and views, architecture part of the project.

Climate and Energy

Mitigation

Environment

Improving

Livability

Improving

MSC.UPPD|Academic work|2022 42.
A
Before Before Before
Livable
climate
slow mobility walkability and well-being
clean energy use
Increasing
of CO2 and urban heat
social interaction by making new spaces After After After Existing green Improving green infrastructure where CO2 emission is high Accessible new interactive urban spaces, permeable entrances Enhanced walking experience, improved social inclusion and wellbeing. Better connectivity of walking and slow mobility New university buildings. Solar panels and wind trees for clean energy Current most used space New bikelanes Current major pedestrian path New ideal pedestrian path Current bike lanes New space New buildings Pause points New green Green roof Depavement Green fascade Trees in line Major solar panel Bio swale Built

After intervention at Focus Areas

MSC.UPPD|Academic work|2022 44. Master plan
Via Celoria Cascina Rosa Unimi Block Via Ponzio Via Ponzio Unimi Block
Linear pedestrian pathway New Student housing New Open parks New Open parks Open space for students Preservation of old building Preservation of old building Urban farm Better connection Student labs Better connection Bio swale garden
Cascina Rosa

Sectional View of Cascina Rosa

Livability

Cascina Rosa houses a parking lot and degrading old building structures, sharing its edges to the street and botanical garden it has a great potential for transformation. Through the intervention the parking lot is converted into an open urban space, also preserving the old building structures and facelifting the cascina.

Transparent glass wall enabling visual permeability between open park of Casina Rosa and enclosed botanical garden

Adding to the aesthetics of the sarrounding

Mixity and diverse participation

Interactive open space

Preserving the ruins of the old wall to demark the edge of proposed community market .

Ecology

Solar paneled roofs for clean energy

Urban farming and market

Greening of more openspace

Adaptability

Adaptability interms of serving different function at different time and same space used for different function .

Single storey transparent cubicle buildings to serve as labs for students, enhancing the diversity of the place also solar panelled roofs providing clean energy. .

Raised pedestrian crossing making the park more accessible and restricting vehicle entry using bollards.

Built

environment

Converting empty

ing lot into flexible

up area New building for students, promoting flexibility and sustainability

MSC.UPPD|Academic work|2022 46.
Preservation of Cascina park- built
MSC.UPPD|Academic work|2022 48.
Linear pedestrian park at Via Ponzio Top: Cascina Rosa Bottom : Student housing in Unimi block

Greening Corso Sempione

Landscape and Public Space Design

Studio|Academic Work|2023

Landscape|Urban Design

Reconnecting People with Nature

Milano - Italy

The project encompasses the comprehensive redesign and revitalization of a previously highly car-oriented boulevard, utilizing innovative landscape architecture principles to integrate nature seamlessly into the urban fabric. By combining green spaces, pedestrian-friendly features, and a thoughtful blend of built and natural elements, the project strives to create a transformative environment that provides respite from the daily urban grind.

Role: (Group work) Concept and Design development, illustration of plans, sections, views and collages,Maquette, urban analysis, site analysis.

MSC.UPPD|Academic work|2023 50.

Corso Sempione -Proposal

Primary Activites

MSC.UPPD|Academic work|2023 52.
Corso Sempione - Existing
Segment 3 - Mixed Use Segment 2 - Residential
Secondary Activities
Segment 1 -Commercial
MSC.UPPD|Academic work|2023 54.
Landscape Strategy

2 - A Dynamic Boulevard

2 - New Landscape

MSC.UPPD|Academic work|2023 56.
Segment Segment Segment 2 - Material Palette
MSC.UPPD|Academic work|2023 58.
Corso Sempione - Segment 2 - Street Sections
MSC.UPPD|Academic work|2023 60. Corso Sempione - Views

Thank you

Fin.

Turn static files into dynamic content formats.

Create a flipbook
Issuu converts static files into: digital portfolios, online yearbooks, online catalogs, digital photo albums and more. Sign up and create your flipbook.