CO-Living Space

Page 1

Albellys Manon ARCHITECTURE PORTFOLIO

Albellys D. Manon 2 ContentsContents 04 01 Presentation School Boston Agora

BOSTON

AGORA ARCHITECTURE STUDIO 01

In this studio I gather observational studies and how I could interpret the urban context, and how the study of precedent can help generate a design proposal. I learned how to think Abstractly and conceptually. The main objective of this project was the creation of a boarding dock for commuter boat, it which it will include public waiting indoor and outdoors , legible access to the water and informal access to the water.

BOSTON AGORA

NEXT GEN COMMUNITY HUB

SOLUTION COMMON AREA

CENTRALIZE PODS TO CREATE INTERACTION

Residential units are oriented towards the common spaces, highlighting the sense of community and created the perfect balance between public and private. With shared green house space that as a community will build and grow some of their food resources to their taste and this could turn into a source of income. Creating the culture of sharing. The greenhouse , uses a soil-less system that is equipped with drip irrigation based on recycle “gray water” collected form the site rainwater. Open Courtyard opens the interior of the building for daylight creates visual connectivity between the various levels of the building.

SHARED EFFICIENCY HOUSING MODULE THAT CENTRALIZES COMMON SPACE TO BE SHARES WITH THE RESIDENTS WITHIN THEIR PODS

Albellys D. Manon 6
BOSTON, MA UNIT UNIT
OPEN UP FLOOR PLAN TO CREATE NOOKS OF INTERACTION SPREAD PODS TO CREATE BALANCE OF PRIVATE AND COMMON SPACES This project aims to create a new approach to co-housing, part cohousing, part Co-green house. As community it’s form by a combination of people that come together my building is a combination of Pods that combine together and create a new type of community and as they merge different space are created and in combination they create BOSTON AGORA. This proposal provides agricultural freedom to city residents. This project is in response to the growing population in Boston, to manage many people in the city. It will create housing, jobs , food and luxury living. “COMMUNITY URBAN FARMING”
8
Albellys D. Manon

Precedent

Albellys D. Manon 10
FIRST FLOOR Retail and Lobby RETAIL SPACE
OWNED RESTAURANTS
FAMILY
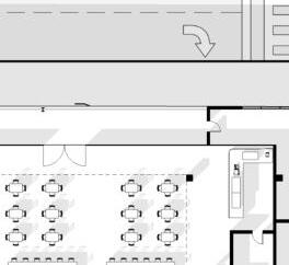
Albellys D. Manon 12 seCOND FLOOR Residential Common Space & Co- Working section COmmon SPACES HYDROPONIC AND LABORATORY SPACES
Albellys D. Manon 14
CO-LIVING
RESIDENTIAL SPACE
THIRD FLOOR
SPACES
Residential Spaces

Turn static files into dynamic content formats.

Create a flipbook
Issuu converts static files into: digital portfolios, online yearbooks, online catalogs, digital photo albums and more. Sign up and create your flipbook.