Portafolio Calliera Alan Martin

Page 1

PORTAFOLIO (Julio2023/Diciembre 2023)

Pasalto materiales S.R.L

PORTAFOLIO DE OBRAS CONSTRUIDAS

(Julio2021/Mayo2023)

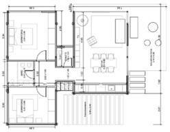
LOTE 477
BARRIO PRIVADO SAINT THOMAS ESTE
LOTE 735 BARRIO PRIVADO TERRALAGOS CANNING
LOTE 269 BARRIO PRIVADO LA PROVIDENCIA
CASAS BOUTIQUE BARRIO LA MAGDALENA CANNING
LOTE 83 BARRIO PRIVADO LA MAGDALENA LOTE 50 BARRIO PRIVADO LA MAGDALENA LOTE
73 Barrio la magdalena CANNING (Sistema constructivo stell framing)
LOTE 97 BARRIO PRIVADO LA MAGDALENA
REMODELACION LOCAL RUSTY Espan) a 179, Lomas de Zamora.
LOTE 307 BARRIO PRIVADO LA MAGDALENA
LOTE 02 BARRIO PRIVADO LA MAGDALENA CANNING
LOTE 247 BARRIO PRIVADO LA MAGDALENA
PH GARAY REMEDIOS DE ESCALADA
LOTE 322 LA MAGDALENA BARRIO PRIVADO CANNING
LOTE 82 BARRIO PRIVADO LA MAGDALENA CANNING
LOTE 141 BARRIO PRIVADO TERRALAGOS CANNING

Turn static files into dynamic content formats.

Create a flipbook
Issuu converts static files into: digital portfolios, online yearbooks, online catalogs, digital photo albums and more. Sign up and create your flipbook.