Portofolio Alam Tambang Prakasa

Page 1

ARCHITECTURAL

alam tambang prakasa

PORTFOLIO.

Tempat, Tanggal Lahir

Klaten, 20 Oktober 2000

P E N G A L A M A N .

Koordinator Divisi Dekorasi Jamming Session DTAP 2019

Anggota Divisi Humas KMTA Wiswakharman 2018-2019

Anggota Divisi Dekorasi KMTA Wiswakharman 2019-2020

Anggota Divisi Dekorasi Wiswakharman Expo 2019 Anggota Divisi Dekorasi Wiswakharman Expo 2020

Asisten Dosen Gambar Arsitektur 2019, UGM

Asisten Dosen Gambar Arsitektur 2020, UGM

Asisten Dosen Gambar Arsitektur 2021, UGM

Asisten Dosen Bahan Banguan 2020, UGM

Asisten Dosen Bahan Banguan 2021, UGM

Asisten Dosen Struktur dan Konstruksi 3 2020, UGM Asisten Dosen Struktur dan Konstruksi 2 2021, UGM

Tim Surveyor untuk World Bank di Bantuan Stimulus Perumahan Swadaya (BSPS) 2020

Tim Surveyor untuk Jogja Heritage Society di Cultural and Natural Mapping of Yogyakarta Historic Urban Landscape 2020 Program Internship di Krea Architects Yogyakarta 2021 Asisten Arsitek di CUDD dalam proyek RPIP Dieng 2022

A L A M T A M B A N G P R A K A S A
P R O F I L . P E N D I D I K A N .
Alamat Toprayan RT 001/RW 007 Cawas, Cawas, Klaten, Jawa Tengah Kontak alamtambangp@gmail.com +62 815 17260014 alamprakasa (line) SD NEGERI 2 CAWAS SMP NEGERI 1 CAWAS SMA NEGERI 1 KLATEN UNIVERSITAS GADJAH MADA
H A R D - S K I L L S . S O F T - S K I L L S .

2022

2021

KLATEN CREATIVE HUB DENGAN PENDEKATAN INTERCONNECTED SPACE (STUDIO TUGAS AKHIR)

REVITALISASI PASAR JATINOM KLATEN (STUDIO TEMATIK 2)

SAYEMBARA PERLUASAN KAWASAN KOTA DEMAK (2021)

SRAWANG-SRAWUNG (SAYEMBARA VERSATILLE UPH 2021)

CHILDREN THIRD PLACE SETURAN (STUDIO TEMATIK 1)

2020

REGENERATING PASAR MINGGU (GAUNG BANDUNG 2020)

REDESAIN SMPN 10 YOGYAKARTA (STUDIO DESAIN ARSITEKTUR 4)

SIDE HOUSE (ARSITEKTUR TANGGAP BENCANA) (2020)

2019

NAT GEO CLASS (STUDIO DESAIN ARSITEKTUR 3)

K O N T E N .

KLATEN CREATIVE HUB .

STUDIO TUGAS AKHIR | 2022

Indonesia dinobatkan sebagai pelopor revolusi ekonomi kreatif dunia dilihat dari meningkatnya hasil dari industri kreatif yang didukung dengan sumber daya yang banyak.

Pameran dan workshop sebagai upaya promosi dan minat terhadap industri kreatif telah diupayan oleh pemerintah dan berbagai daerah di Indonesia, termasuk kabupaten Klaten yang memiliki unggulan industri kreatif yaitu fashion dan kriya

Perancangan Creative Hub hadir sebagai ruang yang mewadahi kebutuhan industri kreatif di Kabupaten Klaten dengan fasilitas dan desain layout juga sirkulasi ruang maupun bangunan yang mudahkan pelaku kreatif baik itu pemilik, pengusaha, masyarakat dan pemerintah dapat saling terinspirasi satu sama lain, berkolaborasi, dan berinovasi sehingga dapat bersaing di pasaran.

INTERCONNECTED SPACE

Menghubungkan ruang,baik antar ruang dalam,antar ruang luar,ataupun ruang dalam dengan ruang luar,tanpa menjadikannya satu

SIRKULASI FASAD YANG TRANSPARAN AKSESIBILITAS KE SEGALA ARAH

M e m p e n g a r u h i pandangan orang y a n g m e n g g u n a k a n b a n g u n a n terhadap bentuk dan ruang-ruang y a n g a d a d i dalamnya.

M e m p e r l i h a t k a n sebagian atau seluruh aktivitas yang terjadi pada suatu ruang atau bangunan.

A k s e s y a n g d a p a t dijangkau dari dan ke s e g a l a a r a h u n t u k m e m p e r m u d a h p e n g g u n a u n t u k berpindah dari suatu tempat ke tempat yang lain.

ATMOSFIR KREATIF DAN INTERAKTIF

Menciptakan lingkungan yang saling terhubung dan ternaungi sehingga membentuk atmosfir atau suasana yang mendukung pelaku kreatif untuk belajar, terinspirasi satu sama lain, berkolaborasi, serta berinovasi untuk mengembangkan usahanya.

MASSA

Bareng Lor, Kecamatan Klaten Utara, Kabupaten Klaten

Kecamatan Klaten Utara merupakan kawasan perkotaan Kabupaten Klaten dan berdasarkan Peta Penetapan Kawasan Strategis Kabupaten Klaten lokasi ini termasuk dalam kawasan strategis kepentingan sosial budaya

Luas Area : 3.211 m2

KDB Max : 60% GSB : 10,75 m

1

Arah gerak diagonal matahari pada tapak, digunakan untuk menentukan bukaan dalam m e m a k s i m a l k a n c a h a y a matahari.

2

Kebisingan paling besar berasal dari kendaraan di Jalan Pemuda sehingga perlu diberikan jarak atau buffer.

3

Tapak dikelilingi oleh jalan d a p a t d i m a k s i m a l k a n sebagai akses dari segala arah, dan dapat digunakan untuk kedaruratan seperti jalur pemadam kebakaran.

M e m b a g i z o n a s i t a p a k menjadi publik, semi publik, dan privat untuk menentukan e n t r a n c e d a n s e r v i s berdasarkan arah gerak kendaraan

Membuat tiga bentukan massa yang merespon arah jalan, arah gerak matahari, dan b e n t u k l i n g k a ra n u n t u k menggambarkan kreativitas yang luwes dan tidak terkotakkotak

M e m a k s i m a l k a n l u a s b a n g u n a n d e n g a n menambah lantai

Memberikan perlubangan di tengah massa lingkaran untuk pusat ruang dan pusat a k t i v i t a s y a n g d a p a t mengakses sekelilingnya

Penggunaan atap miring untuk merespon konteks iklim dan cuaca

LOKASI DAN TRANSFORMASI
C D
A B
2 1 3 A B C D
Permukiman Permukiman dan Perdagangan Permukiman dan Pendidikan Perkantoran dan Rekreasi

Sirkulasi yang melingkar memberikan kesan dinaungi atau dilingkupi

Dikelilingi oleh kegiatan atau p r o s e s k r e a t i f d a p a t membentuk sebuah atmosfir yang kreatif

Bukaan di beberapa sisi d i b u a t u n t u k mengoptimalkan site yang d i k e l i l i n g i o l e h j a l a n sehingga akses menuju dan keluar site atau bangunan lebih mudah

Single koridor memudahkan koneksi antara lantai 1 dan lantai 2, karena kegiatan di bawahnya atau sebaliknya dapat langsung terlihat

Fasad ruang dengan material t r a n s p a r a n b e r u p a k a c a , memudahkan orang lain untuk melihat kegiatan yang dilakukan di dalam ruangan Menaikan level lantai selain digunakan untuk menambah luasan di bawahnya, membuat bangunan tersebut lebih terlihat

EKSPLODA
LANTAI 2 SKALA 1:200 B B’ A A LANTAI 1 SKALA 1:200 B B’ A A SITE PLAN SKALA 1:200 B B’ A A SEMI BASEMENT SKALA 1:200 B B’ A A
+3.50 +0.00 +9.70 -1.50 -3.00 -1.10 GALERI DAN PERPUSTAKAAN LOBBY INFORMATION CENTER GALERI GUDANG A B C D +3.50 +0.00 +9.70 6.00 2.00 4.00 E 2.75 1.00 6.00 1.801.20 -0.90 -1.50 -3.00 100 400 800 LOBBY INFORMATION CENTER INNERCOURT WORKSHOP KRIY GUDANG KRIY RUANG MEETING CO-OFFICE POTONGAN SKALA 1:150 POTONGAN B-B’ POTONGAN A-A’
AEREAL VIEW
TAMPAK TIMUR
TAMPAK BARAT TAMPAK SELATAN
TAMPAK UTARA
FASAD
GALERI DAN PERPUSTAKAAN
WORKSHOP FASHION
RUANG
LOBBY
MEETING CO-WORKING LAB DIGITAL
DETAIL Rangka baja wire mesh plat besi Sambungan baja dengan beton menggunakan mur dan baut batu bata batu alam beton meja kursi rak karya dan buku built-infurniture

REVITALISASI PASAR JATINOM KLATEN .

DESKRIPSI ISU DAN PERMASALAHAN

Lokasi : Jl. Raya Jatinom, Dusun 2, Krajan, Kec. Jatinom, Kabupaten Klaten, Jawa Tengah

Luas : +- 4500 m2

Jam Digunakan : 03.00-14.00

Barang yang Dijual : Sayur, Daging, Snack dan Pakaian

Ÿ
Ÿ
Ÿ
Ÿ
Ÿ
Ÿ
Ÿ
Ÿ Tidak
Ÿ T
Ÿ
Tidak dapat menampung Kebutuhan
Tidak dapat menjual
Tidak tertata LAPAK PARKIR TPS
dapat menampung Kebutuhan
i d a k d a p a t m e n a m p u n g Kebutuhan
Tidak tertata STUDIO TEMATIK 1 | 2021

STRATEGI DESAIN

1. Penyesuaian Ukuran Kios

2. Layout Pasar (Lapak Kios Mengitari Los)

3. Entrance Lebih Terbuka Dan Terpusat

4. Penyesuaian Lahan Parkir

5. Perletakan TPS

KONSEP

“Dari Sekitar untuk Sekitar”

Pasar merupakan bagian penting dari masyarakat, baik itu bertindak sebagai p e n j u a l m a u p u n p e m b e l i h a r u s mendapatkan maanfaat

Mengoptimalkan apa yang ada di sekitar untuk memudahkan yang ada di sekitar

KONSEP AKSESIBILITAS DAN SIRKULASI

Aksesibilitas dan Sirkulasi

Internal Ÿ

Layout lapak los berada di tengah sedangkan l a p a k k i o s b e r a d a mengelilingi lapak los, sehingga semua lapak terlihat dengan mudah

Aksesibilitas dan Sirkulasi

Eksternal

Ÿ

Pintu masuk utama berada di sebelah utara u n t u k m e n a n g k a p pengunjung dari jalan Raya Jatinom (paling banyak), terdapat pintu pendukung di sebelah Timur, Barat, dan Selatan. Di bagian Utara pasar juga terdapat area parkir untuk pengunjung pasar

Ÿ

Agar tidak mengganggu akses pengunjung dan mengganggu kemacetan di Jalan Raya Jatinom, area drop off barang terdapat di bagian Timur pasar

KONSEP AKSESIBILITAS DAN LINGKUNGAN

Respon pada Bentuk dan Ruang Kota

Ÿ

Pasar Gabus berada dekat dengan jalan lintas Kabupaten yaitu di sebelah Timur pasar, sehingga bangunan dibuat memberikan kesan welcome di bagian Timur

Ÿ Pasar Gabus terkenal sebagai pasar induk sayuran/grosir terbesar di Klaten, banyak m o b i l / p i c k u p y a n g melakukan bongkar muat sayuran, maka dari itu perlua adanya ruang yang lebih besar

Ÿ

Kuliner malam hari di Jatinom dan sekitar pasar cukup banyak, area drop off bisa digunakan sebagai tempat membuka lapak kuliner pada malam hari

Representasi Budaya Lokal
1 2 3 4 5 6 Lapak Los Lapak Kios Ruang Pengelola Area Parkir Area Drop Off Mushola Jl. Raya Jatinom 2 2 2 2 3 1 4 4 4 4 5 6 7 Toilet 8 TPS 7 7 8 Jl. Raya Gabus
1 2 3 4 5 6 LapakLos LapakKios RuangPengelola AreaParkir Area Drop Off TPS SayurdanBumbu Dagingdan Ikan Buah Snack/makananringan Pakaian

Lapak Sayur dan Buah

Ukuran 2x2 m Meja dan rak kayu

Pembatas Kayu

Lapak Daging dan Ikan

Ukuran 2x2 m Meja cuci Rangka penggantung Pembatas keramik

Ukuran 2x2 m Meja dan rak Rangka penggantung

Lapak Pakaian

SAYEMBARA DESAIN PERLUASAN KOTA DEMAK

KOMPETISI | 2022 | JUARA 3 | TIM

STASIUN KA DAN TERMINAL A INTEGRATED GUNUNG JATI

Stasiun KA dan Terminal Tipe A Integrated Gunung Jati berfungsi sebagai titik transit dari dan menuju Kawasan Perkotaan Demak dan mendukung keberadaan rencana reaktivasi KA Semarang-Demak-Kudus.

Arahan Rencana Tata Bangunan Transit Oriented Development meliputi pembuatan fasad, bentuk atap, dan material yang mempresentasikan budaya lokal, serta pemberian ruang terbuka hijau baik di lantai dasar maupun lantai atas.

Bentuk transformasi dari 3 tumpukan massa dari susunan atap bertingkat masjid demak yang memiliki arti islam, iman, dan ihsan

PLAZA GUNUNG JATI

Mendukung konsep pembangunan berorientasi transit, dirancang sebagai pusat aktivitas rekreasi dan perbelanjaan yang ‘festive’.

Selain pertimbangan estetika, pola grid pada Plaza Gunung Jati ini diorientasikan untuk memperkuat sumbu antara plaza dengan arah kiblat untuk identitas Islam di Kabupaten

SAYEMBARA VERSATILLE UPH

SRAWANG SRAWUNG

Angkringan sebagai wisata kuliner dan media interaksi sosial menjadi ciri khas dan wajah kota Yogyakarta terutama kawasan Malioboro. Namung sayangnya di kondisi pandemi ini angkringan memiliki jam operasional yang terbatas dan mengalami penurunan pengunjung. g=dikhawatirkan angkringan tidak dapat sustain terhadap kondisi ini yang akan berdampak buruk terhadap kondisi perekonomian penjual dan karakter kota Yogyakarta.

Srawang Srawung menjadi tempat yang mengakomodasi angkringan dan kegiatan di dalamnya dengan menyesuaikan protokol kesehatan selama pandei. bentuk yang modular sehingga dapat menyesuaikan kebutuhan ruang di dalamnya. menggunakan material translucent sehingga Srawang Srawung memiliki penampilan visual menyerupai lentera sebagai respon multicultural pada daerah Malioboro Yogyakarta.

Dengan mempertahankan nuans ‘srawung’ dan ‘alon-alon’ yang dimunculkan dari suasana remang hasil sekat translucent serta konsep ‘lesehan di atas’ sehingga mengakomodasi interaksi dengan tetap memprioritaskan kebersihan tempat makan. Srawang Srawung ini dapat menjadi solusi desain angkringan yang lebih sustainable terhadap kondisi pandemi dan tetap mengakomodasi kebutuhan.

2020 | TOP 5 | TIM
KOMPETISI|

Bentuk modular menggunakan grid segi enam untuk menciptakan ruang yang relatif lebih fleksibel. mempermudah physical distacing dan mudah dalam melakukan ekstensi vertikal dan horizontal

ADJUSTABLE SPACE

-

ANALSISI SITE

Komersil

Sekat pada tiap modul dapat berintegrasi dengan modul lain untuk menciptakan ruang dengan kapasitas tertentu.

SIRKULASI

Atap kisi baja

Gedung

Pemerintahan Hotel Mini Plaza

Ruang Parkir

Site yang dipilih berada pada kawasan wisata malioboro sekaligus wilayah urban yang padat dengan bermacam tipologi bangunan mencakup bangunan komersil, pemerintahan, serta hotel penginapan

Rangka baja hollow

Sekat polycarbonate

Rangka baja hollow

Sekat polycarbonate

Pelat besi 3mm Pelat besi 3mm

Kolom baja hollow

Level 1 Srawang Srawung digunakan sebagai zona angkringan dimana pengunjung dapat mengambil makanannya dan membanya menuju tempat makan

Level 2 dan 3 digunakan sebagai tempat makan yang memiliki sekat adjustable untuk menyesuaikan kebutuhan pengguna

Masing-masing ujung Srawang Srawung digunakan untuk sirkulasi vertikal sekaligus zona atraksi untuk mengundang pengunjung

Sistem sirkulasi satu arah mengurangi resiko antar pengunjung untuk berpapasan sehingga pengunjung dapat tetap menjaga physical distancing yang disyaratkan

Zona Angkringan Tempat Makan Sirkulasi
DESAIN
TRANSFORMASI
STRUKTUR
AKSONOMETRI

DENAH LEVEL 1

DENAH LEVEL 2 (MODEL 1)

DENAH LEVEL 2 (MODEL 2)

DENAH LEVEL 3

TAMPAK

Sekat translucent yang memberi

n u a n s a r e m a n g - r e m a n mempertahankan kesan ciri khas angkringan. Sekat berfungsi menjadi pembatas ruang dan solusi dalam menjamin physical distancing yang disyaratkan.

Dalam memenuhi protokol kesehatan masa pandemi, disediakan sanitasi pada masingmasing ujung sirkulasi agar pengunjung dapat menjaga kehigienisannya sebelum dan setelah berada di “SrawangSrawung”.

Disediakan open space dan zona atraksi sebagai variasi fungsi ruang sekaligus untuk menarik pengunjung datang ke fasilitas “Srawang-Srawung”

Ekstensi ruang dapat diteruskan secara vertikal dengan bentuk modular. Lantai atas dibiarkan menjadi open space untuk sirkulasi udara yang optimal. Atap pada level 3 menggunakan atap kisi-kisi untuk mengurangi panas matahari sekaligus atraksi permainan cahaya yang unik

REGENERATING PASAR MINGGU

PASAR MINGGU

Pasar Minggu yang terletak di bantaran Sungai Citarum, Rancasari Kota Bandung merupakan pasar tradisional temporer yang muncul karena kebutuhan penduduk sekitar. Pedagang membuka lapak mereka dengan sarana alas terpal, gerobak, maupun mobil. Pembeli mengakses pasar dengan berjalan khaki maupun dengan kendaraan bermotor.

KONSEP DAN STRATEGI

STEP DESAIN

ISU POTENSI DESAIN

NEGATIIVE SPACE

I s u k e b e r s i h a n d a n kesehatan membuat pengunjung enggan berbelanja, sehingga Pasar Minggu menjadi negative space

NEW NORMAL TREND

Outdoor space pada keadaan new normal menjadi opsi terbaik untuk dijadikan public space karena mendapatkan s i r k u l a s i u d a r a d a n cahaya matahari yang maksimal

REGERATING PASAR MINGGU

Potensi pasar minggu sebagai public outdoor space perlu di maksimalkan sehingga menjadi positive space yang tanggap terhadap keadaan new normal.

Layouting desain lapak temporer

Rumah sakit Al Islam

Warung dan pangkalan ojek

Lotte Mart

Rumah Warga

jalan pasar masih dapat diakses oleh kendaraan bermotor. Dampaknya adalah debu di jalan akan berterbangan saat kendaraan berlalu lalang, sirkulasi menjadi tidak beraturan lapak yang beralas terpal memunculkan isu kebersihan dan kesehatan

Site pada Jalan Mercury Indah Timur digunakan sebagai sirkulasi kendaraan bermotor dengan arus bolak-balik

Site sepanjang 250 meter dan lebar 8 meter berada pada sempadan anak sungai Citarum, Kota Bandung

Minggu 0600

Pedagang mua mendirikan apak masing-masing, akses kend araan mo or di u up

Minggu 0800 Lapak telah berdiri, Pasar Mnggu mulai aktf kegiatan ual bel

Minggu 15.00 Lapak dikembalikan pada sheter, kendaraan bermotor bisa kembali mengakses jalan

Senin-Sabtu Tidak ada Pasar Minggu, alan digunakan sebagai akses kenda raan bermotor bagi warga Minggu 1500 Mnggu 0800 Minggu 0600

sirkulasi pasar ditandai dengan grid perbedaan material jalan sebagai zona pembagi.

Tiap area segitiga hanya dibatasi untuk beberapa orang (maks.4 orang)

Setiap kelompok pengunjung akan bergiliran mengisi area segitiga yang kosong secara bergiliran

KOMPETISI| 2020 | COMPETITION ENTRY | TIM
-ISU-
i m p l e m e n t a s i protokol new normal pada alur pasar
Senn-Sabtu

8 m 250 m

2 1 SITE PLAN

4 5

3.5 m

2 m 6 m 6 m

2.5 m 1 3 4 m

5

4 m 4 m 4 m 4 m

4 5 m 5 m 5 m 5 m

DENAH

a a' 6

relokasi 2 m 6 potongan a-a'

Unit u ama desain pasar temporer un uk meningka kan kuali as pasar sebagai ruang publik pada sempadan sunga

ojek dan parkiran 2 3 4 5 6

penyimpanan lapak 1 1 3 3 tampak timur

Disediakan spot untuk berjualan dengan sarana mobil Kursi sebagai tur tambahan pada pasar untuk menambah variasi ruang publik

Warung eksisting direlokasi menjadi bagian dari pasar, sementara bekas warung (bagian depan) dimanfaatkan menjadi gate, tempat parkir, dan shelter penyimpanan lapak temporer

Shelter penyimpanan lapak temporer ketika tidak digunakan, dan dapat dimanfaatkan sebagai tempat duduk dan tempat berteduh ketika lapak temporer sedang digunakan 4 6 5

Lapak temporer Lapak mobil Modul kursi tanggul Pangkalan
Warung
Shelter
Re design pangkalan ojek agar sesuai dengan akses desain pasar 1 1 2 3

SETURAN CHILD SPACE

STUDIO TEMATIK 1 | 2021

LATAR BELAKANG

Anak generasi milenial maupun generasi alpha banyak menghabiskan kegiatannya di rumah dan sekolah, tapi kurang berinteraksidengan lingkungan sekitarnya karena perkembangan transportasi dan media dan komunikasi modern. Anak menjadi kurang interaksi dan kurang pengetahuan atau ketrampilan di sekitarnya, sehingga anak tidak tau apa mereka minati dan ingin dalami.

SOLUSI

Mengenalkan anak tentang ketrampilan-ketrampilan apa saja yang ada di sekitarnya kemudian dapat mencoba dan mendalami.

KONSEP

“Transparan dan Berinteraksi” untuk menciptakan lingkungan yang bisa dilihat dan bisa mengenalkan kegiatan-kegiatan yang ada di dalamnya.

DARI LUAR

Dapat menarik orang tua untuk mengikutkan anaknya ke Children Third Place

DI DALAM

Anak bisa melihat dan memilih ketrampilan apa yang ingin mereka miliki dan dalami

Jl.SeturanRayaJl.Amarta

Site berbatasan langsung dengan Jalan Seturan Raya dan jalan Amarta, dimana jalan Seturan memiliki kepadatan yang cukup tinggi.

TRANSFORMASI DESAIN

Arah matahari dari timur ke barat, seperti bentuk site yang memanjang.

Massa awal D i b a g i a n t e n g a h d i b e r i k a n v o i d memanjang searah dengan arah cahaya m a t a h a r i a g a r pencahayaan dalam site tercukupi

EKSPLODA

M a s s a d i b a g i a n depan dimundurkan sehingga memiliki jarak dengan jalan dan memberi kesan terbuka atau welcome pada site.

Memberikan void pada bagian tengan untuk memberikan

ruang terbuka yang lebih luas.

Permainan ketinggian utuk memberikan ruang atraksi sebagai daya tarik pengguna.

Mayoritas bangunan di dekat site merupakan bangunan komersil yang langsung berdekatan dengan jalan.

Memiliki dua entrance yang berbeda, dipisahkan untuk fungsiedukasi dan fungsi komersil.

RUANGRUANGATRAKTIF

Ruang-ruang atraktif yang terkoneksi difungsikan

a g a r a n a k b i s a mengeksplor ketrampilan d a n h a l - h a l l a i n d i sekitarnya.

EDUKASIKOMERSIL

ANALISIS SITE
TAMPAK BARAT TAMPAK TIMUR TAMPAK SELATAN TAMPAK UTARA

YOGYAKARTA

STUDIO DESAIN ARSITEKTUR 4 | 2020

KONSEP

Masa sekolah menengah pertama atau SMP merupakan masa peralihan dimana anak ingin bersosialisasi dan mulai mengenal sekitarnya, terlebih lagi dengan orang-orang baru yang ada disekitarnya. tapi seringkali anak canggung untuk memulai suatu komunikasi dan sebuah hubungan dengan yang lain

keinginan untuk mengenal

lingkungan yang mendukung komunikasi dengan sesama

Membuat lingkungan yang mendukung komunikasi juga interaksi yang baik untuk mendukung kegiatan belajar siswa

Menggunakan bentuk lingkaran yang memiliki arah yang memusat sebagai massa baangunan untuk meningkatkan interaksi

REDESAIN SMPN 10

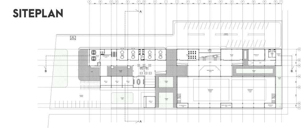
LOKASI TAPAK

SMPN10YogyakartaberlokasidibagianselatanKotaYogyakarta,tepatnya diJl.TritunggalNo.2,Sorosutan,Kec.Umbulharjo,KotaYogyakarta,Daerah Istimewa Yogyakarta. Lokasi tapak berada di antara jalan Tritunggal Utara dan Jalan Tritunggal Selatan dan di area yang memiliki kepadatan yang tinggi.

ANALISIS TAPAK

Arah cahaya matahari dari timur dan barat sebagai penentu untuk masa bangunan dan pengaturan pencahayaan alami yang akan dibuat pada bangunan. U

Arah angin bearasal dari arah selatan ke utara. sehingga massa bangunan disusun supaya dapat melewati tapak.

Lokasi tapak berada di antara jalan Tritunggal utara dan Tritunggal selatan yang dimana jalan Tritunggal selatan memiliki kepadatan yang lebih tinggi dibanding jalan Tritunggal utara. menjadi pertimbangan perletakan entrance utama berada di sebelah Utara.

U U

TRANSFORMASI DESAIN

Memberi massa di pinggir site sebagai pembatas antara ruang dalam dan ruang luar site. Pintu utama bangunan berada di site bagian utara untuk menghindari keramaian jalan dan keamanan siswa.

Tambahan massa melintang dari massa sebagai penyeimbang dan membuat ruang interaksi di tengah, dan sebagai shading ruang tersebut.

Merubah bentuk bangunan tengah dengan bentuk lingkaran yang memiliki sifat memusat sebagai usaha untuk meningkatkan interaksi. Massa dibuat memiliki celah agar dapat merespon site seperti udara tetap mengalir di tengah gedung, kemudian cahaya dari timur barat bisa dikontrol dengan bukaan yang ditaruh pada celah tersebut.

Atap sekolah dibuat menjadi 3 jenis bentuk, mulai dari yang nuansa modern, semi modern, dan tradisional (pelana), urut dari depan sampai ke belakang

Memberikan innercourt di tengah massa bangunan utama sebagai pusat dari interaksi di SMP N 10 Yogyakarta

AKSONOMETRI

TAMPAK UTARA

TAMPAK SELATAN

TAMPAK BARAT

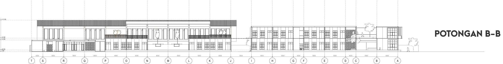
TAMPAK TIMUR POTONGAN A-A’ POTONGAN B-B’

HALAMAN DEPAN PERPUSTAKAAN INNER COURT RUANG KELAS MUSHOLA KORIDOR KELAS INNER COURT LOBBY

ARSITEKTUR TANGGAP BENCANA| 2020

KONSEP

Sebuah keluarga kecil yang terdiri dari Bapak, Ibu dan seorang anak berumur balita, yang tinggal disebuah kawasan yang cukup padat. dan Bapak ini di tengah pandemi tetap harus masuk bekerja ke kantor dengan protokol yang telah ditetapkan.

LATAR BELAKANG

Pada masa pandemi Covid19 ini, masyarakat tetap melakukan aktivitas seperti biasa seperti bekerja, oleh karena itu agar terhindar dari penyakit tersebut, perlu menjaga kesehatan dan juga tetap bahagia.

KONSEP

Membuat batasan antara ruang dalam, luar, dan transisi. Membuat jalur samping sebagai akses utama untu anggota keluarga yang berasal dari luar rumah yang langsung diterima ruang transisi sebagai screening. dan juga memberi ruang lebih untuk rekreasi d dalam rumah agar sehat dan bahagia.

Merupakan tempat yang digunakan untuk membersihkan diri yang dimungkinkan membawa virus corona, terdiri dari tempat mencuci tangan di bagian depan dan kamar mandi tepat di dekat jalur masuk samping, sehingga ketika masuk lewat jalur ini, bagian dalam tidak terkena virus corona yang dimungkinkan terbawa dari luar.

Terdiri dari ruang keluarga, ruang tamu, dan kamar t i d u r y a n g merupakan tempat keluarga bertemu dan merupakan tempat yang harus bersih dan terjaga.

DALAM

TRANSISI

LUAR

Lingkungan luar rumah dimana kondisinya m a s i h t e r p a p a r pandemi, sehingga merupakan tempat yang sebenarnya berbahaya jika tidak mematuhi protokoler yang ada.

Balkon di lantai 2 merupakan tempat berjemur sebagai upaya untuk pencegahan terkena corona.

Terdapat beberapa taman di bagian depan samping dan belakang rumah, serta ruang keluarga di lantai satu dan dua, sehingga tidak bosan dan jenuh ketika berada di dalam rumah dan saat berkumpul dengan anak untuk mengajak bermain.

SIDE HOUSE
3.00 2.50 5.00 4.00 4.00 2.00 6.00 23.50 2.00 3.50 8.50 3.00 2.00 3.50 8.50 2.50 5.00 2.00 9.50 RUANG TAMU +0.10 RUANG KELUARGA +0.10 DAPUR +0.10 KM/WC 0.05 KAMAR TIDUR +0.10 KAMAR TIDUR +3.10 RUANG KELUARGA +3.10 BALKON +3.10 TERAS +0.10 TAMAN ±0.00 HALAMAN DEPAN ±0.00 NAIK TURUN TAMAN ±0.00 LANTAI 1 LANTAI 2 A A B’ B
TAMPAK SELATAN TAMPAK UTARA TAMPAK BARAT TAMPAK TIMUR POTONGAN A-A’ POTONGAN B-B’

STUDIO DESAIN ARSITEKTUR 3| 2019

Mendesain sebuah galeri National Geographic yang berada di Embung Tambakboyo yang memiki kontur curam.

Galeri ini didesain agar pengunjung bisa melihat karya yang ada pada museum kemudian membandingkannya dengan apa yang ada di alam sekarang ini.

NAT GEO
CLASS

Alam Tambang Prakasa +62 815 17260014 alamtambangp@gmail.com

Turn static files into dynamic content formats.

Create a flipbook
Issuu converts static files into: digital portfolios, online yearbooks, online catalogs, digital photo albums and more. Sign up and create your flipbook.