Portfolio - Akhilesh Ahuja

Page 1

AkhileshAhuja akhilesh_ahuja@yahoo.ca

AKHILESHAHUJA

Architect,OAA,LEED

416-268-8585

akhilesh_ahuja@yahoo.ca

Withcommitmenttopursuitofdesignexcellencedeliveredwithtechnicalexpertise,Ihavebeenabletorealizethedesignintentfrom conceptualthroughconstructionphasesoftheprojects.AquesttomaintainadelicatebalancebetweenArtistic,BuildingScienceand ManagementaspectofArchitecturalpracticehasbeenmyfocus.

SOFTWARE

CAD Photoshop

Ms-Office Illustrator

REVIT

BIM360

Navisworks

EDUCATIONBACKGROUND

BachelorofArchitecture, MITIndia

CurrentlyPursuing

1991-1996

BuildingScienceSpecialistofOntario(BSSO) designation

PassiveHouseDesignerCertification

VOLUNTEER

HabitatforHumanity

ArtGalleryofOntario(AGO)

WORKHISTORY

Senior Architect,ProjectManager

ZeidlerArchitecture,Toronto

Architect,ProjectManager

WZHMArchitects,Toronto

Architect

TurnerFleischerArchitects,Toronto

Architect

QuadrangleArchitects,Toronto

InternArchitect

G+CArchitects,Mississauga

InternArchitect

LINEArchitectInc.,Toronto

Designer

PARISKitchens,CameoFineCabinatery,HomeDepot.,Toronto

Designer,ProjectManager

VijayRewalArchitects,NewDelhi,India

2022toCurrent

2018to2022

2015-2017

2009-2015

2005-2009

2004-2005

2002-2004

1996-2002

CONTENTS

ZEIDLER ARCHITECTURE, TORONTO

Block 2 Redevelopment Project, Ottawa (CollaborationwithDavidChipperfieldArchitects,London,UKandZeilder)

Science Building, Toronto Metropolitan University, Toronto (CollaborationwithHenningLarsenArchitects,DenmarkandZeidler)

WZMHARCHITECTS, TORONTO

MacDonaldBlockReconstruction,Toronto–P3Project

Client:Infrastructure Ontario

Repositioningof33BloorSt.East,Toronto

LobbyRenovationsat95WellingtonStreetWest,Toronto

T3BaysideEast,Toronto–MassTimber Office Building

65KingStreet East, Toronto–18StoreyOfficeTower

TURNERFLEISCHERARCHITECTS,TORONTO

WhiteHausCondominiumTowers,Toronto

DownsviewParkLuxuryTownhousedevelopment-3&4Storeys

Freeholdtowns,Toronto CollierCentre,DowntownBarrie

QUADRANGLEARCHITECTS, TORONTO

StudioonRichmond,DowntownToronto (MixeduseResidential/Commercial/Retail)

AdaptiveReuse –Groundscraper Loft OfficeBuildings, Waterloo

2221YongeStreet,Toronto–60StoreyResidential

4StoreyWoodConstruction–Residential,HotCondos,Mississauga

CorktownCondos,Toronto&CityCentreCondominiums

GRAZIANI+CORAZZAARCHITECTS, TORONTO

LEEDNeighbourhoodDevelopment–MetroGate,Toronto

ParcNuvo–Etobicoke,Toronto–36StoreyResidential High Rise Residential,Etobicoke,

TorontoLowRiseResidential–RegentPark,Toronto

LowriseCommercial–Live/Work,Toronto

VRAARCHITECTS,INDIA

CorporateOfficeandGarmentFactory,India.

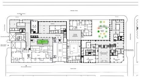
EXISTING -BLOCK 2 VIEW FROM PARLIAMENT PROPOSED TRANSFORMATION OF BLOCK 2 ALONG WELLINGTON STREET Collaboration with David Chipperfield Architects, London, UK and Zeilder
PLANBLOCK 2 SECTION –EAST AND WEST BLOCK
BLOCK
2 SITE
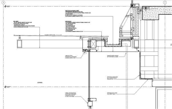
ENTRANCE CANOPY CollaborationwithHenningLarsenArchitects,DenmarkandZeidler AUDITORIUM SEATING -BLEACHERS ManandWoman,LOUISARCHAMBAULT MARMORAMarbleFloors Book-matched, Grey BANCROFT GRANITEwalls OrnateColonnadeSoffit 900BAYSTREETENTRANCE
1.7millionsquarefeetOfficeSpace,$1.5billionContract value
2StoreyPodium,Hearst,Mowat,Hepburn&FergusonTowers
WinnerofArchitectureMasterPrize(AMP)DesignoftheYear 2021 Award
BLEACHERDETAIL

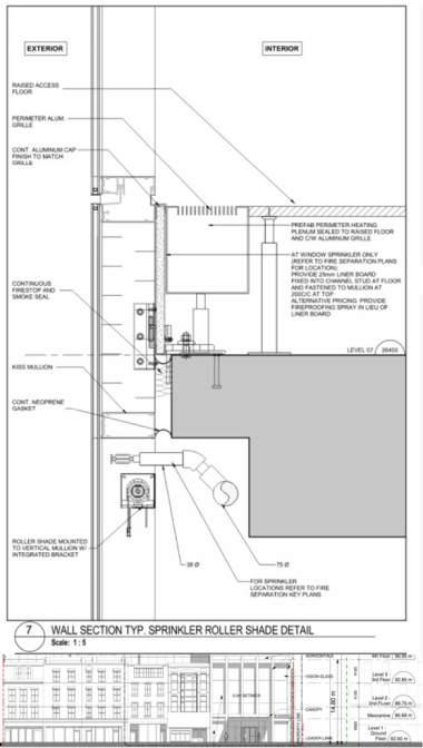
Massingincludesstackedcubeswith cascadingbalconiesheldtogetherbyaspire elementonallfoursidesandangledmullions alternatingbetweencubestocreateadistinct dancingpatternoncornersoftowerelement. FaçadeisjuxtapositionofthePrecastconcrete,

windowwall,curtainwall,Aluminiumcladding

31and41StoreyMixedUse StudioonRichmond,DowntownToronto

Twolongground-scrapper,one-storeybuildingsfeatures loftofficeswith18footceilingsandflexiblespaceswith lotsofdaylight.Theenvelopeturnedouttobedivided intomodularbrickbays.Aluminiumcompositepanel bandwerearrangedinathreecolourpixilatedpattern.A contrastingsilvercolour,aluminiumpanelclad,light ledgefeaturerunsacrossthesouthfaçadewrapping aroundthe50feetglasssignage.

ReadaptiveUse-GroundscraperLoftOfficeBuildings

580WeberStreetNorth,Waterloo
1 SectionDetailatEntryCanopy A653 SCALE:1:10 60StoreyMixeduse-ResidentialRetailOffice 2221YongeStreet,Toronto–60StoreyResidential
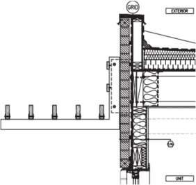
4StoreyWoodConstruction-Residential HotCondos,Mississauga 3 SectionDetailatBalcony A651 SCALE:1:10 4 SectionDetailAtTerraceDecksandGuards A652a SCALE:1:10
8and17StoreyMixeduse-ResidentialCommercial
CityCentreCondominiums,DowntownKitchener.
CorktownDistrictCondos,Toronto
LEED Neighborhood Development - MetroGate
Shadow Study- March 21st Exterior view Site Plan
36 Storey Residential
Partial Floor Plan
High rise Residential - Etobicoke
selection
Material Elevation- Lakeshore
Blvd
Site Layout
Low rise Residential - Regent Park Regent Park Townhouse Development Walkable Community Elevations Partial Plan
Low rise Commercial - Live/Work
Courtyard View
Street Facade( Live/work units) reflecting the Character and Proportion of the Residential facade on the opposite side Site Layout Suite Layout
Corporate Office and Garment Factory - India
Corporate Ofiice Corporate Ofiice- Interior

Turn static files into dynamic content formats.

Create a flipbook
Issuu converts static files into: digital portfolios, online yearbooks, online catalogs, digital photo albums and more. Sign up and create your flipbook.
Portfolio - Akhilesh Ahuja by Akhilesh Ahuja - Issuu