Portafolio

Page 1

UPC // FACULTAD DE ARQUITECTURA/ CARRERA ARQUITECTURA

PORTAFOLIO & COMPENDIO

PROYECTOS PERSONALES

ERIKA AKEMI MAESAKA QUIPUZCOA

ESTUDIANTE DE ARQUITECTURA

Código upc

201810475

Correo electrónico akemimaesaka270@gmail.com

Teléfono

PERSONAL EDUCACIÓN

Primaria Secundaria

945751978

Superior Colegio Saco Oliveros Colegio Saco Oliveros

UPC Facultad de Arquitectura

INTERESES

Música Fotografía

Deportes Viajes

IDIOMAS

Español

Francés Inglés

Chino Portugues

HABILIDADES DIGITALES

Autocad

Photoshop

Indesing

Skecthup

Revit Lumion

2 3

LIMA - PERÚ

CONTENIDO

05 - INTEGRACIÓN

- Proyecto inspirado por cuadros artísticos

02 - ARQUITECTURA Y FUNCIÓN

- Edificio mixto en Centro de Lima

06 - ARQUITECTURA Y CIUDAD

- Edificio residencial en Miraflores

03 - ARQUITECTURA Y MEDIO AMBIENTE

- Vivienda social en Huancayo

07 - EJERCICIO PROFESIONAL

- Centro de Investigación en Pacaya Samiria

04 - ARQUITECTURA Y CONSTRUCCIÓN

- Edificio mixto en San Isidro

- Biblioteca y centro comunitario

08 - EJERCICIO PROFESIONAL

- Centro de salud mental en Villa el Salvador

4 5

- ARQUITECTURA Y ARTE

PROYECTO: Maqueta inspirada en cuadros artísticos

AUTOR: Erika Akemi Maesaka Quipuzcoa

AÑO: 2018 - 02

6 7 01

CONCEPTO

El proyecto se basó en el arte abstracto y como se relaciona con la arquitectura. Su representación se basa en como las personas piensan a través de diferentes circunstancias, por lo cual las líneas se encuentran superpuestas y se dirigen hacia varios sentidos. Por otro lado, se relacionaron dos dibujos, los cuales tienen un mismo significado, pero diferente representación. Se puede apreciar dos siluetas, en donde el espacio blanco del medio representa la posibilidad de que podamos cambiar los pensamientos de alguien más.

CORTE

8 9

VISTA EXTERIOR

El proyecto resaltó parte fundamental de la superposición de elementos, los cuales formaban espacios interesantes, tomando en cuenta la iluminación y las sensaciones que se querían transmitir a través de los espacios. Se puede observar como se maneja la forma en la que se emplean los planos horizontales tanto como los verticales, apreciando la complejidad de los pensamientos por parte del concepto.

Una parte importante del proyecto son los espacios interiores, los cuales se pueden ver iluminados y a su vez se logra apreciar una superposición de los diferentes planos, los cuales van formando espacios pensados a través de la complejidad mental. Se crea una relación interior- exterior generando vacíos y entradas de luces, esto gracias a los desniveles que se crean por los planos, para que el proyecto siga siendo interesante y tenga una buena espacialidad.

10 11

ARQUITECTURA Y FUNCIÓN

PROYECTO: Vivienda en Miraflores

AUTOR: Erika Akemi Maesaka Quipuzcoa

AÑO: 2019 - 02

12 02 -

PLANTA 1ER NIVEL CORTE

14 15

VISTAS DEL PROYECTO

Los espacios del proyecto estan pensados para mejorar las visuales, esto debido a que se cuenta con tres bloques, para esto se tiene dos plazas pequeñas que ayudan a mejorar el ambiente y el recorrido de las personas visualmente. Por otro lado, los espacios compartidos se encuentran abiertos para así tener un mejor manejo de la iluminación y de la ventilación de los bloques de vivienda.

Este proyecto cuenta con dos entradas principales, las cuales dan a una pequeña recepción para las personas que viven ahí, cuenta con una entrada al sótano para el estacionamiento y distintas áreas de zonas verdes o de vegetación para una mejor estética

También se planteo contar con barandas de vidrio para mejorar la visual de las personas, ya que en su mayoría todo el proyecto fue pensado para hacer sentir bien al usuario. El proyecto se basa en ser abierto y contar con buena iluminación y ventilación.

16 17

ARQUITECTURA Y MEDIO AMBIENTE

PROYECTO: Centro de Investigación en Pacaya Samiria

AUTOR: Erika Akemi Maesaka Quipuzcoa

AÑO: 2020 - 01

18 19 03
-

CONCEPTO PLANTA

El inicio del proyecto se basa en descomponer un animal característico de la zona (Pacaya Samiria), la cual es la iguana de cabeza roja, de ahí se fue sacando y poniendo como concepto principal su forma larga para proyectar el centro de investigación, esto para poder jugar con su forma y crear cierto escalonamiento a través de los diferentes puntos dependiendo de las visuales. Para esto se tiene en cuenta también la topografía del lugar, lo cual ayuda para poder evitar una mayor tala de árboles, haciendo del proyecto una carga útil en vez de comprometerlo a la deforestación.

Siguiendo con el concepto principal de descomposición de un animal, se forman cuatro sectores que son puestos de forma pensada para las visuales y la ventilación, dependiendo de las funciones de cada sector y del recorrido que se dará desde el lago. Gracias a esto se logra un buen recorrido para los visitantes, investigadores y pobladores, que cuentan con distintos espacios y utilidades.

Por otro lado, se proporciona un buen desplazamiento guiado hacia los sectores sin perder la forma característica de la iguana de cabeza roja como concepto principal.

20 21
22 23 CORTE

VISTAS EXTERIORES

Los espacios estaban pensados para mejorar las visuales dentro del proyecto, teniendo en cuenta la visual del lago recreativo, ya que se considera una buena vista para los visitantes y los investigadores.

Por otro lado, los espacios se encuentran a un nivel mayor del suelo para así evitar problemas con los posibles animales y por si el río sube su nivel; también dependio mucho de las visuales por el cual la mayoría de los espacios que dan hacia el lago son abiertos.

Se puede observar el recorrido por el cual pasa el peatón a través de su llegada del río, teniendo principalmente a los espacios comunes, en los cuales pueden estar los habitantes de la misma zona con los visitantes.

También se hizo uso total de la madera para que el proyecto pueda tener una relación más sólida con el entorno, ya que en su mayoría todo el proyecto fue pensado con materiales del lugar. El pryecto se basa en ser abierto y con zonas flexibles, teniendo en cuenta que nunca se pierda la visual del río.

24 25

- ARQUITECTURA Y

CONSTRUCCIÓN

PROYECTO: Edificio Mixto en San Isidro

AUTOR: Erika Akemi Maesaka Quipuzcoa

AÑO: 2020 - 02

26 04

CONCEPTO

Se toma en cuenta principalmente las visuales que tiene el proyecto frente a su entorno, por el cual se planteó un escalonamiento que resalte lo horizontal para permanecer siempre viendo los alrededores del lugar.

Por otro lado, se resalta la parte del proyecto que se pensó para generar espacios urbanos libres, las cuales consisten en tener vacíos amplios en algunos puntos para generar diferentes sensaciones en todo el proyecto.

RELACIÓN CON EL ENTORNO

Las flechas que salen hacia el exterior del proyecto indican como es que dentro del proyecto puedes dirigirte hacia afuera teniendo en cuenta unas vistas directas. Los nodos ubicados de forma circular y en los extremos del proyecto indican un mayor flujo peatonal, donde se planeo unas plazas mayores para la cantidad de personas y que se sientan atraídas hacia el proyecto. Finalmente, las flechas que van hacia el proyecto indican los espacios dejados que se tomaron en cuenta para la circulación y el tránsito de las personas.

De acuerdo al proyecto, se dio a conocer el principio de como se podría ver la parte del parque y el proyecto, teniendo la conexión hacia el proyecto mas llamativa e interesante, por el cual se planteó espacios a los costados y en el centro desniveles que ayuden a visualizar el proyecto debajo del nivel 0, esto para tener en cuenta los desniveles y no tener un proyecto plano.

28 29

PLANTA SÓTANO

PLANTA 1ER PISO

30 31
32 33
CORTE

VISTAS EXTERIORES

El proyecto tiene como principal objetivo formar plazas urbanas, las cuales se plantean para mejorar la zona y las visuales de los edificios cercanos, por ese motivo se tiene controlado los niveles del edificio y se encuentra escalonado. Por otro lado, el proyecto cuenta con lugares debajo del 0.00 para un mejor aprovechamiento del terreno.

Mayormente las plazas se encuentran en los niveles altos para que esto genere una mejor vista de la ciudad, esto para que el edificio sea llamativo. Tiene una bajada que da hacia la parte del parque, lo cual es una conexión con el edificio mixto que se encuentra a un nivel de -5.00 metros.

Finalmente, el proyecto se encuentra rodeado por plazas principales, que te invitan entrar al edificio.

34 35

05 - TALLER DE INTEGRACIÓN

PROYECTO: Edificio Mixto en Centro de Lima

AUTOR: Erika Akemi Maesaka Quipuzcoa

AÑO: 2021 - 01

36

CONCEPTO

Principalmente, el proyecto se basa en tener una conectividad con el entorno, se planteó entradas en los puntos donde se genere un mayor tránsito peatonal, las cuales daban hacia las entradas más abiertas, colocando así unas plazas principales que te inviten hacia el proyecto, lo cual ayudaría para contribuir y mejorar la conexión con el entorno.

Por otro lado, se pensó en la relación de las entradas principales que genera el mismo entorno para guiar el proyecto, esto ayuda a que tome su forma y pueda ser funcional, teniendo en cuenta los flujos peatonales, la espacialidad y la iluminación.

Finalmente, el proyecto es flexible, debido a que no es una masa solamente, sino que se crea una dinámica.

38 39
PLANTA 1ER PISO
40 41 CORTE

VISTAS EXTERIORES

Respecto al proyecto se considera las visuales externas e internas, esto debido a que tiene áreas donde los usuarios se expresarían mejor en espacios más flexibles y dinámicos, se plantea tener un juego de elementos verticales que ayuden a generar una fachada dinámica y que no todo sea un muro entero. Por otro lado, el proyecto cuenta con diferentes niveles para poder relacionarnos con su entorno.

El las partes interiores se priorizo tener espacios abiertos con una plaza que genere una sensación de tranquilidad, esto debido a que ayuda en mejorar el desplazamiento de las personas para los distintos lugares, gracias a esto se plantearon áreas verdes y una zona de estar que fomentan que el proyecto sea visualmente funcional y estético.

42 43

- ARQUITECTURA Y CIUDAD

PROYECTO: Vivienda social en Huancayo

AUTOR: Erika Akemi Maesaka Quipuzcoa

AÑO: 2021 - 02

44 06

PLANO DE UBICACIÓN

Respecto al proyecto se encuentra ubicado en Huancayo, donde se eligió trabajar en el cuadrado rojo, el cual sería nuestra manzana para desarrollar un diseño urbano y una vivienda social. Esto ayudaría a poder entender las posibilidades y normas que se deben seguir para ver un proyecto de escala urbana, por el cual se hizo una análisis y se plantearon diferentes puntos para las ciclovías y los espacios con más áreas verdes.

PROPIEDADDETERCEROS VIVIENDARESIDENCIAALTA ALT.MAX. PISOS

Luego de ver las diferentes posibilidades y mejores lugares para plantear las cosas, se propuso un avance para poder ver como podría desarrollarse el proyecto urbano, teniendo en cuenta que se genere una buena fluidez y pueda ser eficiente para los habitantes de la zona. Por el cual se van planteando ciclovías, una mejor iluminación, lugares de estar y áreas verdes.

PROPIEDADDETERCEROS VIVIENDARESIDENCIAALTA ALT.MAX.8PISOS

COMERCIOALT.MAX3PISOS

LOTEINTERVENIDO VIVIENDARESIDENCIAALTA ALT.MAX.8PISOS

COMERCIOALT.MAX

COMERCIOALT.MAX PISOS

COMERCIOALT.MAX

COMERCIOALT.MAX3PISOS

Se toma en cuenta que en el diseño urbano hay mobiliario escencial que es necesario, por el cual se señalan cuatro diseños para poder continuar con el proyetco urbano, que ayudará a mejorar el entorno donde se encontrará el proyecto de vivienda social. Por esto, se presentan las medidas y dimensiones que se usan en el proyecto para dar un mejor conocimiento en el desarrollo.

CONCRETO ARMADO TIERRA .15 .60 .90 .30 TALUD CESPED .12 .03 BRUÑA TERRENO CON ABONO PNK. -1/3 PROPIO MEZCLA: DESCOMP. -1/3 TIERRA DE CHACRA -1/3 GUANO ARBUSTOS FLORES .90 1.00 9.00 0.07 0.12 0.60 REGISTRO EN TUBO DE 3"Ø EXT ESP. PROMEDIO 0.210 PLACA BASE 0.195 0.30 0.195 0.30 Placa Barrenos 11 16"Ø para tornillos std. Ø Poste Poste 4 Barrenos 11 16"Ø para tornillos std. Ø 0.30 0.16 0.03 Placa Cartabon esp. 2.30 0.68 0.68 2.30 CONCRETO BASE DE METAL PINTADO ANILLO DE POSTE DE Ø 2" DE Fe. GALVANIZADO TUBO Ø11/2" . TAPA BASURERO Ø 0.49 BASURERO METAL e=1/4" Ø0.50 PINTADO 46 47
MOBILIARIO URBANO
ZONAS VERDES ARQUITECTURA CIUDAD TVIII VIENTO SE m/s PRECIPITACIÓN 767,9 mm HUMEDAD 55% ESCALA: AR8E SECCIÓN: AKEMI MAESAKA ALUMNA: Mg.Arq. Mauricio Ugarte Mg.Arq. Tanith Olortegui DOCENTES: HUANCAYOJUNIN DECONCRETO DECONCRETO DECONCRETO DECONCRETO DECONCRETO DECONCRETOCOLOR CONCRET DECONCRETOCOLOR DECONCRETO DECONCRETO ADOQUIN ROJIZO ADOQUIN ASFALTONEGRO DECONCRETO
PISOS COMERCIOALT.MAX3PISOS
N
PISOS

DISEÑO URBANO

Tomando en cuenta las medidas y analizando lo mejor para las vías de transporte, se propuso una verma central con áreas verdes y árboles, teniendo en cuenta también los extremos que ayudarían para que las personas que transitan puedan quedarse y formar una vigilancia natural, se ubican las ciclovías en ambos lados para mejorar el desarrollo de las personas respecto a lo físico.

Por otro lado, se propuso luminarias cada seis metros para ayudar a que la zona no se vea peligrosa en ningún momento del día, esto junto a la vigilancia natural, hace del sitio un lugar tranquilo. Finalmente se toma en cuenta las áreas de estar, donde son las bancas urbanas y los parques, que hacen del entorno un mejor lugar para transitar.

48 49

UNIVERSIDAD PERUANA DE CIENCIAS APLICADAS

FACULTAD DE ARQUITECTURA

MONTERRICO

TVIII ARQUITECTURA Y CIUDAD

FECHA: 22 - 11 2021

PROYECTO:

VIVIENDA MULTIFAMILIAR EN HUANCAYO

PLANO:

PLANTA

SEGUNDO

PISO

AKEMI MAESAKA

PROFESORES:

ARQ. TANITH OLORTEGUI

ARQ. MAURICIO UGARTE

ESCALA: 1:100

50 51 PLANTA 1/200 PLANTA 1/100 8,04 0,40 0,40 0,40 0,40 0,40 0,40 8,60 8,60 8,60 8,60 71,35 NPT+/- 0.00 NPT+/- 0.00 DORMITORIO S.H. COCINA EPOXICO DORMITORIO S.H. LAVANDERIA SALA/COMEDOR S.H. DORMITORIO PORCELANATO .60X.60CM LAVANDERIA COCINA PISO EPOXICO .45X45CM SALA/COMEDOR PORCELANATO .60X.60CM DORMITORIO PISO PORCELANATO .60X.60CM DORMITORIO PORCELANATO .60X.60CM LAVANDERIA CERAMICO .30X30CM COCINA S.H. CERAMICO .30X30CM S.H. CERAMICO DORMITORIO DORMITORIO LAVANDERIA S.H. PISO S.H. S.H. PISO COCINA SALA/COMEDOR PORCELANATO LAVANDERIA CERAMICO .30X30CM S.H. DORMITORIO COCINA SALA/COMEDOR PISO PORCELANATO .60X.60CM LAVANDERIA S.H. DORMITORIO LAVANDERIA CERAMICO .30X30CM COCINA SALA/COMEDOR PORCELANATO 6,44 23,1 12,29 25,83 26,87 8,21 22,6 9,2 10,4 10,21 9,22 3,01 0,97 7,51 BANCAS DE MADERA .60 10,21 10,77 S.H. CERAMICO DORMITORIO LAVANDERIA COCINA SALA/COMEDOR 2,73 0,86 1,56 0,81 9,23 6,94 2,22 1,3 2,58 ÁREA VERDE ÁREA VERDE ÁREA VERDE ÁREA VERDE ÁREA VERDE ÁREA VERDE ÁREA VERDE ÁREA VERDE ÁREA VERDE ÁREA VERDE ÁREA VERDE ÁREA VERDE COCINA S.H. CERAMICO .30X30CM LAVANDERIA S.H. NPT+/- 0.00 NPT+/- 0.00 NPT+/- 0.00 LAVANDERIA CERAMICO COCINA EPOXICO .45X45CM S.H. PISO CERAMICO .30X30CM S.H. CERAMICO .30X30CM COCINA SALA/COMEDOR PISO PORCELANATO .60X.60CM S.H. S.H. PISO CERAMICO .30X30CM 11,05 11,05 11,98 PISO MARACAIBO DE MADERA PISO MARACAIBO DE MADERA PISO MARACAIBO DE MADERA PISO MARACAIBO DE MADERA SALA/COMEDOR PORCELANATO COCINA NPT+/- 0.00 PISO DE CAUCHO NPT+/- 0.00 PISO DE CAUCHO NPT+/- 0.00 PISO DE CAUCHO NPT+/- 0.00 PISO DE CAUCHO SALA/COMEDOR PORCELANATO .60X.60CM DORMITORIO PORCELANATO DORMITORIO DORMITORIO DORMITORIO PORCELANATO DORMITORIO PORCELANATO .60X.60CM DORMITORIO DORMITORIO .60X.60CM DORMITORIO DORMITORIO PORCELANATO DORMITORIO DORMITORIO DORMITORIO PISO PORCELANATO .60X.60CM DORMITORIO DORMITORIO DORMITORIO DORMITORIO DORMITORIO DORMITORIO PORCELANATO .60X.60CM SALA/COMEDOR PORCELANATO .60X.60CM SALA/COMEDOR SALA/COMEDOR SALA/COMEDOR PORCELANATO .60X.60CM SALA/COMEDOR SALA/COMEDOR SALA/COMEDOR PORCELANATO S.H. CERAMICO .30X30CM S.H. S.H. CERAMICO .30X30CM S.H. S.H. S.H. PISO CERAMICO .30X30CM LAVANDERIA LAVANDERIA CERAMICO LAVANDERIA LAVANDERIA LAVANDERIA PISO CERAMICO .30X30CM NPT +/- 0.00 VESTÍBULO NPT 0.00 VESTÍBULO NPT 0.00 VESTÍBULO NPT +/- 0.00 VESTÍBULO NPT+/- 0.00 PISO MARACAIBO DE MADERA NPT+/- 0.00 PISO MARACAIBO DE MADERA NPT+/- 0.00 PISO MARACAIBO DE MADERA NPT+/- 0.00 PISO MARACAIBO DE MADERA NPT+/- 0.00 PISO MARACAIBO DE MADERA NPT+/- 0.00 PISO MARACAIBO DE MADERA NPT+/- 0.00 PISO MARACAIBO DE MADERA NPT+/- 0.00 PISO MARACAIBO DE MADERA 0.90 2.10 2.10 BANCAS MADERA .60 BANCAS DE MADERA .60 COCINA S.H. CERAMICO SALA/COMEDOR LAVANDERIA .30X30CM SARDINEL H=0.15 SARDINEL H=0.15 SARDINEL H=0.15 SARDINEL H=0.15 SARDINEL H=0.15 SARDINEL H=0.15 SARDINEL H=0.15 SARDINEL H=0.15 SARDINEL H=0.15 SARDINEL H=0.15 SARDINEL H=0.15 SARDINEL H=0.15 SARDINEL H=0.15 SARDINEL H=0.15 SARDINEL H=0.15 SARDINEL H=0.15 SARDINEL H=0.15 SARDINEL H=0.15 SARDINEL H=0.15 SARDINEL H=0.15 SARDINEL H=0.15 ÁREA VERDE ÁREA VERDE 0,98 ARBUSTOS 0,98 0,98 1,56 1,56 1,56 ARBUSTOS 0,98 1,56 1,56 1,56 SARDINEL H=0.15 SARDINEL H=0.15 MURETE DE PIEDRA H=.90 MURETE DE PIEDRA H=.90 ÁREA VERDE ÁREA VERDE 0,62 0,62 0.88 2.10 ESPACIO COMÚN DE INGRESO ESPACIO COMÚN DE INGRESO ESPACIO COMÚN DE INGRESO ESPACIO COMÚN DE INGRESO 0,5 2,15 1,45 1,65 3,34 1,56 3,34 1,65 1,45 2,01 0,5 9,13 0,5 9,13 0,50 18,60 0,50 0,5 2,39 0,5 7,55 0,50 23,85 0,63 8,93 0,50 18,60 1,97 1,99 1,74 2,2 1,07 3,29 1,83 2,03 1,47 2,64 0,66 0,5 0,57 0,5 7,9 0,5 7,42 0,5 0,50 2,11 1,94 3,34 2,38 3,34 1,94 2,11 0,82 0,5 0,5 9,15 0,5 0,50 8,01 0,4 1,51 0,2 0,4 0,2 2,4 1,04 0,44 2,12 2,63 1,78 0,86 4,85 1,43 0,5 8,23 1,5 3,09 7,95 23,85 0,5 0.50 7,19 7,4 2,11 0,5 0,5 22,4 1,55 5,72 0,65 2,73 0,93 1,78 6,34 5,21 0.77 0.77 0.77 2.10 2.10 1.04 2.10 S.H. S.H. PISO .30X30CM S.H. CERAMICO .30X30CM S.H. PISO CERAMICO .30X30CM LAVANDERIA 0 5 10 20 40UPC UNIVERSIDAD CIENCIAS APLICADAS FACULTAD ARQUITECTURA MONTERRICO TVIII ARQUITECTURA CIUDAD FECHA: 06 12 PROYECTO: VIVIENDA MULTIFAMILIAR HUANCAYO AKEMI MAESAKA PROFESORES: ARQ. TANITH OLORTEGUI ARQ. MAURICIO PLANO: PRIMER PISO ESCALA: 1:100 ALUMNO: SEDE: CURSO: LAT 12°04´S LONG 75°13´W ALTITUD 3,249 SOL 6 kWh/m2 17°C OA 2°C OD HUMEDAD 55% PRECIPITACIÓN VIENTO SE 6 m/s SECCIÓN: AR8E G H I J K L M N O P Q R G H I J K L M N O P Q R A A B B C C 2 1 3
RESIDENCIA
2,75 8,81 2,67 1 2 3 4 5 6 7 8 9 13 14 12 11 10 F D E A B C G H I J K L M N O P Q R 15 16 17 18 19 NPT+/- 0.00 NPT+/- 0.00 NPT+/- 0.00 NPT+/- 0.00--6,44ÁREA VERDE ÁREA VERDE ÁREA VERDE ÁREA VERDE ÁREA VERDE ÁREA VERDE ÁREA VERDE ÁREA VERDE ÁREA VERDE ÁREA VERDE ÁREA VERDE ÁREA VERDE ÁREA VERDE ÁREA VERDE ÁREA VERDE ÁREA VERDE ÁREA VERDE ÁREA VERDE
COMERCIO
ALTA
UPC
52 53 CORTE

VISTAS DEL PROYECTO

Respecto al proyecto se considera que las visuales que tienen los usuarios del edificio son buenas considerando que se encuentra en un lugar amplio. Esto debido a que tiene áreas donde los usuarios se expresarían mejor en espacios comunes como el parque que se encuentra al frente. Se plantea tener un juego de elementos vidriados para mejorar en la iluminación dentro del proyecto y generar una fachada dinámica.

El las partes interiores se priorizo tener espacios abiertos con una plaza que genere una sensación de tranquilidad y puedan relajarse en familia o con amigos. Esto ayuda para mejorar el desplazamiento de las personas para los distintos lugares, gracias a esto se plantearon aberturas mas predominantes para el parque y la avenida principal, teniendo en cuenta que el proyecto sea visualmente funcional, estético y que cuente con buenas visuales.

54 55

07 - EJERCICIO PROFESIONAL

PROYECTO: Biblioteca y centro comunitario

ALUMNA: Akemi Maesaka

ARQUITECTOS: Carlos Ramos / Lester Mejía

AÑO: 2022 - 01

56 57

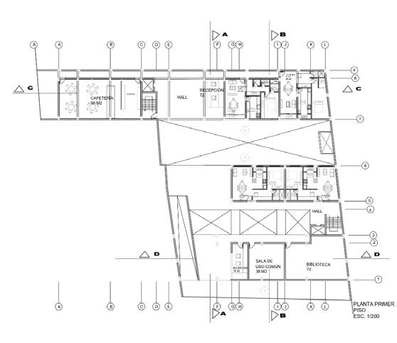
PLANTAS DEL PROYECTO

58 59

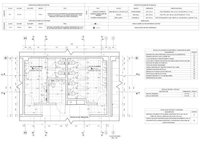
DETALLES DEL PROYECTO

60 61

VISTAS DEL PROYECTO

Respecto al proyecto se considera las visuales externas e internas, esto debido a que tiene áreas donde los usuarios se expresarían mejor en espacios más flexibles y dinámicos, se plantea tener un juego de elementos verticales que ayuden a generar una fachada dinámica y que no todo sea un muro entero. Por otro lado, el proyecto cuenta con diferentes niveles para poder relacionarnos con su entorno.

El las partes interiores se priorizo tener espacios abiertos con una plaza que genere una sensación de tranquilidad, esto debido a que ayuda en mejorar el desplazamiento de las personas para los distintos lugares, gracias a esto se plantearon áreas verdes y una zona de estar que fomentan que el proyecto sea visualmente funcional y estético.

62 63

EJERCICIO PROFESIONAL

PROYECTO: Centro de salud mental en Villa el Salvador

AUTOR: Erika Akemi Maesaka Quipuzcoa

AÑO: 2022 - 02

64 08
-

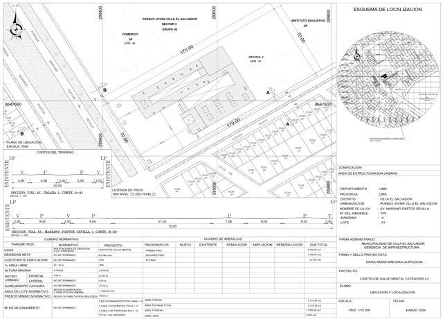
PLANO DE UBICACIÓN Y TRAZADO

66 67

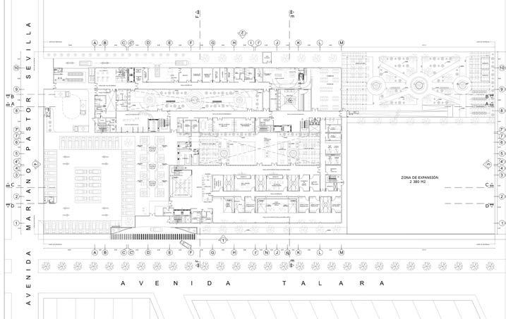
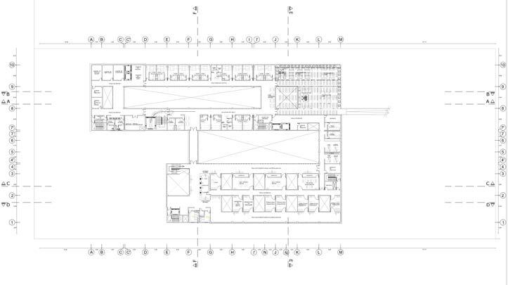
PLANTAS DEL PROYECTO

68 69

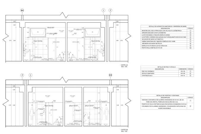
DETALLES DEL PROYECTO

70 71
72 73 CORTE

VISTAS DEL PROYECTO

Respecto al proyecto se considera las visuales externas e internas, donde se integren las áreas verdes junto con los espacios comunes para los pacientes y visitantes, buscando que la arquitectura desarrolle en las personas una estimulación de los sentidos, la espacialidad, los espacios y las sensaciones.

Teniendo en cuenta las aberturas que genera el volumen para los espacios flexibles, se crean accesos de luz importantes para los pacientes, generando también la conexión con el exterior y una mejor estimulación con las áreas verdes, creando patios internos con diferentes actividades para que los pacientes puedan desarrollar distintas habilidades.

74 75

Turn static files into dynamic content formats.

Create a flipbook
Issuu converts static files into: digital portfolios, online yearbooks, online catalogs, digital photo albums and more. Sign up and create your flipbook.