PORTFOLIO
AKANKSHA BHARDWAJ

Selected works B.Arch 2019-24
Architecture | Design | Research
![]()
AKANKSHA BHARDWAJ

Selected works B.Arch 2019-24
Architecture | Design | Research

Hello, I am Akanksha.
The constant lifestyle of seeing new places deepened my curiosty of how the essence of a city’s culture can be captured in a single building. One memorable experience was wandering in Vadodara. Before even knowing the right terminologies, I knew I want to design something that sustains, and sustain the ones that already exist;
To innovate, not alienate.
Participating in competitions with societal impact fueled my growth and refined my interests. I’m confident about my skills in drafting and rendering softwares. My design philosophy centers on empathy,
blending context, culture, and community.
Beyond buildings, I explore landscape, conservation, graphic design, and urban interventions, aiming to create spaces that resonate with people. I am dedicated to finding a firm that embodies honesty and integrity in its work, focusing on real benefits for people and the environment.
This portfolio is a collection of selected works from my archive of architectural experience of five years. Thank you for taking the time to explore my work.

D.O.B.: 10-01-2002
Email id: akankshabhardwaj162@gmail.com
Phone no.: +91 8800258619
Chinmaya Vidyalaya, Boisar, Maharashtra 2008-13
G reenfields Public School, Delhi 2013-19 CBSE (10TH: 9.8 CGPA, 12TH: 70.2%)
A mity School of Architecture and Planning, Amity University, Noida 2019- 2024 (B. ARCH)
6-months internship at Aishwarya Tipnis Architects (December 2022 - June 2023)
• GFCs, as-built and risk management drawings for a residential school project
• Conservation management reports for 2 Haveli projects
• Book design, research and reprographics for SIDBI and Tourism Dept., Govt. of J & K
• Concept drawings & On-site measurements for Design & Technology center and Food & Nutrition Lab in a school building
• Documentation and Research for 2 residential & 2 institutional projects
• Market research, soft furnishings/hardware inventories for a London residence
• Layout redesign, proofreading for 15 Material Manuals about defect and treatment methods
• Industry & vendor management, graphics, typesetting, signage and reprographics
ADDITIONAL ELECTIVE
User Interface Design, facilitated by SWAYAM NPTEL, IIT Roorkee, secured 82% (top 2%)
CO-CURRICULAR
President, Placement Support Committee Secretary, Exhibition Club
Core Member & Social Media Head, Cultural Society
College Ambassador, India Art, Architecture & Design Student Biennale- Samunnati ‘23
Annual NASA Design Competition, Top 24, Post- Pandemic Bus Terminal Design (2020-21)
Louis I. Kahn Trophy, Participation, Detailed Documentation: Connection between the vernacular and the modern (2020-21)
Annual NASA Design Competition, Top 24, Migrant Workers’ Mobile Housing Design (2021-22)
Industrial Design Trophy, Participation, Documentation & Product Design: Craft and Community (2021-22)
Laurie Baker Trophy, Participation, Cohousing Design (2021-22)
Writing Nasa Trophy, Participation, “Role of the Architectural Fraternity in Promoting Social Equity” (2022-23)
CBRI: Bhartiya Pramparik Awas Uthan Award, Documentation, Analysis & Design Proposal for Traditional houses (Ongoing)
Drafting
3D Modelling 3D Rendering Presentation
Others AutoCAD, Revit Revit, SketchUp Lumion, Enscape Adobe Photoshop, Autodesk Sketchbook, Illustrator, InDesign eQUEST, Filmora, Clipchamp
India’s Industrial Heritage: Adaptive Reuse Strategies for Mill Factories
Migrant Worker Housing in India: A search for design problems & recommendations Impact of built heritage in shaping a city’s identity: Indo-Saracenic architecture of Vadodara
(SHORT FILM)
Guides of Last Rites: A Glimpse into Management of Shamshan Ghats

A THESIS PROJECT AISHWARYA TIPNIS ARCHITECTS
URBAN DESIGN




CAMEL GIRTH: PLY-SPLIT BRAIDING

ILLUSTRATIONS, RENDERS, PHOTOGRAPHY
Reviving the City Narrative

THESIS PROJECT IN ARCHITECTURE
December 2023-May 2024
Faculty guide:
Prof.(Dr) Rommel Mehta
This thesis project highlights the link of cultural heritage with placemaking in architecture. The project aims to design a Sociocultural Center that brings together the local community, tourists, artists, artisans, learners and educators.
To restore and explore the potential of Ajmer as a tourist destination, ADA (Ajmer Development Authority), in coherence with City Development and Tourism Department proposes Tourist Facility as per Ajmer Master Development Plan 2033. This thesis project is envisioned aligning with the proposal, alongwith the Smart Cities Mission , AMRUT (Atal Mission for Rejuvenation and Urban Transformation) and HRIDAY (Heritage City Development and Augmentation Yojana) initiatives.









The Museum space is envisoned as an instructive recreation, that feels familiar to the people of Ajmer. A ramped access to the first floor offers a panoramic view of the city, from residential areas to the Aravalli hills and the lake, through arched openings, creating a “live gallery.” The central courtyard provides a relaxing space and an optional exit for visitors. Museum halls are tailored for permanent and temporary exhibits, with careful consideration of height, viewing angles, clear distances, and lighting needs.




Elevated space with a cafeteria on the ground floor and studios above, ensuring that the views of the lake remain unobstructed.

Performing Arts Center: Ground Floor Plan


Auditorium: Ground Floor Plan

Planning grid section


Barrier free shaded access that opens to the grand space towards the lake, massing inspired from forts and gates of Ajmer.








This project tackles urban regeneration, aiming to revive public spaces, ecological health, and the city’s identity. Research exposed social issues, but a key question emerged: Can architecture truly be the sole solution?
In the face of invasive Jalkumbhi threatening Anasagar Lake, the focus became the creation of vibrant community spaces. These spaces would serve as a catalyst – where people of Ajmer can come together, engage, relearn their city narrative and enjoy, chart a path towards a more sustainable future.

URBAN DESIGN
July 2023-November 2023
Faculty guides:
Ar. Sambuddha Sen
Dr. Ritabrata Ghosh
Ar. Preeti Mishra
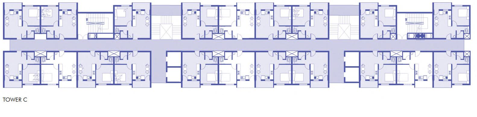
Studio Focus: Principle of Rehabilitation and Augmentation of Housing with Other Housing Typologies and Mixed use: IN-SITU Slum Rehabilitation (ISSR)
The project aims to integrate a new development into the existing urban fabric by understanding the district and city context, establishing connections with surrounding neighborhoods, and adhering to the Delhi Master Plan and building codes. It seeks to create a model for humane, sustainable development through high-density mixed-use design, slum redevelopment, and affordable housing.
Key objectives include enhancing infrastructure, ensuring social equity, and fostering community growth, with a focus on creating Smart Urban Centers.
The studio work was conducted in groups of 4.
WHAT MAKES A GOOD CITY?
WHAT DO THE CURRENT RESIDENTS NEED?
HOW TO ENSURE INCLUSIVITY AND EQUITY?

HOW CAN WE PRESERVE THE SOCIAL FABRIC IN THE NEW DEVELOPMENT?


Proposed Site Plan






“A
design flaw or a design adapted based on the requirements and need of the slum dwellers?”








“Their own idea of community space.”



BUILT- OPEN


LEGEND:

LEGEND:



SCHOOLS
RAILWAY STATIONS
METRO
COMMUNITY SPACES
SHOPPING COMPLEX
PUBLIC TOILETS
POLICE STATION
ESS
STP
OPEN CHANNEL FLOW
YAMUNA CANAL
VOTER’S CENTER
TEMPLES
CREMATION GROUND
TPDDL OFFICE


LEGEND:

LEGEND:


OPEN GROUNDS AVENUE
RAILWAY

SITE AXONOMETRIC VIEW

SLUM DWELLERS
LOCAL INHABITANTS
TRANSIT COMMUTERS
COMMERCIAL STAFF AND VISITORS
RESIDENTSREMUNERATIVE
PRIMARYSCHOOLPARKING IPT PLACERELIGIOUSCOMMUNITY CENTER CLINICMOHALLA HOUSING
2BHK + STUDY OFFICES RETAIL SOCIAL SPACES GREEN AND OPEN
LOCALURBANPLAZA MARKETS
CLUB/LEISURE ACTIVITIES
Defining possible connections between functions through logical Space Syntax Algorithm



Section through residential and remunerative components on site


Section from metro to remunerative building on site
Section through residential component on site




Sample attached:
600mmx600mm White Acoustic
Optra ceiling panels as per sample approved. Ref img. 2
White Acoustic wooden panels as per sample approved Ref img. 1
Upright piano as per sample approved
150mmx30mm thk. Timber skirting as per design finished in white paint as per sample approved.
Carpet flooring as per sample approved
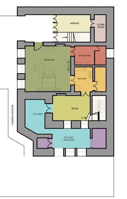
CONSERVATION MANAGEMENT REPORT: AGRA HAVELI Sample attached:









RESPENDENT KASHMIR COFFEE TABLE BOOK FOR SIDBI AND GOVT. OF J&K

VERDUN HOUSE, MUSSOORIE: Documentation












UNISON WORLD SCHOOL, DEHRADUN: Concept drawings & On-site measurements for Design & Technology center and Food & Nutrition Lab Sample attached:






LONDON HOUSE: Market research, soft furnishings/hardware inventories Sample attached:





WOODSTOCK SCHOOL, MUSSOORIE: Signages: Fire Evacuation plans and Emergency Procedures Sample attached:



“Separate








Interlacing strand after strands, The man works hard with his bare hands. A craft long disfranchised from the locals, An art that has been long forgotten.
Living through the tales of times, Sacred whispers, stolen smiles.
Strand above strand, a pattern emerges. In the deep dusty desert, the camel surges. Tied around their tanned brown skin, Is the traditional craft of the Ply Split.
Adorning their body like a shringaar, They float through the lanes of the busy bazaar.
Strand over strand, a new life is born, Days are getting darker; the craft is forlorn.
As all the aborigines have long forsaken, The time-honoured craft that was once akin. But the ones that stayed have graced their artistry, Placing strands over strands wholeheartedly.













Evolving Camel Girth into a new phase of life, “TWOPHASED” product line consists of solutions catering modern needs with its two-faced feature.
With its reversible technology, this “CAMEL-EON” like superpower goes with every outift, maing them your best travel buddies!

























POST PANDEMIC BUS TERMINUS: POSTER









“. . . Practice any art, music, singing, dancing, acting, drawing, painting, sculpting, poetry, fiction, essays, no matter how well or badly, not to get money and fame, but to experience becoming, to find out what’s inside you, to make your soul grow.”

AKANKSHA BHARDWAJ
Thank