




![]()






Yogyakarta,11Oktober2001

@ajihsda




+6282253159492 ajialmubarok95@gmail.com
AdjieHusada +6282253159492
SKILL:
•Sketchup
•AutoCad
•Enscape
•Twinmotion
•AdobePhotoshop
•Canva
•Ms.Office

SeoranglulusanteknikArsitekturyangmenyukaitantangandanmengeksplorhal-halyangbaru.Aktifdalammengikuti organiasisertamengikutikompetisiberbasisdesainarsitektural.Pernahmengikutimagangdisalahsatuinstansi pemerintahsebagaipelaksanadanpengawasdenganpengetahuanmateriallangsungkelapangan.Pernahmenjalankan beberapaproyekdenganpertimbanganmaterialterhadapproyekyangdipertimbangkan.
PENGALAMANORGANISASI
HimpunanMahasiswaArsitekturFTULM|Banjarmasin,Indonesia(2021–2023)
•KoordinatorDivisiKerohanian
PENGALAMANKERJA
RumahSakitUmumDaerahUlinBanjarmasin|Banjarmasin,Indonesia(2019–2020)
StaffAdministrasiUmum
KementrianPekerjaanUmumdanPerumahanRakyat|Bandung,Indonesia(2023)
MagangdiBidangPelaksanaandanPengawasan
PENGALAMANLOMBA
Juara1SayembaraUmumNasionalTitikTemuUMBJM|Banjarmasin,Indonesia(December2022)
MerancangShelterTanggapBencana
RIWAYATPENDIDIKAN
•UNIVERSITASLAMBUNGMANGKURAT|Banjarmasin,Indonesia(2020-2024) MahasiswaS-1TeknikArsitektur|IP3.55/4.00
•SMAN1BANJARMASIN|Banjarmasin,Indonesia(2016-2019) IlmuPengetahuanAlam

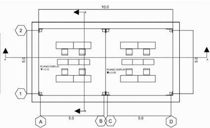
PasarDesaMurungKeramat,BaritoKuala,KalimantanSelatan,Indonesia.MerancangsebuahKawasan ekonomi,berupapasardesayangkontekstualdenganlokasisite,untukmeningkatkanstatusdesa.

StudioPerancanganArsitektur4|Februari2022






























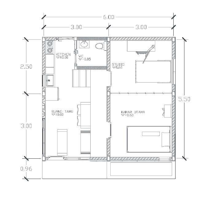
CompactHouseKayuhBaimbai,Banjarbaru,KalimantanSelatan,Indonesia.Merancangsebuahrumah sehat,murahdanmultifungsi.Dikonsepkandenganfokuskepadaseorangmanusiamuda.

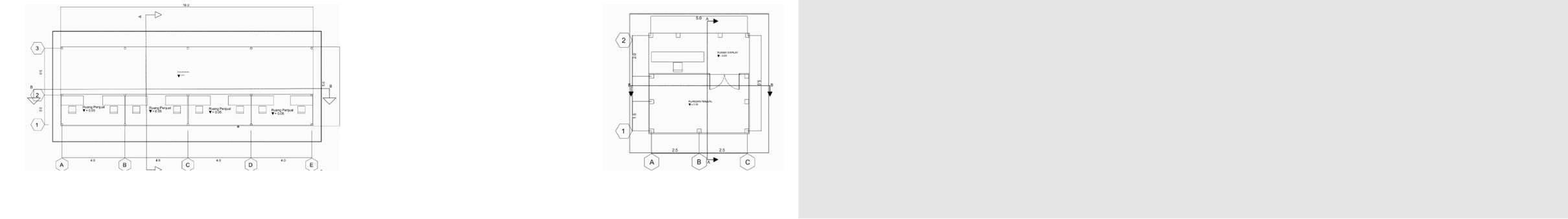
SayembaraHapernas2022|Oktober2022

ANALISISEKSTERNAL



AKTIVITASSTUDIO
AKTIVITASDAPUR
AKTIVITASKAMAR













-HOUSE
SayembaraViridiIndonesia|November2022



TinyHousewithFoodSecurity,Banjarmasin,KalimantanSelatan,Indonesia.Merancangsebuahrumah compact,beruparumahkecilyangmempunyaisistemketahananpangan.

DESKRIPSIPROYEK KONSEP
KONSEPVERTIKULTURE









PERSPEKTIF






ShelterBarasukLindung,Banjarmasin,KalimantanSelatan,Indonesia.Merancangsebuahfasilitas(shelter)tanggapbencana yangbersifatfleksibelsaatterjadibencana.Fokusrancanganinimenargetkanpascabencanadikawasanpadatpenduduk.

PROBLEM

SOLVING


DESIGNSTRATEGIES


PERSPEKTIFATAPWARGA PERSPEKTIFAIR

PERSPEKTIFDARAT

StudioPerancanganArsitektur5|Desember2022



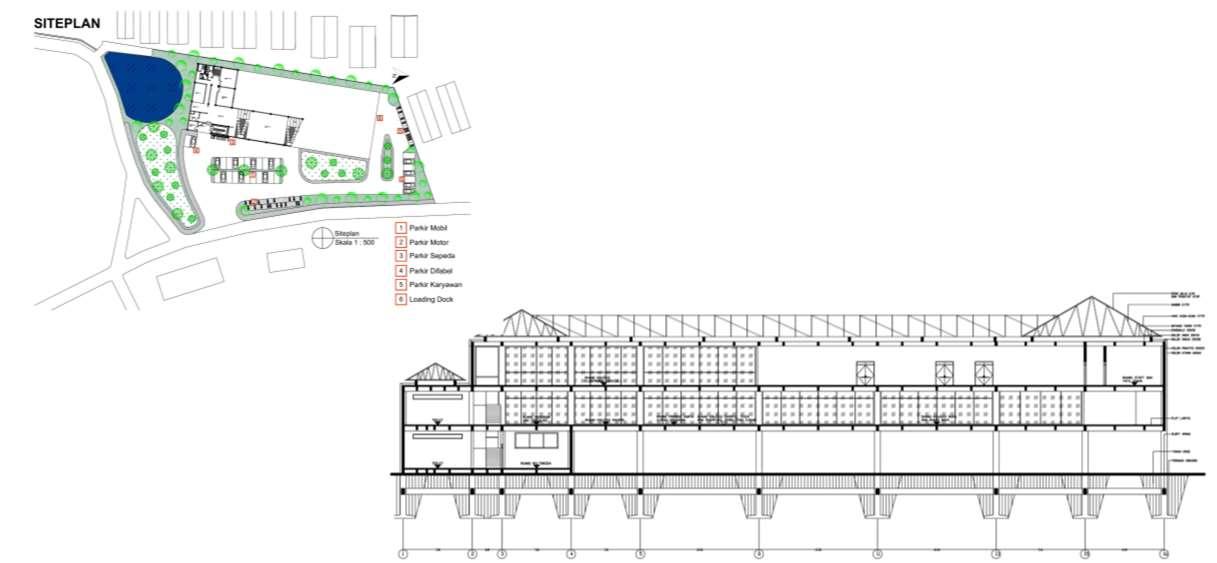
PerpustakaanUniversitasLambungMangkurat,Banjarbaru,KalimantanSelatan,Indonesia.Merancangsebuahfasilitas perpustakaanperguruantinggidengantujuanmenunjangdanmendukungkegiatanpendidikanuntukskalauniversitasatau skalayanglebihluas.

UNIVERSITASLAMBUNGMANGKURAT
PROBLEM









PERSPEKTIF

Sebuahrancanganperpustakaanyangdapatmemfasilitasikebutuhanliterasiuniversitas denganmemperhatikanperformabangunanuntukkeramahanlingkungandankenyamanan bagipenggunanya.Rancanganiniberfokusmeresponisudanpotensilingkungankemudian memanfaatkannyapadakonseprancangan.






TugasAkhir|Juni,2024



PerancanganKawasanMuseumWasaka,Banjarmasin,KalimantanSelatan,Indonesia.Merancangsebuahkawasansekitar museumwasakabersertafasilitasnyatujuanmenunjangdanmendukungkegiatankonsevasidanpariwisatauntukskala kawasanyangmengandungbangunancagarbudayadidalamnya.










PERSPEKTIF




Sebuahrancangankawasanmuseumyangdapatmemfasilitasikebutuhankonservasidan pariwisatadenganmemperhatikanadaptasidanpengembanganpadakawasannyasendiri. Rancanganiniberfokusmeresponlatarbelakangdanpermasalahanyangkemudian diselesaikanpadaprosesperencanaannya.









MUHAMMADADJIERAHARJAHUSADA
ajialmubarok95@gmail.com
+6282253159492 28/Agustus/2024

