AINNA SABRI ARCHITECTURE PORTFOLIO STUDENT 2023

Page 1

Ainna Sabri Potfolio | Student

Table of Contents

13 TransitionSpace

Restingand observation area.

2 Teratak Mahakarya VacationHouse.

MartialArt Centre Physicaleducation and Learning

MeditationCente Crystalhealing centre.

Child Development Centre

456

Childhoodeducation and Learning

Postgraduate Residence

ResidentialforUKM Potgrraduate

2

Skyrise-TransitionSpace

Space

Project Proposal

Skyriseis located at BrogaHill, Semenyih,Selangor. The rhythm of Freedom has been chosen for this project. The user of this project are basically the hikers The user can experience the180 degrees of unobstructed view of the city from the top of the hill. The material used is shot blasted concrete . Concrete was chosen to reflect the local stone.

The design was inspired based on the spirituality concept which created complete harmony between “body, mind ,spirit”. These qualities promotes balance &wellness. The function is toconnecthuman with nature .Thus responds to the site as a meditation space. The important criteria , Anthropometric, comfort & interaction between human & nature has taken Into the account

DESIGN 2 Transition

Lampau-TeratakMahakarya

Character “LAT”

Latcharacter is very simple, ambitious and a passionate man. He also very humble and responsible person with an adventurous side. He is very expressive person.Helikes The Beatles and know how to play the piano. Beside his career as a cartoonist, screenwriter, he’s also an Environmentalist and wanted to promote Perak as a tourism destination.

Project Proposal

Lampauis a lodge masterpiece for the famous cartoonist Lat“ kampungboy”. The theme of rhythm is used in this design from the scattered marble surface found in GuaTempurung. This lodge works as a space for Latto create hi s work. Besides, the space is able to generate inspiration and positive vibe to the user. This design was inspired by his childhood house which is malay vernacular house in Gopeng, Perak and based on his memory of kampunglife and his passions in music and art.

ESGRIMA-MartialArtCentre

Project Brief

Martial arts are codified systems and traditions of combat practices , which arepracticedf or a number of reasons : as self-defense, military and law enforcement applications , mental and spiritual development ; as well as entertainment and the preservation of nation' s intangible cultural heritage

This studio focuses on how local culture, history and martial art practices mixes ( or not ?) together to form the life and identity of the local society that we see today. With this understanding, students must develop as strategy to anticipate how architecture can offer a platform to develop local culture progressively without sacrificing their original identity. In other words , I t shall be an architecture piece that speaks to the younger generation while respecting those age-old traditions.

Project Proposal

Esgrimais essentially a Martial Art Centre for fencing that focused on to teach both modern fencing and historical fencing in the same centre. It located at the side of Penang Botanical Garden, PulauPinang.“itis possible to teach historical fencing (Hema) and modern fencing in the same centre.

we are not aware of any centres that do this at the moment , but the possibility is always there. The two are not mutually exclusive and appeal to different sorts of people”. Farhan Goh, assistant instructor ZwaardkringMalaysia. It going to be the first fencing centre that combines both of modern and historical. Besides, provide the educational and the entertainment to the public with thousands of years history

DESIGN3

LandscapeDesign-EN GARDE

EN GARDE is located beside Botanical Garden, PulauPinang. It will be a unity garden that connects fencers and the community with a mix of different cultures to be revitalized. Using open space as a physical framework. This space will become transition space that provide educational and enterainment. The concept aims at enhancing characters within the site.

DESIGN3

ZIRCON-CrystalHealingCentre

DESIGN 4

Meditation Centre

DESIGN 4 Meditation Centre

ZIRCON-CrystalHealing Centre |Interior

Project Brief

The Art of selling –Kiosk Design

This project is about exploring the concept/ idea of architecture so tiny yet shares many of the properties that can create joy. The project is directly connected to the final architectural project.

Project Proposal

Crystalline is a pop-up Kiosk that sells crystal and gemstones jewellery and stones .It promotes and educate public to the crystal healing . This Kiosk is 2.7m width x 2.7m length. The area provide is selling and rest area.

|Kiosk

VITREOUS-ChildDevelopmentCentre

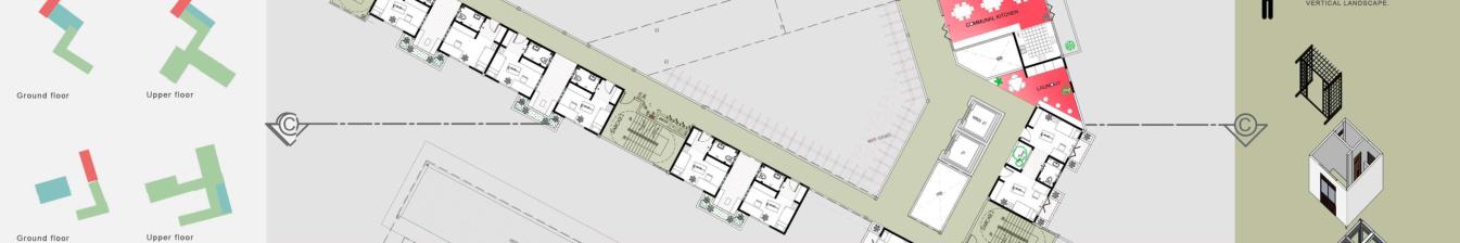
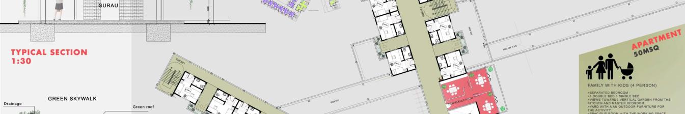
VITREOUSisaChildDevelopmentCentrethatfocusesondevelopingchildcognitiveskill.ThesitelocatedinGombak,Selangorandit takescareof150 children.Informulatingthedesign,theaxisprojectionofnearesteducationalinstitutesitselfbecometheguidancetothedesign toreflectthecommunity andinstitutionalvaluestowardsthecenter.ThecenterproducesacaringandpositivitythroughtheSocial,leadershipskillsandvolunteerism.Itwillbethe firstcenterthatgivestheequityinlearningregardlessofsocialclassanddevelophigh-equalityeducationforyoungchildrenthroughoutbothitsurbanand ruralareas.

Theprogramsincludingthecommunitysupportamongvolunteerandfamilyengagement,education&learning,communitygardenwiththeopenplay area,artandmusicandopenlibrary.Enteringthelobby,childrenfirstdiscoveristhecentraloutdoorplayareasurroundedbytrees,perfectforoutdoor learningactivitiesandplaying.Thecenteriswrappinganoutdoorareaprovidingchildrenwithaconstantvisualandphysicalconnectiontonatureallowing ittobeopenedandclosedtomaintainsafetyforchildren.ThecenterisSubdividedfordifferentlearningandplayactivitiesofvariousageindifference timeschedule.

DESIGN 5 Child Development Centre

Theactivitiesroomisdesignedtobeanopenplanareawherethechildrenwouldbe familiarandfree.Thiswillimprovechildren’sphysicalstrength,attentivenessandself learning.Throughoutthespaces,thechildrencanaccesstotherooftopgardenfromthe centraloutdoorplan.

VITREOUS-ChildDevelopmentCentre|Interior

6
Residence
DESIGN
Postgraduate

DESIGN5RE-HUT

Modelworks

Project Proposal

Re-Hut is a meditation shelter that aim people among Faculty of Engineering and Built Environment students where allow them to contemplate the temples of intuition and psyche. Meanwhile, in cultivating this greater understanding of our inner lives, we move closer to our sense of connectedness to the community which we involved other than that. Re-Hut comes from the meditation of awakening people and faith so that it can confront the unknown state of serene involvement, the simplicity, tranquillity and calmness. Also as conclusion, thisplace provide a connection by the surrounding nature.

TeratakMahakarya Concept model Child Development Centre Full Scale Model TeratakMahakarya Full Scale Structural Model Martial Art Centre Full Scale Structural Model
DESIGNCOMPETITIONNANO HOUSE2021ByVolumeZero

Turn static files into dynamic content formats.

Create a flipbook
Issuu converts static files into: digital portfolios, online yearbooks, online catalogs, digital photo albums and more. Sign up and create your flipbook.