Skip to main content

PORTFOLIO AZBC

Page 1

PORTFOL O

AHMED ZYED BEN CHEIKH

ARCHITECTURAL DESIGNER | B.S.ARCH

SELECTED WORKS_2024

Ahmed Zyed BEN CHEIKH

B.Arch Architectural Designer

Work Experience

May 2022 – Dec 2023 JACOBS . DUBAI . UAE

ASSOCIATE ARCHITECT

• Played a key role in the design development of the VAULT, an iconic project designed by LAVA and situated in Trojena, NEOM. This complex and challenging mixed -use building is integrated into the mountains and spanning an impressive 550 000 sq.m.

• Conducted a team of Architects in preparing weekly design presentations for client aimed to get approvals on design and struc ture solutions.

• Supervised the schematic design process to ensure alignment between the drawings and the design proposals.

• Contributed to the design optimization by identifying solutions to reduce cost and area through revision of the framework and optimization of specific components.

• Collaborated closely with Structur e and MEP teams throughout the Value engineering process to propose effective solutions.

• Worked closely with a dedicated team on the development of hospitality and residential components ensuring that it is following operator’s guidelines and client’s requirements.

• Engaged as an “Experienced Matter Architect “ to resolve similar issues on other complex yet smaller -scale projects in Trojena (Mountain Exclusive Resort and Hiking Boutique Hotel)

Jul 2019 – May 2022 ARADA . DUBAI . UAE

SENIOR DESIGN ARCHITECT

• Led the concept design and development of Arada’s diverse Portfolio encompassing Residential, Hospitality, Commercial, Healthcare, Educational and Leisure projects.

• Directed a team of Mid-level, Junior Architects and Visualizers to prepare presentations for the CEO and subsequently overseeing the schematic design process.

• Coordination with Structural, MEP and ID team s to maintain the integrity of the design intent across the projects

• Managed and optimized the concept design of the Central Hub Masterplan by ZAHA HADID encompassing an 80 000 sqm Mall, a Sales Center, the largest GYM in UAE all integrated within a vast landscaped area.

• Coordinated with CallisonRTKL on the conceptual Masterplan proposal for MURCIA in Riyadh, KSA

• Prepared feasibility studies on potential developments (Masterplans, High - rise buildings, Healthcare, Educational, Entertainment, Commercial…).

Feb 2016 – Jun 2019 U.H CONSULTANTS . DUBAI . UAE

SENIOR ARCHITECT

• In charge of defining the design style and aesthetic direction of all projects developed within the architecture firm.

• Ensured as a Team leader the meticulous preparation of construction documents then following up with Authorities

• Collaborated with all other disciplines to ensure timely delivery within budgetary constraints.

• Delivered projects consistently to client’s expectations.

Jan 2013 – Jan 2016

LACASA ARCHITECTS & ENGINEERING CONSULTANTS . DUBAI . UAE

SENIOR DESIGN ARCHITECT

• Prepared concept design for a diverse array of projects including High and Mid -rise towers, Detached residential, Mixed - use, Corporate, Commercial, Hospitality and Master planning.

• Collaborated with Engineers to resolve different clashes and worked closely with ID team to ensure that materials and details are following the design intent.

• Involved in the Schematic production and supervised Design Development, Tender documents and IFC phases.

Mar 2006 – Dec 2012 MOVE ARCHITECTS . CARTHAGE . TUNISIA

ARCHITECT, CO-FOUNDER

• Proposed and guided the aesthetic and design vision of the projects. Cultivated prospective clients for the office.

• Directed a joint venture with an Australian Company (SHAC) based in New Castle. The aim of this collaboration was to set up a satellite office in Tunisia to explore and undertake Large -scale projects with a focus on opportunities in North Africa.

• Managed an external consultancy for an international renowned consultant (OGER) tasked with preparing and submitting Design Development documents of Large Universities in KSA and Hotels in France.

• Submitted multiple concept design to DAMAC Properties, a prominent developer in Dubai, upon invitation. Several concepts were approved with several of them already materialized through construction.

Mar 2005 – Feb 2006 AL SADD CONSULTING . DOHA . QATAR

DESIGN ARCHITECT

• Played a pivotal role in shaping the design of key projects within the office.

• Produced all concept design deliverables including presentations, plans, 3D modeling and renderings.

Jan 2003 – Feb 2005 SB + FF + BM . TUNIS . TUNISIA

JUNIOR ARCHITECT

• Developed designs for various projects for local competitions and diverse range of scales and typologies of projects

Jun 2001 – Jul 2001 BANEKE VAN DER HOEVEN ARCHITECTEN . AMSTERDAM . NETHERLANDS TRAINEE

Jul 2000 – Aug 2000 NATIONAL CENTER FOR RESTORATION . BUDAPEST . HUNGARY TRAINEE

Education

Feb 2004 ECOLE NATIONALE D’ARCHITECTURE ET D’URBANISME

Bachelor of Architecture

Nov 2002 AFFIDAVIT OF DISSERTATION DEFENSE IN ARCHITECTURE

Project of Islamic Arts Museum in collaboration with the international renowned Calligrapher NJA MAHDAOUI

Jun 1995 CARTHAGE HIGH SCHOOL

Certificate of program completion, Mathematic section.

Key Skills

Proficiency

Languages

• Architecture design, Creativity, hand sketching

• Team leader and resources management

• Collaboration and problem solving.

• Management of various types and scales of projects.

• Architecture: Autocad, Revit, BIM 360, Revizto

• 3D Modeling: Sketchup, Unreal Engine (Beginner).

• Rendering: Enscape, Unreal Engine (Beginner).

• Image and presentation: Photoshop, Indesign, Concept

• Office tools: Word, Excel, Powerpoint

• English (Fluent).

• French (Fluent).

• Arabic (Fluent).

Contact
Address 8 Telegram Mews, 1205
+1 437 599 3077 M5V 3Z5, Toronto, ON bcaz77@gmail.com
Online Portfolio https:/issuu.com/ahmedzyedbencheikh/docs/azbcportfolio

ALJADA DESTINATION

SELECTED HIGH +MID-RISE SELECTED VILLAS

TROJENA, NEOM

MIXED-USE +COMMERCIAL MASTER PLANNING

EDUCATIONAL +RELIGIOUS

WELLNESS+ SPORTS

03 01 04 02 05 06 07 08
CONCEPT, SCHEMATIC, DETAIL DESIGN DESIGN OPTIMIZATION, DESIGN MANAGEMENT

Aljada development in Sharjah, UAE, offers a lifestyle that integrates Living, Working and Entertainment into a vibrant and unique urban environment. The development is envisaged to form a new destination in the Emirate, with vibrant cultural, retail and entertainment districts distinguished through its unique architecture and quality of public realm. The 2.5 million m2 site area is located

approximately 25 km from Dubai. The Masterplan was meticulously designed by Woods Bagot. The internal concept team of Arada designed the buildings in the districts of Aljada, these projects encompassed a variety from Residential, Mixed-use, commercial, hospitality, religious, educational and healthcare. The Plots highlighted below are showing the projects I was directly involved in during my tenure in Arada.

LOCATION : TYPE / SCALE : YEAR : INVOLVEMENT : PROJECT'S STATUS : ALJADA DESTINATION 01 RESIDENTIAL COMMERCIAL, RETAIL HOSPITALITY RELIGIOUS EDUCATIONAL WELLNESS, HEALTHCARE ALJADA, U.A.E NEW HUB DEVELOPMENT 2019-2022 CONCEPT, SCHEMATIC,DETAIL DESIGN UNDER CONSTRUCTION

1.SOKOON

No OF RESIDENTIAL BUILDINGS : 07

5.BLOCK B

No OF RESIDENTIAL BUILDINGS : 07

2.MISK

No OF RESIDENTIAL BUILDINGS : 04

6.TIRAZ

No OF RESIDENTIAL BUILDINGS : 08

3.NEST

No OF RESIDENTIAL BUILDINGS : 10

7.BOULEVARD

No OF RESIDENTIAL BUILDINGS : 03

4.NASAQ

No OF RESIDENTIAL BUILDINGS : 06

8.EAST VILLAGE

No OF RESIDENTIAL BUILDINGS : 16

LOCATION : TYPE / SCALE : YEAR : INVOLVEMENT : PROJECT'S STATUS : 01 .1 SOKOON ALJADA, U.A.E 7 RESIDENTIAL BUILDINS/ B+G+6 2022 CONCEPT, SCHEMATIC UNDER CONSTRUCTION

Sokoon Buildings are situated within the vibrant Cultural and Design District of AlJada, boasting galleries, shops, plazas, and a museum meticulously designed by the renowned architect Tadao Ando, alongside residential structures. The vision for this neighborhood is to create an iconic, inviting, inspiring, and sustainable environment. The architectural design aims to be contemporary, featuring smooth horizontal movement with solid balconies, adding to the elegance of buildings without detracting from the future masterpiece envisioned by Tadao Ando.

ELEVATION
TYPICAL
FLOOR PLAN 2
TYPICAL
FLOOR PLAN 1
KEYPLAN / BLOCK KEYPLAN / MASTERPLAN
AXONOMETRY, AMPHI APARTMENT TYPOLOGY DIAGRAM
INTERIOR OF AMPHI APARTMENT

The Misk buildings enjoy a prime location along the main boulevard of Aljada, directly facing the central Hub designed by the iconic architect Zaha Hadid. This contemporary development features an 11-storey building, with retail and nursery at the ground floor and apartments ranging from one to four bedrooms, complemented by two luxurious pent-

LOCATION : TYPE / SCALE : YEAR : INVOLVEMENT : PROJECT'S STATUS :

ALJADA, U.A.E

houses on the upper floors. The façade language is characterized by its elegance, employing solid frames to balance the horizontal lines, while louvers ensure privacy for residents. Misk stands as a testament to smart building design, prioritizing user comfort and energy efficiency as core objectives.

4 RESIDENTIAL BUILDINS/ B+G+M+11 2020 CONCEPT, SCHEMATIC, DETAIL DESIGN COMPLETED

KEYPLAN

KEYPLAN / BLOCK

01 .2 MISK
/ MASTERPLAN
PENTHOUSE INTERIOR VIEW FROM THE MAIN BOULEVARD

ACCOMMODATION BUILDINGS 2019

CONCEPT, SCHEMATIC, DETAIL DESIGN COMPLETED

TYPE / SCALE : PROJECT'S STATUS : 01
.3 NEST B+G+5
ALJADA, U.A.E 10 STUDENT
FRONT ELEVATION BACK ELEVATION PODIUM LEVEL UNION SPACE AND AMPHITHEATER FEMALE ACCOMODATION FACILITIES MALE ACCOMODATION FACILITIES ENLARGED SECTION A OVERALL SECTION ENLARGED SECTION B ACTIVITY AND MOVEMENT

The key requirement of this high-end residential project in ABU DHABI by BLOOM Properties was to capitalize of the magnificent views of the adjacent canal. Consequently, the design of the building was made with floor-to-ceiling glazing and an orientation which allows the majority of apartments to enjoy a canal view. It also contains a podium with a large infinity pool which ends in a dramatic waterfall.

The design language features glazing, wood-textured aluminum and louvers.

Instead of using one monotonous rhythm, the lines of the façade are interrupted in the centre through the provision of extra-large balconies for certain apartments. The excitement of the façade continues internally, with a grand atrium running the full height of the building. Mechanical services are placed at the top and concealed with a screen, while gym facilities are contained on the first floor.

LOCATION : TYPE / SCALE : YEAR : INVOLVEMENT : PROJECT'S STATUS :
02 .1 BLOOM ABU DHABI, U.A.E RESIDENTIAL/ B+G+16/ 40 000 SQ.M 2016 CONCEPT DESIGN COMPETITION/ SHORTLISTED
SITE LOCATION DEVELOPMENT PLOTS VIEWS ON CANAL VIEWS STRATEGY
SECOND FLOOR (PODIUM)
LOCATION : TYPE / SCALE : YEAR : INVOLVEMENT : PROJECT'S STATUS : 02 .2 LUSAIL SUITES DOHA, QATAR RESIDENTIAL/ 2B+G+P+23 2018 CONCEPT DESIGN COMPETITION/ SHORTLISTED

The project is located in Lusail, the new vibrant city next to Doha. The site is having an impressive panoramic view on the sea. Our approach in the design was to make an iconic architecture with a unique appearance. Five principles define the project layers and terraces, inside and outside, vegetation, views and privacy, light and identity. The result is a vertically layered building. The stratified structure is distinguished by projecting or set back living areas that generate terraces and overhangs, light and shadow. As a result, each unit is unique and variations in the layout of the apartments on each layer shape the new neighbourhood. The tower is made with modular floors, repeated in different and repeated combinations.

Project/Affection plan Core insertion at the back Adding random wide balconies South East Elevation
Project location Solar study View study
North East Elevation Vertical structure Mass projection Footprint optimization

LOCATION : TYPE : YEAR : TASKS : DUBAI, UAE 2016/ COMPLETED

2B+G+19/ 20 700 SQ.M

CONCEPT DESIGN, SCHEMATIC, DD

Rising 19 floors, this graceful and dynamic tower in Jumeirah Village maximised on daylighting and balconies for its occupants. The design articulates the various elements, with vertical lines culminating in stepped canopies at roof level. the elevations were made as light as possible, without creating a bulky high-rise form. Materials include wood-textured aluminium, a mashrabiya screen to conceal the core, and painted cladding to keep the costs to a minimum. The first floor level contains a gym and changing rooms, with the parking bay in the podium below. Elevations without openings face the neighbouring plots, which are soon to be built up.

.3 BIN LAHEJ TOWER
BALCONY 1.80 M. WIDE CORRIDOR BALCONY BALCONY LIVING/ DINING RM. M.BED RM. BED RM. KITCHEN M.BED RM. BED RM. BATH G.TOI. LIVING/ DINING RM. BDR 1 BDR LIVING/ DINING RM. LIVING/ DINING RM. LIFT LOBBY 1.80 M. WIDE CORRIDOR L. L. L. KITCHEN L. Night Perspective shot Typical floor 02

LOCATION : TYPE : YEAR : TASKS :

DUBAI, UAE 2015/ COMPLETED

2B+G+6/ 12 100 SQ.M

CONCEPT DESIGN, SCHEMATIC, DD

Visually light and dynamic, the residential complex comprises two volumes sliced on a nice proportion. apartments occupy the typical floor plans and a pool deck and gym on the roof. The design responds to the client’s requirements of a highly efficient floor plan and a contemporary styled design.The choice of materiel was based on a modern palette with stone, concrete, glass and wood-textured aluminium. Using carefully balanced proportions, the elevations features around 35% aluminium, the reminder composed of solid materials including the dramatic, stone clad wall.

.4 AL
BARSHA
Perspective from the main road 02 Main Facade
Typical floor
LOCATION : TYPE / SCALE : YEAR : INVOLVEMENT : PROJECT'S STATUS : 03 .1 A&H VILLA DUBAI, U.A.E B+G+1/ 1200 SQ.M 2019 CONCEPT/ SCEMATIC/ DD/ TENDER COMPLETED

The project is located in AL Khawaneej, an essentially residential area of Dubai. The program presents three floors : An open basement for the old car collection, A living area in continious mood with the garden and a private upper floor. The nucleous of the horizontal circulation an internal bridge that joins the formal area to the family one. This passage is made trough an internal garden with an olive tree an a cascade coming from the swimming pool. The car collection is exposed in the open basement. The spaces are developed to create an instant relations between the inside and outside while taking privacy from neighboors into consideration. The bedrooms in the first floor look out to the pool and the fire pit area.

View from pergola area to the swimming pool 3D Cutaway
Ground floor
First floor
LOCATION : TYPE / SCALE : YEAR : INVOLVEMENT : PROJECT'S STATUS : 03 .2 VILLA FALAHI DUBAI, U.A.E G+1/ 800 SQ.M 2022 CONCEPT/ SCEMATIC UNDER CONSTRUCTION

Villa Falahi's client is a renowned designer in Dubai who sought to create a villa inspired by Mediterranean architecture with a contemporary flair and exclusive design. The plot is located within a residential area in Dubai, providing a fitting canvas for this unique project. The conceptual approach embraces the Med-

iterranean atmosphere, characterized by white textured walls, arched openings, and a minimalist style. An internal open courtyard adorned with trees and lush vegetation serves to infuse the space with natural light and facilitate seamless transitions between the interior and exterior, enhancing the overall living experience. Careful

attention was given to the program distribution, incorporating the client's preferences while also considering the nuances of Emirati daily life. This meticulous approach ensures that Villa Falahi harmoniously combines timeless Mediterranean charm with modern sophistication, resulting in a truly exceptional living environment.

GROUND FLOOR COURTYARD FIRST FLOOR MAIN ENTRANCE INTERIOR GALLERY PAVILLION COURTYARD WITH OLIVE TREE LIVING AREA

LOCATION : TYPE / SCALE : YEAR : INVOLVEMENT : PROJECT'S STATUS :

NEOM, K.S.A

HOSPITALIT/MIXED-USE/ SPORTS AND LEISURE DESTINATION

2023

DESIGN OPTIMIZATION/ DESIGN MANAGEMENT UNDER CONSTRUCTION

04 NEOM TROJENA
PROJECTS INVOLDED IN
LOCATION OF NEOM WITHIN SAUDI ARABIA LOCATION OF TROJENA WITHIN NEOM images from Internet

Anchoring the NEOM Mountain Masterplan is the VAULT, an iconic man-made canyon of epic proportions, which serves as both the symbolic and programmatic portal to the rest of the Masterplan. The VAULT will be a testament to the ambitions of NEOM, indicating to the whole world that there is no other a place like it – and one cannot pass up on the opportunity to visit and experience it in person. The VAULT forms the arrival cluster together with the Mirage visitor center and the Time-Travel ride. It is designed and developed as a futuristic icon, competing with the grandeur of monuments regionally and globally so that one day in the distant future, it will be looked back upon as a grand jewel of our generation – a timeless architectural masterpiece and a historic engineering accomplishment. The VAULT is an architectural and engineering intervention which carves away from the existing mountain ranges in between neighboring peaks to create an immersive void. The outcome is an artificial valley characterized by a shaded microclimate activated by lush greenery and refreshing water features which provides a truly soothing yet thrilling environment. It will be outfitted with a wide array of technological capabilities. The integration high-end secure interfacing, of ground-breaking AR/VR capabilities, of IoT data streams, of drones, conducting ballet-like aerial performances, of robotic services and much more must not

come at a cost of the physical experience. Technology must always be accessible and available for use, but never disruptive to residents and visitors alike.

The project’s massing is topologically defined by a “saddle” surface (Paraboloid geometry), and spatially defined by two open sides: one looking down towards the West towards the Gulf of Aqaba, and the other side opening up to a picturesque view in the East of the NEOM Lake, the revolutionary Ski Slopes and their surrounding Assets, with the open horizon beyond the natural mountain peaks in the distance. The residential aspect of the VAULT’s program is developed to provide different typologies of accommodations. Two buildings in the North and the South from the side walls of the Vault. They are populated by a mixed development including public functions as well as various ho-tels and apartments. THe project will offer a wide variety of residential accommodations, leisure, and functional services adding up to a total of 1,437 keys. Sinuous pedestrian bridges spread from one wall to the other and enable circulation at elevated heights across the void. The phenomenological spectacle is amplified through holographic displays from the crystalline facade which lighten up the environment and activate the space as a technological monument in the desertic mountains.

LOCATION : YEAR : INVOLVEMENT : PROJECT'S STATUS : TYPE / SCALE : .1 THE VAULT NEOM, K.S.A MIXED-USE/HOSPITALITY 2023 DESIGN OPTIMIZATION/ UNDER CONSTRUCTION 04 DESIGN MANAGEMENT
VIEW FROM THE PLINTH GENERAL PERSPECTIVE
3D CUTAWAY
from Internet
images from Internet images
images from Internet

Situated on Exclusive Peak in the Explore cluster of the TROJENA Region, the Mountain Exclusive Resort provides a hospitality experience like no other. Incorporating unique luxury rooms, spa experiences, fine dining, fitness activities and a micro-climate for a courtyard abundant in native vegetation, the resort is a hub for guests wanting to immerse themselves in unforgettable experiences and the mountain’s natural beauty.

The project’s driving concept is focused around a multi layered circle packing pattern that is translated through the building three dimensionally. This gives the impression of wandering through a delicate piece of clockwork or jewellery that sits proudly atop the landscape.

Responding to the surrounding natural beauty is key to the orientation of the rooms and the ground-level organization to allow stunning views towards the valley and lake down the mountain side. The semi-open nature of the building embraces the contrast between the mars-like exterior and the lush vegetation within, creating connections between the resort and its surrounding context.

LOCATION : YEAR : INVOLVEMENT : PROJECT'S STATUS : TYPE / SCALE : .2 RAFFLES NEOM, K.S.A HOSPITALITY 2023 DESIGN OPTIMIZATION/ UNDER CONSTRUCTION 04 DESIGN MANAGEMENT VIEW FROM THE COURTYARD AERIAL VIEW GENERAL PERSPETIVE
images from Internet images from Internet images from Internet

LOCATION : TYPE / SCALE : YEAR : INVOLVEMENT : PROJECT'S STATUS :

DUBAI, U.A.E

MIXED-USE/ HOSPITALITY

3B+G+P+19/ 79 000 SQ.M 2016 CONCEPT DESIGN COMPETITION/ 2ND PRIZE

05 .1 EMPOWER HEADQUARTERS

The competition of the mixed use project of Empower Headquarters is occupying a vacant and strategic plot having access to Sheikh Rashid Road. This scheme contains offices, a hotel building, a furnished apartments and a shopping center. All the components should be independents from each other but having links at the same time. The views towards the creek and Ras Al Khor wildlife sanctuary should be taken into consideration in the oncept approach. The design is using a different architectural language from the surrounding buildings, the end result is a powerful blue masses with a central clear area giving the impression of visual continuity through the building. The podium is designed in a way that integrates plazas, terraces and pedestrian circulation through green areas on the different levels and shopping’s center roof. A swimming pool with an infinity edge is located on the upper floors of the hotel. A stylized garden was also integrated of the elevations of the hotel.

Hotel infinity pool

Mass study
Site location Solar study Site views
Ground floor Typical floor Connexion between the 4 components Material study (solid/glass)
Perspective from the main road
LOCATION : TYPE / SCALE : YEAR : INVOLVEMENT : PROJECT'S STATUS : .2 OFFICE BUILDING + LAW COURT TUNIS, TUNISIA MIXED-USE/ CIVIC B+G+3 2012 CONCEPT/ DESIGN DEVELOPMENT SITE SUPERVISION COMPLETED 05

This project is a Competition winning architectural and Interior design of a Law court. Located in a prominent and historic position next to Al Kasbah in Tunisi, this contemporary Civic project is an extension of an existing historical building of The Ministry of Justice. Consequeltely, the new design should be respectful to the ‘arabisant’ style while proposing a contemporary translation that links the past to the present. The concept idea was the integration of a spectacular high tech curtain wall inspired from the traditional colorful courtyard behind the existing facade. A textured and dynamic front elevation is generated through vibrantly coloured panels on the main facade projected on one of the most dense axis road of the capital City.

+0,45 +0,95 +0,95 +0,95 +0,45 +0,45 +0,10 +0,45 +0,95 +0,60 A A B B Guichet Penal Guichet Civil Hypothèque Standartiste Police Sas Sas Salle.avocats Sas avocats Sas. Juges Salle d'Audience 1 Salle d'Audience W.C Guichet Attest. Décés Guichets services jugement Bur. Opération Notaires HALL DE RECEPTION Bureau P.S. W.C Sas Entrée des juges Entrée Des Avocats Entrée Principale Poste Transfo. Ministère de la Justice Local Technique FACADE PRINCIPALE FACADE SUR BOULEVARD AVRIL FACADE ARRIERE W.C handic Rampe handicapés Ground floor Old ceramic tiles Location site Interior perspective, main hall
TYPE / SCALE
YEAR
INVOLVEMENT
PROJECT'S STATUS : .3 CHINA MALL ABU DHABI, U.A.E COMMERCIAL G+2/ 125
SQ.M 2015
COMPETITION, SHORTLISTED 05
LOCATION :
:
:
:
000
CONCEPT DESIGN

With a unique concept and a striking yet elegant form, this Abu Dhabi project called for a mall that evoked the spirit of China. The design incorporates decorative wooden elements and a vibrant red paneling to allude to traditional Chinese architecture, combined with sleek modern aesthetics and materials suitable for the Gulf climate. Externally, the building will be clad in red aluminium panels, with bare concrete, vertical louvers and the provision for media screens to further animate the façades.

An internal, partially open-air street runs

through the entire project, moving from ground level to the second floor and then back to ground. Separate volumes were created to lighten the feel of the massing, with a flowing circulation route. Extensive landscaping and terraces allow visitors to enjoy the outdoor environment while wooden elements provide shade and visual impact.

Chinese ambience in the old streets Ground floor Main perspective
Walk through sequences
Sketches for the elements and colors of the elevations

The planned residential township will serve a community of approx..62,300 residents with variety of housing offering: villas/townhouses (approx. 9,500 units) and apartments (approx. 1,400 units) with ‘community spine’ consisting of retail, commercial and recreational facilities linking it with earlier phases of

the Project.

The aim of this project is to develop a unique residential community that offers:

- Integrated township including residential development (single family and multifamily units) and ‘community spine’ comprising essential non-residential infrastructure, assets and amenities that reflect best princi-

ples and practice in community planning and design.

- Attractive and affordable housing products in line with target market segments, which offer a variety of housing types and sizes to address the needs of people at different income levels and different phases of life, including intergenerational community with multi-generational housing.

- A sense of community and level of community facilities and amenities that will promote universal access, active/healthy living and resident interaction with local cultural norms of safety, security and privacy in mind.

LOCATION : TYPE / SCALE : YEAR : INVOLVEMENT : PROJECT'S STATUS :
06 .1 MURCIA DEVELOPMENT RIYADH, K.S.A MASTER PLANNING / 502,85 HA 2019 CONCEPT/ COORDINATIONALWITH RTKL APPROVED CONCEPT
11 Arada Riyadh Project Rev04 THE MASTER PLAN ROAD NETWORK HIERARCHY The road hierarchy plan shows the different arrangement of roads throughout the development. The master plan is accessed by Prince Faisal Ibn Bandar Road on the West. The primary road network includes one major ring road surrounding the site and two North/South major avenues running across the site. Secondary East/ West roads run perpendicular to the main avenues, allowing the development to be easily accessible and have an efficient infrastructure network. The Secondary roads form the active urban boulevard around the active heart of the development. Each of the residential clusters have 20m loop road on the periphery of the neighborhood to connect the main roads for entry and exits. Internal human-scale roads of 15m service remaining residential units within the development. Prince Faisal Ibn Bandar Ring Road 37m Secondary Roads 32m Boulevard Neighborhood Outer Roads Tertiary Roads Entry Points Avenue + Service 15m 20m 38m 32m - Dual 2 Roads- No On-Street Parking - 2- On-Street Parking- On-Street Parking - 1*1 Road - On-Street Parking - 2- On-Street Parking - 2 - Median 100 200 300 400 500m 16 Arada Riyadh Project Rev04 The community facilities follow the MOMRA standards and have been accordingly and strategically distributed in the development. These adhere to the catchment areas where applicable. District level community facilities when placed at the nodes and at road intersections become anchors within the development. All these facilities are easily accessible by all residents. COMMUNITY FACILITIES Mosques sC hools Fa ilities hools) 300 (Mosque) 800 M at ent (Friday osque) THE MASTER PLAN 100 200 300 400 500m Community Facilities Nodes Anchors 14 Arada Riyadh Project Rev04 The open space network is the defining feature of the development, it an integrated network that connects all the communities together. The central spine is an activated space and the highlight of the master plan. It is strategically programmed with various land-uses, events, spaces and public facilities to ensure the objective of the master plan, which is to support the health and wellness of its residents, is the main focus of the development. Neighborhood greens are more intimate spaces within the residential neighborhoods, that cater to each cluster and contain community facilities located within or next to these green plazas. These are private to the communities and work for residents staying exclusively in that particular cluster. This flexibility makes it possible to gate the clusters. Remaining open spaces such as green buffers, sikkas, passages and courtyards ensure walkable development that vibrant, green, and well connected. The Open spaces connect the smaller greens to the main spine so as to create continuous and well connected pedestrian network. THE MASTER PLAN OPEN SPACE NETWORK Central Green Spine Neighborhood Greens Buffer and Green Links 100 200 300 400 500m 19 Arada Riyadh Project Rev04 CENTRAL SPINE LANDSCAPE STRATEGY LANDSCAPE PROGRAMME Jogging Track Skating Park Gardens Green Open Space Cycling Track Bridge Kid’s Playground Green House Market Place Site Boundary Farm to Table Restaurants Amphitheater Sports Field Urban Farm Zip Line 100 200 300 400 500m 27 Arada Riyadh Project Rev03 TRANSIT PLAZA MOBILITY STRATEGY 500m The autonomous vehicles strategy is envisioned as a sustainable green lane which can house autonomous shuttles, buggies, scooters etc. The network is comprehensive and services the entire development, transit plazas (with a 500 meter transit radius) are formed within the green. Transit plazas are pedestrian highly active zones. They are flanked by public and community facilities on either side of the road. The autonomous shuttles has 500 meter catchment service radius. Shuttles to provide connectivity initially using the public realm space and potentially in mixed environment with other road users 100 200 300 400 500m Last Mile Route Green Open Space Site Boundary Transit Plaza Autonomous Shuttle Route Autonomous Shuttle Stop 17 • Arada Riyadh Project Rev04 OPEN SPACE HIERARCHY PUBLIC REALM STRATEGY District Park Urban Oasis 1000m Catchment Community Park 500m Catchment Neighborhood Park 300m Catchment Community Park Community Park Urban Farm District Park (Urban Oasis) Neighborhood Park Site Boundary 100 200 300 400 500m 15 • Arada Riyadh Project Rev04 MASTER PLAN (LAND-USE) MASTER PLAN FRAMEWORK Townhouses Semi Detached Villas Villas Residential (Retail on groundfloor) Amenities/Entertainment/ Retail Parks Public amenities Community Facilities 100 200 300 400 500m On-Plot Green Open Space 21 Arada Riyadh Project Rev04 CENTRAL SPINE ACTIVITIES PROGRAMME LOCATIONS PUBLIC REALM STRATEGY Active Active Active Active Active Zip line Outdoor Gym Tennis Courts Football Sports Field Transit Plaza Cycling Track Amphitheater Children’ Play Area Community Facilities School Football 100 200 300 400 500m GENERAL PERSPECTIVE RESIDENTIAL AREA VIEW ON THE BOULEVARD ROAD NETWORK HIERARCHY OPEN SPACE NETWORK COMMUNITY FACILITIES LANDSCAPE STRATEGY TRANSIT PLAZA MASTER PLAN(LAND-USE) OPEN SPACE HIERARCHY CENTRAL SPINE ACTIVITIES
LOCATION : TYPE / SCALE : YEAR : INVOLVEMENT : PROJECT'S STATUS : 06 .2 SHARJAH MARITIME SHARJAH, U.A.E MASTER PLANNING/ REIDENTIAL/ MIXED-USE/ 790 000 GFA 2020 CONCEPT/ FEASIBILITY STUDY APPROVED CONCEPT

PROPOSED

The Sharjah Maritime project is a forward-thinking, inclusive mixed-use community hub situated along the picturesque Sharjah Waterfront. Designed to cater to diverse experiences, it serves as a destination for residents and visitors alike. Conveniently located just a 30-minute drive from Sharjah International Airport, with easy access to the Emirate of Dubai, it offers unparalleled connectivity. In its urban context, the area lacks distinctive retail destinations, primarily comprising indoor shopping spaces, while being surrounded by numerous business hotels, parks, and beaches. Furthermore, there is a notable absence of adequate yacht berths in the surrounding lagoon areas. The primary objective of the project is to redefine the waterfront edge, establishing a seamless boundary between land and sea while creating vibrant public spaces and enhancing waterfront accessibility. The proposal encompasses a total of 24 buildings of varying heights interconnected by podiums, totaling 790,000 GFA. These buildings will include waterfront residential units, twin towers, park-view residences, two hotels, serviced apartments, retail outlets, and signature structures. With its emphasis on community living, this waterfront destination will offer stunning seaside views and exclusive park spaces, setting a new standard for coastal living experiences.

GENERAL CONTEXT
ZONING GENERAL AXONOMETRY

HATTA, U.A.E MASTER PLANNING/ 1 SQ.KM/ HOSPITALITY/ENTERTAINMENT/ SPORTS

The project is an integrated polo and equestrian master developement located on the way from Dubai to Hatta. It covers an approximate area of 1 million sq.m. It is mostly residential with a resort an facilities. The developmjent encompasses more than 350 Arabian style villas, one hotel, one spa resort, a mosque, retail and shopping area all inspired from the local architecture. The challenge was to accomodate the specific cultural requirements while maintaining the contemporary look of the buildings. The design embraces a heavyweight contruction style without extensive glazing, while utilizing the traditional elements. The polo fields are located in a way that allows the maximum of villas to have a direct view on those areas.

LOCATION : TYPE / SCALE : YEAR : INVOLVEMENT : PROJECT'S STATUS :
Site accesses Residential Zones 06 .3 POLO VILLAGE
2012 CONCEPT/ FEASIBILITY STUDY APPROVED CONCEPT
TERRACE TERRACE MASTER BEDROOM2 MASTER BEDROOM1 ENTRANCE LIVING ENTRANCE 190m² 80m² Villa Type 1 First floor Villa Type 1 - Ground floor Villa Type 1 Elevations The souq area
and Spa Bird view Master Plan
Hotel

CONCEPT/

The SABIS school at Aljada is located on a 60,978 square meter plot on the south-eastern corner of the project, adjacent to the East Village residential community. Construction began in Q2 2020 and will cater for children from KG through Grade 12. Staff housing will be provided elsewhere in the Aljada complex and is not part of the scope of this project.

Facilities at the school will include outdoor pitches and a running track, as well as an indoor swimming pool and basketball courts. In addition, pupils at the school will also

benefit from a large auditorium, library, and cafeteria, as well as IT and science laboratories and an art and design studio.

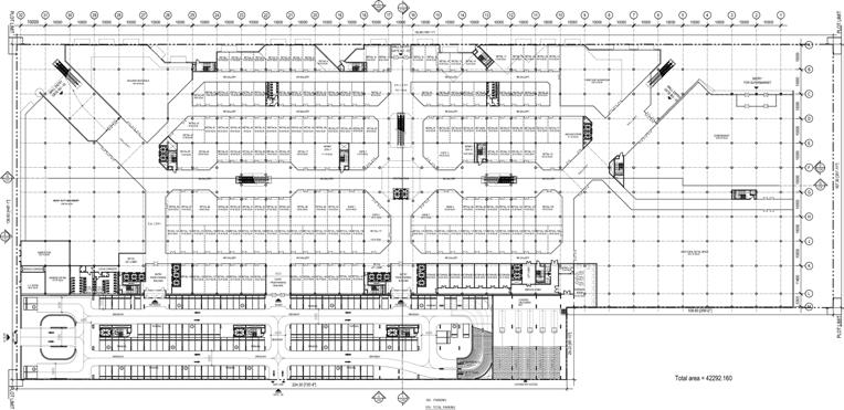
On the Eastern border, the site is bound by 67-meter-wide highway, and a dual carriage way boulevard on the western boundary. SABIS school at Aljada will host up to 4000 students. Operating such a facility in the arid climate of the UAE, is a challenge. Outlined below are the design considerations in the campus design, which will result in reducing the energy and water use.

LOCATION : TYPE / SCALE : INVOLVEMENT : PROJECT'S STATUS : YEAR : General View Classrooms Kindergarten Ground floor 07 .1 SABIS SCHOOL ALJADA, U.A.E EDUCATIONAL/ 41500 SQ.M 2020
COMPLETED
DESIGN COORDINATION WITH ATI CONSULTANTS

ALJADA, U.A.E EDUCATIONAL/ ENVIRONMENTAL INFRASTRUCTURE SOLUTIONS

CONCEPT DESIGN UNDER CONSTRUCTION

TYPE
INVOLVEMENT
STATUS
07 .2 R&D CENTER
2021
LOCATION :
/ SCALE : YEAR :
: PROJECT'S
:

The R&D Center is situated on the eastern periphery of the Aljada masterplan. The primary concept behind the project is to visually create a natural hill accommodating the center while concealing the Sewage Treatment Plant (STP) situated behind it. Upon arrival, visitors encounter a striking concrete sculptural element seamlessly integrated into the hillside. This element serves both as an

entrance to the center and as a guide, prompting users to choose between entering the facility directly or ascending the stairs to explore the bridge and discover the STP. Within the center, there is an immersive MNR (Microbial Nutrient Removal) experience zone, where visitors can learn about the treatment processes involved in reclaiming used water.

A C C ELEVATION ELEVATION B ELEVATION SCALE 1:350 ROOF LEVEL PLAN U UP VEHICULAR EXIT VEHICULAR ENTRANCE B U UP UP UP UP UP P UP 0 POTABLE WATER SYSTEM 13 14 17 SLUDGE TREATMENT WORKSHOP AND STORE EXTENDED STEEL DECK PROPOSED PARKING 19 CLARIFIER TANK MAINTENANCE BRIDGE TSE STORAGE TANKS RAILING STEEL GRATING 18 DIESEL TANK 5 5 17 EXPERIENCE BRIDGE MNR VISITOR EXPERIENCE ZONE 5 CLARIFIER TANKS 19 LANDSCAPE HATCH PAVING 16 15 STEEL LOUVRES R&D CENTRE ENTRANCE 5 SLIDING GATE 11 10 18 COMPACT INLET HEADWORKS SECURITY VESTIBULE 10 ELECTRICAL ROOM LIFT STATION 11 12 RECESSD BOUNDARY WALL(4.7m height) MACHINE ROOM MNR DISPLAY MEETING R&D LAB MNR DISPLAY CLASSROOM MACHINE ROOM SERVICES OPEN OFFICES CHIEF PANTRY MECH. ROOM +6.80m +3.00m +3.00m +4.00m -4.00 TOP OF EXPERIENCE BRIDGE FALSE CEILING LEVEL FALSE CEILING LEVEL BASEMENT LEVEL TOP OF R&D BUILDING +6.80m +6.80m +5.00m +5.00m +7.74m TOP OF EXPERIENCE BRIDGE TOP OF EXPERIENCE BRIDGE EXPERIENCE BRIDGE LEVEL EXPERIENCE BRIDGE LEVEL TOP OF MNR CANOPY SCALE 1:250 SCALE 1:250 SCALE 1:250 SECTION AA SECTION BB SECTION CC +0.00m +0.00m GROUND LEVEL GROUND LEVEL C B B C MACHINE ROOM MNR DISPLAY MEETING ROOM R&D LAB MNR DISPLAY CLASSROOM OPEN OFFICES CHIEF OFFICE PANTRY MECH. ROOM +6.80m +3.00m +3.00m +4.00m -4.00 TOP OF EXPERIENCE BRIDGE FALSE CEILING LEVEL FALSE CEILING LEVEL BASEMENT LEVEL TOP OF R&D BUILDING TOP OF R&D BUILDING +6.80m +6.80m +5.00m +5.00m +4.00m +7.74m TOP OF EXPERIENCE BRIDGE TOP OF EXPERIENCE BRIDGE EXPERIENCE BRIDGE LEVEL EXPERIENCE BRIDGE LEVEL TOP OF MNR CANOPY SCALE 1:250 SCALE 1:250 SCALE 1:250 SECTION AA SECTION BB SECTION CC +0.00m +0.00m +0.00m GROUND LEVEL GROUND LEVEL GROUND LEVEL A C SQM 10 SQM 16 SQM 14 SQM 10 SQM 10 SQM CHIEF OFFICE 31 SQM 54 SQM 143 SQM 13 SQM 11 SQM SQM SQM SQM 162 SQM MEETING OPEN OFFICE SPACE STORAGE MECH. ROOM ROOM JAN. SCADA ROOM PANTRY C C C C ELEVATION C ELEVATION B SLIDING GATE SLIDING GATE SLIDING GATE ELEVATION A R DEN RAN E CH. OFEMALE LET TO CH CH CH. FEMALE TOILET MALE TOILET ROOM RD LAB SHAFT SCALE 1:250 SCALE 1:250 GROUND FLOOR LAN BASEMENT PLAN U MNR DISPLAY ROOM 1200 MNR MACHINE ROOM 1200 1200 1200 220 SQM 1200 1200 1200 1200 1200 1200 1200 1200 1200 1200 1200 1200 1200 1200 1200 1200 1200 1200 1200 1200 1200 1200 1200 1200 1200 1200 1200 1200 1200 6000 6000 7200 7200 7200 7200 5200 5200 1200 18000 2 00 24 5920 2680 1575 1775 1350 1350 4800 6000 4800 1650 2600 16800 1575 1775 15 0 11682 1 00 20 1 00 1 0 26274 9461 U FUTURE EXPANSION FUTURE EXPANSION GENERAL VIEW, MAIN FACADE

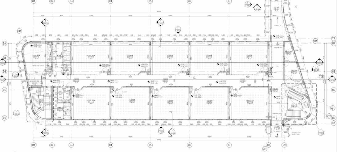
The educational institute is located at the North East entrance to Aljada bordered by street mobility on its two sides. The project addresses the urban context by buiding a relationship with its surrouding program, the Nest student accomodation, the CBD and the Boulevard. The project encompasses a social zone connecting the active student and public corner on one edge and a more collobartive zone overlooking the Business district on the opposite edge. The design boosts collaborations and partnerships between students and professionals. The massing reinforces the notion of a community confining the social and collaborative zones with a prominent Link, a public buildling which serves as a central hub. The Library welcomes visitors and academists through its distinctive translucent nature to boost connectivity and stand out monumentally in between the compound. On the ground floor are concentrated spaces of more general and public use, such as the cafeteria, retail, social learning spaces, auditorium and a large interactive lecture room. The Recessed Ground level, allows for a porticoed corridor buildilng a dialogue between the interior spaces and the courtyard. The learning blocks are directly connected to the public spaces comprising of a variety of teaching rooms, classrooms and multipurpose studios. Dedicated Training Blocks allow for flexible large-span spaces, suitable for an evolving academic program. They are supported with workshop and practice labs.

The project aims to add a new compound to Aljada, A knowledge hub to foster connectivity and create an adaptive learning environment.

.3 EDUCATIONAL INSTITUTE
ALJADA BLOCK EDUCATIONAL INSTITUTE URBAN CONNECTION LOCATION : TYPE : YEAR : TASKS : ALJADA, UAE 2020 CONCEPT DESIGN EDUCATIONAL/ 23 500 SQ.M 07 URBAN CONNECTION PUBLIC ENTRANCE
2152

The Mosque is located along the main boulevard of Aljada, adjacent to the student accommodation. Its design features a sculptural composition of two contrasting elements: concrete walls and a perforated canopy. The canopy's design is particularly inviting, providing a shaded area that attracts visitors towards the entrance. Notably, all openings, with the exception of those leading to the imam house, are strategically located within concealed areas to preserve the mosque's exterior's robust aesthetic.

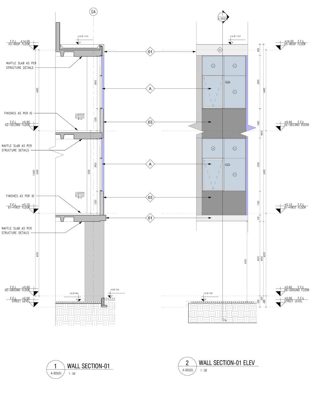
.4 MOSQUE BLOCK M ALJADA, UAE 2022 CONCEPT DESIGN, SCHEMATIC, DD RELIGIOUS/ 1500 SQ.M 03 NOVEMBER 2020 LANDSCAPE PLAN 1:300 @A3 QIBLA A PRAYER HALL 5MM JOINT 20MM JOINT WATER FEATURE GROUND DETAIL 1:60 @A3 03 NOVEMBER 2020 SCETION AA 1:250 @A3 GROUND FLOOR TOP OF CANOPY ROOF LEVEL +9.43 +7.75 S.S.L A +9.90 +0.15m F.F.L +30.3 FIRST FLOOR TOP PARAPET TOP MINARET SCETION AA 1:250 @A3 KEY PLAN TOP PARAPET GROUND FLOOR +0.15m F.F.L +30.3 TOP OF MINARET A LOCATION : TYPE : YEAR : TASKS : 07 AERIAL VIEW GROUND FLOOR SECTIONS
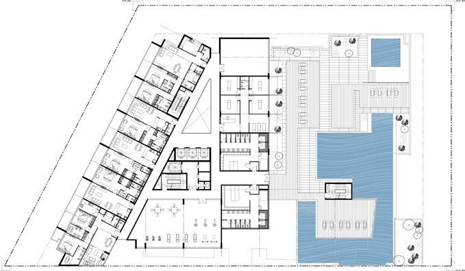
LOCATION : TYPE / SCALE : YEAR : INVOLVEMENT : PROJECT'S STATUS : 08 .1 WELLNESS CENTER ALJADA, U.A.E WELLNESS/ HEALTHCARE 129 500 SQ.M 2020 CONCEPT DESIGN ONGOING

Upon arrival to entrance of the resort, one will experience a sense of floating; a minimal concrete pathway with slender staggered columns in the middle of two reflecting ponds creates an airy environment through the proportions & materiality.

At the end of the path is a transparent glass box with platforms which take the visitors to the sunken level of the resort. As they descend one’s views move from an open view of the lush courtyard and the resident lodges to a simple tree resting in the center of a reflecting pond against the backdrop of the sloped landscape. Walking into the outside, water is all around and everything is floating on these ponds, and is designed to provide varying wellness experiences.

URBAN CONNECTION SEP 6, 2021 ARADA WELLNESS CENTER BLOCK F, AL JADA, SHARJAH 1. Create an enclosure on the border following the site & a hidden park which grows from the center of the space 2. Divide enclosure and create visual breaks 3. Push and pull facades to create intimate courtyards. HOSPITAL CLINIC HIGHWAY FRONTAGE 03 | DESIGN CONCEPT SEP 6, 2021 ARADA WELLNESS CENTER 5 BLOCK F, AL JADA, SHARJAH PROGRAM CLINIC HOSPITAL BUNGALOW TYPE BUNGALOWS TYPES AND WELLNESS RETREAT SPA, POOL & RESTAURANT CLINIC HOSPITAL CLINIC CLINIC HOSPITAL HOSPITAL HOSPITAL WELLNESS RETREAT SEP 6, 2021 ARADA WELLNESS CENTER 6 BLOCK AL JADA, SHARJAH GROUND FLOOR CLINIC CLINIC MASSAGE HOSPITAL HOSPITAL NUTRITIONIST RETAIL BASEMENT BASEMENTACCESS BASEMENT ACCESS SERVICE SERVICE SERVICE HOSPITAL DROPOFF DROPOFF DROPOFF DROPOFF DROPOFF CLINIC HOSPITAL RETAIL SERVICES BUILDING ACCESS VEHICULAR WAY SEP 6, 2021 ARADA WELLNESS CENTER 7 BLOCK AL JADA, SHARJAH PEDESTRIAN CIRCULATION BUILDING ACCESS ACCESS TO PARK WELLNESS CENTER PARK CIRCULATION WELLNESS CENTER CIRCULATION ACCESS TO/FROM RETREAT SEP 6, 2021 ARADA WELLNESS CENTER 8 BLOCK AL JADA, SHARJAH MASTERPLAN WELLNESS RETREAT SEP 6, 2021 PEDESTRIAN EXPERIENCE WELLNESS RETREAT/ MAIN ENTRANCE CONCEPT DIAGRAM URBAN CONNECTION PROGRAM DISTRIBUTION GROUND FLOOR MASTERPLAN

: TYPE : YEAR : TASKS :

CONCEPT DESIGN, SCHEMATIC, DD SPORTS/ 1500 SQ.M

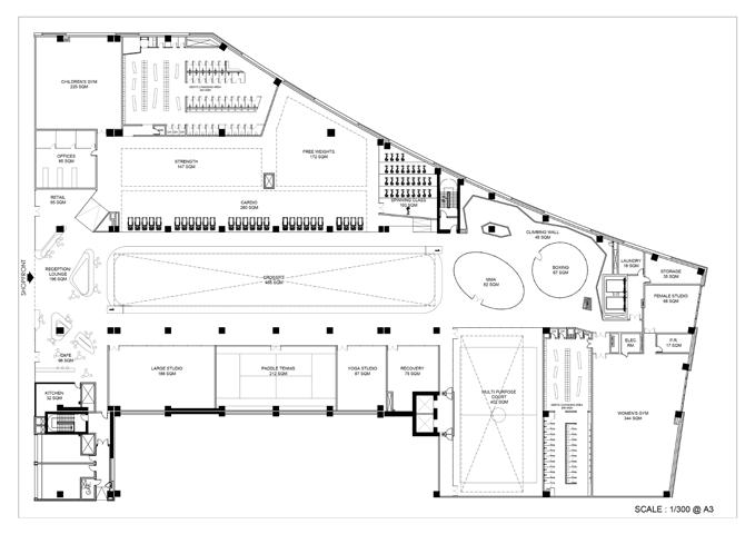
FITnGLAM was established with the aim of revolutionizing women’s fitness in the UAE, embodying a concept dedicated to empowering female minds and bodies. Situated at the access point of the Al Quoz industrial area, near Sheikh Zayed Road, the project involves the complete refurbishment of a warehouse, presenting the challenge of incorporating a steel frame structure with perforated panels on the exterior. The gym comprises a ground level hosting the majority of the training areas, along with a mezzanine floor housing a café, changing rooms, and administrative facilities.

.2 FITnGLAM GYM DUBAI, UAE 2021
08 GROUND FLOOR
LOCATION
MEZZANINE
.3 WELLFIT GYM LOCATION : TYPE : YEAR : TASKS : DUBAI, UAE 2022 CONCEPT/ SCHEMATIC/ DD SPORTS 08 GENRAL INTERIOR VIEWS 10061 CIRCLE 19.11.2020 FLOOR PLAN
AHMED ZYED BEN CHEIKH ARCHITECTURAL DESIGNER bcaz77@gmail.com

Turn static files into dynamic content formats.

Create a flipbook