My Portfolio

Page 1

Ahmed Samir PORTFOLIO

01

ABOUTME

I am a Civil Engineer with experience in structural design, technical office management, BIM Technology, and the field of Post-Tension Slabs. I am capable of designing, implementing, and accurately inventorying quantities for concrete buildings in an organized and efficient manner.

CONTACT

Phone : +2 01111449505

Email : ahmedsamir029@gmail.com

Linkedin : Ahmed Samir

Address : Aswan , Egypt

EDUCATION

Bachelor of Civil Engineering

from Luxor Academy of Engineering and Technology

2017 - 2022

Gradution Grade : Good

COMOUTER

CSI Safe

CSI Etabs

Sap 2000

Csi Column

Adapt Builder

LANGUAGE

AutoCAD

Revit

Sketch up

Escape

Microsoft Office

Arabic : english : fluent professional

SKILLS
02 / 03

(on Site)

TRAININGS EXPERIENCES

Water station construction project in New Aswan City

2019 JUNE - 2019 August

The Arab Contractors Company

Christian monastery construction project in Qus City

( WITH Post Tention System )

2022 January - 2022 February

Trust Post Tension Company

Al-Sil Crossing Bridge project in Aswan City

August 2022 - December 2022

ACE Moharram-Bakhoum Company

worked as a Freelancer for 2 Years and designed many villas and residential buildings in Egypt and Saudi Arabia, integrated architectural and construction design and All of them are according to the Building design codes.

Diploma in structural design from Civil Academy, accredited by the Engineers Syndicate

Experiance in structural design, modeling, and inventorying the quantities of structural elements after designing and producing a Shop Drawing boards ready for implementation with BIM Technology.

Experiance in the field of post tension slab design ( Pinned in the Gradution Project ) designed remotely and made 3D models for some architectural designs for some buildings in Egypt and the Kingdom of Saudi Arabia, including interior and exterior design and 3D shots.

For More Details Scan The QR Code For More Details Scan The QR Code For More Details Scan The QR Code

CONTENTS

THIS PORTFOLIO HIGHLIGHTS A GROUP SELECTION OF WORKS FROM MY EXPERIENCE.

I TEND TO PRESENT CASES THAT SHOW THE REAL SIDE OF MY UNDERSTANDING OF STRUCTURAL DESIGN, BIM TECHNOLOGY AND POST TENTION

SLABS FIELD ALSO, DEPICTING MY INTERESTS IN ARCHITECTURE DESIGN.

GRADUTION PROJECT

Design Structure System for Commercial Mall in New Aswan City includes (Post Tension Slabs & Flat Slabs & Solid Slabs & Hollow Block Slabs and Steel )

04 / 05
Page 06 - 09

CONCRETE PROJECTS

Design many villas and Residential Buildings in Egypt and Saudi Arabia, and All of them are according to the Building design codes.

ARCHITECTURE DESIGN

Design , Modeling and 3D Shots for some Buildings in Egypt and Saudi Arabia, including Interior and Exterior Design

Page 20 - 25 Page 10 - 19

GRADUTION

PROJECT COMMERCIAL MALL

06 / 07

DESCRIPTION:

The building is a commercial mall consisting of a basement, ground floor, and three floors Repetitive and Roof.

ACOMMERCIALMALL PROJECTINNEW ASWANCITY

Foundation level ( - 7.20 metres )

STRUCTURE SYSTEM

Basement (Flat Slab)

Ground floor (Post Tension Slab)

first Floor (Post Tension Slab)

Second floor (Flat Slab)

third floor (Hollowblock Slab)

Roof (Steel)

LOADS & MATERIALS & CODES

Live Load = 600 kg/m2

Floor Cover = 150 kg/m2

Walls loads = 350 kg/m2

concrete Stress = 400 kg/m2 Steel Stress = 3600 kg/m2

Design Code for concrete : ECP 203-2018

Design Code for Loads :ECP 201-2012

08 / 09
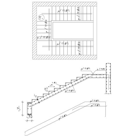
Slab
Check Punching Check Deflection
on SAFE AutoCAD Plan
Flat Slab & Solid
Design
Modeling
Design Beams

Post Tension Design

Horizental TENDONS

Steel Design

Hollow Block Design

Cheking Stresses

Vrttical TENDONS

Design Strips

Column Design

Foundatios

Design

Staires Design

CONCRETE PROJECTS

ALREADY CONSTRUCTED

10 / 11

villa 450 m2 in Riyadh city - Saudi Arabia

villa 500 m2 in Jazan city - Saudi Arabia

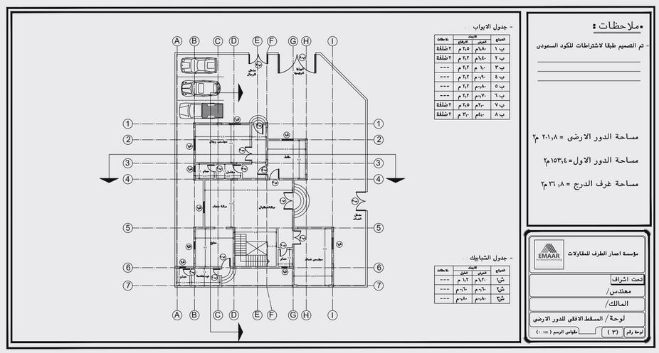
Architectural Drawings

RESIDENTIAL

VILLA(1)

One of my projects is a two-storey villa (ground + first)

on an area of 450 square meters in Saudi Arabia - Riyadh City

Complete architectural, structural, Electrical, mechanical, plumbing, Sanitation and energy efficiency plans design (75 panels)

According to the Saudi code

12 / 13

Structural Drawings

Electrical Drawings

14 / 15

Mechanical Drawings

Architectural Drawings

RESIDENTIAL VILLA(2)

One of my projects is a twostorey villa (ground + first) on an area of 500 square meters in Saudi Arabia - Jazan City

Complete architectural, structural, electrical and plumbing design (30 panels) According to the Saudi code

16 / 17

Structural Drawings

Electrical Drawings

18 / 19

Mechanical Drawings

ARCHITECTURE DESIGN

ALREADY CONSTRUCTED

16 / 17
/ 21

House 290 meters in Esna, Luxor

House 70 meters in Aswan, Egypt

3D interior design for police club bathrooms

RESIDENTIAL HOUSE(1)

One of my projects is a three-storey House (ground + repetitive)

on an area of 290 square meters in Esna, Luxor-Egypt

22 / 23

RESIDENTIAL HOUSE(2)

One of my projects is a three-storey House (ground + repetitive)

on an area of 70 square meters in Aswan-Egypt

3D INTERIOR DESIGN

One of my projects is 3D interior design for police club bathrooms on an area of 25 square meters in Aswan-Egypt

24 / 25
26
For More Details and pictures about the projects Scan The QR Code
THANK YOU

Turn static files into dynamic content formats.

Create a flipbook
Issuu converts static files into: digital portfolios, online yearbooks, online catalogs, digital photo albums and more. Sign up and create your flipbook.