BIM Structure Portfolio

Page 1


AstructuralEngineerwhoisfullyinterestedin BIMTechnologywithmultipleyearsof experienceinBIMprojectsworkflow.Ihave workedonBIMmodelsfrom3Dto7D,creating templates,creatingfamilies,BXPreview,utilize Navisworkstoperformclashdetectionandshop drawingspreparing.

EDUCATION

Bachelor’s Degree In Civil Engineering

Faculty Of Engineering, Benha University, Egypt

SOFTWARE SKILLS

CERTIFICATIONS ABOUT

E-mail : Ahmed.h.darwesh@gmail.com

Phone : +201025333187

-FE Civil (fundamentals of Engineering) from NCEES

-BIM Structural diploma from KAITECH Academy

-PRMG (planning & controlling techniques- American University of Cairo

-IELTS (International English Language Test) Level-C1

Revit

CONTENTS:

• Project Introduction

• 3D Modeling

• Project Details

• Schedules

• Shop Drawings

• Revit Families

• Coordination

• Clash detection

• Dynamo

Programs used:

RAMHAN ISLAND

PHASE 8 –VILLAS

Abu Dhabi -UAE

RAMHAN ISLAND

PHASE 8 –VILLAS

Abu Dhabi -UAE

Multi Story Factory

Cairo-Egypt

Cairo-Egypt

Elevated Tank

PROJECT 01

RAMHAN ISLAND PHASE 8

ABU DHABI -UAE

RAMHAN Island is Abu Dhabi’s newest off-plan self-contained residential community. Developed by the renowned Eagle Hills.

The master plan of RAMHAN Island features about 1,350 independent villas with private beach access, floating villas, 1,000 marina residences, a 120-room hotel and 120 serviced apartments.

ISLAND VILLAS

With more than one prototype and different statical systems.

PROJECT 01

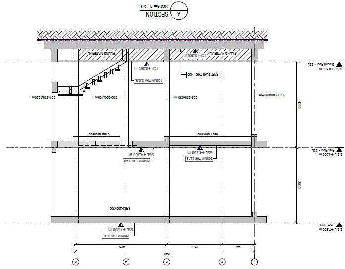
VILLA-1 VINTAGE

Villa vintage consists of ground floor, first floor and roof with total unit area 751 m2 and 7 rooms with swimming pool

Total floor area is 751m2

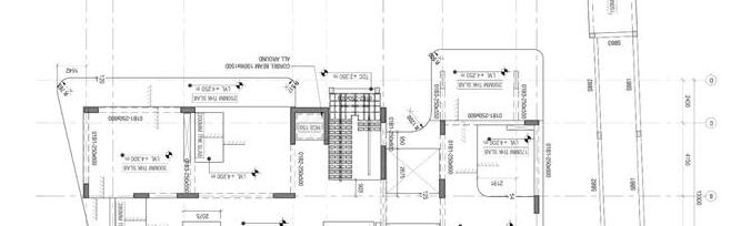
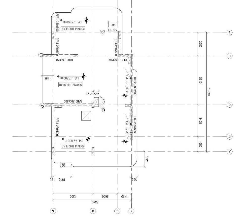
Ground floor and first and roof floor plans

LOD for concrete elements

Section in concrete elements revealing all floor slabs and concrete beams

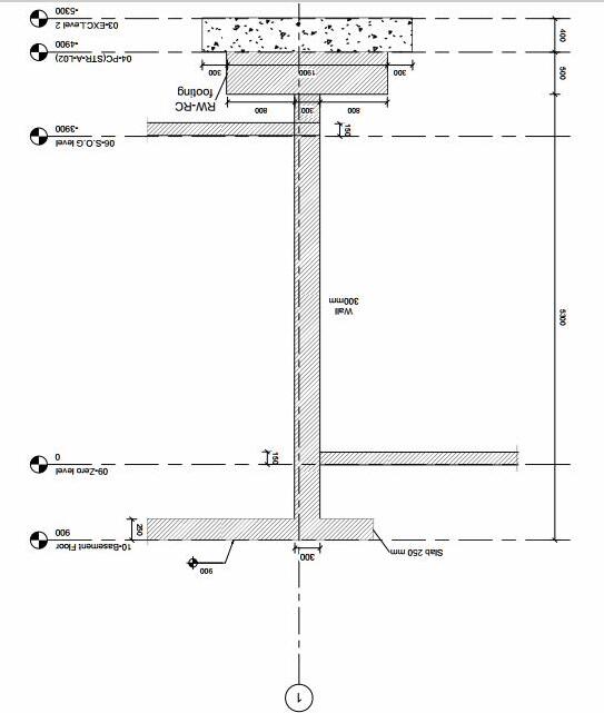
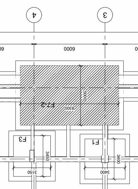
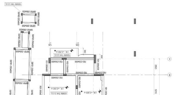
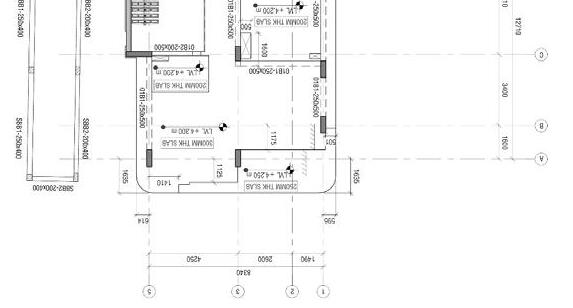
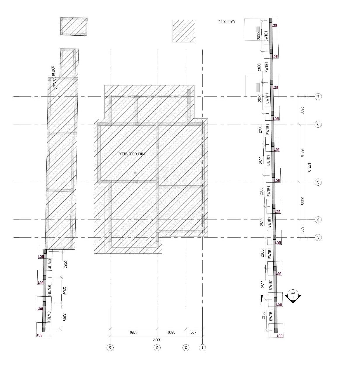
Foundation plane showing the isolated footings and the concrete raft and the ground beams.

LOD for concrete foundation

Foundation plane showing the isolated footings and the concrete raft and the ground beams.

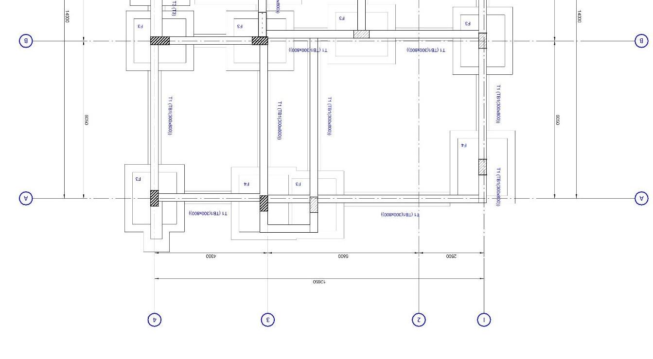
Fence plan showing the isolated footings and concrete columns and the connection with beams

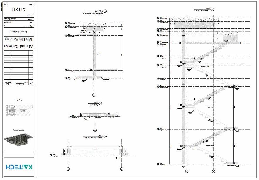
Detailed section in the steel stair showing the material and the levels and dimensions.

PROJECT 02

VILLA-2 SKY 9

Villa sky-9 consists of ground floor, first floor and roof with total unit area 791 m2 and 7 rooms with swimming pool

Total floor area is 751m2

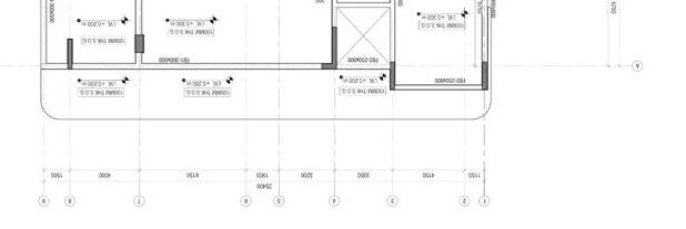
Ground floor and first and roof floor plans

LOD for concrete elements

Section in concrete elements revealing all floor slabs and concrete beams

Foundation plane showing the isolated footings and the concrete raft and the ground beams.

Foundation plane showing the isolated footings and the concrete raft and the ground beams.

Work-sharing

Autodesk Construction Cloud (ACC)

Creating a Project in ACC platform and making a folder structure according to ISO 19650. And uploading the central files to be accessible to all project members

Prepare the Shared levels and grids file

Creating Families

L-Shape Column

Creating a parametric family for a structural L-shaped column with varying depths and widths, and a free height for use in multiball levels.

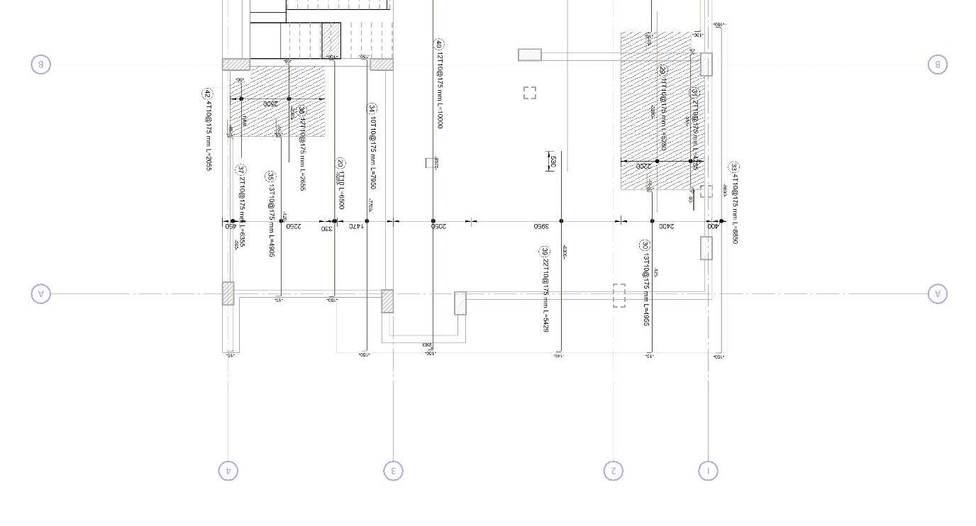
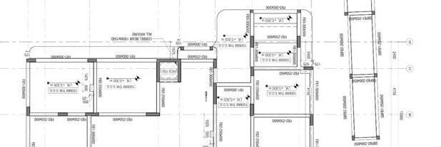
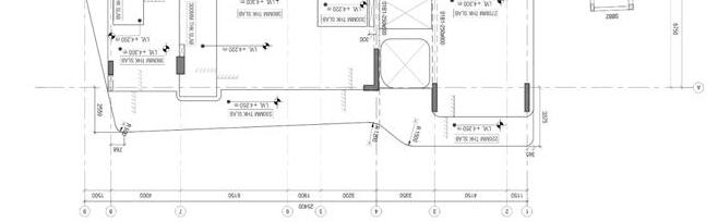
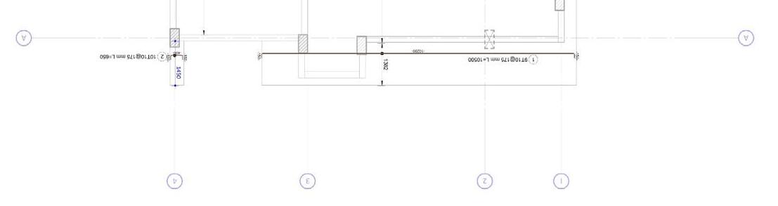
RFT Shop Drawing

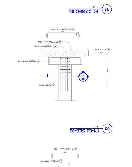
Detailed RFT Shop Drawing for Foundations, Tie beams, Columns, beams, stairs and slabs

Rebar details according to Egyptian code

RFT Shop Drawing

RFT Shop Drawing for Slabs

RFT Shop Drawing for Slab

Shop Drawing for Beams

RFT Shop Drawing for Beams

RFT

RFT Shop Drawing for Foundation

RFT Shop Drawing for Foundation

RFT Shop Drawing for Columns

RFT Shop Drawing for Columns

Shop Drawing for Stairs

RFT Shop Drawing for Stairs

RFT

Clash Detection

Clash detection

Preparing the clash matrix and the clash type and the permissible tolerance for every clash test

Clash Detection with Navisworks

Prepare Clash Matrix

Clash Detection with Navisworks

Clash Detection with Navisworks

ARCH WITH STR CLASHES

Clash Detection with Navisworks

ARCH WITH STR CLASHES

Clash-Before
Clash-After

Clash Detection with Navisworks

ARCH WITH STR CLASHES

Clash Detection with Navisworks

ARCH WITH STR CLASHES

Clash Detection in ACC (Issues)

Clash Detection in ACC (Issues)

Clash Detection in ACC (Issues)

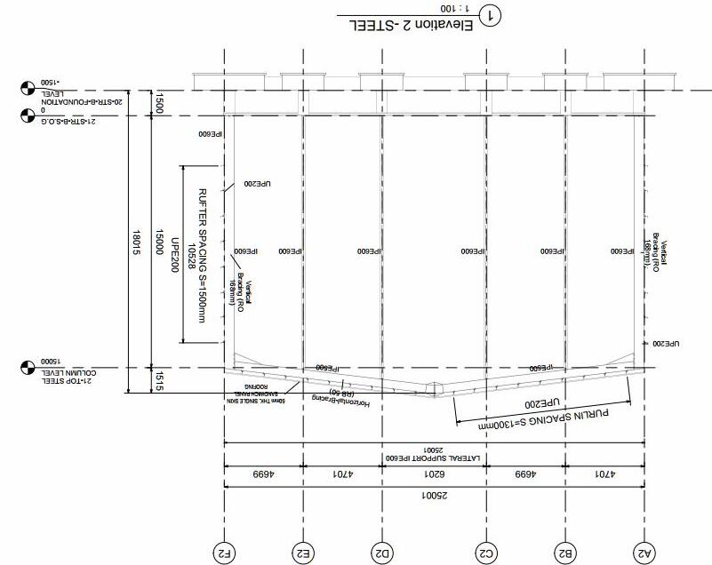
PROJECT 03

Multi Story Factory

Programs Used: Revit –Navisworks –AutoCAD –Photoshop

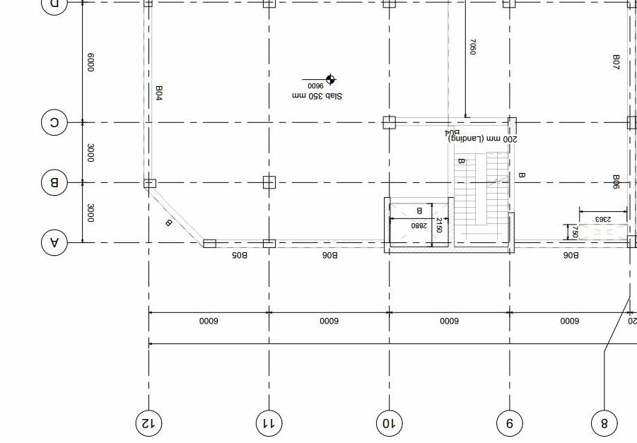
Project Details:

TheProjectisaMultistoryfactoryBuildingcomposedof1 Basements,Groundfloor,7TypicalfloorsandRoof Area of the Project: 2520 m²

Project Details

Project Details

3D Section

Project Details

Project Details

Schedules Details

Using Master format according to CSI for quantity surveying

BIM Interoperability Tool

Using BIM Interoperability Tool to assign Classification in Revit and to fill element section numbers and description

PROJECT 04

Elevated Tank

Programs Used: Revit –Navisworks –AutoCAD –Photoshop

Project Details: The Project is an Elevated Tank Composed of:

-RaftFoundation80cmthickness.

-35Piles(10mLong)

-6StructuralColumns(24.7mlong)and9Structural Columns(30.9mlong).

-TankBaseFloorWith50cmthickness.

-TankStructuralwallsWith40cmthickness.

-CoveringFloorWith20cmThicknessWhichisLiftedby24 Posts(24x24cm).

Area of the Project: 411 m²

Project Details

longitudinal Section

Project Details

3D Callout Tank Section
Marginal Beam 25 x 40 cm
Covering Slab 20cm
Structural  Wall 40cm

Project Details

Elevation longitudinal  Section

Project Details

Structural Beams 40 x 80cm

Project Details

Characteristic concrete strength after 28  days should not be less than 250 Kg/cm2,  with minimum cement content of  300Kg/m3 of ordinary Portland cement.

Typical Plane 3D Section

Project Details

Covering Slab 20cm

Structural  Wall 40cm

Structural Post  25 x 25cm

Structural Haunch to  distribute the  hydraulic forces  acting on the corners  which cause cracks  and damages to the  structure

Structural Slab 20cm

Structural Column  60 x 60cm

3D Callout Tank  Section

Project Details

Characteristic concrete strength after 28  days should not be less than 250 Kg/cm2,  with minimum cement content of  300Kg/m3 of ordinary Portland cement.

3D Section in Raft, Columns and Beams
3D Section

Turn static files into dynamic content formats.

Create a flipbook
Issuu converts static files into: digital portfolios, online yearbooks, online catalogs, digital photo albums and more. Sign up and create your flipbook.
BIM Structure Portfolio by Ahmed Darwish - Issuu