ARCHITECTURE PORTFOLIO
SELECTED WORKS- 2024-Present
Pottery Exhibition Centre, Spring 2024
Fostering the Community, Fall 2024
Nurture Through Nature, Spring 2025
Memory, Ruin, Construction, Spring 2025
Professional Work, October 2025- Present







POTTERY EXHIBITION CENTRE
The Grade II Listed Derby Hippodrome was designed by Newcastle architects Marshall and Tweedy and completed in July 1914. In 2016, the building suffered a serious fire and the structure currently remains derelict.
My proposal seeks to convert the Hippodrome into a Pottery Exhibition Centre. This is because ceramics have been an integral part of Derby’s rich cultural heritage for over three centuries. The repurposed communal space would host exhibitions, be a focal point for local businesses, run public engagement activities like ceramics classes and help to inspire a deeper appreciation for the city’s ceramic legacy within the community.




Construction Details:
AXONOMETRIC SECTION
As the Hippodrome is Grade II listed, most of the exterior has been preserved. A main change is the addition of a new layer of glazing on the third floor to allow for more sunlight to enter the structure - vital for any exhibition space.
Furthermore, the collapsed roof has been replaced with a flat standing seam zinc roof that covers the existing theatre space.
The addition of a roof garden on the east side of the building allows for outdoor sculptural installations as well as more social space for visitors.
6.
Airtightness
Damp proof course lapped under cill
Galvanised window straps with expanding foam/ mineral wool
25mm matt painted internal cill
50 x 100mm steel fins between glazing
7.
150mm PIR insulation above joists, followed by breather membrane
75 x 150mm timber joists, at 450mm centres
100 x 240mm exposed timber beam (seen in elevation)
150mm air gap between joists
12.5mm plasterboard, mechanically fixed to timber joists
3mm skim coat plaster
8. Columns
250 x 250mm concrete columns which support the void running through all the floors
9.






EXHIBITION SPACE
The model was inspired by the Design Museum’s central atrium by John Pawson and Allies & Morrison; where access and circulation is centralised through a lazy stair. I wanted to replicate this in the exhibition space and preserve the height and volume of the existing theatre space of the Hippodrome, while creating an intentional sense of flow and direction for users.
This lazy stair allows people to rest or stop and interact as they make their way through the exhibition space. Concrete columns support the ceilings around the voids in the 4 floors, creating a sense of order and hierarchy.





FOSTERING THE COMMUNITY
Fox Valley is a retail park that opened in 2016, located on former steelworks land. The site comprises 32 retail units and 600 parking spaces.
My scheme proposes building predominantly within the carpark area and adding a pavilion, residential buildings, a town hall and more shops to make the area more inviting, converting Fox Valley into a main hub of activity for Stocksbridge.





















NURTURE THROUGH NATURE
The Stocksbridge Youth Centre was built in 1967 and in 2024, Creative Building Projects were appointed to carry out its refurbishment.
My proposal seeks to convert the Youth Centre and the surrounding site into a cookery and agriculture school for 16-18 year olds as an alternative to traditional further education. The surrounding allotments will also contribute to the scheme and be used as part of the outdoor growing space, where all food will be grown and eaten on site with an emphasis on lowering CO2 emissions.















The site plan to the left shows my intentions for the site. I wanted there to be an uninterrupted visual connection to nature and for all the buildings in the scheme to overlook the outdoor growing space between them. The circulation routes emphasise this continuous journey through the natural environment.
Visual Connection to Nature
Proposed Greenhouse
Circulation Routes
Proposed Classrooms
Youth Centre
Proposed Kitchen







This view shows the journey between the classrooms and greenhouse building. It overlooks the outdoor growing space and wildflower garden, creating a peaceful and scenic narrative where students can take a break to socialise or rest on route to their destination.
This image shows the internal space of the greenhouse building. The greenhouse is steel framed, with the steel being produced by the local steelworks in Stocksbridge. Openable glazing along the walls and roof provides sufficient cross ventilation.









MEMORY, RUIN, RECONSTRUCTION
During my third year at the University of Nottingham, we were tasked with writing an essay exploring any two buildings of our choice for our architectural history module.
My essay compared the reconstruction of the Frauenkirche in Dresden with the approach taken at Coventry Cathedral which led me to reflect on the ethical responsibilities of architecture in shaping collective memory.
In my essay, I argued that the Frauenkirche’s meticulous reconstruction restores Dresden’s Baroque identity and symbolises reconciliation, yet it also risks obscuring the city’s more complex wartime history. By contrast, Coventry Cathedral preserves the ruins of the bombed medieval cathedral alongside a modern structure, acknowledging the rupture of war rather than erasing it.
This comparison deepened my interest in the moral implications of reconstruction and adaptive reuse, which I hope to explore further in my MArch studies.


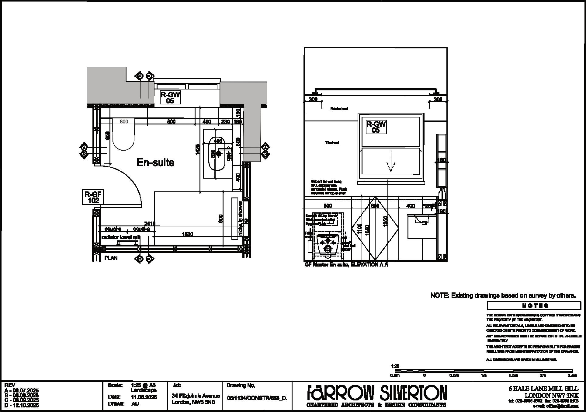
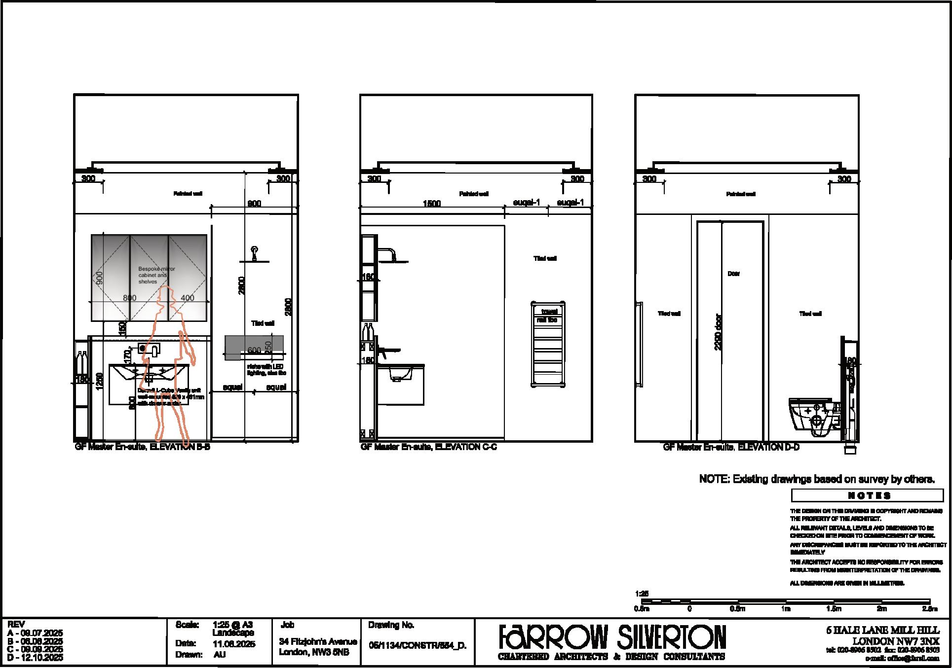
34 FITZJOHN’S AVENUE
For this project, I was tasked with developing visual renders for the proposed bathrooms of 34 Fitzjohn’s Avenue using sanitary ware and interior finishes specifically requested by the client. I also updated elevational drawings with the correct sanitary ware.
I spent the majority of my time on the master bathroom as the interior was largely finalised, but for the other bathrooms I came up with my own proposed finishes as potential options for the client to view. This was to help the client realise any final adjustments they might want to make as the project is in its construction stage (RIBA Stage 5).







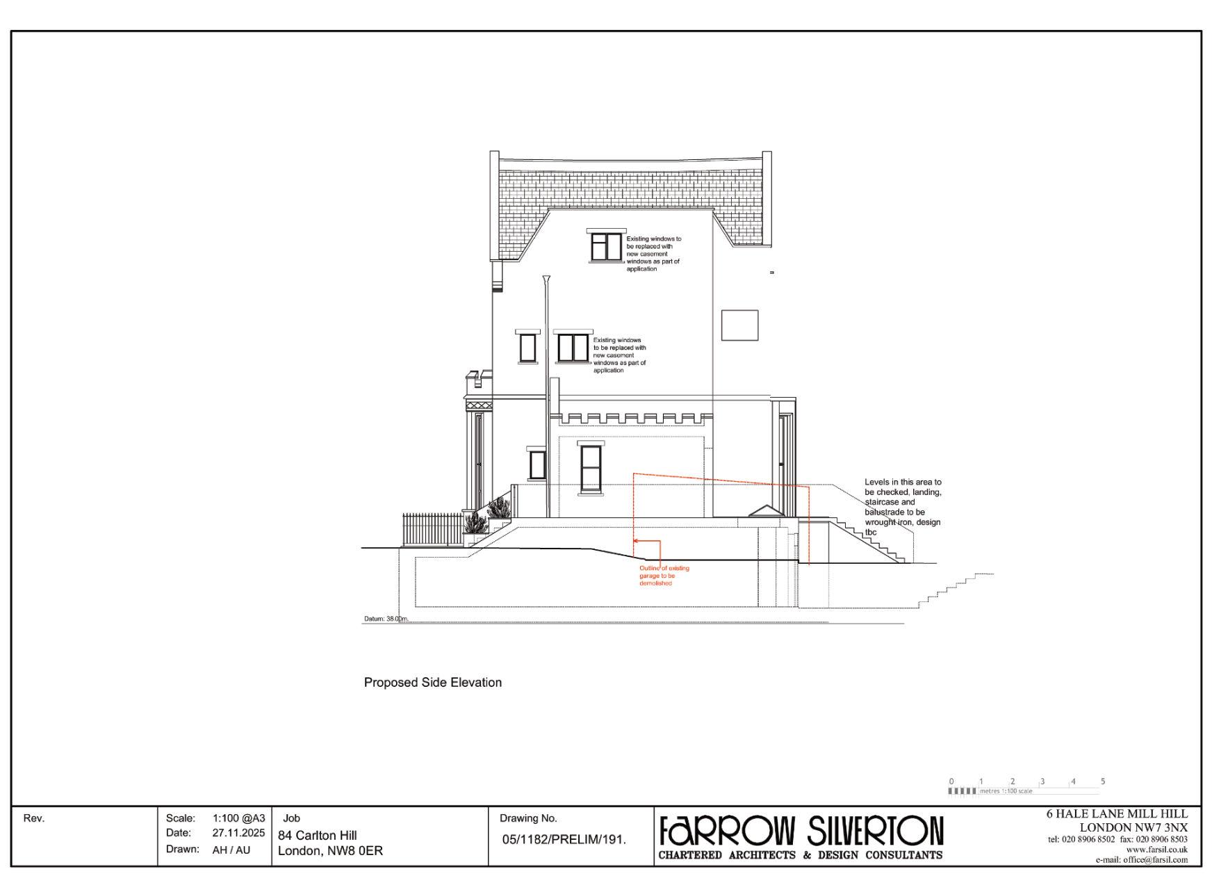
Carlton Hill is a Grade II listed detached building located within the St
Our proposal seeks to create a side extension to make the front entrance more accessible, as well as the enlargement of the existing basement to create additional space within the family home. My responsibilities included adding more detail to the existing survey drawings and developing proposals for the plans and elevations to submit for preapplication (RIBA Stage 2).











