Portfolio Amélie Harteel
Burgerlijk ingenieur-architect 2024



![]()
Burgerlijk ingenieur-architect 2024



In dit portfolio vindt u een selectie van mijn ontwerpen terug, gaande van de bachelorjaren tot de masterjaren. Niet enkel architectuurontwerpen, maar ook projecten uit keuzevakken komen aan bod. Het ontwerp van een meubelstuk, een circulaire unit, een renovatieproject en een 3D modellering van een bestaand gebouw zullen ook worden voorgesteld. Naast eigen ontwerpen presenteer ik u ook graag de projecten waar ik tijdens mijn stageperiode bij ABDM bv aan heb meegewerkt.
Projecten opleiding UGent 1.
Referentieprojecten stageperiode ABDM bv
1. Renovatie keuken en kleedkamer VAC Gent
2. Renovatie Funerarium D’Hondt
3. Circulair kantoor Haviland
4. Renovatie GBS Evergem
5. Wedstrijdontwerp Design and Build: Politiekantoor + gemeentehuis

15.08.1999
amelie.harteel@gmail.com +32 497 04 08 32 Suzanne Lilarstraat 65 9000 Gent
Ik ben een enthousiast persoon met een groot doorzettingsvermogen die graag uitdagingen aangaat. Dankzij mijn opleiding heb ik een architecturaal inzicht verworven en is tegelijk mijn fascinatie voor de ingenieurstechnieken gegroeid. Mijn interesses liggen voornamelijk in het verenigen van het architecturale en het structurele gebied. Ik kan zowel werken in teamverband als op zelfstandige basis, een complexe opdracht schrikt mij allesbehalve af. De opgedane kennis van op de schoolbanken heb ik al deels kunnen omzetten in de praktijk, echter wil ik dit graag nog verder uitbreiden. Om mezelf nog verder te ontplooien en bij te scholen ben ik enthousiast om opleidingen , workshops en lezingen te volgen die me hierbij kunnen helpen.
In mijn ontwerpen hecht ik veel belang aan de functionaliteit, structuur en duurzaamheid van gebouwen. De circulariteit van een gebouw gaande van de bouwmaterialen en bouwknopen, de structurele uitdagingen zoals grote overkragingen en overspanningen, maar ook de ervaring en beleving van de gebruikers van een gebouw staan tijdens het ontwerpen bij mij hoog aangeschreven. Het combineren van dit alles is voor mij dan ook de ideale uitdaging.
AutoCAD, Rhino 3D, Revit
Adobe Photoshop, Adobe InDesign
BIM 360, Grasshopper, Sketch Up
In samenwerking met de organistatie POOL IS COOL wordt een opdracht opgesteld voor het ‘Atelier 3de bachelor’ met als doel het openluchtzwemmen in Brussel op te waarderen. Op een afgebakend gebied van het Ter Kamerenbos te Brussel moeten een of meerdere units gebouwd worden waarin individuele kleedkamers, een groepskleedkamer, toiletten, douches, lockers, berging, EHBO ruimte en een sauna aanwezig zijn, elke faciliteit heeft een minimum aantal vereiste vierkante meters. Een extra moeilijkheid is dat de gebouwde units enkele jaren moeten blijven staan, maar ook gemakkelijk afgebroken moeten kunnen worden. De units moeten ook een verbinding tot het water vertonen in combinatie met een uitkijktoren die ter beschikking staat voor de redder.
Aangezien er aan de rug van de site een drukke baan ligt, wordt er gekozen om een langwerpige unit te bouwen van 3 meter op 30 meter. Hierbij doet de gesloten achterkant dienst als afschermende muur tussen het drukke stadsverkeer en de groene badplaats. Via de grote schuifdeuren aan de achterzijde kan de unit een meer open gevoel weergeven op dagen met minder verkeer. Alle functies, buiten de sauna, worden ondergebracht in deze ene unit. De hoofdstructuur bestaat uit een stelconplaten vloer met 16 houten portalen die worden aangevuld door polycarbonaatplaten voor de wanden en het dak. Deze platen worden verstevigd door een structuur van smallere houten balken. In het dak legt de structuur van horizontale balken de nadruk op de lengte van het gebouw. De structuur van de wanden is ontworpen per paneel, zo krijgen schuifdeuren, transparente en niet-transparante wanden een uniek uitzicht. Rode, stalen I-profielen benadrukken de grote unieke schuifdeuren. Het raster van balken en kolommen werkt als een vaste basis en geeft een ritme weer dat er voor zorgt dat de verschillende functies en het aantal vereiste vierkante meter op een eerder eenvoudig en strakke manier ingevuld kunnen worden. Deze verdeling is ook te zien via de buitenkant, waarbij transparante polycarbonaatpanelen doorgangen weergeven en ondoorzichtige panelen een meer private functie invullen. De sauna is een aparte ruimte gevestigd in het bos om de relaxte sfeer optimaal weer te geven.






Gevels 1:50
Gevels 1:50










Achtergevel beeld
Voorgevel beeld
Grondplan
































Achtergevel maquette
Voorgevel maquette




De opzet van het ‘Atelier bouwtechniek’ bestaat uit het verder uitwerken van een ingezonden ontwerpvoorstel voor een opdracht van Open Oproep. Er wordt gekozen voor het winnend ontwerp van OUEST en VERSA, namelijk de uitbreiding van de infrastructuur voor P.A.R.T.S, ICTUS en ROSAS te Vorst. Het oorspronkelijke ontwerpvoorstel wordt enkel toegelicht met schetsen, collages, visieteksten en een aantal maquettebeelden. Plannen en bouwtechnische details ontbreken. Het atelier doelt op het integreren van alle verschillende aspecten van het ontwerpproces, om zo tot een geslaagd eindproduct te komen.
Er is gekozen om de focus te leggen op het uitwerken van de danstoren op zowel structureel, architecturaal en technisch vlak. De structuur is ontworpen als een intelligente ruïne. Dankzij verdiepingshoogtes van 5.6 meter kunnen in de toekomst nieuwe programma’s, met vraag naar extra vierkante meters, gebruik maken van extra verdiepingen die deze hoogte ontdubbelen. Uit de originele visietekst wordt duidelijk dat het gebruik van TT-platen als vloerstructuur in de toren een must is, deze extra moeilijkheid wordt dan ook overgenomen in het uitgewerkt ontwerp. Het gebruik van prefab wanden en structuren heeft als voordeel dat de constructie efficiënt en snel gebouwd kan worden. De facades aan de verschillende zijdes zijn uniek en zo ontworpen dat het licht op de meest aangename manier de dansstudio’s invalt. Het gebruik van een geperforeerde metalen dubbele gevel zorgt er niet alleen voor dat het licht op een unieke manier binnenvalt, ook het positief effect op de koellast in de zomer speelt een rol. Doordat de site gelegen is aan een spoorweg en de dansstudio’s niet door elkaar gestoord zouden worden, wordt er extra aandacht besteed aan de akoestische uitvoering. Zo wordt er gebruik gemaakt van geluid absorberende panelen aan de muren en in het plafond tussen de TT-balken.




3D Rhinobeeld structuur danstoren Snede structuur danstoren
TT-platen worden opgelegd op de ringbalk die per verdieping wordt gedragen door de betonnen kolommen en de prefab betonnen trappenkoker. De betonnen kolommen verkrijgen hun unieke vorm doordat de consoles overvloeien in de kolom zelf.
Om de kolommen extra te benadrukken in de hoge ruimtes, is er gekozen voor kolommen met een rechthoekige doorsnede waarbij de langse zijde loodrecht op de gevel komt te staan. De kolommen worden smaller toe naar boven en volgen dus het aantal kilogram belasting dat per kolom gedragen moet worden.



Interieurbeeld danszaal Voorgevel nieuw deel


Gevelbeeld en verticale snede
Horizontale hoek snede en 3D snede dubbele gevel












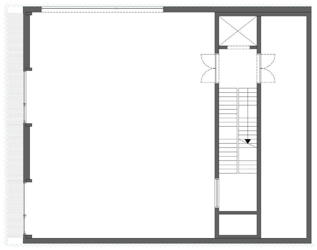
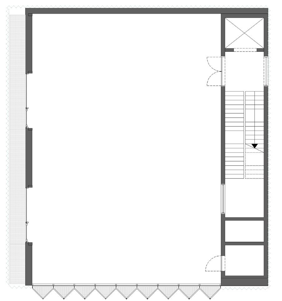
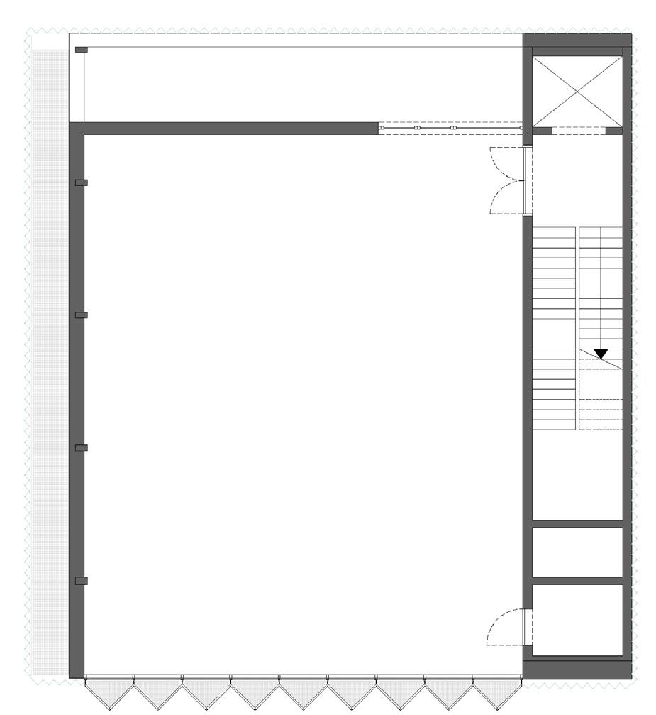
Grondplannen -1 en 0
Grondplannen 1 en 2
Snede AA’



Samen met instituut Bert Carlier Het Kwadrant in Gent, een middelbare school voor buitengewoon onderwijs, wordt een opdracht uitgedacht voor het ‘Bijzonder vraagstuk bouwfysica’. De opdracht bestaat uit het ontwerpen van een meubelstuk dat op de speelplaats van de school geplaatst kan worden en de functie invult van zitplaats. Een extra aandachtspunt is dat er rekening moet gehouden worden met de verschillende aspecten van autisme bij de leerlingen, zoals senstitiviteit voor kleuren, geluiden en nieuwe situaties. Om de leerlingen beter te begrijpen worden er ook enkele infosessies georganiseerd met de leerkrachten van de school.
Om te contrasteren tegen de kilte van de lege speelplaats en de omliggende betonnen gebouwen, wordt er gekozen voor een meer organische vorm voor het meubelstuk en een warmer materiaal, namenlijk Okoume multiplex. Het basisidee voor de bank is ontstaan uit een no-waste ingesteldheid, zo worden de negatieve vormen die uit de platen versneden worden ook als zitbank gebruikt. Het ontwerp vertrekt vanuit een combinatie tussen zitplaats en schuilplaats, deze is echter niet volledig afgesloten zodat er voldoende overzicht bewaard kan worden door de leerkrachten. Doordat er gewerkt wordt met meerdere uitgesneden vormen, waarbij de rugsteunen van een gebogen meer relaxte vorm overgaat naar een strakke rechte rugsteun, kunnen de studenten zelf kiezen welke houding ze aannemen. Hierdoor past de bank zich als het ware aan aan de hoeveelheid prikkels die de student wilt beleven: of ze een strakkere of lossere zithouding willen aannemen, of ze meer verborgen of liever opener willen zitten, etcetera. Om het semi-transparante gevoel van het zitstuk weer te geven, worden de multiplex platen naast elkaar geplaatst met een tussenafstand van 4 cm tot 2 cm, het verschil in tussenafstanden wordt opnieuw gelinkt aan het aantal prikkels dat een student wilt beleven. De platen worden verbonden doormiddel van vijf staven met schroefdraad die door de panelen heengaan, tussen elk paneel bevindt zich een spacer om de juiste afstand te hanteren. Om waterabsorbtie te verminderen, wordt de bank tenslotte geplaatst op een metalen frame met een hoogte van 6 cm .





Linkerzijde en voorkant beeld Achterkant en rechterzijde beeld





Bank met aanduiding staven Technische tekening spacers, staven en bouten Metalen frame
Voor het ‘Bijzonder vraagstuk bouwfysica’ wordt de nadruk gelegd op de woningsnood en de aandacht voor duurzaam bouwen. De opdracht bestaat uit het bouwen van een unit met een vast raster dat op een gemakkelijke manier in elkaar kan worden gezet en terug uit elkaar kan worden gehaald. De units moeten functies kunnen invullen zoals studie- en kantoorruimtes die minder oppervlak nodig hebben, maar ook toekomstgericht gestapeld en aaneengezet kunnen worden om functies zoals wonen in te vullen.
Het concept voor dit ontwerp bestaat uit de termen: bio-gebaseerde materialen, modulair en prefab. Als isolatie, wandmateriaal, vloer- en dakopbouw, wordt er gebruik gemaakt van kalkhennep die geperst wordt in de vorm van een paneel. De structuur van de module wordt opgebouwd uit LVL-balken. Vervolgens wordt er een eigen mal ontworpen om de kalkhennep panelen te prefabriceren alvorens ze op de site aankomen. De houten LVL-structuur is een vaste structuur die op de site wordt gemonteerd. De kalkhennep-panelen daarentegen worden in de structuur geschroefd en kunnen er later, bij een nieuwe invulling van de unit, gemakkelijk terug worden uitgehaald. De modules zijn zo ontworpen dat ze zowel naast als op elkaar kunnen geschakeld worden wanneer er een groter aantal vierkante meters is vereist. Verder kan er gekozen worden voor de opbouw van een hellend of plat dak.





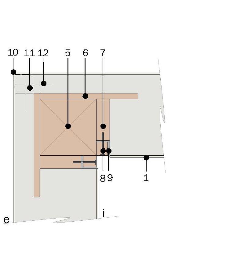
Horizontale snede grid
A. Horizontale snede kalkhennep paneel
B. Horizontale snede hoekpaneel
C. Horizontale snede raamaansluiting

1. Kalkpleister binnen
2. Interne structuur kalkhennep
3. Kalkhennep
4. Kalkpleister buiten
5. Kolom 30x30cm
6. Versteviging kalkhennep mal
7. Versteviging schroef en mal
8. Bevestigingslat
9. Schroef
10. Zwelband

11. Hoekprofiel kalkpleister
12. Hoekelement kalkhennep
13. Bevestigingsschroeven hoekelement
14. Raamanker
15. Luchtdichtheidsfolie
16. Soepele voeg
17. Opengaand raam
18. Druiplijst
19. Zwelband




Productiestappen kalkhennep panelen in mallen
Structuur en uitzicht van de kalkhennep gevelpanelen


Verticale snede plat dak
Verticale snede hellend dak






3D structuur en verticale snede 3 geschakelde modules Model 3 geschakelde modules en binnenbeeld
Voor het vak ‘Capita Selecta’ wordt de betonnen structuur van de Mercedes Garage van L. Palm en W. Van Der Meeren op de Plantin en Moretuslei te Antwerpen bestudeerd. Aan de hand van plannen en enkele zwart-wit foto’s wordt er een gedetailleerd 3D model gemaakt. De plannen dateren uit de jaren 50 en brengen een extra moeilijkheid met zich mee aangezien het fotokopieën zijn en geen CAD plannen. De garage werd gebouwd op een hoekperceel met de vorm van een trapezium en benutte een oppervlakte van 3500 vierkante meter. Het programma van het gebouw werd uitgestrekt over drie etages. De structuur bestond uit een raster van vijf betonnen kolommen aan de langse zijde en vier kolommen op de dwarse zijde, waarbij de middelste kolommenrij werd ontdubbeld omwille van een zettingsvoeg. Het raster van betonnen kolommen was orthogonaal en tegelijk onregelmatig door de aparte vorm van het terrein en de verschillende invullingen per etage. Een hellingsbaan verbond de drie verdiepingen met elkaar. Om er voor te zorgen dat deze hellingen niet te steil uitvielen, werd een vrije hoogte van 4.3 meter voorzien per helling. Hierdoor ontstonden overspanningen van 15 meter in beide richtingen van het raster, deze werden overspannen door prefexliggers van 95 centimeter hoogte. De overspanningen van 30 meter op de tweede verdieping werden gedragen door omgekeerde balken in gewapend beton met een hoogte van 3 meter die hoog boven het dakvlak uitstaken. Samen met de sheddaken, bestaande uit schalen in dunwandig beton, gaven deze elementen de garage zijn specifieke uiterlijk.


Horizontale snede -1 en 0
Horizontale snede 1 en 2




Dwarse verticale snede door de werkputten
Dwarse verticale snede trappenhal


Langse verticale snede door de werkputten 3D beeld
In het vak ‘Renovatietechnieken’ wordt de Sint-Amanduskapel onder handen genomen. De kapel is verwaarloosd en dient een herbestemming te krijgen. De Sint-Amanduskapel maakte deel uit van het voormalige Alexianenklooster en is sinds 1979 beschermd als monument en ook als stadsgezicht. Vroeger had de kapel een rijk gestoffeerd barokinterieur met opmerkelijke sculpturale versiering van zwarte en witte marmer. Na een site bezoek wordt er een historische nota, een pathologisch rapport en een gedetailleerde waardebepaling opgesteld om alle troeven van de kapel en de bijhorende ruimtes te achterhalen. Hieruit worden de verschillende stijlen die de kapel doorheen de jaren heeft aangenomen duidelijk, gaande van barok tot de neogotiek. Door elementen van beide stijlperiodes te renoveren, komt de historische gelaagheid van de kerk meer tot zijn recht. Christelijke beelden, tekens en schilderijen worden verwijderd uit de kapel om zo een breder doelpubliek aan te spreken in dit herbestemmingsproject. Na een analyse van de omgeving wordt als functie voor de herbestemming gekozen voor een werkcafé. De site van de Sint-Amandus kapel wordt beheerd door een bedrijf dat actief is in de thuiszorg. De grootste groep werknemers bestaat uit verzorgend personeel dat vrijwel elke dag op pad gaat naar hun cliënteel. Hierdoor ontstaan er zelden gelegenheden om collega’s te ontmoeten, het werkcafé kan dienen als een aangename ontmoetingsplaats om eventuele meetings te houden. Op de site zelf worden de bijhorende ruimtes van de kapel ontworpen als een aantal kantoren en een bijkeuken voor het bedrijf. De kapel zelf krijgt de invulling van het werkcafé. Om de buurt meer te betrekken wordt er ook een ruilbibliotheek ontworpen en een vergaderzaal die door eender welke organisatie kan worden afgehuurd.


Grondplannen 0, 1 en mezzanine Dwarse verticale snede kapel




Via deze referentieprojecten wil ik u meer duiding geven over het takenpakket dat aan mij werd toegewezen en de kennis die ik heb opgedaan tijdens deze eerste periode van mijn stage.
Dit project omvat de renovatie van de keuken en kleedkamer van het Virginie Lovelingegebouw te Gent. Het vast meubilair werd volledig intern ontworpen, hierbij stond circulair materiaal gebruik centraal.
Mijn takenpakket bestond uit de opvolging van de werf, contact met klant en aannemer en het bijsturen/aanpassen van de uitvoeringsplannen van het vast meubilair en de wandbekleding.



Het bestaande Funerarium D’Hondt te Oudenaarde wordt gerenoveerd en uitgebreid met onder andere een nieuwe aula, winkel en ontvangstruimte. Het opmaken van het volledige aanbestedingsdossier en Revit 3D model, het uitvoeringsdossier opstarten en de werfopvolging van de buitenaanleg maakten deel uit van mijn takenpakket.






































Voor de streekintercommunale Haviland werd een volledig modulair en circulair kantoorgebouw toekomstig bestendig uitgewerkt met herbruikbare en demonteerbare materialen. Het opstellen en indienen van de bouwaanvraag behoorden in een eerste fase tot mijn takenpakket. Bij de aanbestedingsfase kwam daar het ontwerp en uittekenen van het vast meubilair bij en het helpen uitwerken van de bouwknopen in uitvoeringsfase.

Dit project omvat de renovatie van de gemeentelijke basischool te Evergem. De complexiteit van dit project zit hem vooral in de omvang van de site en de verschillende fases waarin het gebouw wordt gerenoveerd, het gebouw blijft tijdens de werken namelijk in gebruik.
Dit project zat reeds in uitvoering tijdens de aanvang van mijn stage. Intern uitvoerende taken zoals de vorderingsstaten, verrekeningen en het aanpassen van de uitvoeringsplannen werden door mij uitgevoerd.




Door de gemeente Ranst werd een wedstrijdontwerp opgesteld met de formule Design and Build voor het ontwerp van een masterplan voor de site en een politiekantoor met aansluitend een gemeentehuis.
Ik maakte hierbij actief deel uit van het ontwerpteam en het lot vast meubilair werd eveneens aan mij toegekend.
Omdat de procedure nog lopende is, kunnen er geen beelden van dit project worden weergegeven.