AGOSTINA FERRARI - PORTFOLIO 23'

Page 1


“Designisnotjustwhatitlookslikeandfeelslike. Designishowitworks.”

My mother and I have shared a love for design ever since I can remember, spending endless hours together watching home renovation shows on TV while sharing and drinking mate, a sacred tradition in Argentina.

Early in my career, I dedicated myself to business administration, acquiring expertise in trade marketing and sales. Developing outstanding skillsintimemanagement,teamwork,andclientservices.

Insearchofnewadventures,Iturnedtomyoldpassionfordesignmoving from Argentina to Australia to pursue a career in Interior Design. My driving force for design is functionality, combining the elements and principlesofdesigntocreateaholisticandinnovativedesignconcept.

My career in Interior Design is just beginning, and I am looking forward to new opportunities. I hope that we can work together in the future on excitingprojects.

Togetintouchemailme:agostinaferrari.id@gmail.com

PROJECT EARTH

Commercial Retail

Academic project

01 02 03 04 05 06

YOU'RE INVITED

Commercial Hospitality, Retail, Office

Academic project

MAKE IT WORK

College Library

Academic project

JUST FOR YOU

Residential design for the Less Able

Academic project

THE ULTIMATE INDUSTRIAL SCAPE

Residential two-story loft

Academic project

THERE'S NO PLACE I'D RATHER BE

Residential Nursery, Living, Dining

Academic project

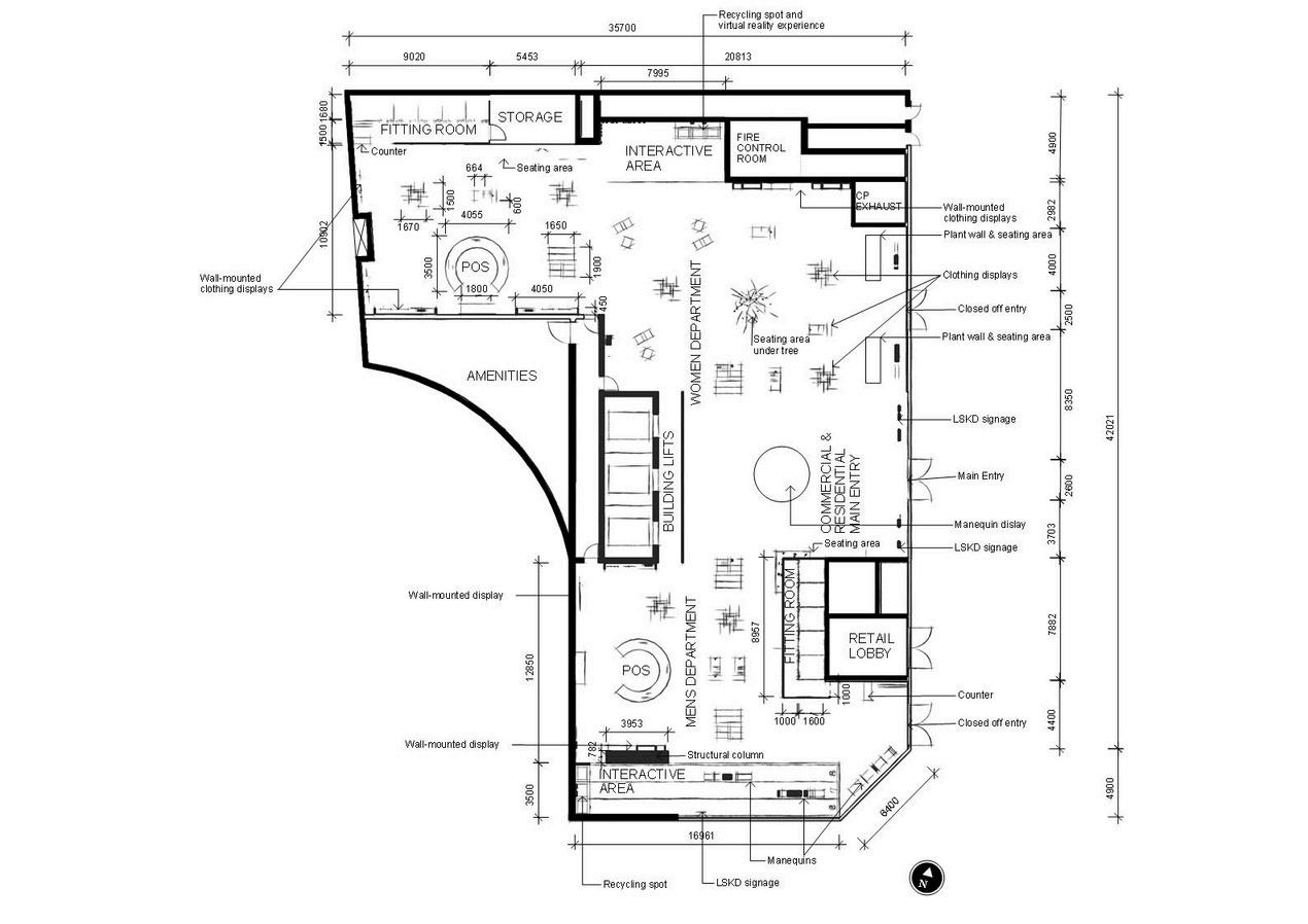
01 PROJECT EARTH

CommercialRetailShop

Brand: LSKD

Location: 144-154 Pacific Highway and 18 Berry St, North Sydney, NSW

Software: SketchUp - Twilight

We've been requested to design a large-scale Popup retail store for an online brand of our choice.

The one selected was LSKD, an Australian activewear brand.

Usually, they create clothing for children, men, and women, but they wanted to showcase Project Earth for this store. Just for adults of both sexes, they feature a distinctive collection of recycledfabric clothing.

We have been given permission to open up the middle commercial space so that we can connect the three that we have been allocated.

Their final requirement was for at least three pieces of custom-made joinery, including a point-of-sale system, a retail display, and an interactive display.

CONCEPT BOARD

CONCEPT DEVELOPMENT

3D BLOCK MODEL - RECYCLING AREA
MIND MAP
HAND SKETCH
3D BLOCK MODEL - MEN'S SECTION

DESIGN DEVELO

RECYCLING POINT

PROJECT DELIVERABLES

DESIGNSTATEMENT

Project Earth was inspired by their new project in which their main goal is to assure that their daily practices are environmentally sustainable.

Therefore, our design has to be up to and aligned with the wishes of the client. Recycled and/or sustainable materials, improving energy efficiency, and smart use of natural lighting and the colour palette is chosen so as to create brother spaces.

We want to help them reduce the environmental impact not only in their clothing production but also in their stores, and like that have a cohesive story to tell to their clients in every single aspect of their business.

The planet needs more heroes, so being able to leave our mark with a greener design is a must.

MENS SECTION WOMEN'S SECTION
WOMENS SECTION ELEVATION
MEN'S SECTION ELEVATION MATERIALS BOARD
WOMENS SECTION

02 YOU'RE INVITED

CommercialHospitality,Retail&Office

Brand: Gelato Messina

Location:67-73 Hardware Lane, Melbourne, VIC

Software: SketchUp

For the new hospitality venue, retail shop, and corporate offices of Gelato Messina, two levels of a famous Melbourne CBD building had to be renovated. The two ground-floor commercial areas were intended to house the gelato shop and the retail store, while Level 1 was meant for the offices.

All three spaces must include branding. They should all have a consistent design that makes them flow and logically link.

Construction drawings, including any structural changes and building services, along with custommadejoinery detailing, were requested.

MIND MAP

CONCEPT DEVELOPMENT

HAND SKETCHES

3D MODEL BLOCK - GELATO SHOP
3D MODEL BLOCK - RETAIL SHOP

DESIGN DEVELOPMENT

GROUND FLOOR PLAN - (NTS)

DESIGN STATEMENT

This idea was inspired by Messina's gelato flavors. Each of them is unique, made with its own ingredients and recipes, so I wanted to capture that and take it into the design.

A very unique and different concept, where colours, textures, and patterns would be mixed so to provide an exceptional experience throughout the place.

We were also asked to design the offices which are going to be used by the marketing team, so being creative is a must. From the furniture to the wallpapers or paint colour chosen, everything will be selected having this in mind. But always being functional and ergonomically thought out.

PROJECT DELIVERABLES

GELATO SHOP
MATERAILS BOARD

03 MAKE IT WORK

CollegeLibrary

Client: Australian Pacific College

Location:Level 1, 221 Queen St, Melbourne, VIC

Software: SketchUp & Twilight

Tasked to design the new library for Melbourne's AustralianPacificCollege.

The client stated they required the area to hold at least 500 volumes, offer chill/study spaces for further privacy, and seat up to 20 people at once.

Additionally, a desk for a librarian and a designated area for three computers for student use was requested. To make the most of the available space, a flexible space must be developed. a few pop-ups and a muted colouring scheme.

CONCEPT BOARD

MIND MAP / IDEATION

CONCEPT DEVELOPMENT

BUBBLE DIAGRAMS / SPATIAL PLANNING

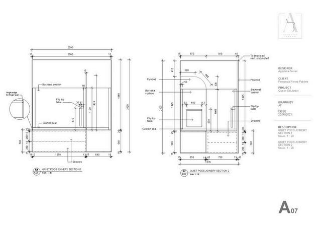
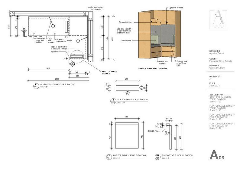
QUIET PODS JOINERY DETAILING CUSTOM-MADE QUIET POD & BOOCKSHELF

BOOKSHELF JOINERY DETAILING

DESIGN STATEMENT

Whether you decide to get extra resources and work on your assessments, or just relax and have a good reading, the "Make it Work" library can provide it all.

Our distinctive custom-made joinery stands out and creates the "wow" reaction we want visitors to have when they enter. Students frequently avoid libraries because they are perceived as "boring" locations, but here we will take them on a happy adventure.

The decision for incorporating a crosshatched pattern to the bookshelf not only makes it a focal point but is still functional while

PROJECT DELIVERABLES

COLLABORATIVE AREA & LIBRARIAN DESK

CUSTOM-MADE BOOKSHELF

ELF ELEVATION
LS BOARD
COMPUTERS & QUIET POD ELEVATION
RENDERED FLOOR PLAN

04 JUST FOR YOU

ResidentialdesignfortheLessAble

Client: Louisa Pascali

Location:Manly, Sydney, NSW

Software: SketchUp & Twilight

Special project because it involved designing the final home for a 76-year-old woman. Accessibility was our primary priority because Louisa has some mobility limitations.

She wanted to include European design elements in her home to bring back memories of her travels with her recently deceased husband. Additionally, she enjoys reading and writing to her friends.

She is very close with her family and friends and enjoys having them around and spending time with them. There must be ample seats for them in the living and dining room.

Handles and taps need to be carefully thought through, as she finds some of them difficult to maneuver.

MIND MAP

BUBBLE DIAGRAM

CONCEPT DEVELOPMENT

DESIGN DEVELOPMENT

PROPOSED FLOOR PLAN - NTS

L V NG ROOM

ROOM

KITCHEN ELEVATION - NTS

LIVING ROOM ELEVATION - NTS

ROOM

SECTION 1 - NTS

SECTION 2 - NTS

DESIGNSTATEMENT

With the client s strong desire for a personalized residence, the "Just for You" project aims to create a space tailored precisely to her preferences This concept promises to deliver a home where every deta reflects her taste and vision

Drawing insp ration from a modern Moroccan aesthetic nfused with European elegance, the design strikes a harmonious ba ance Louisa s love for European style is seamlessly blended with e ements of Moroccan flair, resu t ng in a unique and inviting atmosphere

The color palette spans from warm terracotta tones to a var ety of subtle o d p nks, adding depth and character to the space

Visitors to Louisa's new home wi immediately sense ts bespoke nature, crafted exc usively for her. Yet, they w a so find themselves we comed into a space that exudes comfort and hospita ty, nv t ng them to feel at ease.

PROJECT DELIVERABLES

THE ULTIMATE INDUSTRIAL SCAPE

Residentialtwo-storyloft

Client: James Flint

Location:5/145 Belmont Street, Alexandria, Sydney, NSW

Software: SketchUp & Twilight

The main characters in this residential project are James Flint and his dog Dot. They were moving into a split-level apartment that needed to be renovated. He asked to have the majority of the house's rooms redesigned with specific requests in mind, such as adding drama to the main room and turning the second room into a small fitnessstudio.

Considering zoning off the living and the dining rooms was something the client mentioned, together with a nook for his dog.

A full pack of construction drawings was asked to be presented to his own contractor.

Incorporate a custom-made lighting fixture for the void above the living room.

MIND

CONCEPT DEVELOPMENT

HAND SKETCHE- VOID PERSPECTIVE

EXISTING FLOOR PLAN - NTS

ANALYSIS OF EXISTING SPACE

TURE

DESIGN DEVELOPMENT

PROPOSED FLOOR PLANS- NTS

SECTIONS - NTS

PROJECT DELIVERABLES

DESIGNSTATEMENT

The Ultimate Industrial Scape has its focuses on creating a masculine New York warehouse-style home.

The colour palette is based on black, metal, and brown tones, but with the addition of some greens from indoor plants.

Timber is going to be used to replace the existing floors all around the house and exposed bricks in the main wall will be added to create this factory feeling.

My idea was to create a place where the client can “escape” from the outside world and come back to a relaxing but still functional place where he can have it all

LIVING ROOM
CUSTOM DESIGNED LIGHTING FIXTURE
RENDERED FLOOR PLAN - NTS
BIRDSEYE VIEW
KITCHEN ELEVATION
BEDROOM ELEVATION

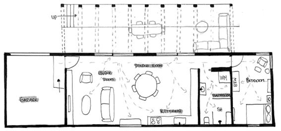
THERE'S NO PLACE I'D RATHER BE

ResidentialNursery,Living,Dining

Client: Juliana & Kyle Hunt

Location:19 Pembroke St, Parramatta Park, Cairns, QLD

Software: SketchUp

Juliana and Kyle currently live in Cairns, where they bought their first house, which has great potential for restoration&renovation.

Juliana is 5 months pregnant so they need to transform one of the bedrooms into a nursery room. They requested enough storage for all the baby clothes and toys that their family already bought.

They requested a neutral colour palette but with the addition of pop-ups in furniture or a feature wall in the baby's room.

They want their home to be as safe as possible, with no sharp edges or anything the baby could hurt themselves on.

BUBBLE DIAGRAM

ANALYSIS OF EXISTING KITCHEN

ANALYSIS OF EXISTING LIVING & DINING ROOM

PROJECT DELIVERABLES

PROJECT DELIVERABLES

DESIGNSTATEMENT

There s no place I'd rather be...", that's precisely where I got the inspiration for coming up with this design concept. Juliana and Kyle are about to have their first baby, so where else they would like to be rather than home?

Functional spaces, that are not only beautiful but that are going to make their life simpler. Big sofa, big dining table, family coming over, therefore, every room should be as comfortable as possible.

Punches of muted colour here and there, to create more inviting spaces. Interior plants also bring life into the rooms and layered textures finalize the style.

Contemporary look, with some Mid Century Modern furniture, keeping it always simple and uncluttered.

NURSERY ROOM
LIVING ROOM
LIVING AND DINING ROOM
DINNIG ROOM MATERIALS BOARD

Turn static files into dynamic content formats.

Create a flipbook
Issuu converts static files into: digital portfolios, online yearbooks, online catalogs, digital photo albums and more. Sign up and create your flipbook.
AGOSTINA FERRARI - PORTFOLIO 23' by Agostina Ferrari - Issuu