architektura portfolio

Agnieszka Liszka agnieszkaliszka@gmail.com
![]()

Agnieszka Liszka agnieszkaliszka@gmail.com
Jestem architektem z kilkuletnim doświadczeniem, które zdobywam od czasów studiów, kiedy rozpoczęłam swoją pracę nad projektami wnętrz, architektury i urbanistyki. Od ponad 3 lat pracuję w biurze, które specjalizuje się w budynkach handlowych, a także realizuje projekty mieszkaniowe oraz biurowe. W swojej pracy łączę estetykę z funkcjonalnością, zawsze starając się znaleźć najlepsze rozwiązania dopasowane do potrzeb użytkowników.
Kreatywność i nieustanny rozwój to wartości, które stale mi towarzyszą, a dodatkowe zainteresowania, takie jak grafika, psychologia czy fotografia, pomagają mi patrzeć na projekty z różnych perspektyw.
Uwielbiam podróżować i odkrywać nową architekturę, z której czerpię inspiracje, przekładając je na swoje projekty. Każda podróż to dla mnie okazja do zgłębiania różnorodnych kultur i stylów architektonicznych.
DOŚWIADCZENIE ZAWODOWE
01 Asystent architekta
05.2021 - obecnie
Arkus BPD Sp. z o.o.
02 Projektant wnętrz
07.2020 – 08.2022 (zlecenia)
JOCOdesign
03 Asystent architekta
01.2019 - 10.2019
Baumschlager Eberle - DDJM
04 Praktyka zawodowa
09.2018 - 01.2019
Baumschlager Eberle - DDJM
05 Stażysta
Konserwacja zabytków
08.2018 - 09.2018
LA VALLEE DU TERNIN
Studia II stopnia, Architektura
2019 - 2021
Politechnika Śląska w Gliwicach
Studia II stopnia, Architektura
2020 - ERASMUS+
UPV/EH, Hiszpania
Studia I stopnia, Architektura
2015 - 2019
Politechnika Śląska w Gliwicach




JĘZYKI
Polski - j. ojczysty
Angielski - zaawansowany
Niemiecki - początkujący
Hiszpański - początkujący

Unity Centre w Krakowie
Biurowiec z halą pokazową w Gliwicach
Park handlowy w Lubinie
Zespół budynków mieszkalnych w Szczyrku
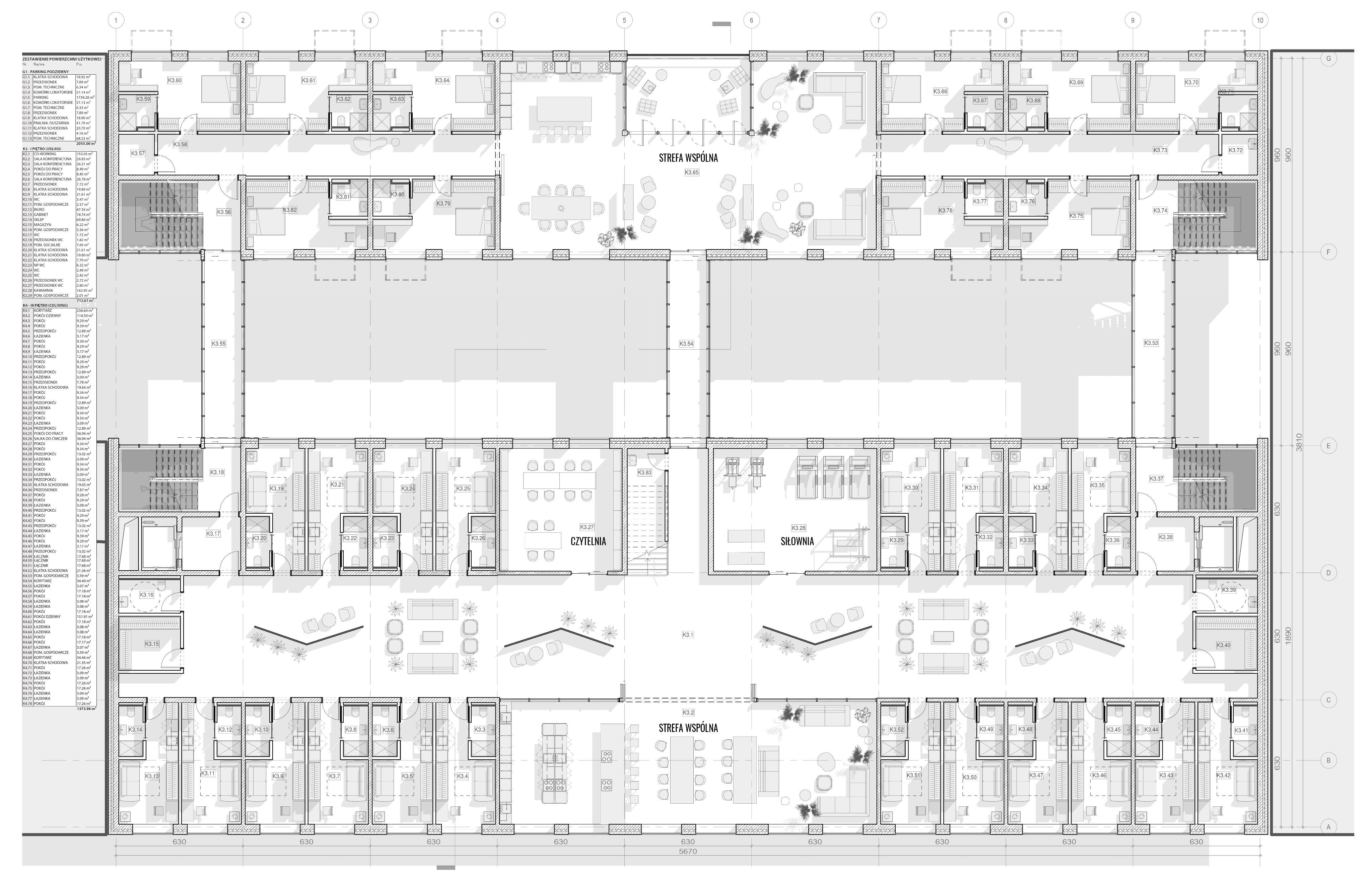
Praca magisterska - Co.Gardens



ETAPY PROJEKTOWE: WYKONAWCZY
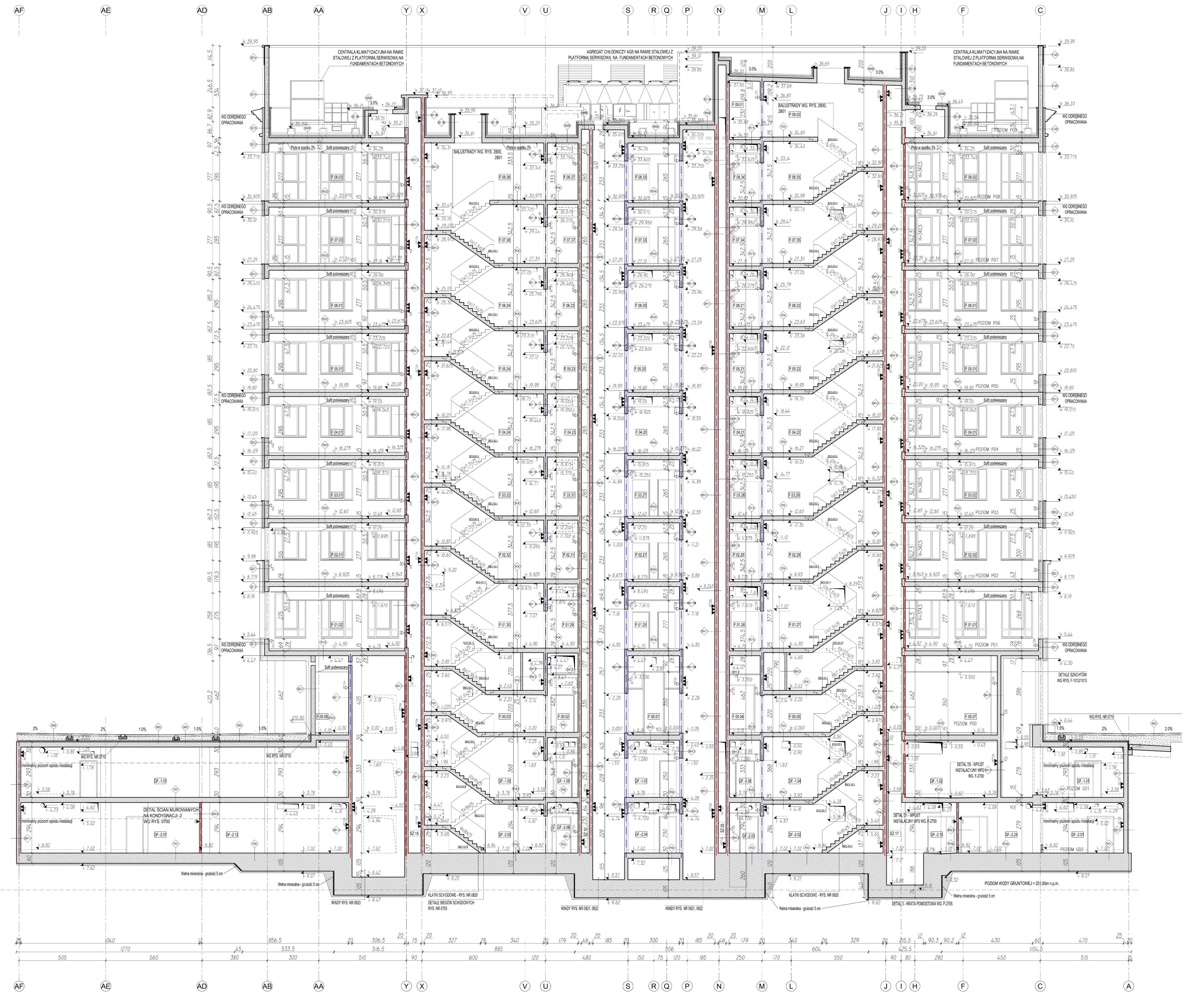
Unity Centre to wielofunkcyjne centrum biznesowe w śródmieściu Krakowa składające się z pięciu budynków o zróżnicowanej skali zabudowy. W skład kompleksu wc odzi najwyższy w mieście biurowiec Unity Tower o wysokości 102 m. To propozycja dla tyc którzy cenią centralną lokalizację i prestiż. Centrum oferuje
46 000 m² powierzc ni biurowej klasy A na wynajem
400 miejsc parkingowyc na dwóc podziemnyc kondygnacjac
200 miejsc postojowyc dla rowerów
Unity Centre posiada certyfikat zielonego budynku i jest całkowicie pozbawione barier arc itektonicznyc co zapewnia pełną dostępność dla wszystkic użytkowników.
Unity Square znajdujący się u podnóża Unity Tower łączy kampus uniwersytecki z głównymi stacjami transportu publicznego.
To tętniąca życiem przestrzeń pracy i relaksu idealna na spotkania kawę lunc czy zakupy.
W ramac kompleksu znajduje się również 9-kondygnacyjny biurowiec University Office z powierzc nią najmu brutto ok. 7 200 m².







Zakres obowiązków:
Koordyn cj r n
Projekt sufitów ośw etlen
Rozw n ęc śc n poszczególnyc pom eszcze
Projekt ł z enek ol
Projekt kl tk sc odowej lustr d w eżowc
Wprow dz n e zm n n elew cj c
Pr c n d rzut m , przekroj m det l m
B eż cy kont kt konsult cje
z wykon wc


Biurowiec z halą doświadczalną
Gliwice projekt zespołowy w biurze
Architektura obiektu opiera się na cegle klinkierowej, która jest głównym motywem wizualnym, nawiązującym do tradycyjnego stylu Nowych Gliwic. Elewacja budynku wyróżnia się eleganckim czarnym kolorem, a dekoracyjne szprosy dodają jej nowoczesnego, ale jednocześnie klasycznego charakteru.
W projekcie biurowym dążono do stworzenia harmonijnej atmosfery, łącząc tradycyjne pokoje biurowe z otwartymi przestrzeniami typu open space.





Fragment zagospodarowania terenu
Zakres obowiązków:
P jekt zag sp da wan a te en
Układ funkcj nalny b u a, kantyny częśc wsp lnyc
Detale wnęt z fasad szklanyc
K nsultacja elewacj p aca nad układem szp s w fasady szklane
K dynacja z b anżam
Układ św etlen a sufit
P aca nad m delem
w zual zacjam
K ekta w zual zacj
D st s wan e ysunk w d wym g w p szczeg lnych etap w p jekt
K ntakt z nwest em


ETAPY PROJEKTOWE: BUDOWLANY, WYKONAWCZY
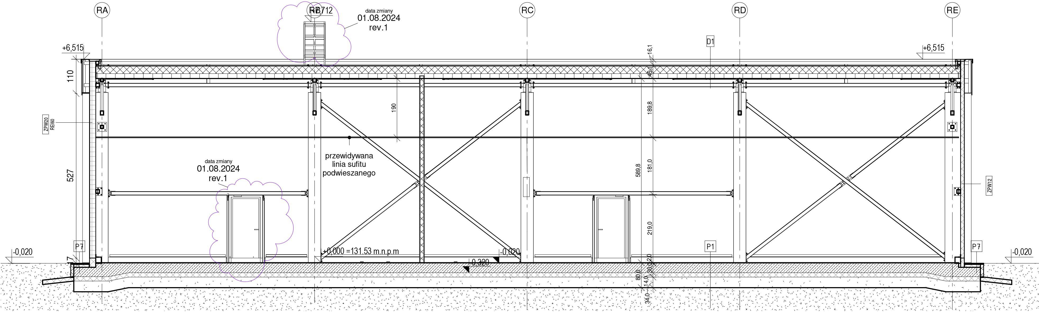
Rewitalizacja dawnego obiektu TESCO w Lubinie została przeprowadzona z myślą o nowoczesnej funkcjonalności i estetyce. Kluczowym elementem projektu było stworzenie otwartego pasażu pieszego, który przeciął istniejącą bryłę budynku.
Nowy pasaż stał się główną przestrzenią komunikacyjną, łączącą liczne lokale handlowe, w tym te o większych powierzchniach, co zapewnia komfort zarówno sprzedawcom, jak i kupującym. Dzięki takiemu rozwiązaniu klienci mogą poruszać się między sklepami w przestrzeni
otwartej i bezpiecznej, z dala od parkingów, co podnosi komfort i jakość wizyty w obiekcie.
Architektura parku handlowego nawiązuje do lokalnej specyfiki – miedź, będąca dominującym materiałem wykończeniowym, stanowi bezpośrednie odniesienie do Lubina, miasta położonego w centrum zagłębia miedziowego.
Całość łączy nowoczesność z szacunkiem dla regionalnej tożsamości, tworząc przestrzeń przyjazną zarówno dla klientów, jak i lokalnej społeczności.



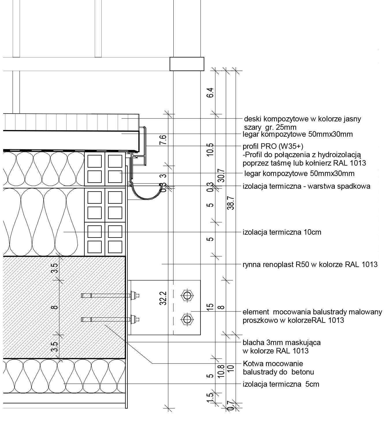
PRZEKRÓJ 1-1

PRZEKRÓJ






Zakres obowiązków:
raca nad Z
D tal z wnętrzn
raca nad uk ad szprosów
fasady szklan j p yt
warstwowyc
roj kt pylonów r kla owyc
Wprowadzan konstrukcj
k ad ośw tl n a sufit
Konsultację w spraw wyboru
at r a ó
raca nad od l
Dostosowan rysunków do wy ogów poszcz gólnych
tapów proj ktu


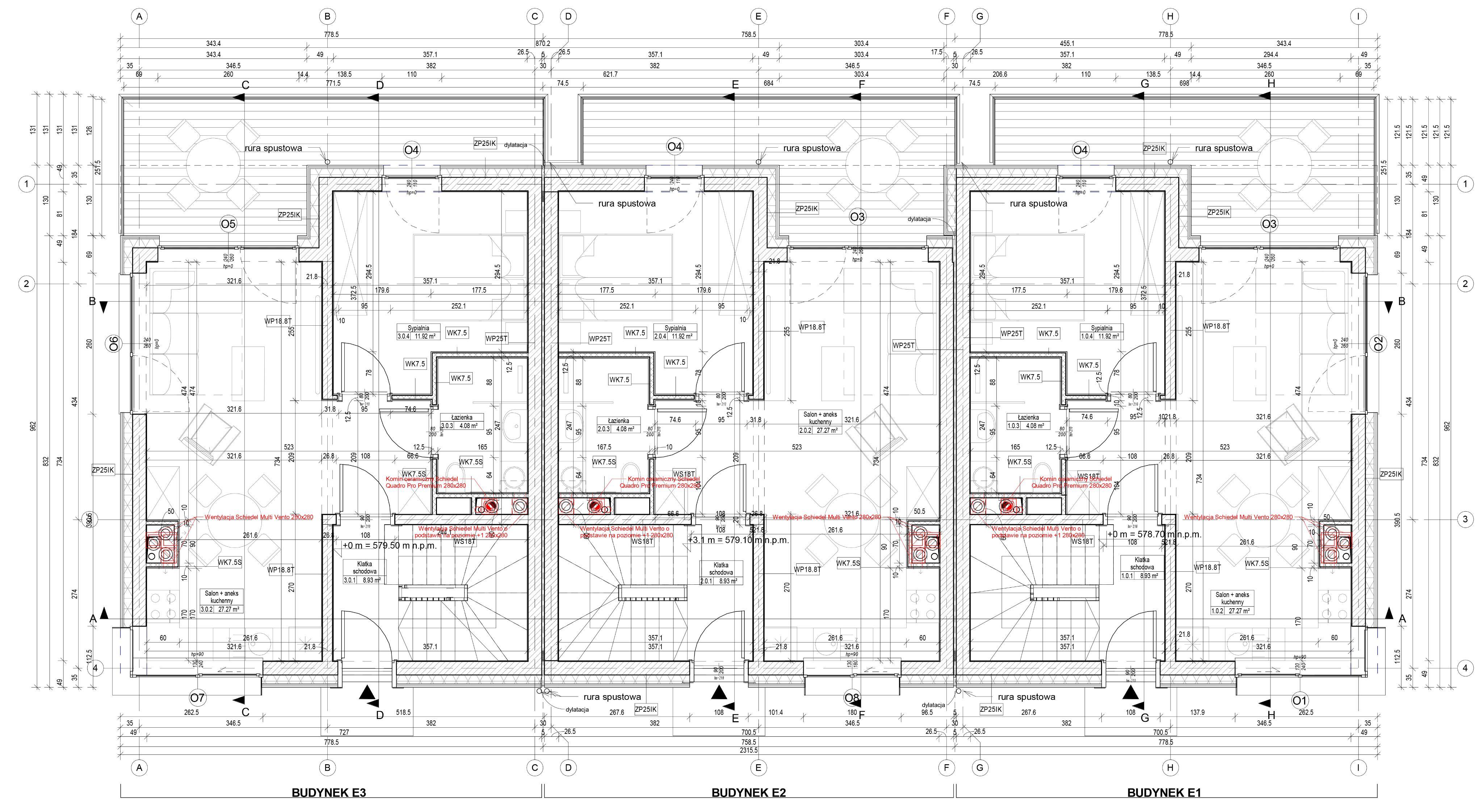
Szczyrk projekt zespołowy w biurze
ETAPY PROJEKTOWE: KONCEPCJA, BUDOWLANY, WYKONAWCZY
Zabudowa składa się z dwupiętrowych budynków szeregowych i bliźniaków, w których znajdują się komfortowe apartamenty.
Kolorystyka budynków podkreśla ich nowoczesny, ale jednocześnie ciepły charakter — jasne drewno, beżowa stolarka oraz praktycznie białe, subtelne pokrycia dachowe z blachy idealnie współgrają z otaczającą naturą.
Z uwagi na ukształtowanie terenu, niektóre budynki są częściowo wkomponowane w zbocza, co nie tylko podkreśla malowniczość lokalizacji, ale też zwiększa ich stabilność i intymność.
Dzięki temu całość tworzy harmonijną przestrzeń, w której nowoczesna architektura spotyka się z górskim krajobrazem, oferując mieszkańcom komfort oraz wyjątkowe widoki.





Zakres obowiązków:
Układ funkcjonalny mi zka
D al n rzn
i z n rzn raca nad l acj
Od odni ni budynkó roj k muró oporo ych z ykorzy ani m
pr fabryka ó raca nad mod l
Do o o ani ry unkó do ymogó po zcz gólnych apó proj k orz ni no ych rodzin
R vici




PROJEKTOWE: KONCEPCJA, PROJEKT STUDENCKI
Celem projektu jest stworzenie przestrzeni wspierającej integrację społeczną, przeciwdziałającej izolacji i samotności. Zakłada on powstanie miejsca, gdzie mieszkańcy – młodzi, rodziny, seniorzy – mogą tworzyć wspólnotę opartą na współpracy i wzajemnej pomocy.
Coliving to nowoczesny model zamieszkania, w którym prywatne są jedynie sypialnie z łazienkami, a reszta przestrzeni – kuchnie, salony, strefy coworkingowe – jest wspólna, sprzyjając budowaniu więzi.
Projekt przewiduje też ogólnodostępne przestrzenie, jak kawiarnie i sklepy, które mogą być prowadzone przez mieszkańców sprzedających produkty z ogrodów miejskich.

Idea zakłada również powstanie szkółki ogrodniczej, która uczyłaby mieszkańców i lokalną społeczność uprawy roślin, promując zdrowy styl życia i wspólnotowe działania.
Dawne ogrody Freegego w Krakowie stanowią inspirację, który zakłada przekształcenie tego zaniedbanego terenu w nowoczesny coliving z zielonymi przestrzeniami społecznymi.
Projekt ma na celu przywrócenie dawnej funkcji ogrodów, dostosowanej do współczesnych potrzeb, tworząc miejsce sprzyjające integracji, wspólnocie oraz współpracy mieszkańców w sercu miasta.












