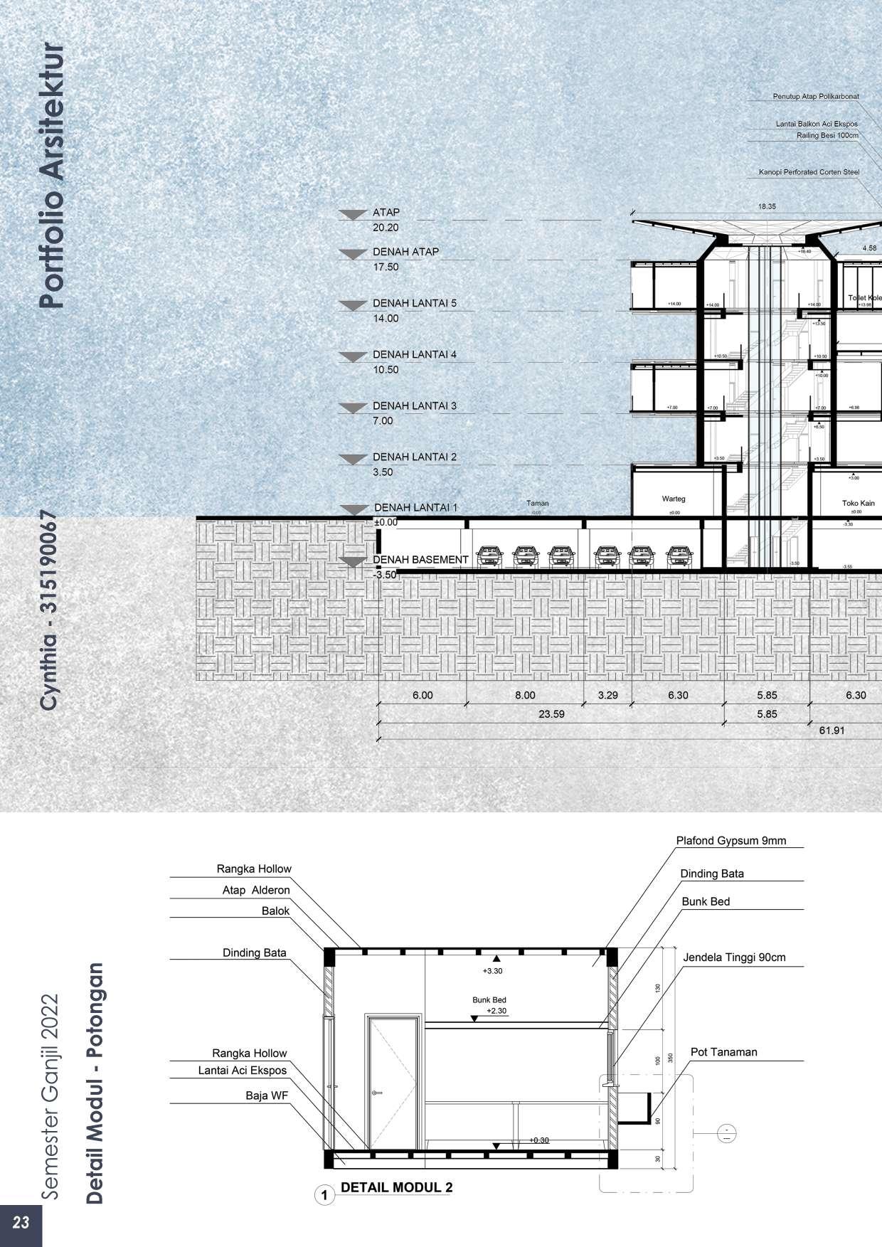
Piksel Kos Krendang berusaha menjawab pertanyaan bagaimana arsitektur dapat berperan mengatasi bencana kebakaran yang disebabkan oleh arsitektur itu sendiri yaitu berupa kepadatan bangunan dan ketidakikutcampuran pemerintah dalam pembangunan. Proyek ini menawarkan konsep resiliensi dalam berhuni, di mana pada konteks Krendang, resiliensi adalah bagaimana warga beserta kawasan menanggapi bencana kebakaran dalam 3 tahap, yaitu pencegahan, penanganan dan evakuasi, serta pemulihan.
Konsep ini diwujudkan ke dalam beberapa prinsip yaitu immunity to trauma, flexible and can be altered, responsive to disaster, timeless and tough, affordability, dan connects with nature. Metode perancangan yang digunakan pada proyek ini adalah menggunakan grid-grid piksel, di mana setiap kotak dapat disewa secara bertahap oleh penghuni sesuai dengan kebutuhan serta kemampuan ekonomi mereka. Setiap modul hunian dapat di copot pasang dan diganti bila terjadi kebakaran dan diharapkan memudahkan proses evakuasi ketika bencana terjadi.