PORTAFOLIO 2024 JULIO VALDEZ

Page 1

JULIO VALDEZ

PORTAFOLIO DE ARQUITECTURA

SOBRE MI

J ULIO V ALDEZ

ESTUDIANTE DE ARQUITECTURA

CREATIVO

DETERMINADO INGENIOSO

DIRECCIÓN

Juan Pablo II Mz I Lt. 23, Callao

TR3STUDIO ASISTENTE DE DISEÑO DE ARQUITECTURA

JULIO 2023 - NOVIEMBRE 2023

Desarrollé diseños arquitectonicos, interiores y mobiliarios, desarrollo de acabados y detalles constructivos, control de calidad en tiendas retail, viviendas y remodelaciones.

MARBERL CONTRATISTAS E.I.R.L ASISTENTE SUPERVISOR DE OBRA

ABRIL 2022 - JULIO 2022

Se supervisó el avance de las obras y asegurar que todos los servicios programados sean ejecutados a su tiempo.

CASABLANCA CONSTRUCTORES SAC ASISTENTE DE ARQUITECTURA

MARZO 2021 - MARZO 2022

Se eleboró planos de en 2D de arquitectura e ingeniería, realizando apoyo en metrados y memorias descriptivas.

EDUCACIÓN

UNIVERSIDAD PERUANA DE CIENCIAS APLICADAS

2016 - 2023

936100679

CELULAR CORREO

julio1103@gmail.com

IDIOMAS

ESPAÑOL NATIVO INGLES AVANZADO

SOFTWARES

EXPERIENCIA
ARCHICAD SKETCHUP AUTOCAD V-RAY REVIT PHOTOSHOP LUMION MICROSOFT OFFICE

PROYECTOS

01

CONJUNTO HABITACIONAL

ANTEPROYECTO| CHICLAYO, PIMENTEL

03

COMEDOR PARA CENTRO COMUNITARIO DE MUJERES

ANTEPROYECTO| EE.UU, TEXAS

02

CENTRO DE CONCIENTIZACIÓN PARA ÁREAS NATURALES

ANTEPROYECTO| CHANCAY

04

TRABAJOS REALIZADOS PARA TR3STUDIO

PERÚ, LIMA

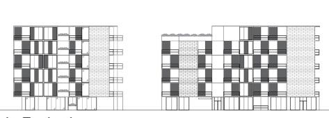
CONJUNTO HABITACIONAL

ANTEPROYECTO| CHICLAYO, PIMENTEL

El proyecto consiste en el diseño de un bloque de 18 departamentos ubicados en Chiclayo, Pimentel. El sitio se caracteriza por un clima tropical, que se encuentra a unos 100 metros de la playa. La vegetación incluye unos arbustos nativos del lugar, y de las cuales la mayoría necesitan ser preservados.

En el primer nivel se propuso un espacio público dinámico, en donde los usuarios de las viviendas les interese convivir y relacionarse con las demas personas. Además de incluir con comercio en los primeros niveles de los edificios para un constante flujo de personas y así evitar robos.

01
FACHADA NORTE
FACHADA ESTE FACHADA SUR
FACHADA OESTE PLANO DE TECHOS
PRIMERA PLANTA TERCERA PLANTA SEGUNDA PLANTA CUARTA PLANTA

CENTRO DE CONCIENTIZACIÓN PARA ÁREAS NATURALES

ANTEPROYECTO| CHANCAY, HUARAL

El centro de concientizacioón para áreas naturales se realizó por dos cosas. Primero, por el exceso de ignorancia y la falta de empatía por parte del municipio y de las personas en el cuidado de áreas naturales. Se realizó y se preorizó que la mayoría de espacios interiores todos te recuerden de la importancia que son y sus cuidado de estas.

Segundo, al realizar el analisis del lugar s e vió que la mayoría de los espacios públicos NO son funcionales y por ende la mayoría de personas no salen ni tienen un lugar en donde puedan realizar actividades juntos. La caracteristica principal del volumen es su fachada que es una plancha de acero perforada que hace reflejo a las áreas de cultivo que tienen enfrente.

02

ZONA DE CUBICULOS

ZONA DE ADMINISTRACIÓN

FACHADA NORTE
FACHADA SUR FACHADA INTERIOR

PRIMERA PLANTA

TERCERA PLANTA

CORTE EN ESCALA 1:100

ZONA DE CUBICULOS

ESPACIO PÚBLICO

ESPACIO PÚBLICO

ZONA DE CUBICULOS

COMEDOR PARA CENTRO COMUNITARIO DE MUJERES

ANTEPROYECTO| EE.UU, TEXAS

El comedor del Centro Comunitario se planteó para una cantidad de 100 mujeres que han sido victimas de violencia. Se diseñó en base a la normativa de Texas en Estados Unidos, con paneles de maderay el Steel Framming que es acero pre-fabricado.

La intención del diseño interior del lugar es que las mujeres en todo momento se sientan seguras, y del mismo modo se sientan en confianza entre ellas, que además al terminar del almuerzo puedan ordenar los mobiliarios y poder usar el gran espacio para realizar actividades dinamicas entre ellas.

03

ELEVACIÓN A

ELEVACIÓN B

COMEDOR EXTERIOR

ELEVACIÓN C

ELEVACIÓN D

PLOT PLAN

VISTA EXTERIOR

COMEDOR EXTERIOR

VISTA EXTERIOR

ÁREA

DE COCINA

PLANO DE SOMBRAS

COMEDOR INTERIOR

CORTE B-B

CORTE C-C

CORTE D-D

CORTE E-E

TRABAJOS REALIZADOS PARA EL STUDIO TR3STUDIO

SURCO| PERÚ, LIMA| PRODIMIN

Participe en levantamientos y diseño de interiores, ejecuciones de obras, modelados 3D con libertad de diseño, contacto con clientes y organización con distribuidores de materiales. Y cumplimiento eficaz de las tareas asignadas como lo fue en la supervision de obras de remodelaciones, gimnasios y almacenes. Como lo fue por ejemplo trabajar con PRODIMIN, una empresa dedicada a la prevencion de accidentes y seguridad, se hizo el diseño de sus almacenes y stands de ferias todo el 2023.

04

TRABAJOS REALIZADOS PARA EL STUDIO TR3STUDIO

SURCO| PERÚ, LIMA| CASA DE PLAYA / CASA DE CAMPO

Para el proyecto de la casa de campo, realizamos correciones de los planos que se habian dejado inconclusos desde hace 5 años, y el cliente decidió retomar ya que vendria a vivir a Perú después de mucho tiempo y sus viajes por Australia y teniendo una familia. Por otro lado, para el diseño de la casa de playa ubicada en Piura , se tomo el concepto de hacerlo lo mas veraniego clasico posible y usar materiales distintivos de la zona asi hacer qu ela casa tenga una identidad del lugar, además de generar una entrada directa a al mar .

04

GRACIAS POR LLEGAR HASTA AQUI

Espero que hayas disfrutado mi portafolio, me encanta seguir aprendiendo día a día, compartir mis conocimientos y mis ideas con los demás, y dar lo mejor de mi para lograr proyectos increibles.

MÁS CONTENIDO PRONTO

PORTAFOLIO JULIO MARIO VALDEZ VARGAS 1999 - 2024

Turn static files into dynamic content formats.

Create a flipbook
Issuu converts static files into: digital portfolios, online yearbooks, online catalogs, digital photo albums and more. Sign up and create your flipbook.
PORTAFOLIO 2024 JULIO VALDEZ by Julio Valdez - Issuu